Marktplein 40 2691 BV 's-Gravenzande
€ 950,000 k.k.

Description
Deze representatieve winkelruimte met bovenwoning is gelegen midden in het centrum van ’s-Gravenzande en biedt tal van mogelijkheden. Bent u op zoek bent naar een winkel-, kantoor-, horecaruimte in combinatie met wonen? Deze ruimte biedt het allemaal!
Het pand heeft de bestemming “Centrum ‘s-Gravenzande”. De ruimte kan gebruikt worden als horeca (ten hoogste categorie 2) of dienstverlening. Op de verdieping heeft het de bestemming wonen. Momenteel wordt de begane grond gebruikt als kapsalon voor zowel heren als dames. Boven op de verdieping vindt u een appartement met een ruim dakterras en een zolder-/ praktijkruimte.
De ligging van het pand is zeer centraal midden in het winkelgebied van ’s-Gravenzande. Het pand ligt op de hoek van het Vaartplein en om de hoek van het gezellige horecaplein dat met meerdere terrassen zorgt voor de gezelligheid in het dorp. De omgeving heeft een grote diversiteit aan winkels waaronder: Jumbo, Lidl, Shoeby, Ter Stal, Hema, Kruidvat, Primera en meerdere lokale ondernemers.
Kortom: een unieke kans om wonen en werken te combineren. Neem snel contact met ons op en ontdek zelf wat de mogelijkheden zijn van dit unieke pand!
Oppervlakte:
De oppervlakte van het gebouw is als volgt verdeeld:
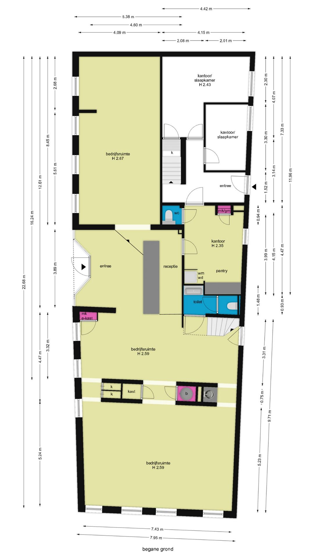
Bedrijfsruimte begane grond: ca. 146,2 m² VVO;
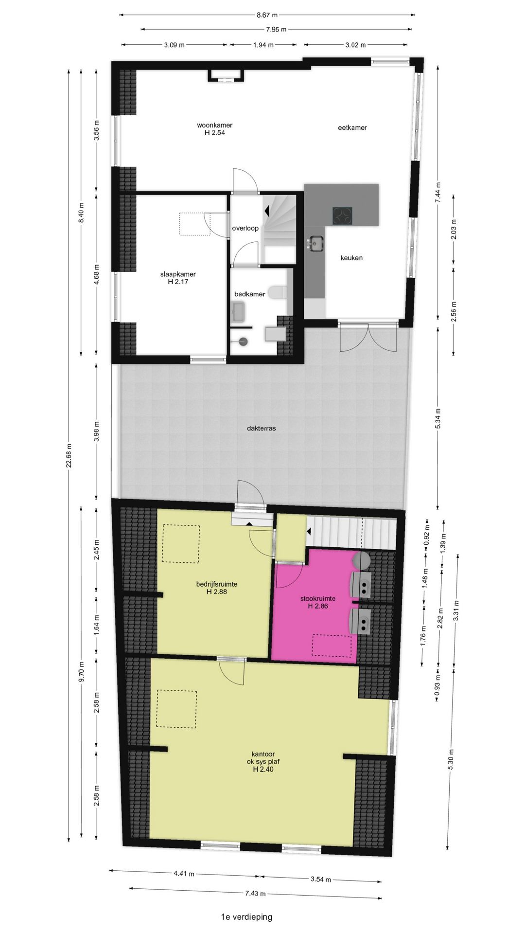
Bedrijfsruimte 1e verdieping: ca. 51,9 m² VVO;
Frontbreedte kant Marktplein: ca. 22.68 m;
Frontbreedte hoek Marktplein/Vaartplein: ca. 7.95 m;
Gebruiksoppervlakte wonen
Begane grond: ca. 31,3 m²;
Eerste verdieping: ca. 65,0 m²;
Dakterras: ca. 38 m².
Indeling:
Begane grond:
De entree van het pand bevindt zich op de begane grond, vanwaar u direct toegang heeft tot de winkelruimte. Momenteel is de ruimte ingericht als kapsalon. Aan de linkerzijde bevindt zich de herensalon en aan de rechterzijde bevindt zich de damessalon. De kapsalon is voorzien van meerdere kaptafels, wastafels, een toiletruimte voorzien van een voorportaal met wastafel, meterkast, een trap naar de eerste verdieping en een in-/uitgang naar de Vaartstraat. In het midden van de kapsalon is de balie met daarachter een toegangsdeur naar de keuken/pantry.
In de keuken/pantry bevinden zich de wasmachine-/drogeraansluiting, een keukenblok, meterkast en een tweede toilet. Vanuit de keuken/pantry komt u in een hal met hier toegang tot twee (kantoor)kamers, trapopgang en een entree met een in-/uitgang naar de Vaartstraat.
Eerste verdieping – appartement
De eerste verdieping is toegankelijk middels een vaste trapopgang en komt uit op een kleine overloop vanwaar u toegang krijgt tot de diverse vertrekken.
De verdieping heeft een ruime slaapkamer, een badkamer welke is voorzien van een douche, toilet en wastafel en een lichte woon-/eetkamer met een mooie marmeren vloer, open haard en open keuken.
De nette keuken is voorzien van inbouwapparatuur: 4-pit keramische kookplaat, afzuigkap, oven, vaatwasser, koelkast en vriezer (3 lades). Vanuit de keuken bereikt u middels twee openslaande deuren het zonnige dakterras.
Eerste verdieping – zolderverdieping en praktijkruimte
De zolderverdieping en praktijkruimte is toegankelijk middels een vaste trapopgang vanuit de winkel en komt uit op een kleine overloop met berging hier bevinden zich twee CV-ketels, beide van Nefit (2017) en een boiler.
De praktijkruimte is voorzien van een nette PVC vloer en vanuit hier bereikt u een ruime (zolder)kamer. De praktijkruimte heeft ook toegang tot het ruime dakterras.
Energielabel:
Winkelruimte: B (geldig tot 28-09-2033);
Woonruimte: D (geldig tot 28-09-2033);
Bestemmingsplan:
Het bestemmingsplan valt onder de bepalingen van het vigerende bestemmingsplan: ‘Centrum 's-Gravenzande'.
- dienstverlening;
- horecabedrijven uit ten hoogste categorie 2 van de Staat van Horeca-activiteiten;
- wonen, uitsluitend op de verdiepingen.
Notaris:
Nader door koper te bepalen.
Betaling:
Betaling zal gelijktijdig met de eigendomsoverdracht plaatsvinden ten kantore van instrumenterend notaris.
Kosten:
De kosten verbonden aan de eigendomsoverdracht, hieronder te verstaan de kosten van de koopovereenkomst en de transportakte, en eventueel verschuldigde overdrachts- en/of omzetbelasting over de onroerende zaak en eventueel verschuldigde omzetbelasting over de roerende zaken, zijn voor rekening van koper.
Zekerheidsstelling:
Tot meerdere zekerheid voor de nakoming van zijn verplichting zal koper een waarborgsom of een bankgarantie ter grootte van 10% van het transactiebedrag storten op rekeningnummer van de instrumenterend notaris of afgeven ten kantore van de instrumenterend notaris. De door koper gestelde waarborgsom/bankgarantie zal van rechtswege als boete verbeurd zijn ingeval koper in de nakoming van zijn verplichtingen tekortschiet.
Bijzonderheden:
- Bruto vloeroppervlak ca. 232 m²;
- Gebruiksoppervlak ca. 206,5 m²;
- Verhuurbaar Vloeroppervlak ca. 198 m²;
- Bruto inhoud: ca. 694 m³;
- Gebruiksoppervlakte woonruimte: ca. 96 m²;
- Gebouwgebonden buitenruimte: ca. 38 m²;
- Inhoud wonen: ca. 303 m²;
- Perceeloppervlakte 202 m²;
- Bouwjaar 1906;
- Entree vanuit Marktplein en twee entrees vanuit Vaartstraat;
- Het gehele pand is voorzien van dubbel glas en airconditioning;
- Het pand is voorzien van 30 zonnepanelen;
- Oplevering in overleg;
- Energielabel winkelruimte: B (geldig tot 28-09-2033);
- Energielabel woonruimte: D (geldig tot 28-09-2033);
- In de koopovereenkomst worden de navolgende artikelen opgenomen: ouderdomsclausule en asbestclausule;
- Gelegen midden in het centrum van ’s-Gravenzande, op de hoek van het Vaartplein en om de hoek van het gezellige horecaplein.
Aansprakelijkheid
Alle informatie is geheel vrijblijvend, met zorg samengesteld en ons inziens uit betrouwbare bron afkomstig. Ten aanzien van de juistheid ervan kunnen wij echter geen aansprakelijkheid aanvaarden. Door ons wordt geen aansprakelijkheid aanvaard behoudens voor zover de door ons verplicht afgesloten beroepsaansprakelijkheidsverzekering in voorkomend geval aanspraak op een uitkering geeft. Alle opgegeven maten en oppervlakte zijn indicatief. Van toepassing zijn de NVM voorwaarden.
Het pand heeft de bestemming “Centrum ‘s-Gravenzande”. De ruimte kan gebruikt worden als horeca (ten hoogste categorie 2) of dienstverlening. Op de verdieping heeft het de bestemming wonen. Momenteel wordt de begane grond gebruikt als kapsalon voor zowel heren als dames. Boven op de verdieping vindt u een appartement met een ruim dakterras en een zolder-/ praktijkruimte.
De ligging van het pand is zeer centraal midden in het winkelgebied van ’s-Gravenzande. Het pand ligt op de hoek van het Vaartplein en om de hoek van het gezellige horecaplein dat met meerdere terrassen zorgt voor de gezelligheid in het dorp. De omgeving heeft een grote diversiteit aan winkels waaronder: Jumbo, Lidl, Shoeby, Ter Stal, Hema, Kruidvat, Primera en meerdere lokale ondernemers.
Kortom: een unieke kans om wonen en werken te combineren. Neem snel contact met ons op en ontdek zelf wat de mogelijkheden zijn van dit unieke pand!
Oppervlakte:
De oppervlakte van het gebouw is als volgt verdeeld:
Bedrijfsruimte begane grond: ca. 146,2 m² VVO;
Bedrijfsruimte 1e verdieping: ca. 51,9 m² VVO;
Frontbreedte kant Marktplein: ca. 22.68 m;
Frontbreedte hoek Marktplein/Vaartplein: ca. 7.95 m;
Gebruiksoppervlakte wonen
Begane grond: ca. 31,3 m²;
Eerste verdieping: ca. 65,0 m²;
Dakterras: ca. 38 m².
Indeling:
Begane grond:
De entree van het pand bevindt zich op de begane grond, vanwaar u direct toegang heeft tot de winkelruimte. Momenteel is de ruimte ingericht als kapsalon. Aan de linkerzijde bevindt zich de herensalon en aan de rechterzijde bevindt zich de damessalon. De kapsalon is voorzien van meerdere kaptafels, wastafels, een toiletruimte voorzien van een voorportaal met wastafel, meterkast, een trap naar de eerste verdieping en een in-/uitgang naar de Vaartstraat. In het midden van de kapsalon is de balie met daarachter een toegangsdeur naar de keuken/pantry.
In de keuken/pantry bevinden zich de wasmachine-/drogeraansluiting, een keukenblok, meterkast en een tweede toilet. Vanuit de keuken/pantry komt u in een hal met hier toegang tot twee (kantoor)kamers, trapopgang en een entree met een in-/uitgang naar de Vaartstraat.
Eerste verdieping – appartement
De eerste verdieping is toegankelijk middels een vaste trapopgang en komt uit op een kleine overloop vanwaar u toegang krijgt tot de diverse vertrekken.
De verdieping heeft een ruime slaapkamer, een badkamer welke is voorzien van een douche, toilet en wastafel en een lichte woon-/eetkamer met een mooie marmeren vloer, open haard en open keuken.
De nette keuken is voorzien van inbouwapparatuur: 4-pit keramische kookplaat, afzuigkap, oven, vaatwasser, koelkast en vriezer (3 lades). Vanuit de keuken bereikt u middels twee openslaande deuren het zonnige dakterras.
Eerste verdieping – zolderverdieping en praktijkruimte
De zolderverdieping en praktijkruimte is toegankelijk middels een vaste trapopgang vanuit de winkel en komt uit op een kleine overloop met berging hier bevinden zich twee CV-ketels, beide van Nefit (2017) en een boiler.
De praktijkruimte is voorzien van een nette PVC vloer en vanuit hier bereikt u een ruime (zolder)kamer. De praktijkruimte heeft ook toegang tot het ruime dakterras.
Energielabel:
Winkelruimte: B (geldig tot 28-09-2033);
Woonruimte: D (geldig tot 28-09-2033);
Bestemmingsplan:
Het bestemmingsplan valt onder de bepalingen van het vigerende bestemmingsplan: ‘Centrum 's-Gravenzande'.
- dienstverlening;
- horecabedrijven uit ten hoogste categorie 2 van de Staat van Horeca-activiteiten;
- wonen, uitsluitend op de verdiepingen.
Notaris:
Nader door koper te bepalen.
Betaling:
Betaling zal gelijktijdig met de eigendomsoverdracht plaatsvinden ten kantore van instrumenterend notaris.
Kosten:
De kosten verbonden aan de eigendomsoverdracht, hieronder te verstaan de kosten van de koopovereenkomst en de transportakte, en eventueel verschuldigde overdrachts- en/of omzetbelasting over de onroerende zaak en eventueel verschuldigde omzetbelasting over de roerende zaken, zijn voor rekening van koper.
Zekerheidsstelling:
Tot meerdere zekerheid voor de nakoming van zijn verplichting zal koper een waarborgsom of een bankgarantie ter grootte van 10% van het transactiebedrag storten op rekeningnummer van de instrumenterend notaris of afgeven ten kantore van de instrumenterend notaris. De door koper gestelde waarborgsom/bankgarantie zal van rechtswege als boete verbeurd zijn ingeval koper in de nakoming van zijn verplichtingen tekortschiet.
Bijzonderheden:
- Bruto vloeroppervlak ca. 232 m²;
- Gebruiksoppervlak ca. 206,5 m²;
- Verhuurbaar Vloeroppervlak ca. 198 m²;
- Bruto inhoud: ca. 694 m³;
- Gebruiksoppervlakte woonruimte: ca. 96 m²;
- Gebouwgebonden buitenruimte: ca. 38 m²;
- Inhoud wonen: ca. 303 m²;
- Perceeloppervlakte 202 m²;
- Bouwjaar 1906;
- Entree vanuit Marktplein en twee entrees vanuit Vaartstraat;
- Het gehele pand is voorzien van dubbel glas en airconditioning;
- Het pand is voorzien van 30 zonnepanelen;
- Oplevering in overleg;
- Energielabel winkelruimte: B (geldig tot 28-09-2033);
- Energielabel woonruimte: D (geldig tot 28-09-2033);
- In de koopovereenkomst worden de navolgende artikelen opgenomen: ouderdomsclausule en asbestclausule;
- Gelegen midden in het centrum van ’s-Gravenzande, op de hoek van het Vaartplein en om de hoek van het gezellige horecaplein.
Aansprakelijkheid
Alle informatie is geheel vrijblijvend, met zorg samengesteld en ons inziens uit betrouwbare bron afkomstig. Ten aanzien van de juistheid ervan kunnen wij echter geen aansprakelijkheid aanvaarden. Door ons wordt geen aansprakelijkheid aanvaard behoudens voor zover de door ons verplicht afgesloten beroepsaansprakelijkheidsverzekering in voorkomend geval aanspraak op een uitkering geeft. Alle opgegeven maten en oppervlakte zijn indicatief. Van toepassing zijn de NVM voorwaarden.
Features
Transfer of ownership
- Asking price
- € 950,000 kosten koper
- Listed since
-
- Status
- Available
- Acceptance
- Available in consultation
Construction
- Main use
- Retail outlet
- Building type
- Resale property
- Year of construction
- 1906
Surface areas
- Area
- 206 m²
- Sales floor area
- 198 m²
- Front width
- 30.6 m
- Plot size
- 202 m²
Layout
- Number of floors
- 2 floors
Energy
- Energy label
- B
Surroundings
- Location
- Town center
- Accessibility
- Bus stop in 500 m to 1000 m
- Shopkeepers' association contribution
- No
- Socio-economic classification
- A1
NVM real estate agent
Photos























































