Groenelaan 52 3114 CJ Schiedam
- New
€ 175,000 k.k.

Description
Nu te koop: een winkelruimte op een markante hoek aan de Groenelaan in Schiedam, met volop etalagemogelijkheden en veel daglicht dankzij de brede pui.
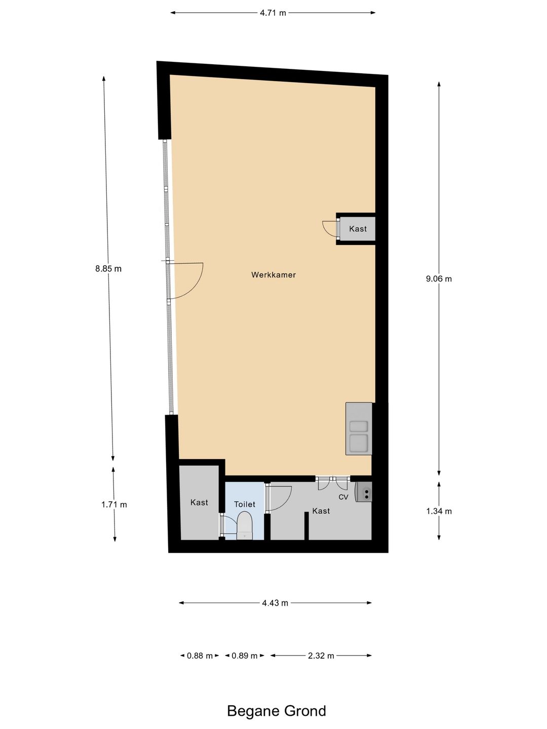
De winkel heeft een oppervlakte van circa 48 m² en beschikt over een royale open ruimte met een glazen pui en twee openslaande deuren die zorgen voor veel daglicht en een uitnodigend is richting voorbijgangers. Aan de achterzijde bevindt zich een kleine aparte ruimte met toilet en de cv-installatie (Remeha Avanta 28C, bouwjaar 2018). De ruimte is voorzien van dubbel glas en aan de voorzijde is een rolluik aanwezig voor extra veiligheid.
Het pand is gelegen op eigen grond en bevindt zich op een uitstekende zichtlocatie, midden tussen andere winkels en voorzieningen. Deze winkelruimte zeer interessant voor zowel ondernemers als beleggers die op zoek zijn naar een goed bereikbare locatie.
Uitbreidingsmogelijkheden.
Uniek aan dit object is de toekomstmogelijkheid: de verkoper heeft een conceptaanvraag ingediend bij de Gemeente Schiedam om het gebouw op te toppen met een extra verdieping en kap. Hierop is positief gereageerd. Uiteraard dient er nog een officiële vergunningsaanvraag te worden ingediend, maar dit biedt de interessante optie om het pand in de toekomst te transformeren tot een woon-winkelpand.
Ligging.
Het object is gelegen aan de Groenelaan, een levendige straat in het hart van Schiedam. Deze locatie kenmerkt zich door een mix van lokale ondernemers, speciaalzaken en voorzieningen, waardoor er dagelijks veel passanten en buurtbewoners langskomen. Het historische centrum met zijn sfeervolle grachten, horecagelegenheden en winkels ligt nabij, wat bijdraagt aan de aantrekkingskracht van de omgeving.
Daarnaast is de bereikbaarheid uitstekend: op enkele minuten lopen vind je tram- en bushaltes die een snelle verbinding bieden met Rotterdam en de omliggende steden. Ook het NS-station Schiedam
Bestemming.
Gemengd. De voor 'Gemengd' aangewezen gronden zijn bestemd voor:
a. wonen;
b. bedrijfsmatige activiteiten die een milieubelasting kennen die niet hoger is dan categorie 2 als bedoeld in de als bijlage opgenomen Staat van milieubelastende activiteiten, uitsluitend op de begane grond;
c. detailhandel, uitsluitend op de begane grond;
d. dienstverlening, uitsluitend op de begane grond;
e. horeca 1, uitsluitend op de begane grond;
f. horeca 2, uitsluitend ter plaatse van de aanduiding 'horeca' en uitsluitend op de begane grond;
g. maatschappelijke voorzieningen, uitsluitend op de begane grond; met daarbij behorende:
De winkel heeft een oppervlakte van circa 48 m² en beschikt over een royale open ruimte met een glazen pui en twee openslaande deuren die zorgen voor veel daglicht en een uitnodigend is richting voorbijgangers. Aan de achterzijde bevindt zich een kleine aparte ruimte met toilet en de cv-installatie (Remeha Avanta 28C, bouwjaar 2018). De ruimte is voorzien van dubbel glas en aan de voorzijde is een rolluik aanwezig voor extra veiligheid.
Het pand is gelegen op eigen grond en bevindt zich op een uitstekende zichtlocatie, midden tussen andere winkels en voorzieningen. Deze winkelruimte zeer interessant voor zowel ondernemers als beleggers die op zoek zijn naar een goed bereikbare locatie.
Uitbreidingsmogelijkheden.
Uniek aan dit object is de toekomstmogelijkheid: de verkoper heeft een conceptaanvraag ingediend bij de Gemeente Schiedam om het gebouw op te toppen met een extra verdieping en kap. Hierop is positief gereageerd. Uiteraard dient er nog een officiële vergunningsaanvraag te worden ingediend, maar dit biedt de interessante optie om het pand in de toekomst te transformeren tot een woon-winkelpand.
Ligging.
Het object is gelegen aan de Groenelaan, een levendige straat in het hart van Schiedam. Deze locatie kenmerkt zich door een mix van lokale ondernemers, speciaalzaken en voorzieningen, waardoor er dagelijks veel passanten en buurtbewoners langskomen. Het historische centrum met zijn sfeervolle grachten, horecagelegenheden en winkels ligt nabij, wat bijdraagt aan de aantrekkingskracht van de omgeving.
Daarnaast is de bereikbaarheid uitstekend: op enkele minuten lopen vind je tram- en bushaltes die een snelle verbinding bieden met Rotterdam en de omliggende steden. Ook het NS-station Schiedam
Bestemming.
Gemengd. De voor 'Gemengd' aangewezen gronden zijn bestemd voor:
a. wonen;
b. bedrijfsmatige activiteiten die een milieubelasting kennen die niet hoger is dan categorie 2 als bedoeld in de als bijlage opgenomen Staat van milieubelastende activiteiten, uitsluitend op de begane grond;
c. detailhandel, uitsluitend op de begane grond;
d. dienstverlening, uitsluitend op de begane grond;
e. horeca 1, uitsluitend op de begane grond;
f. horeca 2, uitsluitend ter plaatse van de aanduiding 'horeca' en uitsluitend op de begane grond;
g. maatschappelijke voorzieningen, uitsluitend op de begane grond; met daarbij behorende:
Features
Transfer of ownership
- Asking price
- € 175,000 kosten koper
- Listed since
-
- Status
- Available
- Acceptance
- Available in consultation
Construction
- Main use
- Retail outlet with showroom
- Building type
- Resale property
- Year of construction
- 1926
Surface areas
- Area
- 48 m²
- Sales floor area
- 45 m²
- Front width
- 11 m
- Plot size
- 59 m²
Layout
- Number of floors
- 1 floor
Energy
- Energy label
- F
Surroundings
- Location
- In residential district
- Accessibility
- Bus stop in less than 500 m, Dutch Railways Intercity station in 1500 m to 2000 m, motorway exit in 1000 m to 1500 m and Tram stop in 500 m to 1000 m
- Shopkeepers' association contribution
- No
- Socio-economic classification
- C2
NVM real estate agent
Photos
















Floorplan
Begane Grond
