Willem II-straat 43 5038 BC Tilburg
- New
€ 969,000 k.k.

Description
TE KOOP combinatie werken/wonen in hartje centrum van Tilburg!
Unieke kans voor een ondernemer die ook wil investeren als belegging; een perfecte mix van eigen gebruik met optimaal rendement.
In het stadscentrum is deze unieke kans te koop. De gebruiksmogelijkheden zijn legio. Op de begane grond is een bedrijfsruimte van ca. 78 m², geschikt als bijvoorbeeld winkel/kantoor/praktijk. Op de verdieping bevindt zich in twee lagen een woning die gebruikt kan worden voor eigen bewoning of verhuur aan derden (bijvoorbeeld kamerverhuur).
Dit gebouw is gelegen op een goed zichtbare en markante hoeklocatie Willem II straat/Tuinstraat in het stadscentrum van Tilburg. Met een winkel-/kantoor-/bedrijfs-/praktijkruimte van ca. 78 m² op de begane grond, en daarboven een bovenwoning (voorheen in gebruik als kamerverhuur) op de 1e en 2e etage. Deze slimme combinatie maakt het object bij uitstek geschikt voor zowel eigenaar-gebruikers als investeerders.
Voor de ondernemer/gebruiker:
Bedrijfsruimte op de begane grond van ca. 78 m² met eigen entree aan de Willem II straat: geniet van een eigen zichtlocatie met ruime lichtinval voor een prettig werkklimaat. Exposure naar cliënten op straatniveau en creëer een inspirerende thuisbasis voor uw onderneming.
Voor de belegger:
Gespreide huurinkomsten: stabiele huurcashflow dankzij verhuur van de kamers op de etages, aangevuld met de bedrijfsmatig verhuur op de begane grond.
LIGGING
De Willem II straat is gelegen in een gemengd gebied, met zowel bedrijvigheid (winkels/kantoren/horeca) als woningen. Door de ligging is de zichtbaarheid uitstekend en de bereikbaarheid goed voor zowel bezoekers als bewoners.
BEREIKBAARHEID
Gelegen aan één van de belangrijkste toegangswegen van Tilburg-centrum, is het pand goed bereikbaar vanaf de Parkring. Het voetgangersgebied van Tilburg-centrum grenst aan de Tuinstraat, waar dit gebouw is gelegen. Bovendien is het Centraal Station op ca. 5 minuten loopafstand gesitueerd.
PARKEREN
Parkeren is mogelijk op openbaar terrein of de diverse openbare parkeergarages (betaald) zoals Tivoli, Pieter Vreedeplein, Zwijssen, en Knegtel.
DOELGROEP
Vanwege de ruime mogelijkheden die het bestemmingsplan biedt, is de bedrijfsruimte voor een zeer diverse doelgroep geschikt: o.a. detailhandel, (balie-) kantoor, dienstverlening, maatschappelijke voorzieningen, sport/recreatie.
Ook is het een uitstekend beleggingsobject, eventueel gecombineerd met eigen gebruik van de begane grond tbv de vestiging van een eigen onderneming. In dat geval dragen de huurinkomsten van de etages bij aan fors lagere huisvestingslasten.
OPPERVLAKTE
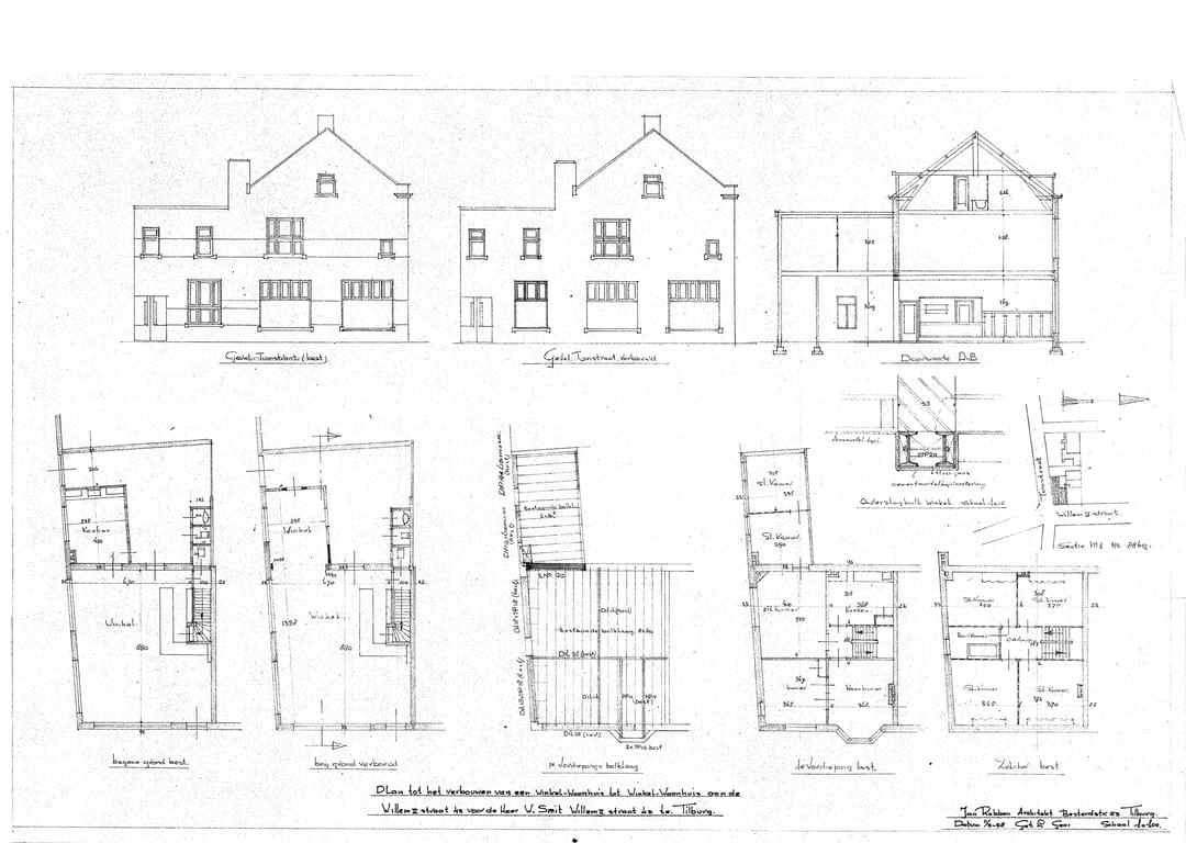
Begane grond: ca. 78 m²
Eerste etage: ca. 78 m²
Tweede etage: ca. 66 m²
FRONTBREEDTE
Het gebouw heeft een frontbreedte van ca. 6 meter. Vanwege de ligging van het pand op de hoek Willem II straat/Tuinstraat kent het gebouw een nog hogere attentiewaarde.
KENMERKEN (bedrijfsruimte b.g.)
• eigen entree aan de Willem II straat
• centrale verwarming middels radiatoren
• professionele bedrijfskeuken
• sanitair
* optimale exposure door ligging op de hoek Willem II straat/Tuinstraat met ramen aan beide zijden
KENMERKEN (woning 1e en 2e etage)
• eigen entree aan de Tuinstraat op begane grond met trapopgang
• etages bestaan uit totaal 8 kamers
• gezamenlijk sanitair/douche/keuken
• dakterras
• verwarming middels c.v.-radiatorensysteem
BESTEMMING
Volgens het vigerende bestemmingsplan is de bestemming van het object “Centrum-Binnenstad”. De volgende invullingen zijn o.a. mogelijk: detailhandel, kantoren, dienstverlening, maatschappelijke voorzieningen, bedrijven, sport/recreatie.
KOOPSOM
De koopsom bedraagt € 969.000,- k.k.
KADASTER INFO
Gemeente Tilburg, sectie M, Nummer 8869, groot 126 m².
OPLEVERDATUM
De opleverdatum wordt in onderling overleg overeengekomen.
STAAT VAN OPLEVERING
Verkoper verkoopt op basis van het “as is where is”- principe waarbij garanties vanuit verkoper niet verstrekt worden, zowel qua omvang als tijd. De koper aanvaardt het registergoed in alle opzichten op basis van het “as is where is”-principe, waarmee o.a. wordt bedoeld de bouwkundige, juridische, milieukundige, technische en feitelijke toestand waarin het registergoed zich bevindt waarbij de koper ter zake van deze staat van het registergoed geen enkele aanspraak, hoe ook genaamd, jegens verkoper heeft.
De oplevering vindt bovendien in lege staat plaats.
OVEREENKOMST
Koopakte volgens het NVM-model voor commercieel onroerend goed.
OMZETBELASTING
Het object is vrijgesteld van BTW.
ZEKERHEIDSTELLING
Bankgarantie/Waarborgsom ter grootte van 10% van de koopsom te voldoen binnen 4 weken na ondertekening koopovereenkomst.
NOTARIS
Nader door koper te bepalen.
VOORBEHOUD
Een en ander geschiedt onder aanvaarding en uitdrukkelijk voorbehoud goedkeuring eigenaar. Alle door ons verstrekte informatie is geheel vrijblijvend en uitsluitend bestemd als uitnodiging om met aspirant-kopers in gesprek te treden. Alle gegevens zijn met zorg samengesteld en uit ons inziens betrouwbare bron afkomstig. Ten aanzien van de juistheid ervan kunnen wij echter geen aansprakelijkheid aanvaarden.
Unieke kans voor een ondernemer die ook wil investeren als belegging; een perfecte mix van eigen gebruik met optimaal rendement.
In het stadscentrum is deze unieke kans te koop. De gebruiksmogelijkheden zijn legio. Op de begane grond is een bedrijfsruimte van ca. 78 m², geschikt als bijvoorbeeld winkel/kantoor/praktijk. Op de verdieping bevindt zich in twee lagen een woning die gebruikt kan worden voor eigen bewoning of verhuur aan derden (bijvoorbeeld kamerverhuur).
Dit gebouw is gelegen op een goed zichtbare en markante hoeklocatie Willem II straat/Tuinstraat in het stadscentrum van Tilburg. Met een winkel-/kantoor-/bedrijfs-/praktijkruimte van ca. 78 m² op de begane grond, en daarboven een bovenwoning (voorheen in gebruik als kamerverhuur) op de 1e en 2e etage. Deze slimme combinatie maakt het object bij uitstek geschikt voor zowel eigenaar-gebruikers als investeerders.
Voor de ondernemer/gebruiker:
Bedrijfsruimte op de begane grond van ca. 78 m² met eigen entree aan de Willem II straat: geniet van een eigen zichtlocatie met ruime lichtinval voor een prettig werkklimaat. Exposure naar cliënten op straatniveau en creëer een inspirerende thuisbasis voor uw onderneming.
Voor de belegger:
Gespreide huurinkomsten: stabiele huurcashflow dankzij verhuur van de kamers op de etages, aangevuld met de bedrijfsmatig verhuur op de begane grond.
LIGGING
De Willem II straat is gelegen in een gemengd gebied, met zowel bedrijvigheid (winkels/kantoren/horeca) als woningen. Door de ligging is de zichtbaarheid uitstekend en de bereikbaarheid goed voor zowel bezoekers als bewoners.
BEREIKBAARHEID
Gelegen aan één van de belangrijkste toegangswegen van Tilburg-centrum, is het pand goed bereikbaar vanaf de Parkring. Het voetgangersgebied van Tilburg-centrum grenst aan de Tuinstraat, waar dit gebouw is gelegen. Bovendien is het Centraal Station op ca. 5 minuten loopafstand gesitueerd.
PARKEREN
Parkeren is mogelijk op openbaar terrein of de diverse openbare parkeergarages (betaald) zoals Tivoli, Pieter Vreedeplein, Zwijssen, en Knegtel.
DOELGROEP
Vanwege de ruime mogelijkheden die het bestemmingsplan biedt, is de bedrijfsruimte voor een zeer diverse doelgroep geschikt: o.a. detailhandel, (balie-) kantoor, dienstverlening, maatschappelijke voorzieningen, sport/recreatie.
Ook is het een uitstekend beleggingsobject, eventueel gecombineerd met eigen gebruik van de begane grond tbv de vestiging van een eigen onderneming. In dat geval dragen de huurinkomsten van de etages bij aan fors lagere huisvestingslasten.
OPPERVLAKTE
Begane grond: ca. 78 m²
Eerste etage: ca. 78 m²
Tweede etage: ca. 66 m²
FRONTBREEDTE
Het gebouw heeft een frontbreedte van ca. 6 meter. Vanwege de ligging van het pand op de hoek Willem II straat/Tuinstraat kent het gebouw een nog hogere attentiewaarde.
KENMERKEN (bedrijfsruimte b.g.)
• eigen entree aan de Willem II straat
• centrale verwarming middels radiatoren
• professionele bedrijfskeuken
• sanitair
* optimale exposure door ligging op de hoek Willem II straat/Tuinstraat met ramen aan beide zijden
KENMERKEN (woning 1e en 2e etage)
• eigen entree aan de Tuinstraat op begane grond met trapopgang
• etages bestaan uit totaal 8 kamers
• gezamenlijk sanitair/douche/keuken
• dakterras
• verwarming middels c.v.-radiatorensysteem
BESTEMMING
Volgens het vigerende bestemmingsplan is de bestemming van het object “Centrum-Binnenstad”. De volgende invullingen zijn o.a. mogelijk: detailhandel, kantoren, dienstverlening, maatschappelijke voorzieningen, bedrijven, sport/recreatie.
KOOPSOM
De koopsom bedraagt € 969.000,- k.k.
KADASTER INFO
Gemeente Tilburg, sectie M, Nummer 8869, groot 126 m².
OPLEVERDATUM
De opleverdatum wordt in onderling overleg overeengekomen.
STAAT VAN OPLEVERING
Verkoper verkoopt op basis van het “as is where is”- principe waarbij garanties vanuit verkoper niet verstrekt worden, zowel qua omvang als tijd. De koper aanvaardt het registergoed in alle opzichten op basis van het “as is where is”-principe, waarmee o.a. wordt bedoeld de bouwkundige, juridische, milieukundige, technische en feitelijke toestand waarin het registergoed zich bevindt waarbij de koper ter zake van deze staat van het registergoed geen enkele aanspraak, hoe ook genaamd, jegens verkoper heeft.
De oplevering vindt bovendien in lege staat plaats.
OVEREENKOMST
Koopakte volgens het NVM-model voor commercieel onroerend goed.
OMZETBELASTING
Het object is vrijgesteld van BTW.
ZEKERHEIDSTELLING
Bankgarantie/Waarborgsom ter grootte van 10% van de koopsom te voldoen binnen 4 weken na ondertekening koopovereenkomst.
NOTARIS
Nader door koper te bepalen.
VOORBEHOUD
Een en ander geschiedt onder aanvaarding en uitdrukkelijk voorbehoud goedkeuring eigenaar. Alle door ons verstrekte informatie is geheel vrijblijvend en uitsluitend bestemd als uitnodiging om met aspirant-kopers in gesprek te treden. Alle gegevens zijn met zorg samengesteld en uit ons inziens betrouwbare bron afkomstig. Ten aanzien van de juistheid ervan kunnen wij echter geen aansprakelijkheid aanvaarden.
Features
Transfer of ownership
- Asking price
- € 969,000 kosten koper
- Listed since
-
- Status
- Available
- Acceptance
- Available in consultation
Construction
- Main use
- Retail outlet
- Alternative use(s)
- Office space
- Building type
- Resale property
- Construction period
- 1906-1930
Surface areas
- Area
- 76 m²
- Sales floor area
- 70 m²
- Front width
- 6 m
- Plot size
- 126 m²
Layout
- Number of floors
- 1 floor
- Living space
- Present (built-in, 0 m²)
Energy
- Energy label
- Not available
Surroundings
- Location
- Town center and railway station site
- Accessibility
- Bus stop in less than 500 m, Dutch Railways Intercity station in less than 500 m and motorway exit in 1500 m to 2000 m
- Shopkeepers' association contribution
- No
- Socio-economic classification
- B1
NVM real estate agent
Photos












