Augustijnenstraat 23 6511 KD Nijmegen
- Rented
€ 15,000 /yr

Description
OBJECTOMSCHRIJVING
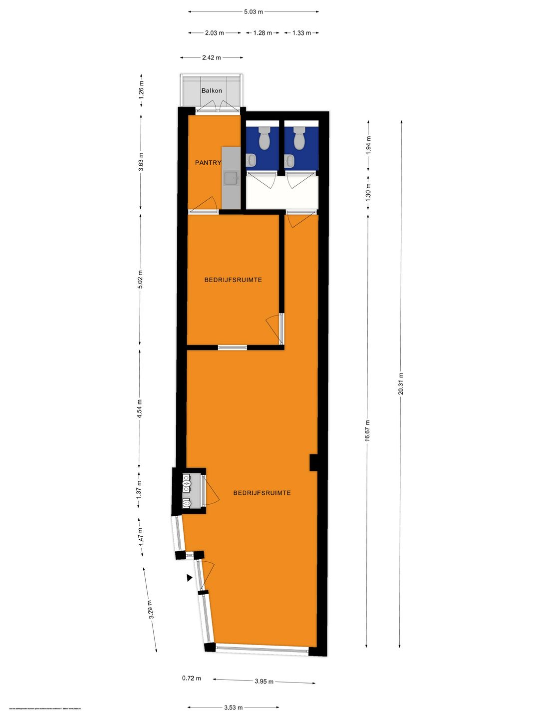
Het betreft een instapklare winkelruimte van ca. 56 m², gelegen op de begane grond en op een steenworp afstand van de HEMA en de levendige Grote Markt. Gelegen op een B1-locatie in het bruisende stadscentrum van Nijmegen, biedt deze ruimte volop kansen voor ondernemers die centraal willen zitten.
De winkelruimte is voorzien van onder andere een nette pantry, twee toiletruimtes, een klein balkon aan de achterzijde en beschikt tevens over airconditioning.
LOCATIE
De winkelruimte is gelegen op een goede locatie in de binnenstad van Nijmegen en ligt aan de aanlooproute van station Nijmegen centraal naar het centrum. De winkelruimte is zowel per eigen vervoer als openbaar vervoer uitstekend bereikbaar. Station Nijmegen en busstation Plein 1944 zijn op loopafstand gelegen.
Komende jaren zal de Augustijnenstraat volledig worden heringericht, waarbij de straat nog aantrekkelijker wordt gemaakt voor het winkelend publiek.
De winkelruimte is zowel per auto als met openbaar vervoer goed bereikbaar. In de binnenstad van Nijmegen zijn diverse parkeergarages gelegen waar, tegen betaling, geparkeerd kan worden. Parkeergarages Kelfkensbos en Eiermarkt zijn op korte loopafstand gelegen. In de omgeving zijn diverse bushaltes te vinden en tevens is het Centraal Station van Nijmegen op 10 minuten loopafstand.
VLOEROPPERVLAKTE
De winkelruimte heeft een totale oppervlakte van ca. 56 m².
FRONTBREEDTE
Ca. 4 meter
OPLEVERINGSNIVEAU
De winkelruimte wordt op casco-basis, vrij van huur en gebruik opgeleverd. Onderhoud en vervanging van aanwezige voorzieningen komt geheel voor rekening van huurder. Aan het einde van de huurovereenkomst dienen zaken goed functionerend, behoudens gebruikelijke slijtage, om niet aan verhuurder terug geleverd te worden.
BESTEMMING
De voor 'Gemengd - 3' aangewezen gronden zijn bestemd voor onder andere:
• cultuur en ontspanning;
• detailhandel;
• bedrijven voor zover deze voorkomen in categorie 1 of 2 van de Staat van bedrijfsactiviteiten;
• ter plaatse van de aanduiding 'specifieke vorm van dienstverlening-20%' is tevens dienstverlening toegestaan tot maximaal 20% van de totale oppervlakte van de begane grond van de panden binnen deze aanduiding;
• ondersteunende horeca zoals bedoeld in artikel 32.4.
HUURPRIJS
€ 15.000,- excl. BTW per jaar.
SERVICEKOSTEN
Voor rekening van huurder komen alle kosten verbonden aan de levering, het gebruik, het vastrecht en de meteropname afsluiting in het gehuurde van gas, water en elektra. Huurder dient hiervoor zelfstandig met de hiervoor verantwoordelijke nutsbedrijven overeenkomsten aan te gaan.
HUURTERMIJN
5 (vijf) + 5 (vijf) jaar.
HUURBETALING
Per maand vooruit.
ZEKERHEIDSSTELLING
Afhankelijk van de financiële gegoedheid van de huurder dient er een bankgarantie of waarborgsom ter grootte van minimaal drie maanden huur, te vermeerderen met een bedrag te hoogte van geldende BTW, gesteld of overgemaakt te worden.
HUURPRIJSINDEXATIE
De huurprijs zal jaarlijks, voor het eerst één jaar na de ingangsdatum, worden aangepast op basis van het consumentenprijsindexcijfer (reeks CPI Alle huishoudens, basisjaar 2015 = 100) gepubliceerd door het Centraal Bureau voor de Statistiek (CBS).
HUUROVEREENKOMST
Op basis van het model door de Raad voor Onroerende Zaken (ROZ) vastgesteld, model winkelruimte en andere bedrijfsruimte in de zin van artikel 7:290 BW met standaard algemene bepalingen.
AANVAARDING
Per direct.
BIJZONDERHEDEN
Eventuele huurtransacties dienen ter goedkeuring te worden voorgelegd aan opdrachtgever c.q. eigenaar van het gebouw. Tot deze goedkeuring verleend is, zijn alle uitgebrachte aanbiedingen geheel vrijblijvend.
Heeft dit uw interesse gewekt, dan nodigen wij u van harte uit het pand eens van binnen te komen bekijken!
Het betreft een instapklare winkelruimte van ca. 56 m², gelegen op de begane grond en op een steenworp afstand van de HEMA en de levendige Grote Markt. Gelegen op een B1-locatie in het bruisende stadscentrum van Nijmegen, biedt deze ruimte volop kansen voor ondernemers die centraal willen zitten.
De winkelruimte is voorzien van onder andere een nette pantry, twee toiletruimtes, een klein balkon aan de achterzijde en beschikt tevens over airconditioning.
LOCATIE
De winkelruimte is gelegen op een goede locatie in de binnenstad van Nijmegen en ligt aan de aanlooproute van station Nijmegen centraal naar het centrum. De winkelruimte is zowel per eigen vervoer als openbaar vervoer uitstekend bereikbaar. Station Nijmegen en busstation Plein 1944 zijn op loopafstand gelegen.
Komende jaren zal de Augustijnenstraat volledig worden heringericht, waarbij de straat nog aantrekkelijker wordt gemaakt voor het winkelend publiek.
De winkelruimte is zowel per auto als met openbaar vervoer goed bereikbaar. In de binnenstad van Nijmegen zijn diverse parkeergarages gelegen waar, tegen betaling, geparkeerd kan worden. Parkeergarages Kelfkensbos en Eiermarkt zijn op korte loopafstand gelegen. In de omgeving zijn diverse bushaltes te vinden en tevens is het Centraal Station van Nijmegen op 10 minuten loopafstand.
VLOEROPPERVLAKTE
De winkelruimte heeft een totale oppervlakte van ca. 56 m².
FRONTBREEDTE
Ca. 4 meter
OPLEVERINGSNIVEAU
De winkelruimte wordt op casco-basis, vrij van huur en gebruik opgeleverd. Onderhoud en vervanging van aanwezige voorzieningen komt geheel voor rekening van huurder. Aan het einde van de huurovereenkomst dienen zaken goed functionerend, behoudens gebruikelijke slijtage, om niet aan verhuurder terug geleverd te worden.
BESTEMMING
De voor 'Gemengd - 3' aangewezen gronden zijn bestemd voor onder andere:
• cultuur en ontspanning;
• detailhandel;
• bedrijven voor zover deze voorkomen in categorie 1 of 2 van de Staat van bedrijfsactiviteiten;
• ter plaatse van de aanduiding 'specifieke vorm van dienstverlening-20%' is tevens dienstverlening toegestaan tot maximaal 20% van de totale oppervlakte van de begane grond van de panden binnen deze aanduiding;
• ondersteunende horeca zoals bedoeld in artikel 32.4.
HUURPRIJS
€ 15.000,- excl. BTW per jaar.
SERVICEKOSTEN
Voor rekening van huurder komen alle kosten verbonden aan de levering, het gebruik, het vastrecht en de meteropname afsluiting in het gehuurde van gas, water en elektra. Huurder dient hiervoor zelfstandig met de hiervoor verantwoordelijke nutsbedrijven overeenkomsten aan te gaan.
HUURTERMIJN
5 (vijf) + 5 (vijf) jaar.
HUURBETALING
Per maand vooruit.
ZEKERHEIDSSTELLING
Afhankelijk van de financiële gegoedheid van de huurder dient er een bankgarantie of waarborgsom ter grootte van minimaal drie maanden huur, te vermeerderen met een bedrag te hoogte van geldende BTW, gesteld of overgemaakt te worden.
HUURPRIJSINDEXATIE
De huurprijs zal jaarlijks, voor het eerst één jaar na de ingangsdatum, worden aangepast op basis van het consumentenprijsindexcijfer (reeks CPI Alle huishoudens, basisjaar 2015 = 100) gepubliceerd door het Centraal Bureau voor de Statistiek (CBS).
HUUROVEREENKOMST
Op basis van het model door de Raad voor Onroerende Zaken (ROZ) vastgesteld, model winkelruimte en andere bedrijfsruimte in de zin van artikel 7:290 BW met standaard algemene bepalingen.
AANVAARDING
Per direct.
BIJZONDERHEDEN
Eventuele huurtransacties dienen ter goedkeuring te worden voorgelegd aan opdrachtgever c.q. eigenaar van het gebouw. Tot deze goedkeuring verleend is, zijn alle uitgebrachte aanbiedingen geheel vrijblijvend.
Heeft dit uw interesse gewekt, dan nodigen wij u van harte uit het pand eens van binnen te komen bekijken!
Features
Transfer of ownership
- Last rental price
- € 15,000 per year
- Listed since
-
- Status
- Rented
Construction
- Main use
- Retail outlet with showroom
- Building type
- Resale property
- Year of construction
- 1955
Surface areas
- Area
- 56 m²
- Sales floor area
- 56 m²
- Front width
- 4 m
- Plot size
- 191 m²
Layout
- Number of floors
- 1 floor
Energy
- Energy label
- A+
Surroundings
- Location
- Town center
- Shopkeepers' association contribution
- No
- Socio-economic classification
- B1
NVM real estate agent
Photos
















