Edeseweg 101 6733 AD Wekerom
Rental price on request
Description
Nieuwbouw winkelruimten beschikbaar, gelegen in het centrum van Wekerom (gemeente Ede). De winkelruimten maken onderdeel uit van een appartementencomplex, commerciële ruimte op de begane grond en een parkeerkelder. Het geheel kenmerkt zich door de authentieke industriële uitstraling.
De nieuw gebouwde winkelruimten beschikken over een eigen, volledig te openen pui welke gericht zijn aan de doorgaande weg. Daarnaast grenzen de winkels aan een overdekte corridor, waar dagelijks veel publiek langskomt van onder andere de Albert Heijn, de Welkoop en een bakkerij. Er zijn ruime parkeerfaciliteiten gelegen op het maaiveld en in de goed bereikbare parkeerkelder.
Verhuurder is indien gewenst, bereid duurzame investeringen te doen ten behoeve van een huurder.
Deze investering zal op basis van rente en aflossing worden verdisconteerd in de huurprijs.
Objectgegevens
Winkelruimten gelegen aan de Edeseweg 101, 6733 AD te Wekerom.
Beschikbare vloeroppervlakte
Winkelruimte I
Verhuurd
Winkelruimte II
circa 166 m²
Winkelruimte III
Verhuurd
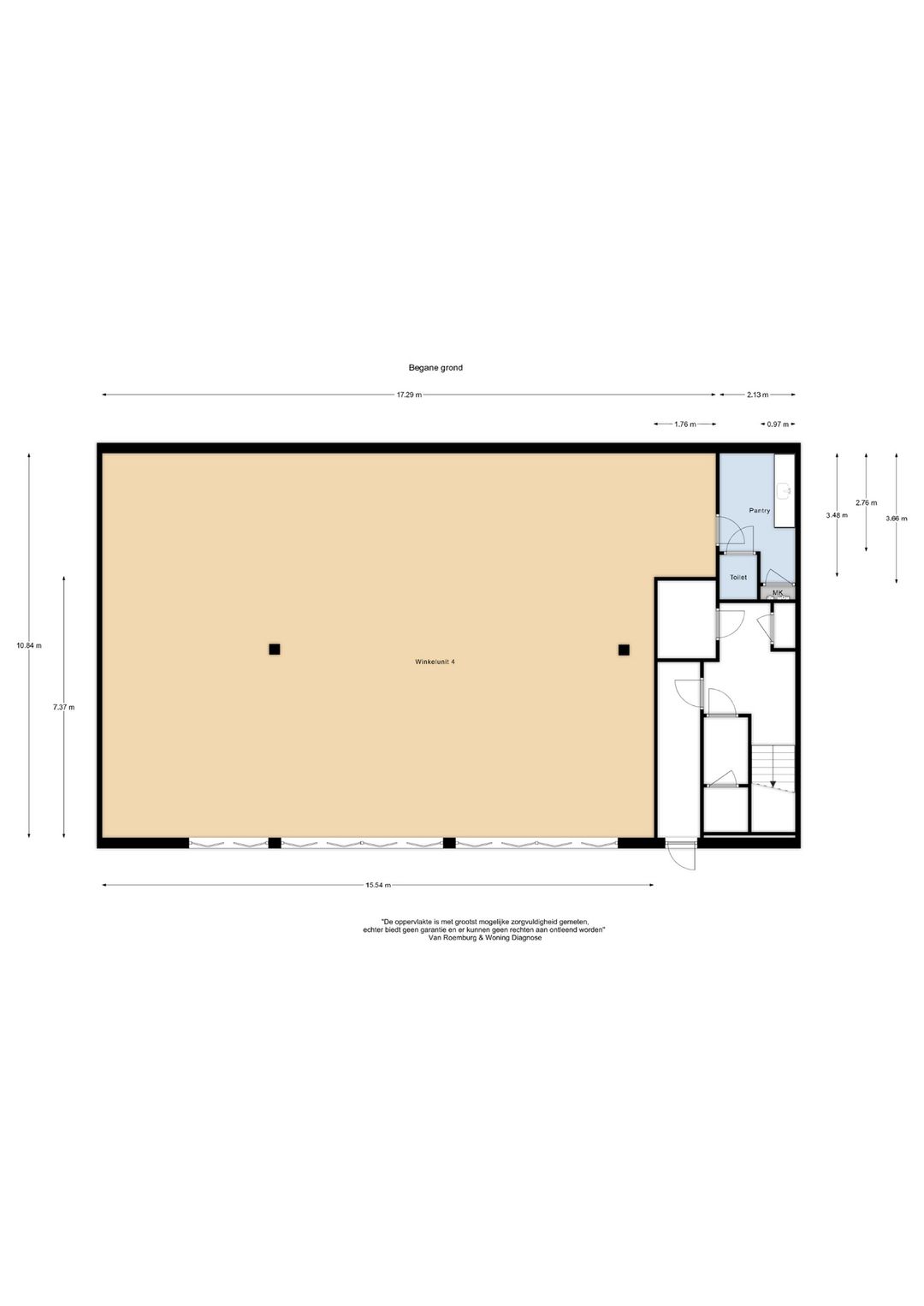
Winkelruimte IV
circa 186 m²
Winkelruimte V
circa 314 m²
Winkelruimte VI
circa 345 m²
Opleveringsniveau
Casco, doch voorzien van:
- Meterkast
- Monoliet afgewerkte betonvloer
- Vloerslangen in vloer
- Aansluiting ten behoeve van pantry en toilet
- Glasvezelaansluiting
Parkeervoorzieningen
Parkeerplaatsen direct voor en in de directe omgeving van de winkelruimten.
Bereikbaarheid
De ontwikkelingslocatie is eenvoudig te bereiken via de nabij gelegen rijkswegen, provinciale wegen en middels het openbaar vervoer. De lijnbushalte bevindt zich op circa 160 meter (circa 1 minuut) loopafstand.
De op- / en afritten van de rijksweg A1 (Amsterdam - Hengelo) zijn gesitueerd op circa 12 km (12 minuten) rijafstand;
De op- / en afritten van de rijksweg A30 (Barneveld - Ede) zijn gesitueerd op circa 13 km (15 minuten) rijafstand;
De op- / en afritten van de rijksweg A12 (Den Haag - Zevenaar) zijn gesitueerd op circa 18 km (18 minuten) rijafstand.
De provinciale weg N304 (Otterlo - Hoenderloo) bevindt zich op circa 4 km (circa 4 minuten) rijafstand en de provinciale weg N310 (Otterlo - Stroe) bevindt zich op circa 4,5 km (circa 5 minuten) rijafstand.
HUURVOORWAARDEN
Huurprijs
Op aanvraag.
Ingangsdatum
In overleg.
Huurtermijn
In overleg, beoogd wordt een minimale huurtermijn van 5 jaar.
Huurbetaling
Per maand vooruit.
Aanvaarding
In overleg.
Zekerheidstelling
Waarborgsom ter grootte van 3 maanden huur, te vermeerderen met BTW.
Huurprijsindexering
Jaarlijks, voor het eerst één jaar na huur ingangsdatum, op basis van de wijziging van het maand prijsindexcijfer volgens de consumentenprijsindex (CPI) reeks CPI-Alle Huishoudens (2015 = 100), gepubliceerd door het Centraal Bureau voor de Statistiek (CBS).
Openingstijden
Het is huurder bekend dat verhuurder geen bedrijfsactiviteiten op zondagen in het gehuurde wenst, behoudens in geval van calamiteiten. Tevens is het huurder bekend dat de (nog te vestigen) exploitaties gelijke openingstijden dienen te handteren, volgens de gebruikelijke lokale openingstijden, vastgesteld door de gemeente Ede.
Servicediensten
Verhuurder zal, ter waarborging van een goede blijvende uitstraling, navolgende (basis) diensten laten uitvoeren:
- Schoonmaak en verwarming van de corridor;
- Onderhoud, reparatie en periodieke controle algemene beveiligingsinstallatie;
- Onderhoud, reparatie en periodieke controle ontruimingsinstallatie;
- Onderhoud, reparatie en periodieke controle WKO installatie;
- Onderhoud, reparatie en periodieke controle van overige aanwezige gebouw gebonden installaties;
- Verwarming hellingbaan van de parkeerkelder;
- Schoonmaak van de verkeersruimte;
- Onkruidvrij houden bestrating rondom het gehuurde;
- Onderhoud van aanwezig groen rondom het gehuurde;
- Glasbewassing en kozijnbewassing, ten minste 4x per jaar (buiten); en
- Gevelreiniging, ten minste 1x per jaar.
Servicekosten
€ 20,- per m²/jaar, exclusief BTW.
DOWNLOAD DE BROCHURE OP ONZE WEBSITE MNM.NL.
Alle informatie is geheel vrijblijvend en onder voorbehoud. Hieraan kunnen geen rechten worden ontleend.
De nieuw gebouwde winkelruimten beschikken over een eigen, volledig te openen pui welke gericht zijn aan de doorgaande weg. Daarnaast grenzen de winkels aan een overdekte corridor, waar dagelijks veel publiek langskomt van onder andere de Albert Heijn, de Welkoop en een bakkerij. Er zijn ruime parkeerfaciliteiten gelegen op het maaiveld en in de goed bereikbare parkeerkelder.
Verhuurder is indien gewenst, bereid duurzame investeringen te doen ten behoeve van een huurder.
Deze investering zal op basis van rente en aflossing worden verdisconteerd in de huurprijs.
Objectgegevens
Winkelruimten gelegen aan de Edeseweg 101, 6733 AD te Wekerom.
Beschikbare vloeroppervlakte
Winkelruimte I
Verhuurd
Winkelruimte II
circa 166 m²
Winkelruimte III
Verhuurd
Winkelruimte IV
circa 186 m²
Winkelruimte V
circa 314 m²
Winkelruimte VI
circa 345 m²
Opleveringsniveau
Casco, doch voorzien van:
- Meterkast
- Monoliet afgewerkte betonvloer
- Vloerslangen in vloer
- Aansluiting ten behoeve van pantry en toilet
- Glasvezelaansluiting
Parkeervoorzieningen
Parkeerplaatsen direct voor en in de directe omgeving van de winkelruimten.
Bereikbaarheid
De ontwikkelingslocatie is eenvoudig te bereiken via de nabij gelegen rijkswegen, provinciale wegen en middels het openbaar vervoer. De lijnbushalte bevindt zich op circa 160 meter (circa 1 minuut) loopafstand.
De op- / en afritten van de rijksweg A1 (Amsterdam - Hengelo) zijn gesitueerd op circa 12 km (12 minuten) rijafstand;
De op- / en afritten van de rijksweg A30 (Barneveld - Ede) zijn gesitueerd op circa 13 km (15 minuten) rijafstand;
De op- / en afritten van de rijksweg A12 (Den Haag - Zevenaar) zijn gesitueerd op circa 18 km (18 minuten) rijafstand.
De provinciale weg N304 (Otterlo - Hoenderloo) bevindt zich op circa 4 km (circa 4 minuten) rijafstand en de provinciale weg N310 (Otterlo - Stroe) bevindt zich op circa 4,5 km (circa 5 minuten) rijafstand.
HUURVOORWAARDEN
Huurprijs
Op aanvraag.
Ingangsdatum
In overleg.
Huurtermijn
In overleg, beoogd wordt een minimale huurtermijn van 5 jaar.
Huurbetaling
Per maand vooruit.
Aanvaarding
In overleg.
Zekerheidstelling
Waarborgsom ter grootte van 3 maanden huur, te vermeerderen met BTW.
Huurprijsindexering
Jaarlijks, voor het eerst één jaar na huur ingangsdatum, op basis van de wijziging van het maand prijsindexcijfer volgens de consumentenprijsindex (CPI) reeks CPI-Alle Huishoudens (2015 = 100), gepubliceerd door het Centraal Bureau voor de Statistiek (CBS).
Openingstijden
Het is huurder bekend dat verhuurder geen bedrijfsactiviteiten op zondagen in het gehuurde wenst, behoudens in geval van calamiteiten. Tevens is het huurder bekend dat de (nog te vestigen) exploitaties gelijke openingstijden dienen te handteren, volgens de gebruikelijke lokale openingstijden, vastgesteld door de gemeente Ede.
Servicediensten
Verhuurder zal, ter waarborging van een goede blijvende uitstraling, navolgende (basis) diensten laten uitvoeren:
- Schoonmaak en verwarming van de corridor;
- Onderhoud, reparatie en periodieke controle algemene beveiligingsinstallatie;
- Onderhoud, reparatie en periodieke controle ontruimingsinstallatie;
- Onderhoud, reparatie en periodieke controle WKO installatie;
- Onderhoud, reparatie en periodieke controle van overige aanwezige gebouw gebonden installaties;
- Verwarming hellingbaan van de parkeerkelder;
- Schoonmaak van de verkeersruimte;
- Onkruidvrij houden bestrating rondom het gehuurde;
- Onderhoud van aanwezig groen rondom het gehuurde;
- Glasbewassing en kozijnbewassing, ten minste 4x per jaar (buiten); en
- Gevelreiniging, ten minste 1x per jaar.
Servicekosten
€ 20,- per m²/jaar, exclusief BTW.
DOWNLOAD DE BROCHURE OP ONZE WEBSITE MNM.NL.
Alle informatie is geheel vrijblijvend en onder voorbehoud. Hieraan kunnen geen rechten worden ontleend.
Features
Transfer of ownership
- Rental price
- Rental price on request
- First rental price
- € 150 per square meter per year
- Listed since
-
- Status
- Available
- Acceptance
- Available in consultation
Construction
- Main use
- Retail outlet with showroom
- Building type
- Resale property
- Year of construction
- Currently under construction
Surface areas
- Area
- 1,074 m² (units from 63 m²)
- Sales floor area
- 1,074 m²
Layout
- Number of floors
- 1 floor
Energy
- Energy label
- Not available
Surroundings
- Location
- Shopping center and in residential district
- Shopkeepers' association contribution
- No
- Socio-economic classification
- A1
NVM real estate agent
Photos