Zuster Meyboomlaan 10 7334 DV Apeldoorn
Price negotiable

Description
TIJDELIJK TE HUUR AANGEBODEN
Bent u op zoek naar een TIJDELIJKE woonzorglocatie, bijvoorbeeld vanwege een verbouwing, nieuwbouw of een calamiteit en bent u actief in het sociaal-maatschappelijk-publieke domein? In het verpleeghuis Randerode van Zorggroep Apeldoorn wordt een vleugel van de 3e verdieping TIJDELIJK te huur aangeboden. De vleugel, bestaande uit 17 woonzorgstudio’s, twee gezamenlijke huiskamers, diverse ondersteunende ruimten en gemeenschappelijk sanitair op de gang, is per direct en tot en met 31 mei 2027, beschikbaar voor de verhuur.
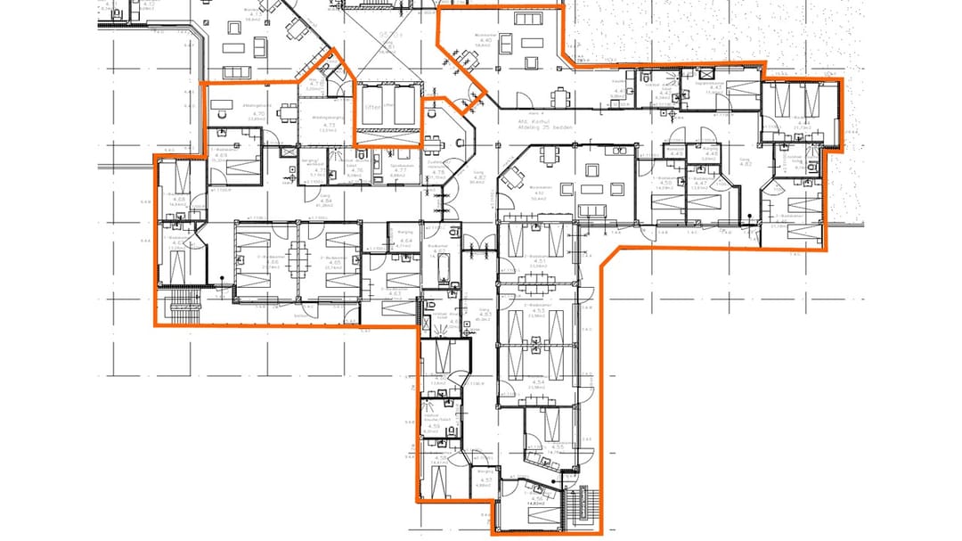
3e VERDIEPING
De vleugel op de 3e verdieping bestaat uit 17 woonzorgeenheden van verschillende omvang (14-24 m²), met in totaal een oppervlakte van circa 925 m², inclusief huiskamers, diverse ondersteunende ruimten en gemeenschappelijk sanitair op de gangen.
Randerode is grotendeels voor ouderenzorg in eigen gebruik bij Zorggroep Apeldoorn en wordt medio 2028 gesloopt om plaats te maken voor woningbouw. De afgelopen jaren is de verdieping door Zorggroep Apeldoorn zelf gebruikt voor ouderenzorg. De basisvoorzieningen zijn dan ook aanwezig, mogelijk dat voor specifieke doelgroepen aanpassingen gedaan moeten worden. De verdieping is technisch in voldoende en nette staat, maar kent – afhankelijk van de doelgroep – mogelijk functionele beperkingen. Gelet op de voorgenomen sloop zal onderhoud - los van het noodzakelijke - niet meer plaatsvinden. Onderhoud, schoonmaak etc. aan de binnenzijde is de verantwoordelijkheid van de huurder.
BEOOGD GEBRUIK
De toegang tot de 3e verdieping verloopt via de centrale entree met trappenhuis en liften, waardoor cliënten, medewerkers, mantelzorgers en verwanten van Zorggroep Apeldoorn en de nieuwe gebruiker elkaar tegenkomen. Zorggroep Apeldoorn is daarom nadrukkelijk op zoek naar één huurder voor de 17 woonzorgstudio’s, waarvan het gebruik passend bij - en zo mogelijk complementair - is aan de zorg- en welzijnsactiviteiten van Zorggroep Apeldoorn.
Organisaties die huisvesting voor (arbeids)migranten, tijdelijke woonvormen of andere vergelijkbare vormen van huisvesting beogen, worden daarom vriendelijk verzocht niet te reageren.
RANDERODE
Randerode ligt op een prachtige locatie in de bossen aan de zuidrand van Apeldoorn, vlakbij Gelre Ziekenhuizen en het dorp Ugchelen. In verpleeghuis Randerode wonen ongeveer 165 mensen die er tijdelijk of voor langere tijd kunnen verblijven.
De wandelpaden in de eigen tuinen zijn voorzien van bankjes en zitjes, waardoor het een fijne plek is om te ontspannen. Daarnaast heeft Randerode verschillende binnentuinen en terrassen waar bewoners van kunnen genieten. Het dierenparkje, de vijver, de volières, de kas en de bloementuin zijn allemaal plekjes die uitnodigen om regelmatig naar buiten te gaan.
Randerode is goed bereikbaar, zowel met eigen vervoer als met openbaar vervoer; de bus stopt voor de deur.
OPLEVERINGSNIVEAU
Het complex wordt in de huidige staat, “as-is, where-is”, te huur aangeboden.
HUURPRIJS
Op aanvraag en in overleg. Uitgangspunt is “as is-where is” en conveniërend met de bekostigingssystematiek van de beoogde doelgroep, dus NHC dan wel vergelijkbare huisvestingscomponent.
UITGANGSPUNTEN HUUROVEREENKOMST
Tijdelijke huurovereenkomst tot uiterlijk 31 mei 2027 op basis van artikel 7:230a BW ROZ modelhuurovereenkomst. Indexatie op basis van CPI.
Kosten voor nutsvoorzieningen en overige facilitaire zaken worden naar rato en/of naar gebruik in rekening gebracht.
BESTEMMINGSPLAN
Bestemming Maatschappelijk.
Voor meer informatie over de vestigingsmogelijkheden binnen de vigerende bestemming wordt verwezen naar de gemeente Apeldoorn of bekijk de mogelijkheden in het Omgevingsloket.
ENERGIELABEL
Energielabel is niet aanwezig en zal ook niet worden aangevraagd.
VOORBEHOUD
Verhuur is onder voorbehoud van goedkeuring door het College Sanering Zorginstellingen en de Raad van Bestuur van Zorggroep Apeldoorn.
INTERESSE
Interesse? Neem dan contact met ons op voor meer informatie of een bezichtiging. Samen verkennen we graag de mogelijkheden!
VERHUREND MAKELAAR
Epic Zorgvastgoed verzorgt namens Zorggroep Apeldoorn de verhuur van de vleugel. Voor meer informatie of een bezichtiging kunt u een e-mail sturen aan of tijdens kantoortijden (maandag t/m vrijdag, 8.00 uur – 18.00 uur) bellen met +31 6 531 97 432.
DISCLAIMER
De door Epic Zorgvastgoed verstrekte informatie dient gezien te worden als een uitnodiging tot nader overleg. Hoewel deze informatie met de grootst mogelijke zorg is samengesteld, wordt noch door de makelaar, noch door diens opdrachtgever ingestaan c.q. aansprakelijkheid aanvaard voor de juistheid dan wel volledigheid van de verstrekte, nog te verstrekken of vermelde gegevens. Aan afwijkingen in de tekst, maten en tekeningen kunnen dan ook geen rechten worden ontleend.
Bent u op zoek naar een TIJDELIJKE woonzorglocatie, bijvoorbeeld vanwege een verbouwing, nieuwbouw of een calamiteit en bent u actief in het sociaal-maatschappelijk-publieke domein? In het verpleeghuis Randerode van Zorggroep Apeldoorn wordt een vleugel van de 3e verdieping TIJDELIJK te huur aangeboden. De vleugel, bestaande uit 17 woonzorgstudio’s, twee gezamenlijke huiskamers, diverse ondersteunende ruimten en gemeenschappelijk sanitair op de gang, is per direct en tot en met 31 mei 2027, beschikbaar voor de verhuur.
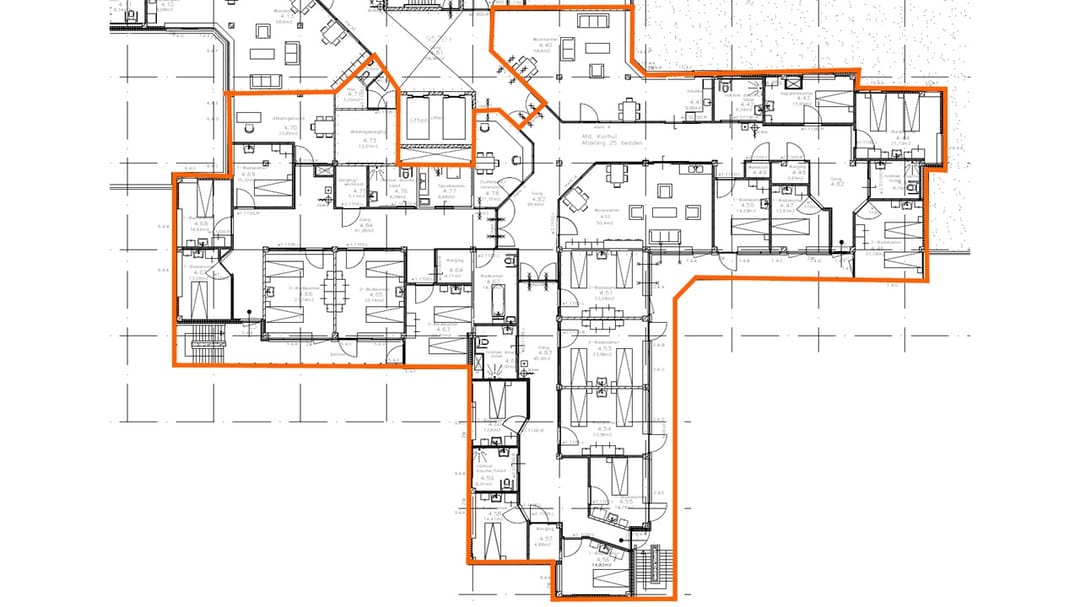
3e VERDIEPING
De vleugel op de 3e verdieping bestaat uit 17 woonzorgeenheden van verschillende omvang (14-24 m²), met in totaal een oppervlakte van circa 925 m², inclusief huiskamers, diverse ondersteunende ruimten en gemeenschappelijk sanitair op de gangen.
Randerode is grotendeels voor ouderenzorg in eigen gebruik bij Zorggroep Apeldoorn en wordt medio 2028 gesloopt om plaats te maken voor woningbouw. De afgelopen jaren is de verdieping door Zorggroep Apeldoorn zelf gebruikt voor ouderenzorg. De basisvoorzieningen zijn dan ook aanwezig, mogelijk dat voor specifieke doelgroepen aanpassingen gedaan moeten worden. De verdieping is technisch in voldoende en nette staat, maar kent – afhankelijk van de doelgroep – mogelijk functionele beperkingen. Gelet op de voorgenomen sloop zal onderhoud - los van het noodzakelijke - niet meer plaatsvinden. Onderhoud, schoonmaak etc. aan de binnenzijde is de verantwoordelijkheid van de huurder.
BEOOGD GEBRUIK
De toegang tot de 3e verdieping verloopt via de centrale entree met trappenhuis en liften, waardoor cliënten, medewerkers, mantelzorgers en verwanten van Zorggroep Apeldoorn en de nieuwe gebruiker elkaar tegenkomen. Zorggroep Apeldoorn is daarom nadrukkelijk op zoek naar één huurder voor de 17 woonzorgstudio’s, waarvan het gebruik passend bij - en zo mogelijk complementair - is aan de zorg- en welzijnsactiviteiten van Zorggroep Apeldoorn.
Organisaties die huisvesting voor (arbeids)migranten, tijdelijke woonvormen of andere vergelijkbare vormen van huisvesting beogen, worden daarom vriendelijk verzocht niet te reageren.
RANDERODE
Randerode ligt op een prachtige locatie in de bossen aan de zuidrand van Apeldoorn, vlakbij Gelre Ziekenhuizen en het dorp Ugchelen. In verpleeghuis Randerode wonen ongeveer 165 mensen die er tijdelijk of voor langere tijd kunnen verblijven.
De wandelpaden in de eigen tuinen zijn voorzien van bankjes en zitjes, waardoor het een fijne plek is om te ontspannen. Daarnaast heeft Randerode verschillende binnentuinen en terrassen waar bewoners van kunnen genieten. Het dierenparkje, de vijver, de volières, de kas en de bloementuin zijn allemaal plekjes die uitnodigen om regelmatig naar buiten te gaan.
Randerode is goed bereikbaar, zowel met eigen vervoer als met openbaar vervoer; de bus stopt voor de deur.
OPLEVERINGSNIVEAU
Het complex wordt in de huidige staat, “as-is, where-is”, te huur aangeboden.
HUURPRIJS
Op aanvraag en in overleg. Uitgangspunt is “as is-where is” en conveniërend met de bekostigingssystematiek van de beoogde doelgroep, dus NHC dan wel vergelijkbare huisvestingscomponent.
UITGANGSPUNTEN HUUROVEREENKOMST
Tijdelijke huurovereenkomst tot uiterlijk 31 mei 2027 op basis van artikel 7:230a BW ROZ modelhuurovereenkomst. Indexatie op basis van CPI.
Kosten voor nutsvoorzieningen en overige facilitaire zaken worden naar rato en/of naar gebruik in rekening gebracht.
BESTEMMINGSPLAN
Bestemming Maatschappelijk.
Voor meer informatie over de vestigingsmogelijkheden binnen de vigerende bestemming wordt verwezen naar de gemeente Apeldoorn of bekijk de mogelijkheden in het Omgevingsloket.
ENERGIELABEL
Energielabel is niet aanwezig en zal ook niet worden aangevraagd.
VOORBEHOUD
Verhuur is onder voorbehoud van goedkeuring door het College Sanering Zorginstellingen en de Raad van Bestuur van Zorggroep Apeldoorn.
INTERESSE
Interesse? Neem dan contact met ons op voor meer informatie of een bezichtiging. Samen verkennen we graag de mogelijkheden!
VERHUREND MAKELAAR
Epic Zorgvastgoed verzorgt namens Zorggroep Apeldoorn de verhuur van de vleugel. Voor meer informatie of een bezichtiging kunt u een e-mail sturen aan of tijdens kantoortijden (maandag t/m vrijdag, 8.00 uur – 18.00 uur) bellen met +31 6 531 97 432.
DISCLAIMER
De door Epic Zorgvastgoed verstrekte informatie dient gezien te worden als een uitnodiging tot nader overleg. Hoewel deze informatie met de grootst mogelijke zorg is samengesteld, wordt noch door de makelaar, noch door diens opdrachtgever ingestaan c.q. aansprakelijkheid aanvaard voor de juistheid dan wel volledigheid van de verstrekte, nog te verstrekken of vermelde gegevens. Aan afwijkingen in de tekst, maten en tekeningen kunnen dan ook geen rechten worden ontleend.
Features
Transfer of ownership
- Rental price
- Rental amount negotiable
- Listed since
-
- Status
- Available
- Acceptance
- Available immediately
Construction
- Main use
- Health care institution
- Building type
- Resale property
- Year of construction
- 1976
Surface areas
- Area
- 925 m²
Energy
- Energy label
- Not available
Real estate agent
Photos




















