Zonnelaan 259 9742 BG Groningen
€ 285.000 k.k.

Omschrijving
Bent u op zoek naar een instapklare horecazaak op een uitstekende locatie? Aan de Zonnelaan 259 in Groningen bieden wij een goedlopende snackbar te koop aan, gelegen aan de buitenzijde van Winkelcentrum Paddepoel – een van de drukstbezochte winkelcentra van Noord-Nederland. Dit pand is bij uitstek geschikt voor (startende) horecaondernemers, beleggers of ondernemers die willen uitbreiden met een afhaal- en bezorglocatie. Dankzij de strategische ligging trekt deze locatie dagelijks een hoge passantenstroom van winkelend publiek, studenten, bewoners en forensen.
Oppervlakte
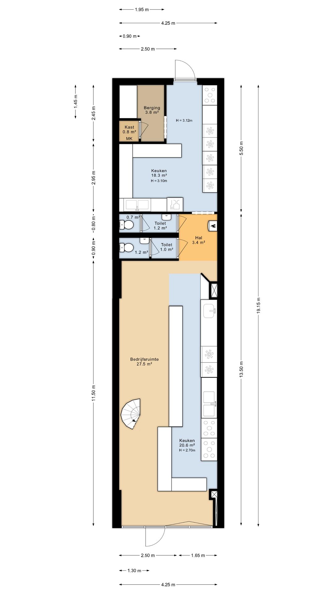
- Begane grond: circa 81 m2
- Verdieping: circa 42 m2
Ligging en bereikbaarheid
De snackbar is gevestigd in de levendige wijk Paddepoel, aan een drukke verkeersader in Groningen. Dankzij de ligging aan de buitenzijde van het overdekte Winkelcentrum Paddepoel geniet de zaak van uitstekende zichtbaarheid. Het winkelcentrum biedt een breed aanbod aan winkels en voorzieningen, wat zorgt voor een constante aanloop van bezoekers.
De bereikbaarheid is uitstekend:
- Auto: direct gelegen aan een doorgaande weg met ruime parkeergelegenheid
- Openbaar vervoer: bushalte op loopafstand met directe verbindingen naar het centrum en station
- Fiets: uitstekend bereikbaar via meerdere fietsroutes en fietspaden
Parkeren
Er is voldoende (betaalde) parkeergelegenheid in de directe omgeving van het winkelcentrum. Zowel bezoekers als personeel kunnen gemakkelijk parkeren op de nabijgelegen parkeerterreinen.
Bestemmingsplan
De voor 'centrum' aangewezen gronden zijn bestemd voor:
a. detailhandel;
b. zakelijke dienstverlening;
c. wonen, met dien verstande dat deze functie niet is toegestaan op de begane grond;
d. logies met ontbijt, met dien verstande dat deze functie uitsluitend mag worden uitgeoefend in een woning en ten dienste van deze functie maximaal twee (slaap)kamers voor toeristisch-recreatief nachtverblijf mogen worden gebruikt;
e. horeca - 1, horeca - 2 en horeca - 3, inclusief daarbij behorende terrassen, met dien verstande dat deze functies uitsluitend zijn toegestaan op de begane grond;
f. additionele voorzieningen.
Opleveringsniveau
Op te vragen
Vereniging van Eigenaren
De bijdrage aan de Vereniging van Eigenaren (VvE) € 1.654,- per jaar.
Koopcondities
Vraagprijs pand: € 285.000,- k.k.
Overname exploitatie en inventaris: € 85.000,- exclusief btw.
De gehele inboedel is bij de verkoop inbegrepen.
Naast koop behoort ook huur tot de mogelijkheden; voor meer informatie hierover kunt u contact met ons opnemen.
Aanvaarding: In overleg
Zekerheidstelling: Waarborgsom of bankgarantie van 10% van de koopsom.
Goedkeuring
Het bovenstaande is onder finaal voorbehoud van de eigenaar.
Disclaimer: Ondanks dat deze publicatie met de grootst mogelijke zorgvuldigheid is samengesteld is de Online Bedrijfsmakelaar BV niet aansprakelijk te stellen voor onjuiste of onvolledige informatie die in deze publicatie vermeld staan. Aan deze gegevens kunnen geen rechten worden ontleend.
====================
Meer informatie ontvangen?
Benieuwd naar alle beschikbare informatie over dit horecaobject? Vraag dan nu, onder de grote contactbutton, de gratis objectbrochure voor de Zonnelaan 259 in Groningen aan en ontvang de objectbrochure binnen 5 minuten in uw mailbox. Uiteraard kunt u ook direct een geheel vrijblijvende bezichtiging met de beheerder van het pand inplannen.
Oppervlakte
- Begane grond: circa 81 m2
- Verdieping: circa 42 m2
Ligging en bereikbaarheid
De snackbar is gevestigd in de levendige wijk Paddepoel, aan een drukke verkeersader in Groningen. Dankzij de ligging aan de buitenzijde van het overdekte Winkelcentrum Paddepoel geniet de zaak van uitstekende zichtbaarheid. Het winkelcentrum biedt een breed aanbod aan winkels en voorzieningen, wat zorgt voor een constante aanloop van bezoekers.
De bereikbaarheid is uitstekend:
- Auto: direct gelegen aan een doorgaande weg met ruime parkeergelegenheid
- Openbaar vervoer: bushalte op loopafstand met directe verbindingen naar het centrum en station
- Fiets: uitstekend bereikbaar via meerdere fietsroutes en fietspaden
Parkeren
Er is voldoende (betaalde) parkeergelegenheid in de directe omgeving van het winkelcentrum. Zowel bezoekers als personeel kunnen gemakkelijk parkeren op de nabijgelegen parkeerterreinen.
Bestemmingsplan
De voor 'centrum' aangewezen gronden zijn bestemd voor:
a. detailhandel;
b. zakelijke dienstverlening;
c. wonen, met dien verstande dat deze functie niet is toegestaan op de begane grond;
d. logies met ontbijt, met dien verstande dat deze functie uitsluitend mag worden uitgeoefend in een woning en ten dienste van deze functie maximaal twee (slaap)kamers voor toeristisch-recreatief nachtverblijf mogen worden gebruikt;
e. horeca - 1, horeca - 2 en horeca - 3, inclusief daarbij behorende terrassen, met dien verstande dat deze functies uitsluitend zijn toegestaan op de begane grond;
f. additionele voorzieningen.
Opleveringsniveau
Op te vragen
Vereniging van Eigenaren
De bijdrage aan de Vereniging van Eigenaren (VvE) € 1.654,- per jaar.
Koopcondities
Vraagprijs pand: € 285.000,- k.k.
Overname exploitatie en inventaris: € 85.000,- exclusief btw.
De gehele inboedel is bij de verkoop inbegrepen.
Naast koop behoort ook huur tot de mogelijkheden; voor meer informatie hierover kunt u contact met ons opnemen.
Aanvaarding: In overleg
Zekerheidstelling: Waarborgsom of bankgarantie van 10% van de koopsom.
Goedkeuring
Het bovenstaande is onder finaal voorbehoud van de eigenaar.
Disclaimer: Ondanks dat deze publicatie met de grootst mogelijke zorgvuldigheid is samengesteld is de Online Bedrijfsmakelaar BV niet aansprakelijk te stellen voor onjuiste of onvolledige informatie die in deze publicatie vermeld staan. Aan deze gegevens kunnen geen rechten worden ontleend.
====================
Meer informatie ontvangen?
Benieuwd naar alle beschikbare informatie over dit horecaobject? Vraag dan nu, onder de grote contactbutton, de gratis objectbrochure voor de Zonnelaan 259 in Groningen aan en ontvang de objectbrochure binnen 5 minuten in uw mailbox. Uiteraard kunt u ook direct een geheel vrijblijvende bezichtiging met de beheerder van het pand inplannen.
Kenmerken
Overdracht
- Vraagprijs
- € 285.000 kosten koper
- Aangeboden sinds
-
- Status
- Beschikbaar
- Aanvaarding
- In overleg
Overname
- Bedrijfsovername
- € 85.000 (inventaris + goodwill 21% BTW van toepassing)
- Personeel
- Nee
Bouw
- Hoofdfunctie
- Horeca
- Soort horeca
- Snackbar, cafetaria, broodjeszaak en ijssalon
- Mogelijke functie(s)
- Winkelruimte
- Soort bouw
- Bestaande bouw
- Bouwjaar
- 1971
Oppervlakten
- Oppervlakte
- 125 m²
- Verkoopvloeroppervlakte
- 50 m²
Indeling
- Aantal bouwlagen
- 2 bouwlagen
- Gelegen op
- Begane grond
Energie
- Energielabel
- Niet beschikbaar
Omgeving
- Ligging
- Stadscentrum/dorpskern en winkelcentrum
Foto's

















