Bakkerstraat 30 6041 JR Roermond
- Nieuw
€ 21.000 /jr

Omschrijving
In de bruisende binnenstad van Roermond bieden wij u deze aantrekkelijke horecaruimte te huur aan. Het pand ligt in het centrum van Roermond aan de Bakkerstraat 30. In de aangrenzende straat zijn diverse bekende winkels gelegen zoals onder andere H&M, Etos, C&A, ICI Paris, Siebel Juweliers en Parfumerie Douglas.
Parkeren is onder andere mogelijk in de nabijgelegen parkeergarage de Oranjerie (Q-park, diverse parkeerabonnementen verkrijgbaar tegen aantrekkelijke voorwaarden).
De monumentale binnenstad van Roermond kenmerkt zich door haar ruime aanbod aan winkels en horecagelegenheden. Op slechts vijf minuten lopen bevindt zich het populaire Designer Outlet Roermond, dat jaarlijks miljoenen bezoekers trekt.
Met haar vele historische panden, kerken en sfeervolle pleinen vormt Roermond een gezellig en karaktervol winkelcentrum. De stad beschikt over een rijk cultureel aanbod en een goed gevulde evenementenkalender. Bovendien ligt het centrum op korte afstand van het uitgestrekte watersportgebied de Maasplassen en het prachtige natuurgebied Nationaal Park De Meinweg.
De combinatie van de binnenstad en het Designer Outlet zorgt ervoor dat Roermond qua bestedingsomvang tot de beste winkelgebieden van Nederland behoort. De belangrijkste reden voor bezoekers om Roermond te bezoeken is het uitgebreide winkelaanbod. Daarnaast scoort de stad hoog op bereikbaarheid, parkeertarieven, sfeer, gezelligheid en de kwaliteit van haar winkels en horeca.
Het object is uitstekend bereikbaar: het ligt nabij de verbindingsweg N280 en op slechts vijf autominuten van de A73, die een directe verbinding biedt met onder andere Düsseldorf. Deze infrastructuur draagt bij aan de goede bereikbaarheid en verdere groei van Roermond als ondernemende stad.
Kortom, Roermond biedt een uitstekend ondernemersklimaat met volop mogelijkheden voor horecabedrijven en ondernemers die op zoek zijn naar nieuwe kansen.
Parkeren:
In de directe omgeving ligt onder andere een Q-Park parkeergarage voor ruim 400 auto’s.
Metrage gegevens:
Horecaruimte (NEN 2580) : ± 110 m²
Kelderruimte (NEN 2580) : ± 45 m²
Huurprijs: € 1.750,-- per maand, excl. BTW
Bestemmingsplan:
Centrum-1 + functie-aanduiding: Horeca 2: restaurant, bistro, zaalaccommodatie, bar, café, pub, grand-café, eetcafé of taverne.
(U dient zelf bij de gemeente Roermond navraag te doen of uw bedrijfsactiviteiten vallen binnen het vigerende bestemmingsplan).
Indeling:
Begane grond
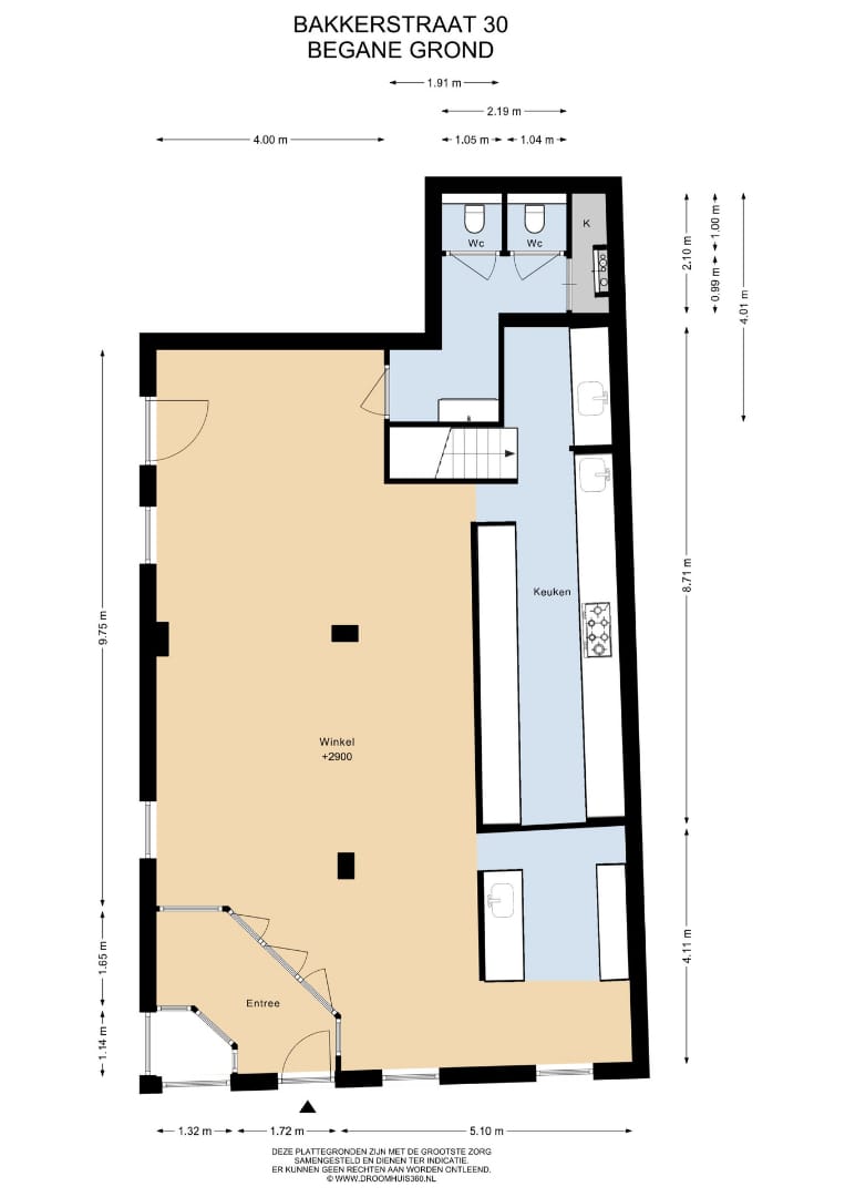
Via de entree met garderobe stapt u direct het gezellige restaurant binnen. De grote raampartijen zorgen voor een aangename lichtinval, terwijl de houtlook laminaatvloer het interieur een warme, uitnodigende sfeer geeft.
Centraal in het restaurant bevindt zich de open keuken, volledig ingericht met professionele apparatuur en beschikbaar ter overname. Gasten kunnen meekijken hoe de gerechten met vakmanschap worden bereid.
Het bargedeelte met tap en spoelbak bevindt zich naast de keuken.
Vanuit de garderobe heeft u toegang tot een praktische kantoorruimte, ideaal voor administratieve werkzaamheden of opslag van documenten. De moderne toiletruimte bevindt zich eveneens op de begane grond, voorzien van een apart dames- en herentoilet. Zowel de keuken als de sanitaire voorzieningen zijn volledig betegeld en daardoor praktisch in onderhoud. Het bargedeelte is voorzien van een tegelvloer.
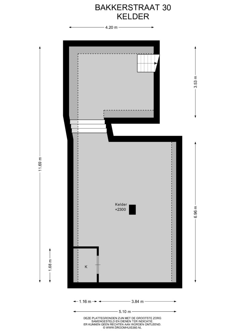
Via een stenen trap bereikt u de ruime kelder, die uitstekend geschikt is als opslag- of magazijnruimte.
BTW:
Er is sprake van verhuur met BTW.
Huurperioden:
5 jaar met 5 jaar verlengingsoptie.
Opzegtermijn:
12 maanden.
Huurprijsaanpassing:
Jaarlijks, op basis van de wijziging van het maandprijsindexcijfer volgens de CPI (consumentenprijsindex) reeks CPI-Alle Huishoudens (2015=100) gepubliceerd door het CBS (Centraal Bureau voor Statistiek).
Aanvaarding:
In overleg.
Zekerheidsstelling:
Bankgarantie of waarborgsom ter grootte van drie maanden bruto betalingsverplichting.
Huurovereenkomst:
Huurovereenkomst op basis van het standaardmodel van de Raad voor Onroerende Zaken (ROZ).
Bezichtiging:
Uitsluitend na afspraak met ons kantoor.
Informatie:
Wij hebben getracht middels deze zorgvuldig samengestelde documentatie u zo uitgebreid mogelijk te informeren. Desondanks kunnen hieraan geen rechten worden ontleend. Slechts de feitelijke situatie geeft u een juist beeld.
Kadastrale gegevens:
Kadastrale gemeente : Roermond
Sectie : D
Nummer : 5543 A1
Perceeloppervlak : 155 m²
Parkeren is onder andere mogelijk in de nabijgelegen parkeergarage de Oranjerie (Q-park, diverse parkeerabonnementen verkrijgbaar tegen aantrekkelijke voorwaarden).
De monumentale binnenstad van Roermond kenmerkt zich door haar ruime aanbod aan winkels en horecagelegenheden. Op slechts vijf minuten lopen bevindt zich het populaire Designer Outlet Roermond, dat jaarlijks miljoenen bezoekers trekt.
Met haar vele historische panden, kerken en sfeervolle pleinen vormt Roermond een gezellig en karaktervol winkelcentrum. De stad beschikt over een rijk cultureel aanbod en een goed gevulde evenementenkalender. Bovendien ligt het centrum op korte afstand van het uitgestrekte watersportgebied de Maasplassen en het prachtige natuurgebied Nationaal Park De Meinweg.
De combinatie van de binnenstad en het Designer Outlet zorgt ervoor dat Roermond qua bestedingsomvang tot de beste winkelgebieden van Nederland behoort. De belangrijkste reden voor bezoekers om Roermond te bezoeken is het uitgebreide winkelaanbod. Daarnaast scoort de stad hoog op bereikbaarheid, parkeertarieven, sfeer, gezelligheid en de kwaliteit van haar winkels en horeca.
Het object is uitstekend bereikbaar: het ligt nabij de verbindingsweg N280 en op slechts vijf autominuten van de A73, die een directe verbinding biedt met onder andere Düsseldorf. Deze infrastructuur draagt bij aan de goede bereikbaarheid en verdere groei van Roermond als ondernemende stad.
Kortom, Roermond biedt een uitstekend ondernemersklimaat met volop mogelijkheden voor horecabedrijven en ondernemers die op zoek zijn naar nieuwe kansen.
Parkeren:
In de directe omgeving ligt onder andere een Q-Park parkeergarage voor ruim 400 auto’s.
Metrage gegevens:
Horecaruimte (NEN 2580) : ± 110 m²
Kelderruimte (NEN 2580) : ± 45 m²
Huurprijs: € 1.750,-- per maand, excl. BTW
Bestemmingsplan:
Centrum-1 + functie-aanduiding: Horeca 2: restaurant, bistro, zaalaccommodatie, bar, café, pub, grand-café, eetcafé of taverne.
(U dient zelf bij de gemeente Roermond navraag te doen of uw bedrijfsactiviteiten vallen binnen het vigerende bestemmingsplan).
Indeling:
Begane grond
Via de entree met garderobe stapt u direct het gezellige restaurant binnen. De grote raampartijen zorgen voor een aangename lichtinval, terwijl de houtlook laminaatvloer het interieur een warme, uitnodigende sfeer geeft.
Centraal in het restaurant bevindt zich de open keuken, volledig ingericht met professionele apparatuur en beschikbaar ter overname. Gasten kunnen meekijken hoe de gerechten met vakmanschap worden bereid.
Het bargedeelte met tap en spoelbak bevindt zich naast de keuken.
Vanuit de garderobe heeft u toegang tot een praktische kantoorruimte, ideaal voor administratieve werkzaamheden of opslag van documenten. De moderne toiletruimte bevindt zich eveneens op de begane grond, voorzien van een apart dames- en herentoilet. Zowel de keuken als de sanitaire voorzieningen zijn volledig betegeld en daardoor praktisch in onderhoud. Het bargedeelte is voorzien van een tegelvloer.
Via een stenen trap bereikt u de ruime kelder, die uitstekend geschikt is als opslag- of magazijnruimte.
BTW:
Er is sprake van verhuur met BTW.
Huurperioden:
5 jaar met 5 jaar verlengingsoptie.
Opzegtermijn:
12 maanden.
Huurprijsaanpassing:
Jaarlijks, op basis van de wijziging van het maandprijsindexcijfer volgens de CPI (consumentenprijsindex) reeks CPI-Alle Huishoudens (2015=100) gepubliceerd door het CBS (Centraal Bureau voor Statistiek).
Aanvaarding:
In overleg.
Zekerheidsstelling:
Bankgarantie of waarborgsom ter grootte van drie maanden bruto betalingsverplichting.
Huurovereenkomst:
Huurovereenkomst op basis van het standaardmodel van de Raad voor Onroerende Zaken (ROZ).
Bezichtiging:
Uitsluitend na afspraak met ons kantoor.
Informatie:
Wij hebben getracht middels deze zorgvuldig samengestelde documentatie u zo uitgebreid mogelijk te informeren. Desondanks kunnen hieraan geen rechten worden ontleend. Slechts de feitelijke situatie geeft u een juist beeld.
Kadastrale gegevens:
Kadastrale gemeente : Roermond
Sectie : D
Nummer : 5543 A1
Perceeloppervlak : 155 m²
Kenmerken
Overdracht
- Huurprijs
- € 21.000 per jaar
- Aangeboden sinds
-
- Status
- Beschikbaar
- Aanvaarding
- In overleg
Overname
- Personeel
- Nee
Bouw
- Hoofdfunctie
- Horeca
- Soort horeca
- Horecagelegenheid
- Soort bouw
- Bestaande bouw
- Bouwjaar
- 1896
Oppervlakten
- Oppervlakte
- 110 m²
- Verkoopvloeroppervlakte
- 110 m²
- Perceel
- 160 m²
Indeling
- Aantal bouwlagen
- 1 bouwlaag
- Gelegen op
- Begane grond
Energie
- Energielabel
- Niet beschikbaar
VastgoedPRO makelaar
Foto's




























Plattegrond
Kelder

Begane Grond
