Banstraat 29 1071 JW Amsterdam
€ 440 /mnd

Omschrijving
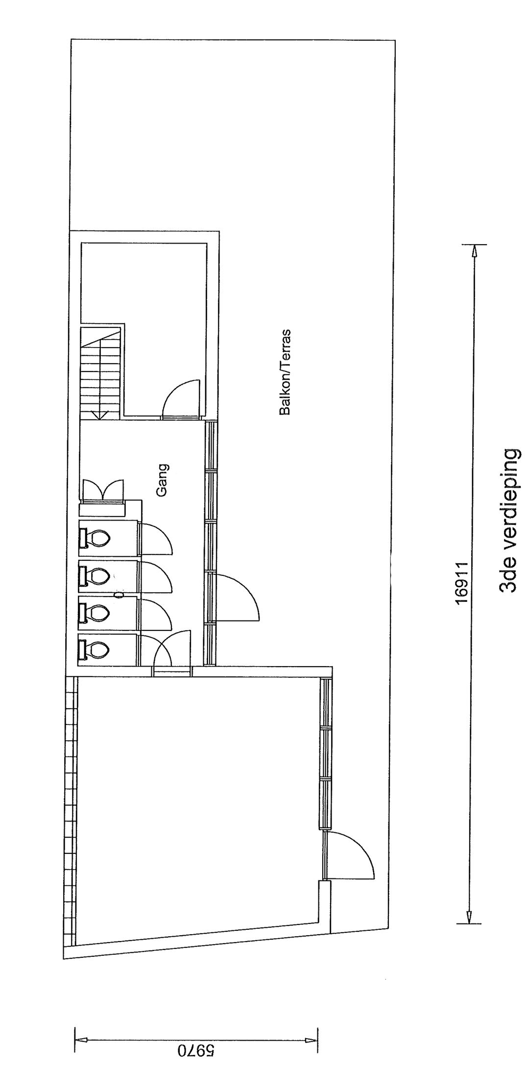
In het voormalige schoolgebouw gelegen aan de Banstraat 29 in Amsterdam Zuid zijn diverse kantoorunits c.q. kamers beschikbaar op de 2e en 3e etage (zie ook de plattegrondtekening). Gezien de maatschappelijke bestemming zijn de ruimten uitermate geschikt als praktijkruimten, lesruimten, behandelkamers etc.
Het gebouw is gelegen Amsterdam Oud Zuid, nabij de Cornelis Schuytstraat, Apollolaan en De Lairessestraat. In de directe nabijheid bevindt zich een verscheidenheid aan winkels, kantoren, hotels en diverse horeca gelegenheden. De locatie goed bereikbaar met zowel met eigen vervoer vanaf de Ringweg A-10 als per OV. Op loopafstand bevindt zich een tram- en bushalte (tram 2 en bus 357, 397, N47, N57 en N97).
Huurprijs en verdere kosten:
2e ETAGE
Unit 1: € 1.750 per maand (€ 1.500 huur + € 250 stook-/servicekosten) VERHUURD
Unit 2: € 440 per maand (€ 375 huur + € 65 stook-/servicekosten)
Unit 3: € 440 per maand (€ 375 huur + € 65 stook-/servicekosten)
Unit 4: € 440 per maand (€ 375 huur + € 65 stook-/servicekosten) VERHUURD
Unit 5: € 440 per maand (€ 375 huur + € 65 stook-/servicekosten) VERHUURD
Unit 6: € 1.370 per maand (€ 1.175 huur + € 195 stook-/servicekosten) VERHUURD
3e ETAGE
Gehele verdieping: € 1.750 (€ 1.500 huur + € 250 stook-/servicekosten)
Huurtermijn
Flexibele huurtermijnen zijn bespreekbaar.
Minimale huurtermijn is één jaar.
Bestemming
‘Maatschappelijk’ conform het vigerende bestemmingsplan Museum Kwartier Valeriusbuurt, hetgeen onder meer inhoudt: maatschappelijke en consumentverzorgende dienstverlening.
Parkeren
Parkeren is mogelijk langs de openbare weg (betaald).
Huurprijsbetaling
Per maand bij vooruitbetaling te voldoen.
Zekerheidsstelling
Een bankgarantie ter grootte van minimaal 3 maanden huur, te vermeerderen met BTW.
Opleveringsniveau
Verhuurder levert onderhavige ruimte in de huidige staat op, dat wil zeggen onder meer met:
- Gemeenschappelijke entree;
- Huidige verlichting;
- Toiletvoorzieningen;
- Pantry;
- Kabelgoten met wcd’s en aansluitingen t.b.v. databekabeling;
- Verwarming door middel van radiatoren voorzien van thermostaten;
- Te openen ramen;
Huurindexering
Jaarlijks, voor het eerst 12 maanden na de ingangsdatum op basis van het prijsindexcijfer volgens de consumentenprijsindex (CPI) reeks CPI Alle Huishoudens (2015=100) gepubliceerd door het Centraal Bureau voor de Statistiek (CBS).
Huurovereenkomst
Gebaseerd op het model kantoorruimte en andere bedrijfsruimte in de zin van artikel 7:230 BW, zoals vastgesteld door de Raad van Onroerende Zaken ( ROZ, model 2015) met bijzondere bepalingen van verhuurder.
Bijzonderheden
Er is in dit geval sprake van een onderhuursituatie. Er wordt derhalve niet rechtstreeks gehuurd van de eigenaar, maar van de (hoofd)huurder. Voor de te sluiten onderhuurovereenkomst gelden enkele voorwaarden, zoals:
- Dat de onderhuurovereenkomst nooit langer zal kunnen duren dan de hoofdhuurovereenkomst;
- Dat onderhuurder nimmer de rechten krijgt als hoofdhuurder; en
- Indien (onder)verhuurder met in acht name van de juiste termijn de (onder) huurovereenkomst opzegt, zal
(onder)huurder zich niet beroepen op ontruimingsbescherming en het gehuurde op tijd het (onder)gehuurde verlaten
hebben.
Voorbehoud
Deze informatie is geheel vrijblijvend en houdt slechts een uitnodiging in tot het doen van een voorstel.
Het gebouw is gelegen Amsterdam Oud Zuid, nabij de Cornelis Schuytstraat, Apollolaan en De Lairessestraat. In de directe nabijheid bevindt zich een verscheidenheid aan winkels, kantoren, hotels en diverse horeca gelegenheden. De locatie goed bereikbaar met zowel met eigen vervoer vanaf de Ringweg A-10 als per OV. Op loopafstand bevindt zich een tram- en bushalte (tram 2 en bus 357, 397, N47, N57 en N97).
Huurprijs en verdere kosten:
2e ETAGE
Unit 1: € 1.750 per maand (€ 1.500 huur + € 250 stook-/servicekosten) VERHUURD
Unit 2: € 440 per maand (€ 375 huur + € 65 stook-/servicekosten)
Unit 3: € 440 per maand (€ 375 huur + € 65 stook-/servicekosten)
Unit 4: € 440 per maand (€ 375 huur + € 65 stook-/servicekosten) VERHUURD
Unit 5: € 440 per maand (€ 375 huur + € 65 stook-/servicekosten) VERHUURD
Unit 6: € 1.370 per maand (€ 1.175 huur + € 195 stook-/servicekosten) VERHUURD
3e ETAGE
Gehele verdieping: € 1.750 (€ 1.500 huur + € 250 stook-/servicekosten)
Huurtermijn
Flexibele huurtermijnen zijn bespreekbaar.
Minimale huurtermijn is één jaar.
Bestemming
‘Maatschappelijk’ conform het vigerende bestemmingsplan Museum Kwartier Valeriusbuurt, hetgeen onder meer inhoudt: maatschappelijke en consumentverzorgende dienstverlening.
Parkeren
Parkeren is mogelijk langs de openbare weg (betaald).
Huurprijsbetaling
Per maand bij vooruitbetaling te voldoen.
Zekerheidsstelling
Een bankgarantie ter grootte van minimaal 3 maanden huur, te vermeerderen met BTW.
Opleveringsniveau
Verhuurder levert onderhavige ruimte in de huidige staat op, dat wil zeggen onder meer met:
- Gemeenschappelijke entree;
- Huidige verlichting;
- Toiletvoorzieningen;
- Pantry;
- Kabelgoten met wcd’s en aansluitingen t.b.v. databekabeling;
- Verwarming door middel van radiatoren voorzien van thermostaten;
- Te openen ramen;
Huurindexering
Jaarlijks, voor het eerst 12 maanden na de ingangsdatum op basis van het prijsindexcijfer volgens de consumentenprijsindex (CPI) reeks CPI Alle Huishoudens (2015=100) gepubliceerd door het Centraal Bureau voor de Statistiek (CBS).
Huurovereenkomst
Gebaseerd op het model kantoorruimte en andere bedrijfsruimte in de zin van artikel 7:230 BW, zoals vastgesteld door de Raad van Onroerende Zaken ( ROZ, model 2015) met bijzondere bepalingen van verhuurder.
Bijzonderheden
Er is in dit geval sprake van een onderhuursituatie. Er wordt derhalve niet rechtstreeks gehuurd van de eigenaar, maar van de (hoofd)huurder. Voor de te sluiten onderhuurovereenkomst gelden enkele voorwaarden, zoals:
- Dat de onderhuurovereenkomst nooit langer zal kunnen duren dan de hoofdhuurovereenkomst;
- Dat onderhuurder nimmer de rechten krijgt als hoofdhuurder; en
- Indien (onder)verhuurder met in acht name van de juiste termijn de (onder) huurovereenkomst opzegt, zal
(onder)huurder zich niet beroepen op ontruimingsbescherming en het gehuurde op tijd het (onder)gehuurde verlaten
hebben.
Voorbehoud
Deze informatie is geheel vrijblijvend en houdt slechts een uitnodiging in tot het doen van een voorstel.
Kenmerken
Overdracht
- Huurprijs
- € 440 per maand
- Oorspronkelijke huurprijs
- € 300 per vierkante meter per jaar
- Servicekosten
- € 50 per vierkante meter per jaar (21% BTW van toepassing)
- Aangeboden sinds
-
- Status
- Beschikbaar
- Aanvaarding
- In overleg
Bouw
- Hoofdfunctie
- Kantoor
- Mogelijke functie(s)
- Zorginstelling en praktijkruimte
- Soort bouw
- Bestaande bouw
- Bouwperiode
- 1906-1930
Oppervlakten
- Oppervlakte
- 150 m² (in units vanaf 30 m²)
Indeling
- Aantal bouwlagen
- 3 bouwlagen
Energie
- Energielabel
- Niet beschikbaar
NVM makelaar
Foto's
























