Roemer Visscherstraat 41-A 1054 EW Amsterdam
€ 3.400.000 k.k.
Omschrijving
Omschrijving
GEHEEL KANTOORPAND OP EEN ZICHTLOCATIE TE KOOP
Het representatieve en karakteristieke kantoorgebouw aan de Roemer Visscherstraat 41 in Amsterdam is gelegen op een uitstekende locatie met het Vondelpark als achtertuin. Het pand ligt op eigen grond en is in 1892 gebouwd als woonhuis. De eclectische bouwstijl komt duidelijk naar voren in de fraaie uitstraling en veel karakteristieke details van de gevel. Het pand is passend bij de bebouwing in de directe omgeving. De Roemer Visscherstraat kenmerkt zich door haar charmante, rustige straatbeeld, terwijl tegelijkertijd de dynamiek van de binnenstad, het Museumkwartier en diverse voorzieningen op korte afstand aanwezig zijn. De buurt biedt een aantrekkelijke vestigingslocatie.
Indeling
Het pand bestaat uit 5 verdiepingen met in totaal 346 m2 verdeeld over; souterrain, bel-etage, eerste-, tweede- en derde verdieping. Het souterrain beslaat een totaal van ca. 80 m2 waar op dit moment twee kantoorkamers en een archiefkamer bevinden. De pantry en de toiletgroepen zijn op deze verdieping gelegen. De tuin is vanuit deze verdieping te bereiken door middel van openslaande deuren.
De entree van het pand is aan de zijkant gevestigd en komt uit op de bel-etage. Via de entree kom je in de hal waar de erker met glas-in-lood ramen niet alleen uitzicht geven op de Van Baerlestraat maar ook de hal oplichten. Deze verdieping biedt nog eens drie kantoorkamers en heeft een brede opzet voor de trap naar het souterrain en de 1ste verdieping. De bel-etage is ca. 73 m2 groot.
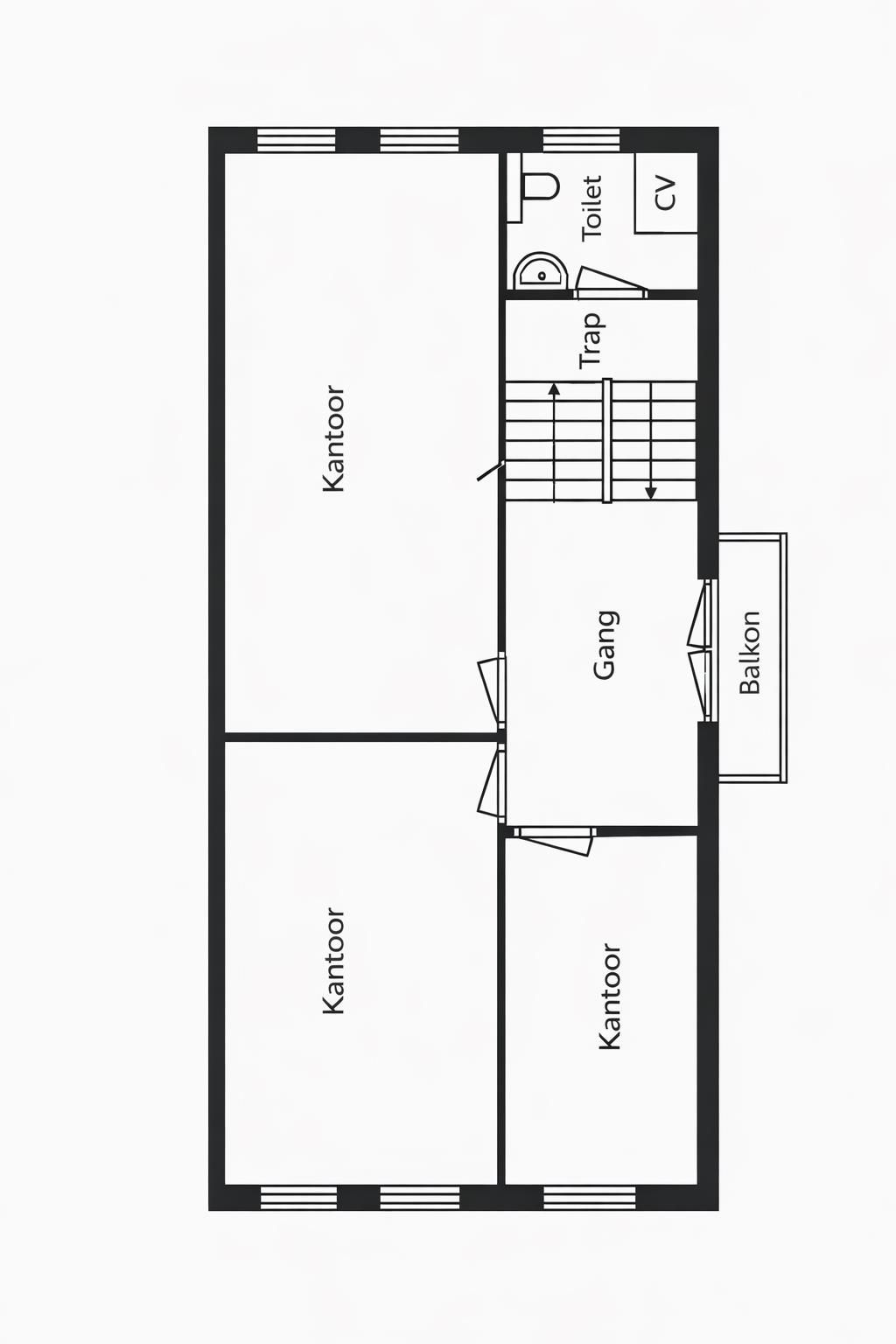
De eerste verdieping is ca. 67 m2 groot en onderverdeeld in vier kantoorkamers. Naast de erker met een brede raampartij biedt deze verdieping zowel voor als achter een balkon die toegankelijk zijn via openslaande deuren.
De tweede verdieping heeft naast drie kantoorkamers een separaat toilet. De derde verdieping is ingericht als een open kantoortuin met een eigen pantry. De oppervlakten bedragen ca. 63 m2 per verdieping.
De vermelde oppervlakten van de eerste drie verdiepingen zijn conform de NEN 2580 rapporten vastgesteld. De oppervlakten van de tweede en derde verdieping zijn daarentegen niet volgens NEN 2580 opgemeten.
Bereikbaarheid
Roemer Visscherstraat 41 is uitstekend bereikbaar met zowel het openbaar vervoer als het eigen vervoer. Op ca. vijf minuten loopafstand bevinden zich zowel het Leidseplein als het Museumplein, met diverse tram- en busverbindingen. Vanuit deze haltes bestaat een directe aansluiting op de Amsterdamse binnenstad en belangrijke OV-knooppunten, waaronder Station Amsterdam Centraal en Station Amsterdam Zuid.
Door de ligging nabij de Overtoom, een van de uitvalswegen van Amsterdam, is de uitvalsweg Ringweg A-10 (afslag S106) binnen enkele minuten met de auto bereikbaar.
Proces
Van Dijk & Ten Cate is door verkoper aangesteld als exclusieve adviseur om de verkoop van het pand aan de Roemer Visscherstraat 41 te Amsterdam te begeleiden. Gegadigden krijgen de gelegenheid om de verkoopinformatie te evalueren om op basis daarvan een bieding uit te brengen dat bedoeld is om tot een koop te komen. Het pand wordt verkocht op basis van ‘as is, where is’. De voorwaarden worden nader gespecificeerd in de koop- en leveringsakte.
Gegadigden aanvaarden dat zij geen recht hebben op enige informatie omtrent de ontvangen aanbiedingen of op het overzicht daarvan. Het al dan niet accepteren van een bieding is geheel een aangelegenheid van verkoper. Deze informatie is door ons zorgvuldig samengesteld. Desondanks kunnen wij geen aansprakelijkheid aanvaarden voor eventuele onjuistheden, onvolledigheden of de gevolgen daarvan.
Meer informatie
Van Dijk & Ten Cate Vastgoedadviseurs B.V.
De Boelelaan 7 “Officia I”
1083 HJ Amsterdam
020-4423060
Koopprijs
€ 3.400.000,- kosten koper.
Kadastrale informatie (41-A)
• Kadastrale aanduiding: Amsterdam R 6834 A1
• Locatie: Roemer Visscherstraat 41, 1054 EW Amsterdam
• Recht: Eigen grond
GEHEEL KANTOORPAND OP EEN ZICHTLOCATIE TE KOOP
Het representatieve en karakteristieke kantoorgebouw aan de Roemer Visscherstraat 41 in Amsterdam is gelegen op een uitstekende locatie met het Vondelpark als achtertuin. Het pand ligt op eigen grond en is in 1892 gebouwd als woonhuis. De eclectische bouwstijl komt duidelijk naar voren in de fraaie uitstraling en veel karakteristieke details van de gevel. Het pand is passend bij de bebouwing in de directe omgeving. De Roemer Visscherstraat kenmerkt zich door haar charmante, rustige straatbeeld, terwijl tegelijkertijd de dynamiek van de binnenstad, het Museumkwartier en diverse voorzieningen op korte afstand aanwezig zijn. De buurt biedt een aantrekkelijke vestigingslocatie.
Indeling
Het pand bestaat uit 5 verdiepingen met in totaal 346 m2 verdeeld over; souterrain, bel-etage, eerste-, tweede- en derde verdieping. Het souterrain beslaat een totaal van ca. 80 m2 waar op dit moment twee kantoorkamers en een archiefkamer bevinden. De pantry en de toiletgroepen zijn op deze verdieping gelegen. De tuin is vanuit deze verdieping te bereiken door middel van openslaande deuren.
De entree van het pand is aan de zijkant gevestigd en komt uit op de bel-etage. Via de entree kom je in de hal waar de erker met glas-in-lood ramen niet alleen uitzicht geven op de Van Baerlestraat maar ook de hal oplichten. Deze verdieping biedt nog eens drie kantoorkamers en heeft een brede opzet voor de trap naar het souterrain en de 1ste verdieping. De bel-etage is ca. 73 m2 groot.
De eerste verdieping is ca. 67 m2 groot en onderverdeeld in vier kantoorkamers. Naast de erker met een brede raampartij biedt deze verdieping zowel voor als achter een balkon die toegankelijk zijn via openslaande deuren.
De tweede verdieping heeft naast drie kantoorkamers een separaat toilet. De derde verdieping is ingericht als een open kantoortuin met een eigen pantry. De oppervlakten bedragen ca. 63 m2 per verdieping.
De vermelde oppervlakten van de eerste drie verdiepingen zijn conform de NEN 2580 rapporten vastgesteld. De oppervlakten van de tweede en derde verdieping zijn daarentegen niet volgens NEN 2580 opgemeten.
Bereikbaarheid
Roemer Visscherstraat 41 is uitstekend bereikbaar met zowel het openbaar vervoer als het eigen vervoer. Op ca. vijf minuten loopafstand bevinden zich zowel het Leidseplein als het Museumplein, met diverse tram- en busverbindingen. Vanuit deze haltes bestaat een directe aansluiting op de Amsterdamse binnenstad en belangrijke OV-knooppunten, waaronder Station Amsterdam Centraal en Station Amsterdam Zuid.
Door de ligging nabij de Overtoom, een van de uitvalswegen van Amsterdam, is de uitvalsweg Ringweg A-10 (afslag S106) binnen enkele minuten met de auto bereikbaar.
Proces
Van Dijk & Ten Cate is door verkoper aangesteld als exclusieve adviseur om de verkoop van het pand aan de Roemer Visscherstraat 41 te Amsterdam te begeleiden. Gegadigden krijgen de gelegenheid om de verkoopinformatie te evalueren om op basis daarvan een bieding uit te brengen dat bedoeld is om tot een koop te komen. Het pand wordt verkocht op basis van ‘as is, where is’. De voorwaarden worden nader gespecificeerd in de koop- en leveringsakte.
Gegadigden aanvaarden dat zij geen recht hebben op enige informatie omtrent de ontvangen aanbiedingen of op het overzicht daarvan. Het al dan niet accepteren van een bieding is geheel een aangelegenheid van verkoper. Deze informatie is door ons zorgvuldig samengesteld. Desondanks kunnen wij geen aansprakelijkheid aanvaarden voor eventuele onjuistheden, onvolledigheden of de gevolgen daarvan.
Meer informatie
Van Dijk & Ten Cate Vastgoedadviseurs B.V.
De Boelelaan 7 “Officia I”
1083 HJ Amsterdam
020-4423060
Koopprijs
€ 3.400.000,- kosten koper.
Kadastrale informatie (41-A)
• Kadastrale aanduiding: Amsterdam R 6834 A1
• Locatie: Roemer Visscherstraat 41, 1054 EW Amsterdam
• Recht: Eigen grond
Kenmerken
Overdracht
- Vraagprijs
- € 3.400.000 kosten koper
- Servicekosten
- Geen servicekosten bekend
- Aangeboden sinds
-
- Status
- Beschikbaar
- Aanvaarding
- In overleg
Bouw
- Hoofdfunctie
- Kantoor
- Soort bouw
- Bestaande bouw
- Bouwjaar
- 1892
Oppervlakten
- Oppervlakte
- 346 m²
- Perceel
- 178 m²
Indeling
- Aantal bouwlagen
- 5 bouwlagen
Energie
- Energielabel
- A
Omgeving
- Ligging
- In woonwijk
- Bereikbaarheid
- Bushalte op minder dan 500 m, metrohalte op 1000 m tot 1500 m, NS Intercitystation op 3000 m tot 4000 m, snelwegafrit op 2000 m tot 3000 m en Tramhalte op minder dan 500 m
Foto's