Beekstraat 30 6811 DW Arnhem
- Nieuw
€ 39.500 /jr

Omschrijving
Algemeen:
Op prominente locatie is deze multifunctionele ruimte voor de verhuur beschikbaar. Het object wordt gekenmerkt door de goede bereikbaarheid en het industriële karakter.
Beschikbare oppervlakte:
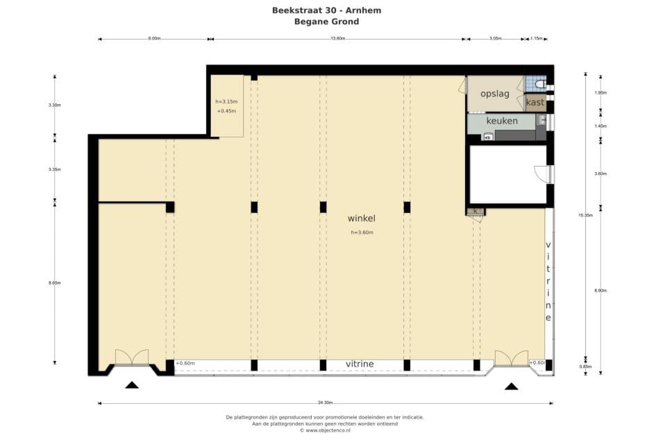
Voor verhuur is een totale oppervlakte beschikbaar van ca. 350 m² (VVO).
Frontbreedte:
Ca. 33 meter (hoekligging).
Opleveringsniveau:
Het object wordt aangeboden in de huidige staat, onder andere voorzien van de navolgende voorzieningen:
- Pantry;
- Toilet;
- CV-installatie met radiatoren.
Het object zal casco worden verhuurd, wat inhoudt dat alle onderhoud, reparatie en vervanging van de aanwezige voorzieningen geheel voor rekening van huurder komt. Aan het einde van de huurovereenkomst dienen zaken goed functionerend, behoudens gebruikelijke slijtage, om niet terug geleverd te worden aan verhuurder.
Locatie:
Het object is gelegen aan de rand van het stadscentrum. De Beekstraat maakt onderdeel uit van het Eusebiuskwartier wat zich kenmerkt door een bijzondere combinatie van wonen, werken en beleven. De komende jaren zal het tegenover het object gelegen Stadstheater volledig worden gerenoveerd en vernieuwd, medio 2027 zal het vernieuwde Stadstheater haar deuren weer openen.
Bereikbaarheid:
Op slechts enkele minuten lopen bevindt zich busstation Velperplein en ligt ook station Velperpoort.
Rondom het centrum bevinden zich meerdere parkeergelegenheden, met op loopafstand van het object onder andere parkeergarages Broerenstraat en Musis.
Huurprijs:
€ 39.500,-- per jaar, te vermeerderen met BTW.
Zekerheidsstelling:
3 maanden huurverplichtingen.
Aanvaarding:
In overleg.
Bestemming:
Het object valt onder de bepalingen van het bestemmingsplan “Omgevingsplan Binnenstad en Singels”. De geldende bestemming is “Gemengd – Gemengd gebied” op basis waarvan de gronden zijn bestemd voor o.a. detailhandel, horeca (categorie 1), kantoor en dienstverlenende bedrijven op de begane grond.
Informatie inzake gebruiksmogelijkheden en voorschriften is te verkrijgen via ons kantoor of bij de gemeente Arnhem, danwel via de website van het omgevingsloket.
Informatie/bezichtigingen:
DK Makelaars
Vossenstraat 6 (Rozet Centre)
6811 JL ARNHEM
(026) 363 84 94
info[a]dkmakelaars.nl
dkmakelaars.nl
dkhorecamakelaars.nl
Op prominente locatie is deze multifunctionele ruimte voor de verhuur beschikbaar. Het object wordt gekenmerkt door de goede bereikbaarheid en het industriële karakter.
Beschikbare oppervlakte:
Voor verhuur is een totale oppervlakte beschikbaar van ca. 350 m² (VVO).
Frontbreedte:
Ca. 33 meter (hoekligging).
Opleveringsniveau:
Het object wordt aangeboden in de huidige staat, onder andere voorzien van de navolgende voorzieningen:
- Pantry;
- Toilet;
- CV-installatie met radiatoren.
Het object zal casco worden verhuurd, wat inhoudt dat alle onderhoud, reparatie en vervanging van de aanwezige voorzieningen geheel voor rekening van huurder komt. Aan het einde van de huurovereenkomst dienen zaken goed functionerend, behoudens gebruikelijke slijtage, om niet terug geleverd te worden aan verhuurder.
Locatie:
Het object is gelegen aan de rand van het stadscentrum. De Beekstraat maakt onderdeel uit van het Eusebiuskwartier wat zich kenmerkt door een bijzondere combinatie van wonen, werken en beleven. De komende jaren zal het tegenover het object gelegen Stadstheater volledig worden gerenoveerd en vernieuwd, medio 2027 zal het vernieuwde Stadstheater haar deuren weer openen.
Bereikbaarheid:
Op slechts enkele minuten lopen bevindt zich busstation Velperplein en ligt ook station Velperpoort.
Rondom het centrum bevinden zich meerdere parkeergelegenheden, met op loopafstand van het object onder andere parkeergarages Broerenstraat en Musis.
Huurprijs:
€ 39.500,-- per jaar, te vermeerderen met BTW.
Zekerheidsstelling:
3 maanden huurverplichtingen.
Aanvaarding:
In overleg.
Bestemming:
Het object valt onder de bepalingen van het bestemmingsplan “Omgevingsplan Binnenstad en Singels”. De geldende bestemming is “Gemengd – Gemengd gebied” op basis waarvan de gronden zijn bestemd voor o.a. detailhandel, horeca (categorie 1), kantoor en dienstverlenende bedrijven op de begane grond.
Informatie inzake gebruiksmogelijkheden en voorschriften is te verkrijgen via ons kantoor of bij de gemeente Arnhem, danwel via de website van het omgevingsloket.
Informatie/bezichtigingen:
DK Makelaars
Vossenstraat 6 (Rozet Centre)
6811 JL ARNHEM
(026) 363 84 94
info[a]dkmakelaars.nl
dkmakelaars.nl
dkhorecamakelaars.nl
Kenmerken
Overdracht
- Huurprijs
- € 39.500 per jaar
- Aangeboden sinds
-
- Status
- Beschikbaar
- Aanvaarding
- In overleg
Bouw
- Hoofdfunctie
- Winkel
- Mogelijke functie(s)
- Horeca en kantoorruimte
- Soort bouw
- Bestaande bouw
- Bouwjaar
- 1958
Oppervlakten
- Oppervlakte
- 350 m²
Indeling
- Aantal bouwlagen
- 1 bouwlaag
Energie
- Energielabel
- E
Omgeving
- Ligging
- Stadscentrum/dorpskern en in woonwijk
- Bereikbaarheid
- Bushalte op minder dan 500 m, busknooppunt op minder dan 500 m, metrohalte op 5000 m of meer, metroknooppunt op 5000 m of meer, NS Intercitystation op 1000 m tot 1500 m, snelwegafrit op 2000 m tot 3000 m, Tramhalte op 5000 m of meer en tramknooppunt op 5000 m of meer
NVM makelaar
Foto's
































Plattegrond
Begane Grond
