nieuwe crailoseweg 1403 XX Bussum
€ 1.750.000 k.k.

Omschrijving
Unieke plek in het hart van het Gooi! Circa 3.700 m² bedrijvigheid en horeca.
Buurtschap Crailo is een voormalig defensieterrein dat op grondgebied van drie gemeenten ligt: Gooise Meren, Hilversum en Laren. Buurtschap Crailo wordt ontwikkeld tot een woon-werkgebied, waarbij in de ontwikkeling duurzaamheid, een positieve
energiebalans, oog voor biodiversiteit en circulair materiaalgebruik centraal staan. Op Crailo worden in de komende jaren 590 woningen en circa 5 hectare bedrijvigheid gerealiseerd.
Transformatie van cultureel erfgoed
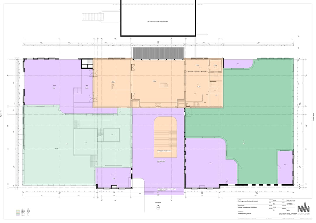
De Kolonel Palmkazerne werd in de aanloop naar de Tweede Wereldoorlog gebouwd op een locatie die sinds eind 19e eeuw dienst deed als militair oefenterrein. Het gebied ligt aan de rand van de Bussumerheide. De karakteristieke gebouwen worden op basis van het oorspronkelijk ontwerp getransformeerd tot woningen en voorzieningen. Het voormalige keukengebouw krijgt een nieuw leven en nieuw elan, door het te transformeren aan de hand van de oorspronkelijke ontwerpuitgangspunten en met behoud van de aanwezige cultuurhistorisch en monumentale elementen elementen. De aanwezige materialen worden zoveel mogelijk hergebruikt.
Transformatie keukengebouw
De centrale functie die het keukengebouw in oorspronkelijke opzet vervulde, wordt hersteld. Het gebouw krijgt weer een prominente rol aan de appèlplaats, waar bewoners en bezoekers samen kunnen komen. Het is een plek waar creatie, educatie en ontspanning worden gecombineerd. De monumentale kelder wordt open gemaakt en maakt onderdeel uit van de belevingsroute.
De L-vormige bouwdelen van het huidige gebouw, die in slechte staat verkeren en niet passen bij de nieuwe functie, worden
weggehaald. Het hart met de schoorstenen worden gehandhaafd en een waardige positie krijgen in het nieuwe ensemble. De westzijde van de kelder wordt opgemaakt, zodat deze onderdeel wordt van de buitenbeleving en een rol krijgt in het Wanderpad.
Parkeren
Buurtschap Crailo wordt autoluw mede door parkeren in het Entreegebied van Buurtschap Crailo te faciliteren.
Centrale ligging & midden in de natuur:
- 20 auto minuten van en naar Amsterdam;
- 15 auto minuten van en naar Utrecht;
- 30 auto minuten van en naar Schiphol.
Mogelijkheden bestemming(en)
Er is een mix van verschillende bestemming mogelijkheden beschikbaar, dit kunnen zijn horeca, sport, kantoor/- en maatschappelijke invullingen.
Verhuur
Er bestaat de mogelijkheid om het geheel te verhuren. Vraag gerust naar de mogelijkheden.
Sfeerimpressies
Aan de sfeerimpressies kunnen geen rechten worden ontleend.
Koopsom huidige staat en opleveringsniveau.
De koopsom is gebaseerd op de verkoop van het keukengebouw in de huidige staat (hierin zijn de zaken zoals beschreven in de tekst transformatie van cultureel erfgoed/ transformatie keukengebouw niet verwerkt!).
De ontwikkelaar heeft tekeningen opgemaakt tot en met ‘het voorlopig ontwerp’, deze zijn op aanvraag beschikbaar.
Als partijen andere afspraken willen maken over een ander opleveringsniveau dan dient dit in overleg met de ontwikkelaar te worden afgestemd.
Buurtschap Crailo is een voormalig defensieterrein dat op grondgebied van drie gemeenten ligt: Gooise Meren, Hilversum en Laren. Buurtschap Crailo wordt ontwikkeld tot een woon-werkgebied, waarbij in de ontwikkeling duurzaamheid, een positieve
energiebalans, oog voor biodiversiteit en circulair materiaalgebruik centraal staan. Op Crailo worden in de komende jaren 590 woningen en circa 5 hectare bedrijvigheid gerealiseerd.
Transformatie van cultureel erfgoed
De Kolonel Palmkazerne werd in de aanloop naar de Tweede Wereldoorlog gebouwd op een locatie die sinds eind 19e eeuw dienst deed als militair oefenterrein. Het gebied ligt aan de rand van de Bussumerheide. De karakteristieke gebouwen worden op basis van het oorspronkelijk ontwerp getransformeerd tot woningen en voorzieningen. Het voormalige keukengebouw krijgt een nieuw leven en nieuw elan, door het te transformeren aan de hand van de oorspronkelijke ontwerpuitgangspunten en met behoud van de aanwezige cultuurhistorisch en monumentale elementen elementen. De aanwezige materialen worden zoveel mogelijk hergebruikt.
Transformatie keukengebouw
De centrale functie die het keukengebouw in oorspronkelijke opzet vervulde, wordt hersteld. Het gebouw krijgt weer een prominente rol aan de appèlplaats, waar bewoners en bezoekers samen kunnen komen. Het is een plek waar creatie, educatie en ontspanning worden gecombineerd. De monumentale kelder wordt open gemaakt en maakt onderdeel uit van de belevingsroute.
De L-vormige bouwdelen van het huidige gebouw, die in slechte staat verkeren en niet passen bij de nieuwe functie, worden
weggehaald. Het hart met de schoorstenen worden gehandhaafd en een waardige positie krijgen in het nieuwe ensemble. De westzijde van de kelder wordt opgemaakt, zodat deze onderdeel wordt van de buitenbeleving en een rol krijgt in het Wanderpad.
Parkeren
Buurtschap Crailo wordt autoluw mede door parkeren in het Entreegebied van Buurtschap Crailo te faciliteren.
Centrale ligging & midden in de natuur:
- 20 auto minuten van en naar Amsterdam;
- 15 auto minuten van en naar Utrecht;
- 30 auto minuten van en naar Schiphol.
Mogelijkheden bestemming(en)
Er is een mix van verschillende bestemming mogelijkheden beschikbaar, dit kunnen zijn horeca, sport, kantoor/- en maatschappelijke invullingen.
Verhuur
Er bestaat de mogelijkheid om het geheel te verhuren. Vraag gerust naar de mogelijkheden.
Sfeerimpressies
Aan de sfeerimpressies kunnen geen rechten worden ontleend.
Koopsom huidige staat en opleveringsniveau.
De koopsom is gebaseerd op de verkoop van het keukengebouw in de huidige staat (hierin zijn de zaken zoals beschreven in de tekst transformatie van cultureel erfgoed/ transformatie keukengebouw niet verwerkt!).
De ontwikkelaar heeft tekeningen opgemaakt tot en met ‘het voorlopig ontwerp’, deze zijn op aanvraag beschikbaar.
Als partijen andere afspraken willen maken over een ander opleveringsniveau dan dient dit in overleg met de ontwikkelaar te worden afgestemd.
Kenmerken
Overdracht
- Vraagprijs
- € 1.750.000 kosten koper
- Servicekosten
- Geen servicekosten bekend
- Aangeboden sinds
-
- Status
- Beschikbaar
- Aanvaarding
- In overleg
Bouw
- Hoofdfunctie
- Kantoor
- Soort bouw
- Bestaande bouw
- Bouwperiode
- 1945-1959
Oppervlakten
- Oppervlakte
- 3.700 m²
- Perceel
- 3.700 m²
Indeling
- Aantal bouwlagen
- 3 bouwlagen
Energie
- Energielabel
- Niet beschikbaar
NVM makelaar
Foto's























