De Nieuwe Vaart 32 1401 GR Bussum
                € 96 /m²/jaar
            
         
Omschrijving
Op bedrijventerrein De  Nieuwe  Vaart zijn  variabele kantoorruimtes  vanaf 18 m² te  huur  op de 1ste verdieping van  het  kantoorgebouw  BLUE CORNER. 
 
Het pand is goed bereikbaar vanaf de snelweg A1 en is gelegen op loopafstand van het NS-station Naarden-Bussum, in de nabijheid van diverse restaurants, winkels etc.
 
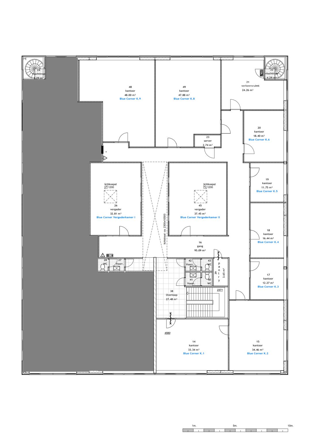
Indeling:
De volgende zonnige kantoorkamers zijn beschikbaar op de 1ste verdieping:
kamer K2 voor 4-5 werkplekken circa 34 m² (inclusief airconditioning),
kamer K6 voor 2-3 werkplekken circa 18 m² (inclusief mobiele airco mogelijk),
kamer K8 voor 6-7 werkplekken circa 48 m² (inclusief airconditioning) en
kamer K9 voor 6-7 werkplekken circa 48 m² (inclusief airconditioning).
Voor de ligging van de desbetreffende kamers, verwijzen wij u naar de plattegrond.
 
Opleveringsniveau:
De kantoorkamers zijn afsluitbaar en worden opgeleverd in goede staat, inclusief o.a. cv, airconditioning, te openen ramen, systeemplafond met verlichting, kabelgoten en vloerbedekking. De mogelijkheid bestaat om het aanwezige meubilair om niet te gebruiken, geheel onverplicht.
 
Naast gebruik van de eigen kantoorruimte wordt een aandeel in het totaal verhuurbaar vloeroppervlak gehuurd. Hierdoor kan gezamenlijk gebruik worden gemaakt van twee grote vergaderzalen inclusief aanwezige projectieschermen en whiteboards. Er is een grote ontvangstruimte op de begane grond en tevens is daar een keuken/kantine. Op de verdieping is ook nog een pantry en een ruimte waar je kan zitten voor een kopje koffie, een broodje of gewoon even tussendoor.
 
Rondom het pand is voldoende gratis parkeergelegenheid. Zowel op eigen terrein als op het bedrijventerrein.
 
Huurprijs en servicekosten:
De basis huurprijs voor een kantoorruimte bedraagt € 96,- per m² per jaar vermeerderd met een vast bedrag van € 25,- per m² per jaar aan servicekosten exclusief BTW.
 
In tegenstelling tot een voorschotbedrag, betreft het hier een vaste all-in huurprijs, zodat u altijd weet waar u aan toe bent. In deze servicekosten is het gebruik van WIFI inbegrepen, alsmede de verbruikskosten van energie en het gebruik van voornoemde ruimten.
 
De totale all-in huurprijs excl. BTW bedraagt per ruimte:
kantoor K2 totaal circa 84 m² € 847,00 per maand,
kantoor K6 totaal circa 46 m² € 453,75 per maand,
kantoor K8 totaal circa 117 m² € 1.179,75 per maand en
kantoor K9 totaal circa 117 m² € 1.179,75 per maand.
 
Aanvaarding:
In overleg. Per direct is mogelijk.
Het pand is goed bereikbaar vanaf de snelweg A1 en is gelegen op loopafstand van het NS-station Naarden-Bussum, in de nabijheid van diverse restaurants, winkels etc.
Indeling:
De volgende zonnige kantoorkamers zijn beschikbaar op de 1ste verdieping:
kamer K2 voor 4-5 werkplekken circa 34 m² (inclusief airconditioning),
kamer K6 voor 2-3 werkplekken circa 18 m² (inclusief mobiele airco mogelijk),
kamer K8 voor 6-7 werkplekken circa 48 m² (inclusief airconditioning) en
kamer K9 voor 6-7 werkplekken circa 48 m² (inclusief airconditioning).
Voor de ligging van de desbetreffende kamers, verwijzen wij u naar de plattegrond.
Opleveringsniveau:
De kantoorkamers zijn afsluitbaar en worden opgeleverd in goede staat, inclusief o.a. cv, airconditioning, te openen ramen, systeemplafond met verlichting, kabelgoten en vloerbedekking. De mogelijkheid bestaat om het aanwezige meubilair om niet te gebruiken, geheel onverplicht.
Naast gebruik van de eigen kantoorruimte wordt een aandeel in het totaal verhuurbaar vloeroppervlak gehuurd. Hierdoor kan gezamenlijk gebruik worden gemaakt van twee grote vergaderzalen inclusief aanwezige projectieschermen en whiteboards. Er is een grote ontvangstruimte op de begane grond en tevens is daar een keuken/kantine. Op de verdieping is ook nog een pantry en een ruimte waar je kan zitten voor een kopje koffie, een broodje of gewoon even tussendoor.
Rondom het pand is voldoende gratis parkeergelegenheid. Zowel op eigen terrein als op het bedrijventerrein.
Huurprijs en servicekosten:
De basis huurprijs voor een kantoorruimte bedraagt € 96,- per m² per jaar vermeerderd met een vast bedrag van € 25,- per m² per jaar aan servicekosten exclusief BTW.
In tegenstelling tot een voorschotbedrag, betreft het hier een vaste all-in huurprijs, zodat u altijd weet waar u aan toe bent. In deze servicekosten is het gebruik van WIFI inbegrepen, alsmede de verbruikskosten van energie en het gebruik van voornoemde ruimten.
De totale all-in huurprijs excl. BTW bedraagt per ruimte:
kantoor K2 totaal circa 84 m² € 847,00 per maand,
kantoor K6 totaal circa 46 m² € 453,75 per maand,
kantoor K8 totaal circa 117 m² € 1.179,75 per maand en
kantoor K9 totaal circa 117 m² € 1.179,75 per maand.
Aanvaarding:
In overleg. Per direct is mogelijk.
Kenmerken
Overdracht
- Huurprijs
- € 96 per vierkante meter per jaar
- Servicekosten
- € 25 per vierkante meter per jaar (21% BTW van toepassing)
- Aangeboden sinds
- 
        
- Status
- Beschikbaar
- Aanvaarding
- In overleg
Bouw
- Hoofdfunctie
- Kantoor
- Soort bouw
- Bestaande bouw
- Bouwjaar
- 1991
Oppervlakten
- Oppervlakte
- 363 m² (in units vanaf 18 m²)
Indeling
- Aantal bouwlagen
- 1 bouwlaag
- Voorzieningen
- Airconditioning, mechanische ventilatie, inbouwarmaturen, te openen ramen, kabelgoten, systeemplafond, toilet, pantry en verwarming
Energie
- Energielabel
- A
Omgeving
- Ligging
- Bedrijventerrein
- Bereikbaarheid
- Bushalte op 500 m tot 1000 m, busknooppunt op 1000 m tot 1500 m, NS Intercitystation op 1000 m tot 1500 m en snelwegafrit op 1500 m tot 2000 m
Parkeergelegenheid
- Parkeerplaatsen
- 5 niet-overdekte parkeerplaatsen
Makelaar
Foto's
 
                     
                     
                     
                     
                     
                     
                     
                     
                     
                    