Rijswijkseplein 777 2516 LX Den Haag
€ 595 /mnd
Omschrijving
Algemeen:
de Haagse Toren, in de volksmond beter bekend als Het Strijkijzer is een torenflat in Den Haag aan het Rijswijkseplein met 42 verdiepingen en een hoogte van 132 meter. Het is het op drie na hoogste gebouw van Den Haag. Door de hoogte en de vorm van de bovenkant, is het gebouw gemakkelijk te herkennen in de skyline van Den Haag.
Architect Paul Bontenbal werd geïnspireerd door het Flatiron Building (1902) in New York City. In 2007 won het de Nieuwe Stad Prijs van Den Haag en de internationale gouden Emporis Skyscraper Award.
De Haagse Toren omvat hotelappartementen en woningen, alsmede MKB-kantoorunits en grotere kantoren, welke ruimte bieden voor werken in bijvoorbeeld speciale WorkZones of short-stay kantoren, maar ook voor langdurige huur is er kantoorruimte op diverse lagen van de onderbouw van de toren. De grote kantoorruimtes met langdurige huurovereenkomsten op de verdiepingen zijn thans volledig verhuurd aan een advocatenkantoor en een architectenbureau.
Opdrachtgever wil de beschikbare WorkZones op de tweede verdieping op een flexibele basis, voor korte termijn en tegen scherpe all-in prijzen verhuren aan jonge, startende maar ook aan al langer gevestigde ondernemers, die optimaal willen profiteren van de voordelen die het flexibele werken biedt.
Locatie:
de Haagse Toren is gesitueerd aan de rand van het Nieuw Laakhavengebied direct naast het station Hollands Spoor en op 10 minuten lopen van het centrum. In de nabije omgeving is een grote diversiteit aan bedrijven gevestigd zoals o.a. Schindler Liften, Consumentenbond en T-Mobile/Odido. Ook heeft dit gebied zich steeds meer tot een kenniscentrum ontwikkeld, getuige de aanwezigheid van de Haagse Hogeschool en het Mondriaan College.
Bereikbaarheid:
door de ligging aan het Rijswijkseplein/Rijswijkseweg, één van de belangrijke verkeersaders van Den Haag, is de Haagse Toren met eigen vervoer goed te bereiken. De directe nabijheid van de Utrechtsebaan, met verbindingen naar Amsterdam (A4), Utrecht (A12) en Rotterdam (A13), zorgt voor een perfecte aansluiting op het rijkswegennet. Het gebouw ligt op 2 minuten loopafstand van NS Station Hollands Spoor met directe verbindingen naar Amsterdam en Rotterdam. Voor de ingang van het station zijn halteplaatsen voor de tramlijnen 1, 9, 11, 12, 15, 16, 17 en de buslijnen 22, 26 en 29.
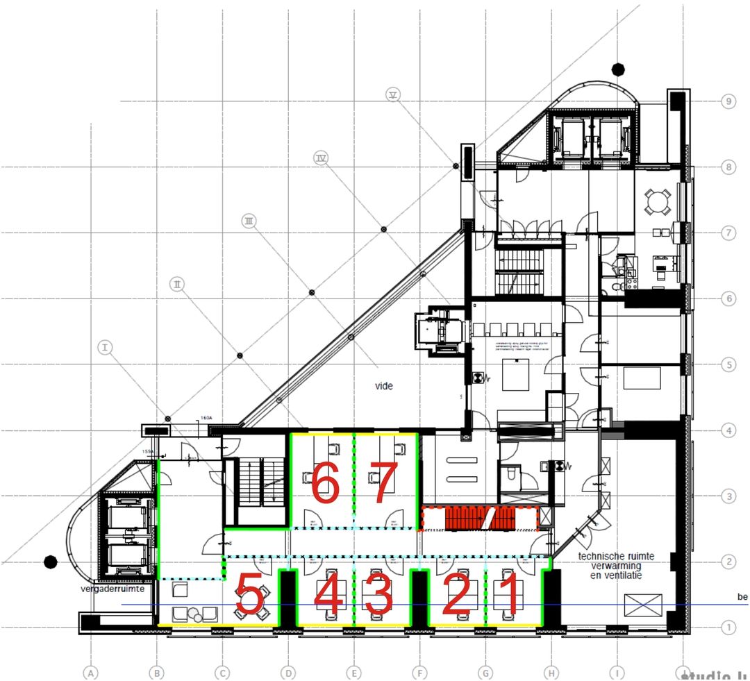
Verhuurbaar Vloer Oppervlak:
WorkZone 1 : verhuurd;
WorkZone 2 : verhuurd;
WorkZone 3 : verhuurd;
WorkZone 4 : verhuurd;
WorkZone 5 : verhuurd;
WorkZone 6 : verhuurd;
WorkZone 7 : circa 18 m².
De oppervlakten zijn gemeten op basis van de NEN 2580 .
Bestemming:
onderhavig object valt binnen het bestemmingsplan Laakhavens. Binnen dit plan wordt de locatie aangeduid als: ‘gemengd-5’. Binnen deze bestemming zijn naast normaal kantoorgebruik de navolgende functies benoemd:
a. dienstverlening;
b. ambachtelijke bedrijven;
c. sociale voorzieningen;
d. culturele voorzieningen;
e. welzijnsvoorzieningen.
Energielabel:
A-label.
Parkeergelegenheid:
in de naastgelegen (openbare) parkeergarage zijn parkeerplaatsen voor verhuur beschikbaar.
Opleveringsniveau:
het gehele object kent intern een trendy industriële inrichting waarbij het principe geldt: “less is more”, doch inclusief:
- representatieve entree;
- liften;
- mechanische ventilatie + airco;
- eventueel uitgerust met aanwezig meubilair;
- glazen scheidingswanden;
- ruime gangzones;
- WiFi verbinding (databekabeling optioneel tegen meerprijs).
Faciliteiten:
- gebruik WiFi in huur begrepen;
- 24/7 toegang tot de gehuurde ruimte;
- verbruik gas, water en elektra inbegrepen.
Huurvoorwaarden:
huurprijzen all-in:
WorkZone 1 : verhuurd;
WorkZone 2 : verhuurd;
WorkZone 3 : verhuurd;
WorkZone 4 : verhuurd;
WorkZone 5 : verhuurd;
WorkZone 6 : verhuurd;
WorkZone 7 : circa 18 m² € 595, -- per maand.
huurprijs parkeren:
€ 177,50 per plaats per maand te vermeerderen met de B.T.W.
B.T.W.:
alle genoemde huurprijzen zijn exclusief B.T.W. en dienen derhalve met 21 % te worden vermeerderd.
huurprijsbetaling:
per maand vooruit middels een automatische overboeking.
huurtermijn:
alle WorkZones worden verhuurd voor een periode van twaalf maanden, met daarna verlengingsperioden van telkenmale één maand (opzegtermijn één maand).
huurprijsaanpassing:
jaarlijks, zal de huurprijs worden aangepast aan de stijging van het Consumenten Prijs Indexcijfer (CPI), reeks Alle Huishoudens (2015=100), zoals dit wordt gepubliceerd door het CBS.
servicekosten:
in huurprijs begrepen. Echter huurder draagt zorg voor deugdelijke ordentelijke inrichting en frequente schoonmaak van de WorkZone.
zekerheidstelling:
bij ondertekening van de huurovereenkomst stelt huurder in handen van verhuurder een waarborgsom ter grootte van één maand huur inclusief B.T.W. Over een waarborgsom wordt door verhuurder geen rente vergoed.
huuringangsdatum:
zo spoedig mogelijk na wilsovereenstemming, doch aanvangende op de eerste van de maand volgend op de wilsovereenstemming.
huurovereenkomst:
indien partijen tot overeenstemming komen zullen de hoofd huurvoorwaarden worden vervat in een ROZ huurovereenkomst ex artikel 7:230a aangepast aan de omstandigheden van short-stay zoals hiervoor geschetst omschreven.
de Haagse Toren, in de volksmond beter bekend als Het Strijkijzer is een torenflat in Den Haag aan het Rijswijkseplein met 42 verdiepingen en een hoogte van 132 meter. Het is het op drie na hoogste gebouw van Den Haag. Door de hoogte en de vorm van de bovenkant, is het gebouw gemakkelijk te herkennen in de skyline van Den Haag.
Architect Paul Bontenbal werd geïnspireerd door het Flatiron Building (1902) in New York City. In 2007 won het de Nieuwe Stad Prijs van Den Haag en de internationale gouden Emporis Skyscraper Award.
De Haagse Toren omvat hotelappartementen en woningen, alsmede MKB-kantoorunits en grotere kantoren, welke ruimte bieden voor werken in bijvoorbeeld speciale WorkZones of short-stay kantoren, maar ook voor langdurige huur is er kantoorruimte op diverse lagen van de onderbouw van de toren. De grote kantoorruimtes met langdurige huurovereenkomsten op de verdiepingen zijn thans volledig verhuurd aan een advocatenkantoor en een architectenbureau.
Opdrachtgever wil de beschikbare WorkZones op de tweede verdieping op een flexibele basis, voor korte termijn en tegen scherpe all-in prijzen verhuren aan jonge, startende maar ook aan al langer gevestigde ondernemers, die optimaal willen profiteren van de voordelen die het flexibele werken biedt.
Locatie:
de Haagse Toren is gesitueerd aan de rand van het Nieuw Laakhavengebied direct naast het station Hollands Spoor en op 10 minuten lopen van het centrum. In de nabije omgeving is een grote diversiteit aan bedrijven gevestigd zoals o.a. Schindler Liften, Consumentenbond en T-Mobile/Odido. Ook heeft dit gebied zich steeds meer tot een kenniscentrum ontwikkeld, getuige de aanwezigheid van de Haagse Hogeschool en het Mondriaan College.
Bereikbaarheid:
door de ligging aan het Rijswijkseplein/Rijswijkseweg, één van de belangrijke verkeersaders van Den Haag, is de Haagse Toren met eigen vervoer goed te bereiken. De directe nabijheid van de Utrechtsebaan, met verbindingen naar Amsterdam (A4), Utrecht (A12) en Rotterdam (A13), zorgt voor een perfecte aansluiting op het rijkswegennet. Het gebouw ligt op 2 minuten loopafstand van NS Station Hollands Spoor met directe verbindingen naar Amsterdam en Rotterdam. Voor de ingang van het station zijn halteplaatsen voor de tramlijnen 1, 9, 11, 12, 15, 16, 17 en de buslijnen 22, 26 en 29.
Verhuurbaar Vloer Oppervlak:
WorkZone 1 : verhuurd;
WorkZone 2 : verhuurd;
WorkZone 3 : verhuurd;
WorkZone 4 : verhuurd;
WorkZone 5 : verhuurd;
WorkZone 6 : verhuurd;
WorkZone 7 : circa 18 m².
De oppervlakten zijn gemeten op basis van de NEN 2580 .
Bestemming:
onderhavig object valt binnen het bestemmingsplan Laakhavens. Binnen dit plan wordt de locatie aangeduid als: ‘gemengd-5’. Binnen deze bestemming zijn naast normaal kantoorgebruik de navolgende functies benoemd:
a. dienstverlening;
b. ambachtelijke bedrijven;
c. sociale voorzieningen;
d. culturele voorzieningen;
e. welzijnsvoorzieningen.
Energielabel:
A-label.
Parkeergelegenheid:
in de naastgelegen (openbare) parkeergarage zijn parkeerplaatsen voor verhuur beschikbaar.
Opleveringsniveau:
het gehele object kent intern een trendy industriële inrichting waarbij het principe geldt: “less is more”, doch inclusief:
- representatieve entree;
- liften;
- mechanische ventilatie + airco;
- eventueel uitgerust met aanwezig meubilair;
- glazen scheidingswanden;
- ruime gangzones;
- WiFi verbinding (databekabeling optioneel tegen meerprijs).
Faciliteiten:
- gebruik WiFi in huur begrepen;
- 24/7 toegang tot de gehuurde ruimte;
- verbruik gas, water en elektra inbegrepen.
Huurvoorwaarden:
huurprijzen all-in:
WorkZone 1 : verhuurd;
WorkZone 2 : verhuurd;
WorkZone 3 : verhuurd;
WorkZone 4 : verhuurd;
WorkZone 5 : verhuurd;
WorkZone 6 : verhuurd;
WorkZone 7 : circa 18 m² € 595, -- per maand.
huurprijs parkeren:
€ 177,50 per plaats per maand te vermeerderen met de B.T.W.
B.T.W.:
alle genoemde huurprijzen zijn exclusief B.T.W. en dienen derhalve met 21 % te worden vermeerderd.
huurprijsbetaling:
per maand vooruit middels een automatische overboeking.
huurtermijn:
alle WorkZones worden verhuurd voor een periode van twaalf maanden, met daarna verlengingsperioden van telkenmale één maand (opzegtermijn één maand).
huurprijsaanpassing:
jaarlijks, zal de huurprijs worden aangepast aan de stijging van het Consumenten Prijs Indexcijfer (CPI), reeks Alle Huishoudens (2015=100), zoals dit wordt gepubliceerd door het CBS.
servicekosten:
in huurprijs begrepen. Echter huurder draagt zorg voor deugdelijke ordentelijke inrichting en frequente schoonmaak van de WorkZone.
zekerheidstelling:
bij ondertekening van de huurovereenkomst stelt huurder in handen van verhuurder een waarborgsom ter grootte van één maand huur inclusief B.T.W. Over een waarborgsom wordt door verhuurder geen rente vergoed.
huuringangsdatum:
zo spoedig mogelijk na wilsovereenstemming, doch aanvangende op de eerste van de maand volgend op de wilsovereenstemming.
huurovereenkomst:
indien partijen tot overeenstemming komen zullen de hoofd huurvoorwaarden worden vervat in een ROZ huurovereenkomst ex artikel 7:230a aangepast aan de omstandigheden van short-stay zoals hiervoor geschetst omschreven.
Kenmerken
Overdracht
- Huurprijs
- € 595 per maand
- Oorspronkelijke huurprijs
- € 495 per maand
- Servicekosten
- Geen servicekosten bekend
- Aangeboden sinds
-
- Status
- Beschikbaar
- Aanvaarding
- Per direct beschikbaar
Bouw
- Hoofdfunctie
- Kantoor
- Soort bouw
- Bestaande bouw
- Bouwjaar
- 2007
Oppervlakten
- Oppervlakte
- 18 m²
- Perceel
- 820 m²
Indeling
- Aantal bouwlagen
- 2 bouwlagen
- Voorzieningen
- Airconditioning, mechanische ventilatie, liften, toilet en verwarming
Energie
- Energielabel
- A
Omgeving
- Ligging
- In woonwijk en stationslocatie
- Bereikbaarheid
- Bushalte op minder dan 500 m, NS Intercitystation op minder dan 500 m, snelwegafrit op 500 m tot 1000 m en Tramhalte op minder dan 500 m
Parkeergelegenheid
- Parkeerkosten
- Vanaf € 175,- per parkeerplaats per jaar (21% BTW van toepassing)
Foto's