Bankastraat 4 2585 EN Den Haag
€ 1.350 /mnd
Omschrijving
Kantoorruimte / praktijkruimte te huur van in totaal circa 28 m² BVO, gelegen aan de Bankastraat 4 te Den Haag. De winkelruimte ligt in het hart van de Archipel. Deze wijkwinkelstraat beschikt over een ruim en gevarieerd winkelaanbod met diverse landelijk opererende winkelketens zoals Gall&Gall, Primera, Vlaamsch Broodhuys en Albert Heijn. Ook zijn er regionale en lokale ondernemers gevestigd. Daarnaast zijn er diverse aantrekkelijke horecagelegenheden te vinden.
De winkelruimte ligt tussen Von Poll Real Estete en Annahome.
Adres
Bankastraat 4, 2585 EN te Den Haag.
Parkeren
Langs de openbare weg zijn er, te betalen, parkeerplaatsen aanwezig.
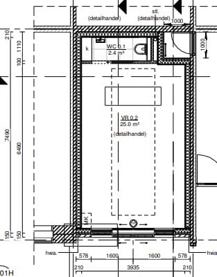
Vloeroppervlak
Kantoorruimte / praktijkruimte en secundaire ruimte, in totaal circa 28 m² BVO, gelegen op de begane grond.
Frontbreedte
Circa 4 meter.
Gebruik
De ruimte is bestemd om te worden gebruik voor:
a. dienstverlening;
b. kantoor;
c. maatschappelijk waaronder wordt verstaan gezondheidszorg, praktijkruimten, kinderopvang, openbare dienstverlening, verenigingsleven, culturele voorzieningen en welzijnsvoorzieningen.
Voor het gehele bestemmingsplan zie: omgevingswet.overheid.nl/regels-op-de-kaart.
Huurprijs
€ 1.350,- per maand, te vermeerderen met BTW.
BTW
Verhuurder zal opteren voor een met BTW belaste verhuur, huurder verleent hiertoe zijn medewerking. Indien niet geopteerd kan worden voor BTW belaste verhuur zal de huurprijs met een nader te bepalen bedrag worden verhoogd.
Huurprijsaanpassing
Jaarlijks, voor het eerst één jaar na ingangsdatum huurovereenkomst, op basis van de wijziging van het maandprijsindexcijfer volgens de consumentenprijsindex (CPI), reeks CPI alle huishoudens (2015=100), gepubliceerd door het Centraal Bureau voor de Statistiek (CBS). De volgens het bovenstaande geïndexeerde huurprijs zal nimmer lager zijn dan die van de voorafgaande huurjaren.
Servicekosten
Niet van toepassing.
Huurder dient voor eigen rekening en risico overeenkomsten te sluiten met de desbetreffende (nuts)bedrijven.
Bijdrage winkeliersvereniging / Bedrijveninvesteringszone (BIZ)
Zie voor meer informatie: denhaag.nl/nl/ondernemen/bedrijveninvesteringszone-biz/.
Betalingen
Per kalendermaand vooruit.
Opleveringsniveau / Staat van verhuur
Verhuurd wordt uitsluitend het casco, maar in de ruimte zijn de volgende voorzieningen aangebracht:
- pantry
- toilet
Onderhoud en vervanging van deze voorzieningen zijn voor rekening en risico van huurder.
Huurtermijn
Minimaal 5 jaar met verlengingsperiodes van steeds 5 jaar.
Opzegtermijn
12 maanden.
Zekerheidsstelling
Onvoorwaardelijke bankgarantie of waarborgsom ter grootte van een betalingsverplichting van tenminste drie maanden huur inclusief BTW.
Huurovereenkomst
Huurovereenkomst kantoorruimte en andere bedrijfsruimte in de zin van artikel 7:230a BW conform het model door de Raad voor Onroerende Zaken (ROZ) in 2015 vastgesteld, alsmede de daarbij behorende algemene bepalingen en bijzondere bepalingen van verhuurder.
Energielabel
Nog niet bekend.
Vloerbelasting
Maximale vloerbelasting is niet meer dan constructief toegestaan.
Aanvaarding
Beschikbaar per 1 januari 2026.
Courtage
Mocht door bemiddeling van Local Joe een transactie tot stand komen, zult u ons hiervoor geen kosten of courtage verschuldigd zijn.
Informatie
Voor meer informatie of een bezichtiging kunt u zich wenden tot:
Local Joe, telefoonnummer: +31 (0) 85 30 33 485 of via het contactformulier.
Disclaimer
Deze objectinformatie is met zorg samengesteld. Aan de verstrekte gegevens kan echter geen enkel recht worden ontleend en voor de juistheid ervan sluiten wij aansprakelijkheid uit. Deze objectinformatie mag niet worden beschouwd als aanbieding of offerte en wordt verstrekt onder het voorbehoud van goedkeuring door verhuurder c.q. verkoper.
De winkelruimte ligt tussen Von Poll Real Estete en Annahome.
Adres
Bankastraat 4, 2585 EN te Den Haag.
Parkeren
Langs de openbare weg zijn er, te betalen, parkeerplaatsen aanwezig.
Vloeroppervlak
Kantoorruimte / praktijkruimte en secundaire ruimte, in totaal circa 28 m² BVO, gelegen op de begane grond.
Frontbreedte
Circa 4 meter.
Gebruik
De ruimte is bestemd om te worden gebruik voor:
a. dienstverlening;
b. kantoor;
c. maatschappelijk waaronder wordt verstaan gezondheidszorg, praktijkruimten, kinderopvang, openbare dienstverlening, verenigingsleven, culturele voorzieningen en welzijnsvoorzieningen.
Voor het gehele bestemmingsplan zie: omgevingswet.overheid.nl/regels-op-de-kaart.
Huurprijs
€ 1.350,- per maand, te vermeerderen met BTW.
BTW
Verhuurder zal opteren voor een met BTW belaste verhuur, huurder verleent hiertoe zijn medewerking. Indien niet geopteerd kan worden voor BTW belaste verhuur zal de huurprijs met een nader te bepalen bedrag worden verhoogd.
Huurprijsaanpassing
Jaarlijks, voor het eerst één jaar na ingangsdatum huurovereenkomst, op basis van de wijziging van het maandprijsindexcijfer volgens de consumentenprijsindex (CPI), reeks CPI alle huishoudens (2015=100), gepubliceerd door het Centraal Bureau voor de Statistiek (CBS). De volgens het bovenstaande geïndexeerde huurprijs zal nimmer lager zijn dan die van de voorafgaande huurjaren.
Servicekosten
Niet van toepassing.
Huurder dient voor eigen rekening en risico overeenkomsten te sluiten met de desbetreffende (nuts)bedrijven.
Bijdrage winkeliersvereniging / Bedrijveninvesteringszone (BIZ)
Zie voor meer informatie: denhaag.nl/nl/ondernemen/bedrijveninvesteringszone-biz/.
Betalingen
Per kalendermaand vooruit.
Opleveringsniveau / Staat van verhuur
Verhuurd wordt uitsluitend het casco, maar in de ruimte zijn de volgende voorzieningen aangebracht:
- pantry
- toilet
Onderhoud en vervanging van deze voorzieningen zijn voor rekening en risico van huurder.
Huurtermijn
Minimaal 5 jaar met verlengingsperiodes van steeds 5 jaar.
Opzegtermijn
12 maanden.
Zekerheidsstelling
Onvoorwaardelijke bankgarantie of waarborgsom ter grootte van een betalingsverplichting van tenminste drie maanden huur inclusief BTW.
Huurovereenkomst
Huurovereenkomst kantoorruimte en andere bedrijfsruimte in de zin van artikel 7:230a BW conform het model door de Raad voor Onroerende Zaken (ROZ) in 2015 vastgesteld, alsmede de daarbij behorende algemene bepalingen en bijzondere bepalingen van verhuurder.
Energielabel
Nog niet bekend.
Vloerbelasting
Maximale vloerbelasting is niet meer dan constructief toegestaan.
Aanvaarding
Beschikbaar per 1 januari 2026.
Courtage
Mocht door bemiddeling van Local Joe een transactie tot stand komen, zult u ons hiervoor geen kosten of courtage verschuldigd zijn.
Informatie
Voor meer informatie of een bezichtiging kunt u zich wenden tot:
Local Joe, telefoonnummer: +31 (0) 85 30 33 485 of via het contactformulier.
Disclaimer
Deze objectinformatie is met zorg samengesteld. Aan de verstrekte gegevens kan echter geen enkel recht worden ontleend en voor de juistheid ervan sluiten wij aansprakelijkheid uit. Deze objectinformatie mag niet worden beschouwd als aanbieding of offerte en wordt verstrekt onder het voorbehoud van goedkeuring door verhuurder c.q. verkoper.
Kenmerken
Overdracht
- Huurprijs
- € 1.350 per maand
- Servicekosten
- Geen servicekosten bekend
- Aangeboden sinds
-
- Status
- Beschikbaar
- Aanvaarding
- Per direct beschikbaar
Bouw
- Hoofdfunctie
- Kantoor
- Mogelijke functie(s)
- Winkelruimte
- Soort bouw
- Bestaande bouw
- Bouwjaar
- 2025
Oppervlakten
- Oppervlakte
- 28 m²
Indeling
- Aantal bouwlagen
- 1 bouwlaag
- Voorzieningen
- Toilet en pantry
Energie
- Energielabel
- Niet verplicht
Omgeving
- Ligging
- Winkelcentrum en in woonwijk
Makelaar
Foto's