Groen van Prinsterersingel 45 2805 TD Gouda
€ 2.500 /mnd

Omschrijving
TE HUUR
Dit moderne en representatieve kantoorpand aan de Groen Van Prinsterersingel 45 te Gouda is een unieke kans om uw zakelijke dromen waar te maken. Met een bouwjaar uit 2007 en gelegen in de gewilde en bruisende wijk Noord, biedt dit pand alles wat een ondernemer nodig heeft. De omgeving biedt een groene uitstraling en is een perfecte mix van wonen en werken. Van professionele vergaderruimtes tot moderne werkplekken; dit kantoorpand is ontworpen om aan al uw zakelijke behoeften te voldoen. Profiteer van het comfort en gemak dat dit pand te bieden heeft en zet de volgende stap in de groei van uw bedrijf. Er is 219 m² kantoorruimte beschikbaar op de tweede verdieping.
Met een royale perceeloppervlakte van 507 m² biedt dit pand u de ruimte om uw zakelijke visie te realiseren. Of u nu op zoek bent naar een inspirerende kantooromgeving, een functionele bedrijfsruimte of beiden, hier vindt u de perfecte setting voor uw onderneming.
LOCATIE
Het pand is gelegen ten noorden van het centrum van Gouda. Meer specifiek in de wijk Noord en de buurt Ouwe Gouwe. De locatie wordt omringd door de enkele gebouwde sportaccommodaties.
BEREIKBAARHEID
Voor autoverkeer is er een goede ontsluiting naar de Burgemeester van Reenensingel en de Bodegraafsestraatweg. De aansluiting naar de A12 is op 4 km. Het treinstation is hemelsbreed op 1 kilometer afstand. Direct bij het pand is een bushalte met een rechtstreekse verbinding naar het NS-station Gouda.
VLOEROPPERVLAKTE
De totaal verhuurbare vloeroppervlakte van het gebouw bedraagt 657 m²
Begane grond 222 m² VERHUURD
Eerste verdieping 216 m² VERHUURD
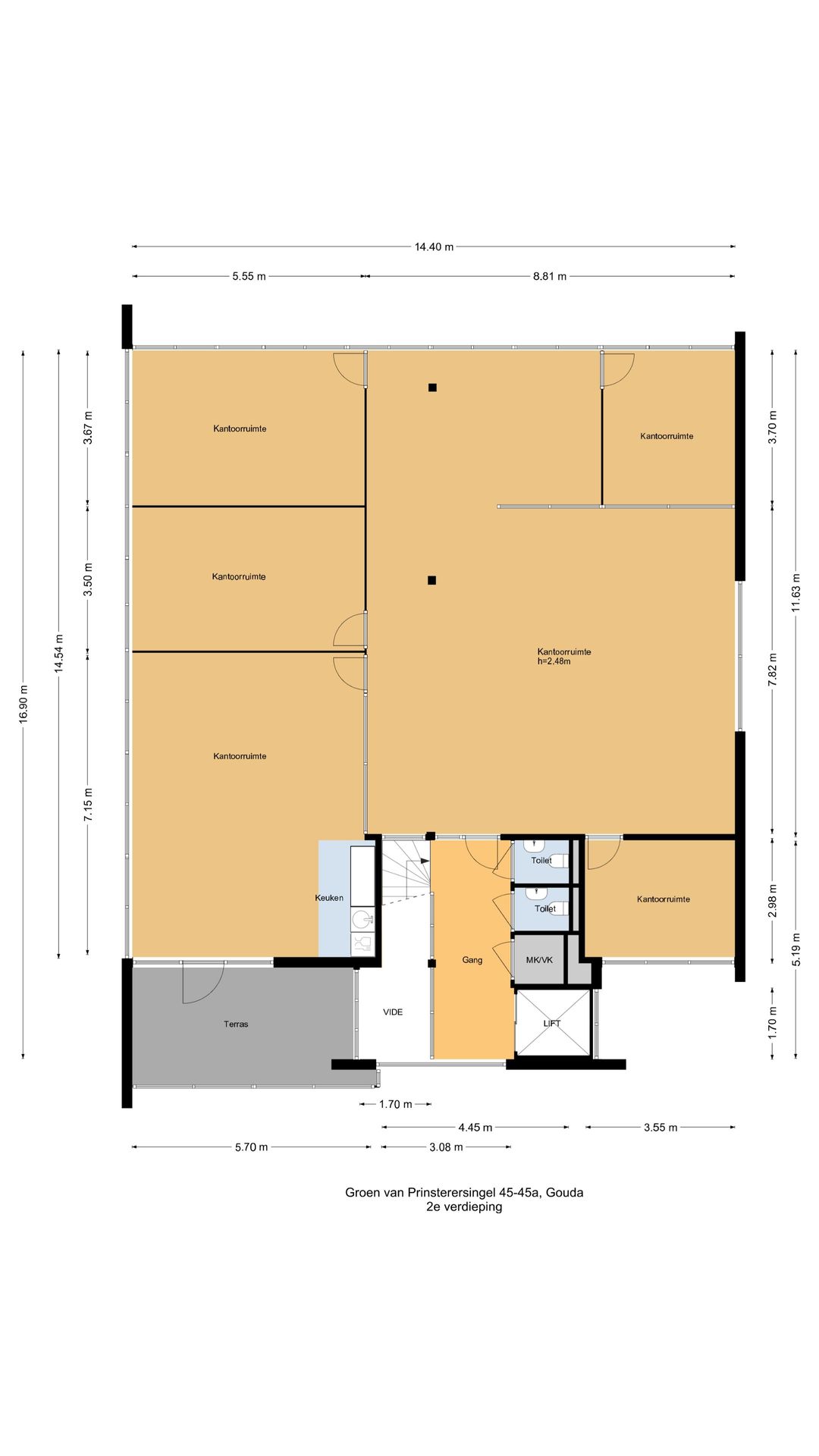
Tweede verdieping 219 m²
KADASTRALE GEGEVENS
Gemeente Gouda, Sectie I, nummer 3771.
Perceeloppervlakte 507 m²
PARKEREN
Er zijn 5 parkeerplaatsen beschikbaar.
VOORZIENINGEN
De ruimte op de begane grond is onder meer voorzien van:
• Systeemplafond plus verlichting;
• Gebalanceerde warmte-/koelinginstallatie;
• Pantry;
• Eigen toiletunits;
• Liftinstallatie;
• Intercominstallatie;
• Beveiligingsinstallatie;
• Glasvezel aanwezig.
HUURPRIJS
€ 2.500,- per maand te vermeerderen met BTW.
Indien de BTW niet kan worden verrekend dan zal de huurprijs met een nader vast te stellen bedrag worden verhoogd.
PARKEREN
€ 600,- per plaats per jaar te vermeerderen met BTW.
SERVICEKOSTEN
Huurder dient zelf de inkoop te regelen van voorzieningen als, nutsvoorzieningen, glasbewassing, vuilafvoer, beveiligingsinstallatie en alarmopvolging ed. Verhuurder houdt de onderhoudscontract van de gebouw gebonden klimaatinstallaties.
HUURPRIJSAANPASSING
Jaarlijks voor het eerst één jaar na datum ingebruikname, zal de huurprijs worden aangepast op basis van de wijziging van het maandindexcijfer volgens consumentenprijsindex (CPI), 2015=100, reeks alle huishoudens.
BETALINGEN
Huur en BTW per maand vooruit.
ZEKERHEIDSSTELLING
Bankgarantie ter grootte van drie maanden huur, inclusief servicekosten en BTW.
HUURTERMIJN
5 jaar, korter bespreekbaar.
VERLENGINGSTERMIJN
Nader overeen te komen.
OPZEGTERMIJN
Nader overeen te komen.
OVERIGE CONDITIES
Huurovereenkomst op basis van het standaardmodel van de Raad voor Onroerende Zaken (ROZ).
AANVAARDING
In overleg.
VOORBEHOUD
Elke transactie behoeft de nadrukkelijke goedkeuring van eigenaar.
DISCLAIMER
Al het bovenstaande betreft informatie omtrent de verhuur van dit adres. De informatie is met zorg samengesteld, maar voor de juistheid ervan kan door Bij Abram Bedrijfsmakelaardij geen aansprakelijkheid worden aanvaard noch aan de vermelde gegevens enig recht worden ontleend. Nadrukkelijk is vermeld dat deze informatieverstrekking niet als een aanbieding of offerte mag worden beschouwd.
Dit moderne en representatieve kantoorpand aan de Groen Van Prinsterersingel 45 te Gouda is een unieke kans om uw zakelijke dromen waar te maken. Met een bouwjaar uit 2007 en gelegen in de gewilde en bruisende wijk Noord, biedt dit pand alles wat een ondernemer nodig heeft. De omgeving biedt een groene uitstraling en is een perfecte mix van wonen en werken. Van professionele vergaderruimtes tot moderne werkplekken; dit kantoorpand is ontworpen om aan al uw zakelijke behoeften te voldoen. Profiteer van het comfort en gemak dat dit pand te bieden heeft en zet de volgende stap in de groei van uw bedrijf. Er is 219 m² kantoorruimte beschikbaar op de tweede verdieping.
Met een royale perceeloppervlakte van 507 m² biedt dit pand u de ruimte om uw zakelijke visie te realiseren. Of u nu op zoek bent naar een inspirerende kantooromgeving, een functionele bedrijfsruimte of beiden, hier vindt u de perfecte setting voor uw onderneming.
LOCATIE
Het pand is gelegen ten noorden van het centrum van Gouda. Meer specifiek in de wijk Noord en de buurt Ouwe Gouwe. De locatie wordt omringd door de enkele gebouwde sportaccommodaties.
BEREIKBAARHEID
Voor autoverkeer is er een goede ontsluiting naar de Burgemeester van Reenensingel en de Bodegraafsestraatweg. De aansluiting naar de A12 is op 4 km. Het treinstation is hemelsbreed op 1 kilometer afstand. Direct bij het pand is een bushalte met een rechtstreekse verbinding naar het NS-station Gouda.
VLOEROPPERVLAKTE
De totaal verhuurbare vloeroppervlakte van het gebouw bedraagt 657 m²
Begane grond 222 m² VERHUURD
Eerste verdieping 216 m² VERHUURD
Tweede verdieping 219 m²
KADASTRALE GEGEVENS
Gemeente Gouda, Sectie I, nummer 3771.
Perceeloppervlakte 507 m²
PARKEREN
Er zijn 5 parkeerplaatsen beschikbaar.
VOORZIENINGEN
De ruimte op de begane grond is onder meer voorzien van:
• Systeemplafond plus verlichting;
• Gebalanceerde warmte-/koelinginstallatie;
• Pantry;
• Eigen toiletunits;
• Liftinstallatie;
• Intercominstallatie;
• Beveiligingsinstallatie;
• Glasvezel aanwezig.
HUURPRIJS
€ 2.500,- per maand te vermeerderen met BTW.
Indien de BTW niet kan worden verrekend dan zal de huurprijs met een nader vast te stellen bedrag worden verhoogd.
PARKEREN
€ 600,- per plaats per jaar te vermeerderen met BTW.
SERVICEKOSTEN
Huurder dient zelf de inkoop te regelen van voorzieningen als, nutsvoorzieningen, glasbewassing, vuilafvoer, beveiligingsinstallatie en alarmopvolging ed. Verhuurder houdt de onderhoudscontract van de gebouw gebonden klimaatinstallaties.
HUURPRIJSAANPASSING
Jaarlijks voor het eerst één jaar na datum ingebruikname, zal de huurprijs worden aangepast op basis van de wijziging van het maandindexcijfer volgens consumentenprijsindex (CPI), 2015=100, reeks alle huishoudens.
BETALINGEN
Huur en BTW per maand vooruit.
ZEKERHEIDSSTELLING
Bankgarantie ter grootte van drie maanden huur, inclusief servicekosten en BTW.
HUURTERMIJN
5 jaar, korter bespreekbaar.
VERLENGINGSTERMIJN
Nader overeen te komen.
OPZEGTERMIJN
Nader overeen te komen.
OVERIGE CONDITIES
Huurovereenkomst op basis van het standaardmodel van de Raad voor Onroerende Zaken (ROZ).
AANVAARDING
In overleg.
VOORBEHOUD
Elke transactie behoeft de nadrukkelijke goedkeuring van eigenaar.
DISCLAIMER
Al het bovenstaande betreft informatie omtrent de verhuur van dit adres. De informatie is met zorg samengesteld, maar voor de juistheid ervan kan door Bij Abram Bedrijfsmakelaardij geen aansprakelijkheid worden aanvaard noch aan de vermelde gegevens enig recht worden ontleend. Nadrukkelijk is vermeld dat deze informatieverstrekking niet als een aanbieding of offerte mag worden beschouwd.
Kenmerken
Overdracht
- Huurprijs
- € 2.500 per maand
- Oorspronkelijke huurprijs
- € 7.500 per maand
- Servicekosten
- Geen servicekosten bekend
- Aangeboden sinds
-
- Status
- Beschikbaar
- Aanvaarding
- In overleg
Bouw
- Hoofdfunctie
- Kantoor
- Soort bouw
- Bestaande bouw
- Bouwjaar
- 2007
Oppervlakten
- Oppervlakte
- 219 m²
- Perceel
- 507 m²
Indeling
- Aantal bouwlagen
- 1 bouwlaag
- Voorzieningen
- Liften, systeemplafond, toilet, pantry en verwarming
Energie
- Energielabel
- A++
Omgeving
- Ligging
- In woonwijk
- Bereikbaarheid
- Bushalte op minder dan 500 m, busknooppunt op 1000 m tot 1500 m, NS Intercitystation op 2000 m tot 3000 m en snelwegafrit op 3000 m tot 4000 m
- Lokale voorzieningen
- Restaurant op 500 m tot 1000 m en winkel op 500 m tot 1000 m
Parkeergelegenheid
- Parkeerplaatsen
- 17 niet-overdekte parkeerplaatsen
Foto's









































Plattegrond
Begane grond

1e verdieping

2e verdieping
