Marie Curiestraat 51 3846 BW Harderwijk
- Nieuw
€ 3.800 /mnd

Omschrijving
Te huur: Marie Curiestraat 51 Harderwijk
Nette, kant en klare kantoorruimte mét parkeerplaatsen voor de deur! Met energiebesparende voorzieningen, zoals zonnepanelen en moderne klimaatbeheersing, is dit gebouw ideaal voor bedrijven die streven naar een duurzame en professionele uitstraling.
Vlakbij de doorgaande weg N302, goed bereikbaar gelegen aan de rand van industrieterrein Lorentz op een paar minuten rijden van de Rijksweg A28.
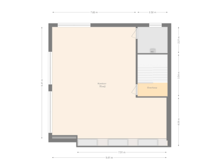
VERHUURBARE VLOEROPPERVLAKTE
Totaal ca. 340 m², verdeeld over 4 verdiepingen;
- begane grond ca. 91 m²:
- 1e verdieping ca. 67 m²:
- 2e verdieping ca. 91 m²:
- 3e verdieping ca. 91 m².
OPLEVERINGSNIVEAU / VOORZIENINGEN
De kantoorruimte wordt opgeleverd voorzien van:
- cv-ketel met radiatoren (2022/2023 vervangen);
- Led-verlichting, al het TL-verlichting is vervangen;
- diverse airco-units;
- 28 zonnepanelen aanwezig;
- systeemplafonds met verlichtingsarmaturen;
- pantry en twee toiletten;
- tapijt;
- brandalarm/alarmsysteem aanwezig;
- glasvezelaansluiting;
- in overleg met verhuurder wordt er nieuwe vloerbedekking gelegd.
Medio 2026 wordt het pand geschilderd aan de buitenkant.
ENERGIELABEL
De kantoorruimte heeft een energieprestatiecertificaat A++ geldig tot en met 26-09-2032.
BESTEMMING:
Volgens het actuele bestemmingsplan heeft gebouw een bestemming "Gemengd” waardoor bedrijven behorend tot categorie 1 tot en met 5.3 welke zijn opgenomen in bijlage 1 staat van bedrijfsactiviteiten. Als huurder bent u zelf verantwoordelijk om navraag te doen naar het actuele bestemmingsplan bij de gemeente. Aan deze omschrijving kunnen geen rechten ontleend worden.
HUURPRIJS:
€ 3.800,- per maand exclusief BTW en servicekosten.
HUURTERMIJN
5 jaar, of nader in overleg met verhuurder te bepalen.
VOORTZETTINGSTERMIJN
In overleg met verhuurder te bepalen.
BETALINGEN
Per maand vooraf.
AANVAARDING
In overleg te bepalen.
OMZETBELASTING
Bij het vaststellen van de huurprijs is uitgangspunt geweest dat de huurder het gehuurde voor tenminste het bij de wet vastgestelde of nader vast te stellen minimum percentage blijvend zal gebruiken voor prestaties die recht geven op aftrek van BTW, zodanig dat kan worden geopteerd voor belaste (ver-)huur. Indien een niet BTW belaste verhuur wordt overeengekomen zal een opslag op de huurprijs worden berekend.
ZEKERHEIDSTELLING
Huurder dient een bankgarantie te stellen of een waarborgsom te voldoen ter grootte van 3 maanden huur en servicekosten, te vermeerderen met BTW.
HUUROVEREENKOMST
Huurovereenkomst Kantoorruimte en andere Bedrijfsruimte in de zin van artikel 7:230a BW, volgens het model door de Raad voor Onroerende Zaken (ROZ) in januari 2015 vastgesteld en in april 2024 aangepast.
INDEXERING
Jaarlijks, op basis van het Consumenten Prijsindexcijfer (CPI), reeks Alle Huishoudens (2015=100) voor het eerst één jaar na ingangsdatum.
VOORBEHOUD
De huidige eigenaar van het object heeft een opdracht tot dienstverlening verstrekt aan Hagenbeek Vastgoed. Deze informatie is bedoeld als een geheel vrijblijvende aanbieding en onder voorbehoud. Hieraan kunnen geen rechten worden ontleend. Door aanvaarding van de vermelde condities of het uitbrengen van een bieding, worden onze opdrachtgever(s) en wij niet gebonden en leidt het evenmin tot de verplichting tot het doen van een tegenbod.
BEZICHTIGINGEN EN VRAGEN
Voor een afspraak voor een bezichtiging of overige vragen belt u 0341 - 496 518 of stuurt u een mail naar ons.
DISCLAIMER
Nadrukkelijk is vermeld dat deze informatieverstrekking niet als een aanbieding of offerte mag worden beschouwd. Ten aanzien van eventuele onjuistheden kunnen geen rechten worden ontleend. Deze aanbieding is met grote zorgvuldigheid samengesteld. Voor mogelijke onjuistheid en/of onvolledigheid van de hierin verstrekte informatie kan Hagenbeek Vastgoed geen aansprakelijkheid aanvaarden, evenmin kunnen aan de inhoud van deze aanbieding rechten worden ontleend. Iedere aansprakelijkheid is beperkt tot het bedrag dat in het betreffende geval onder de beroepsaansprakelijkheidsverzekering wordt uitbetaald.
Nette, kant en klare kantoorruimte mét parkeerplaatsen voor de deur! Met energiebesparende voorzieningen, zoals zonnepanelen en moderne klimaatbeheersing, is dit gebouw ideaal voor bedrijven die streven naar een duurzame en professionele uitstraling.
Vlakbij de doorgaande weg N302, goed bereikbaar gelegen aan de rand van industrieterrein Lorentz op een paar minuten rijden van de Rijksweg A28.
VERHUURBARE VLOEROPPERVLAKTE
Totaal ca. 340 m², verdeeld over 4 verdiepingen;
- begane grond ca. 91 m²:
- 1e verdieping ca. 67 m²:
- 2e verdieping ca. 91 m²:
- 3e verdieping ca. 91 m².
OPLEVERINGSNIVEAU / VOORZIENINGEN
De kantoorruimte wordt opgeleverd voorzien van:
- cv-ketel met radiatoren (2022/2023 vervangen);
- Led-verlichting, al het TL-verlichting is vervangen;
- diverse airco-units;
- 28 zonnepanelen aanwezig;
- systeemplafonds met verlichtingsarmaturen;
- pantry en twee toiletten;
- tapijt;
- brandalarm/alarmsysteem aanwezig;
- glasvezelaansluiting;
- in overleg met verhuurder wordt er nieuwe vloerbedekking gelegd.
Medio 2026 wordt het pand geschilderd aan de buitenkant.
ENERGIELABEL
De kantoorruimte heeft een energieprestatiecertificaat A++ geldig tot en met 26-09-2032.
BESTEMMING:
Volgens het actuele bestemmingsplan heeft gebouw een bestemming "Gemengd” waardoor bedrijven behorend tot categorie 1 tot en met 5.3 welke zijn opgenomen in bijlage 1 staat van bedrijfsactiviteiten. Als huurder bent u zelf verantwoordelijk om navraag te doen naar het actuele bestemmingsplan bij de gemeente. Aan deze omschrijving kunnen geen rechten ontleend worden.
HUURPRIJS:
€ 3.800,- per maand exclusief BTW en servicekosten.
HUURTERMIJN
5 jaar, of nader in overleg met verhuurder te bepalen.
VOORTZETTINGSTERMIJN
In overleg met verhuurder te bepalen.
BETALINGEN
Per maand vooraf.
AANVAARDING
In overleg te bepalen.
OMZETBELASTING
Bij het vaststellen van de huurprijs is uitgangspunt geweest dat de huurder het gehuurde voor tenminste het bij de wet vastgestelde of nader vast te stellen minimum percentage blijvend zal gebruiken voor prestaties die recht geven op aftrek van BTW, zodanig dat kan worden geopteerd voor belaste (ver-)huur. Indien een niet BTW belaste verhuur wordt overeengekomen zal een opslag op de huurprijs worden berekend.
ZEKERHEIDSTELLING
Huurder dient een bankgarantie te stellen of een waarborgsom te voldoen ter grootte van 3 maanden huur en servicekosten, te vermeerderen met BTW.
HUUROVEREENKOMST
Huurovereenkomst Kantoorruimte en andere Bedrijfsruimte in de zin van artikel 7:230a BW, volgens het model door de Raad voor Onroerende Zaken (ROZ) in januari 2015 vastgesteld en in april 2024 aangepast.
INDEXERING
Jaarlijks, op basis van het Consumenten Prijsindexcijfer (CPI), reeks Alle Huishoudens (2015=100) voor het eerst één jaar na ingangsdatum.
VOORBEHOUD
De huidige eigenaar van het object heeft een opdracht tot dienstverlening verstrekt aan Hagenbeek Vastgoed. Deze informatie is bedoeld als een geheel vrijblijvende aanbieding en onder voorbehoud. Hieraan kunnen geen rechten worden ontleend. Door aanvaarding van de vermelde condities of het uitbrengen van een bieding, worden onze opdrachtgever(s) en wij niet gebonden en leidt het evenmin tot de verplichting tot het doen van een tegenbod.
BEZICHTIGINGEN EN VRAGEN
Voor een afspraak voor een bezichtiging of overige vragen belt u 0341 - 496 518 of stuurt u een mail naar ons.
DISCLAIMER
Nadrukkelijk is vermeld dat deze informatieverstrekking niet als een aanbieding of offerte mag worden beschouwd. Ten aanzien van eventuele onjuistheden kunnen geen rechten worden ontleend. Deze aanbieding is met grote zorgvuldigheid samengesteld. Voor mogelijke onjuistheid en/of onvolledigheid van de hierin verstrekte informatie kan Hagenbeek Vastgoed geen aansprakelijkheid aanvaarden, evenmin kunnen aan de inhoud van deze aanbieding rechten worden ontleend. Iedere aansprakelijkheid is beperkt tot het bedrag dat in het betreffende geval onder de beroepsaansprakelijkheidsverzekering wordt uitbetaald.
Kenmerken
Overdracht
- Huurprijs
- € 3.800 per maand
- Servicekosten
- Geen servicekosten bekend
- Aangeboden sinds
-
- Status
- Beschikbaar
- Aanvaarding
- In overleg
Bouw
- Hoofdfunctie
- Kantoor
- Soort bouw
- Bestaande bouw
- Bouwjaar
- 2002
Oppervlakten
- Oppervlakte
- 340 m²
- Perceel
- 1.656 m²
Indeling
- Aantal bouwlagen
- 4 bouwlagen
- Voorzieningen
- Kabelgoten, systeemplafond, toilet, pantry en verwarming
Energie
- Energielabel
- A++
Omgeving
- Ligging
- Bedrijventerrein
- Bereikbaarheid
- Bushalte op minder dan 500 m, NS Intercitystation op 2000 m tot 3000 m en snelwegafrit op 500 m tot 1000 m
Parkeergelegenheid
- Parkeerplaatsen
- 6 niet-overdekte parkeerplaatsen
Foto's












Plattegrond
First floor

Floor 1

Floor 2

Floor 3
