Turfschip 13 8447 DM Heerenveen
€ 350.000 k.k.

Omschrijving
Half-vrijstaand representatief bedrijfsgebouw met een verhuurbaar vloeroppervlakte van ca. 300 m² en ruime parkeergelegenheid op eigen voor- en zijterrein gelegen op een goede bereikbare hoeklocatie op bedrijventerrein 'Nijehaske'. Perceeloppervlakte 841 m². De locatie kent een brede bestemming en de gebruiksmogelijkheden zijn divers.
LIGGING/BEREIKBAARHEID
Zeer goed bereikbaar per fiets, auto, openbaar vervoer en vrachtverkeer. De rijksweg A7 bevindt zich op steenworp afstand. Op loopafstand van NS-station. Parkeergelegenheid voor ca. 10 auto's op eigen terrein.
INDELING
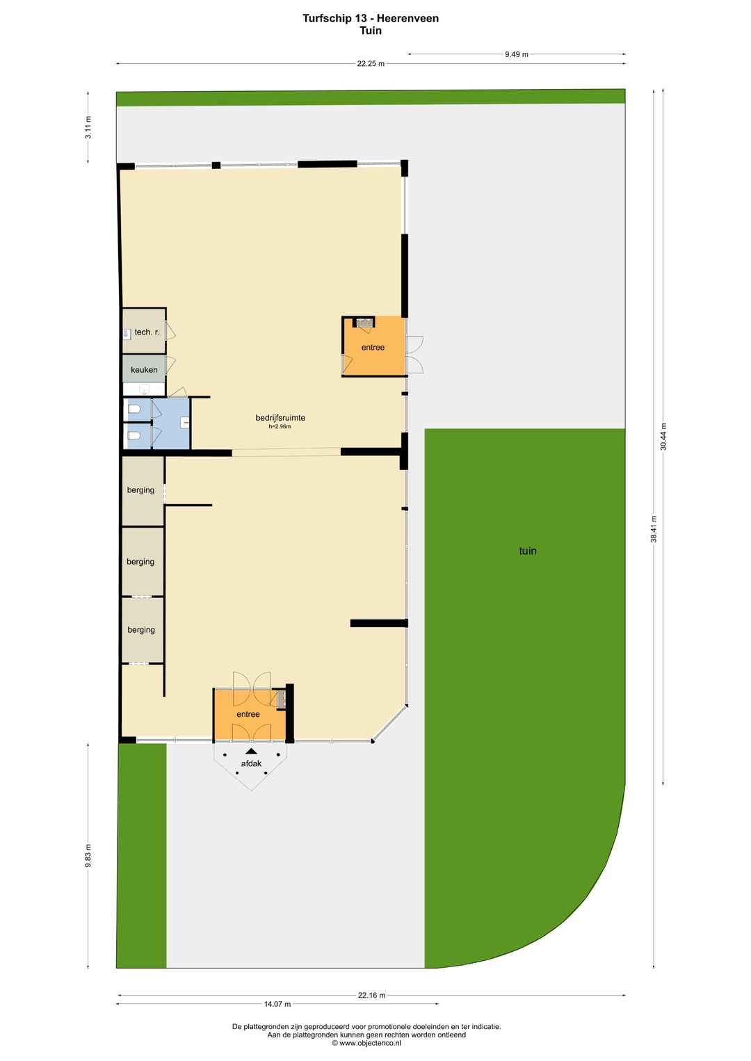
Totaal vloeroppervlakte ca. 300 m² bestaande uit een overdekte voorentree met een tochtportaal, showroom, toiletgroep, pantry, c.v.-ruimte, een zij-entree en magazijnruimte v.v. een overheaddeur.
OVERIG
De ruimte is vrij en naar wens in te delen en kan eventueel ook nog worden opgedeeld in twee units.
De vrije hoogte bedraagt ca. 3.00 meter tot het systeemplafond en ca. 3.50 meter tot onderkant dak.
De afmetingen van het object zijn 12.60m x 25.80 m.
BESTEMMING
Bestemmingsplan Heerenveen Nijehaske; enkelbestemming 'bedrijf' met de functieaanduidingen:
- perifere detailhandel
- bedrijf tot en met categorie 3.1
- sport gerelateerde activiteiten
- kapsalon, schoonheidssalon e.d
Voor uitgebreide informatie verwijzen we u naar Omgevingsloket.nl of informeer bij de gemeente Heerenveen.
BIJZONDERHEDEN
De mogelijkheid bestaat om (in combinatie met het aangebodene) tevens de andere helft (Turfschip 11) aan te kopen.
Dit pand is ingericht, in gebruik en bestemd als kantoor en kent eveneens een vloeroppervlakte van ca. 300 m².
VERKOOPVOORWAARDEN
Aanvaarding:
In overleg.
Zekerheidsstelling:
Bankgarantie of waarborgsom ter grootte van 10% van de koopsom.
Opleveringsniveau:
In huidige staat.
NADERE INLICHTINGEN
Makelaardij Terpstra
de heer Wietse Terpstra
0513-626215 / 06-53416405
DISCLAIMER
Deze aanbieding (inclusief bijlagen) van 'Makelaardij Terpstra BV’ is met grote zorgvuldigheid samengesteld. Voor mogelijke onjuistheid en/of onvolledigheid van de hierin verstrekte informatie kan 'Makelaardij Terpstra’ geen aansprakelijkheid aanvaarden, evenmin kunnen aan de inhoud van deze aanbieding (inclusief bijlagen) rechten worden ontleend.
LIGGING/BEREIKBAARHEID
Zeer goed bereikbaar per fiets, auto, openbaar vervoer en vrachtverkeer. De rijksweg A7 bevindt zich op steenworp afstand. Op loopafstand van NS-station. Parkeergelegenheid voor ca. 10 auto's op eigen terrein.
INDELING
Totaal vloeroppervlakte ca. 300 m² bestaande uit een overdekte voorentree met een tochtportaal, showroom, toiletgroep, pantry, c.v.-ruimte, een zij-entree en magazijnruimte v.v. een overheaddeur.
OVERIG
De ruimte is vrij en naar wens in te delen en kan eventueel ook nog worden opgedeeld in twee units.
De vrije hoogte bedraagt ca. 3.00 meter tot het systeemplafond en ca. 3.50 meter tot onderkant dak.
De afmetingen van het object zijn 12.60m x 25.80 m.
BESTEMMING
Bestemmingsplan Heerenveen Nijehaske; enkelbestemming 'bedrijf' met de functieaanduidingen:
- perifere detailhandel
- bedrijf tot en met categorie 3.1
- sport gerelateerde activiteiten
- kapsalon, schoonheidssalon e.d
Voor uitgebreide informatie verwijzen we u naar Omgevingsloket.nl of informeer bij de gemeente Heerenveen.
BIJZONDERHEDEN
De mogelijkheid bestaat om (in combinatie met het aangebodene) tevens de andere helft (Turfschip 11) aan te kopen.
Dit pand is ingericht, in gebruik en bestemd als kantoor en kent eveneens een vloeroppervlakte van ca. 300 m².
VERKOOPVOORWAARDEN
Aanvaarding:
In overleg.
Zekerheidsstelling:
Bankgarantie of waarborgsom ter grootte van 10% van de koopsom.
Opleveringsniveau:
In huidige staat.
NADERE INLICHTINGEN
Makelaardij Terpstra
de heer Wietse Terpstra
0513-626215 / 06-53416405
DISCLAIMER
Deze aanbieding (inclusief bijlagen) van 'Makelaardij Terpstra BV’ is met grote zorgvuldigheid samengesteld. Voor mogelijke onjuistheid en/of onvolledigheid van de hierin verstrekte informatie kan 'Makelaardij Terpstra’ geen aansprakelijkheid aanvaarden, evenmin kunnen aan de inhoud van deze aanbieding (inclusief bijlagen) rechten worden ontleend.
Kenmerken
Overdracht
- Vraagprijs
- € 350.000 kosten koper
- Aangeboden sinds
-
- Status
- Beschikbaar
- Aanvaarding
- In overleg
Bouw
- Hoofdfunctie
- Winkel met showroom
- Mogelijke functie(s)
- Kantoorruimte
- Soort bouw
- Bestaande bouw
- Bouwjaar
- 1995
Oppervlakten
- Oppervlakte
- 300 m²
- Perceel
- 841 m²
Indeling
- Aantal bouwlagen
- 1 bouwlaag
Energie
- Energielabel
- D 1,41
Omgeving
- Ligging
- Bedrijventerrein, meubelboulevard, stationslocatie en perifere detailhandelsvestigingen
Foto's























