De Biezen 30 3355 ES Papendrecht
€ 950 /mnd

Omschrijving
Aan De Biezen 30 in Papendrecht bieden wij een geheel gemoderniseerde kantoorruimte te huur aan die perfect is voor ondernemers, ZZP’ers of kleine bedrijven. De hoekunit is onderdeel van een kleinschalig bedrijfsverzamelgebouw en beschikt over een eigen entree, nette afwerking en goede daglichttoetreding.
De ruimte is praktisch ingedeeld en voorzien van voorzieningen zoals verwarming, airco, LED-verlichting en pantry met koelkast. De kantoorruimte is per direct beschikbaar en kan in overleg naar wens worden aangepast. Parkeergelegenheid is ruimschoots aanwezig voor de deur. Een uitstekende keuze voor wie een efficiënte werkplek zoekt met een professionele uitstraling.
Locatie
De kantoorruimte bevindt zich op een strategische locatie aan De Biezen in Papendrecht, op het bedrijventerrein Oosteind. Dit terrein is gunstig gelegen nabij de op- en afritten van de A15, waardoor steden als Dordrecht, Rotterdam en Gorinchem snel bereikbaar zijn. Ook het openbaar vervoer is binnen handbereik; bushaltes bevinden zich op loopafstand.
In de directe omgeving zijn diverse andere bedrijven en voorzieningen gevestigd, wat zorgt voor een levendige, maar professionele werkomgeving. De ligging biedt bovendien uitstekende mogelijkheden voor klantenontvangst, logistiek en dagelijkse bereikbaarheid.
Bouwjaar
Omstreeks 1997
Energielabel
A, geldig tot februari 2028
Oppervlakten
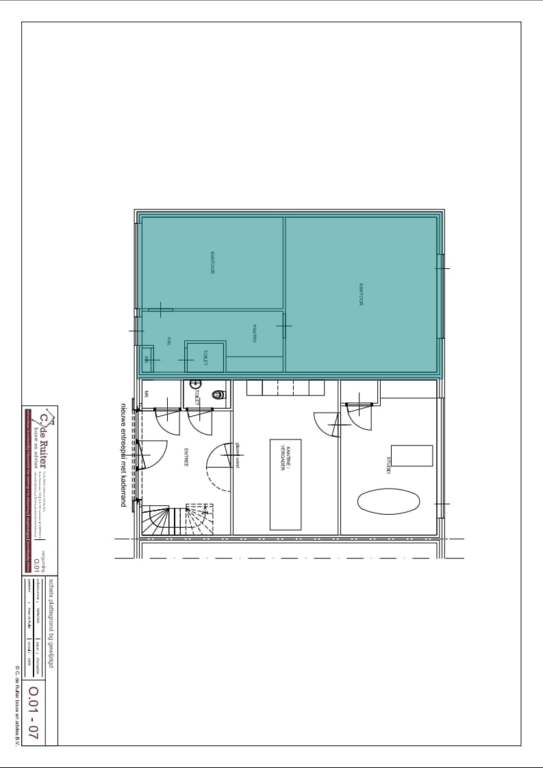
Begane grond
• Kantoorruimte/pantry 70 m²
Totale oppervlakte circa 70 m²
Parkeren
In de directe omgeving is gratis openbare parkeergelegenheid beschikbaar.
Bestemmingsplan
Ter plaatse is het bestemmingsplan “Beheersverordening Papendrecht” van kracht. Het onderhavige perceel heeft de bestemming ‘kantoor’ en is daarmee o.a. geschikt voor:
a. bedrijven van categorie 1 en 2, die zijn opgenomen in de Staat van bedrijfsactiviteiten die als Bijlage1 bij deze regels is gevoegd, met inbegrip van bedrijfsgebonden kantoren en met uitzondering van:
1. geluidzoneringsplichtige inrichtingen en
2. risicovolle inrichtingen;
b. tevens zelfstandige kantoren en/of dienstverlening ter plaatse van de aanduiding 'kantoor' met inachtname van het bepaalde in artikel 4.3.2;
Meer informatie vindt u in het bestemmingsplan via
• onderheide fundering
• betonnen vloer begane grond
• metselwerk gevels
• aluminium kozijnen met isolerende beglazing
• glasvezel-aansluiting in meterkast
• aansluitingen voor elektra, gas, water
• brandblusmiddelen
Voorzieningen/installaties
Kantoorruimte begane grond
• entree/hal met meterkast
• geheel betegelde toiletruimte v.v. fonteintje
• pantry met onder- en bovenkastjes, spoelbak v.v. warm water en koelkast
• systeemplafonds met LED verlichtingsarmaturen
• verwarming door middel van CV-installatie met radiatoren
• koeling (gedeeltelijk) door middel van airco splitunit
• wandcontactdozen
Huurprijs
€ 950,- per maand excl. BTW
Servicekosten c.q. voorschot energiekosten
Nutsvoorzieningen elektra, gas en water worden op naam van huurder gesteld.
Idem voor de internetverbinding.
Servicekosten in overleg met verhuurder.
Huurtermijn
Uitgangspunt is een huurperiode van 5 jaar
Aanvaarding
In overleg
Voor meer vragen en/of een vrijblijvende bezichtiging, kunt u contact met ons opnemen via telefoonnummer (0183) 30 40 50 of mail naar
De ruimte is praktisch ingedeeld en voorzien van voorzieningen zoals verwarming, airco, LED-verlichting en pantry met koelkast. De kantoorruimte is per direct beschikbaar en kan in overleg naar wens worden aangepast. Parkeergelegenheid is ruimschoots aanwezig voor de deur. Een uitstekende keuze voor wie een efficiënte werkplek zoekt met een professionele uitstraling.
Locatie
De kantoorruimte bevindt zich op een strategische locatie aan De Biezen in Papendrecht, op het bedrijventerrein Oosteind. Dit terrein is gunstig gelegen nabij de op- en afritten van de A15, waardoor steden als Dordrecht, Rotterdam en Gorinchem snel bereikbaar zijn. Ook het openbaar vervoer is binnen handbereik; bushaltes bevinden zich op loopafstand.
In de directe omgeving zijn diverse andere bedrijven en voorzieningen gevestigd, wat zorgt voor een levendige, maar professionele werkomgeving. De ligging biedt bovendien uitstekende mogelijkheden voor klantenontvangst, logistiek en dagelijkse bereikbaarheid.
Bouwjaar
Omstreeks 1997
Energielabel
A, geldig tot februari 2028
Oppervlakten
Begane grond
• Kantoorruimte/pantry 70 m²
Totale oppervlakte circa 70 m²
Parkeren
In de directe omgeving is gratis openbare parkeergelegenheid beschikbaar.
Bestemmingsplan
Ter plaatse is het bestemmingsplan “Beheersverordening Papendrecht” van kracht. Het onderhavige perceel heeft de bestemming ‘kantoor’ en is daarmee o.a. geschikt voor:
a. bedrijven van categorie 1 en 2, die zijn opgenomen in de Staat van bedrijfsactiviteiten die als Bijlage1 bij deze regels is gevoegd, met inbegrip van bedrijfsgebonden kantoren en met uitzondering van:
1. geluidzoneringsplichtige inrichtingen en
2. risicovolle inrichtingen;
b. tevens zelfstandige kantoren en/of dienstverlening ter plaatse van de aanduiding 'kantoor' met inachtname van het bepaalde in artikel 4.3.2;
Meer informatie vindt u in het bestemmingsplan via
• onderheide fundering
• betonnen vloer begane grond
• metselwerk gevels
• aluminium kozijnen met isolerende beglazing
• glasvezel-aansluiting in meterkast
• aansluitingen voor elektra, gas, water
• brandblusmiddelen
Voorzieningen/installaties
Kantoorruimte begane grond
• entree/hal met meterkast
• geheel betegelde toiletruimte v.v. fonteintje
• pantry met onder- en bovenkastjes, spoelbak v.v. warm water en koelkast
• systeemplafonds met LED verlichtingsarmaturen
• verwarming door middel van CV-installatie met radiatoren
• koeling (gedeeltelijk) door middel van airco splitunit
• wandcontactdozen
Huurprijs
€ 950,- per maand excl. BTW
Servicekosten c.q. voorschot energiekosten
Nutsvoorzieningen elektra, gas en water worden op naam van huurder gesteld.
Idem voor de internetverbinding.
Servicekosten in overleg met verhuurder.
Huurtermijn
Uitgangspunt is een huurperiode van 5 jaar
Aanvaarding
In overleg
Voor meer vragen en/of een vrijblijvende bezichtiging, kunt u contact met ons opnemen via telefoonnummer (0183) 30 40 50 of mail naar
Kenmerken
Overdracht
- Huurprijs
- € 950 per maand
- Servicekosten
- Geen servicekosten bekend
- Aangeboden sinds
-
- Status
- Beschikbaar
- Aanvaarding
- In overleg
Bouw
- Hoofdfunctie
- Kantoor
- Soort bouw
- Bestaande bouw
- Bouwjaar
- 1997
Oppervlakten
- Oppervlakte
- 70 m²
Indeling
- Aantal bouwlagen
- 1 bouwlaag
- Voorzieningen
- Airconditioning, te openen ramen, systeemplafond, toilet, pantry en verwarming
Energie
- Energielabel
- A
Omgeving
- Ligging
- Bedrijventerrein
NVM makelaar
Foto's














