Rucphensebaan 41-a 4706 PH Roosendaal
€ 950 /mnd
Omschrijving
TE HUUR
Turn-key kantoor- / behandelruimte – ca. 50 m² – Rucphensebaan 41A te Roosendaal
Objectomschrijving
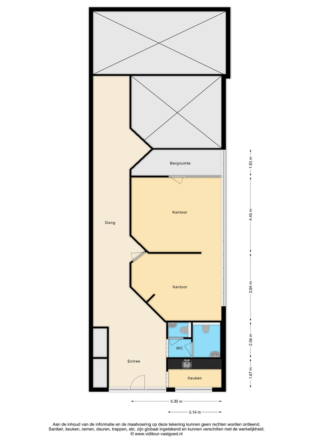
Aan de Rucphensebaan 41A te Roosendaal wordt deze representatieve en turn-key kantoor- / behandelruimte van circa 50 m² te huur aangeboden.
De ruimte maakt onderdeel uit van een verzorgd en modern ingericht kantoorobject met een professionele uitstraling.
De kantoorruimte beschikt over een gezamenlijke entree met hal, keuken en sanitaire voorzieningen.
Dankzij de nette afwerking en moderne uitstraling is de ruimte direct in gebruik te nemen en zeer geschikt voor diverse kantoor- of praktijkgerichte activiteiten, zoals consultancy, administratie of een behandelpraktijk.
Het object is gelegen op een goed bereikbare locatie in Roosendaal en beschikt over parkeermogelijkheden op eigen terrein.
Oppervlakte
Kantoor-/behandelruimte: circa 50 m²
Voorzieningen
De ruimte is onder meer voorzien van:
- Gezamenlijke entree en ontvangsthal
- Gezamenlijke keuken/pantry
- Gezamenlijke sanitaire voorzieningen
- Moderne vloerafwerking
- Representatieve uitstraling
- Parkeermogelijkheden op eigen terrein
Huurprijs
€ 950,-- per maand exclusief BTW.
Servicekosten
in overleg.
Betaling
Automatische huurbetaling per kwartaal vooruit.
Zekerheidstelling
Bankgarantie of waarborgsom ter grootte van drie maanden huur inclusief BTW.
Huurovereenkomst
Huurovereenkomst conform het ROZ-model (Raad voor Onroerende Zaken).
Huurtermijn
Minimale huurtermijn van 2 jaar, met aansluitende optiejaren.
Indexering
Jaarlijkse indexering op basis van de wijziging van de consumentenprijsindex (CPI), reeks alle huishoudens (2015 = 100), gepubliceerd door het Centraal Bureau voor de Statistiek (CBS).
BTW
Alle genoemde bedragen zijn exclusief BTW. Uitgangspunt is dat huurder voor meer dan 90% BTW-belaste prestaties verricht.
Turn-key kantoor- / behandelruimte – ca. 50 m² – Rucphensebaan 41A te Roosendaal
Objectomschrijving
Aan de Rucphensebaan 41A te Roosendaal wordt deze representatieve en turn-key kantoor- / behandelruimte van circa 50 m² te huur aangeboden.
De ruimte maakt onderdeel uit van een verzorgd en modern ingericht kantoorobject met een professionele uitstraling.
De kantoorruimte beschikt over een gezamenlijke entree met hal, keuken en sanitaire voorzieningen.
Dankzij de nette afwerking en moderne uitstraling is de ruimte direct in gebruik te nemen en zeer geschikt voor diverse kantoor- of praktijkgerichte activiteiten, zoals consultancy, administratie of een behandelpraktijk.
Het object is gelegen op een goed bereikbare locatie in Roosendaal en beschikt over parkeermogelijkheden op eigen terrein.
Oppervlakte
Kantoor-/behandelruimte: circa 50 m²
Voorzieningen
De ruimte is onder meer voorzien van:
- Gezamenlijke entree en ontvangsthal
- Gezamenlijke keuken/pantry
- Gezamenlijke sanitaire voorzieningen
- Moderne vloerafwerking
- Representatieve uitstraling
- Parkeermogelijkheden op eigen terrein
Huurprijs
€ 950,-- per maand exclusief BTW.
Servicekosten
in overleg.
Betaling
Automatische huurbetaling per kwartaal vooruit.
Zekerheidstelling
Bankgarantie of waarborgsom ter grootte van drie maanden huur inclusief BTW.
Huurovereenkomst
Huurovereenkomst conform het ROZ-model (Raad voor Onroerende Zaken).
Huurtermijn
Minimale huurtermijn van 2 jaar, met aansluitende optiejaren.
Indexering
Jaarlijkse indexering op basis van de wijziging van de consumentenprijsindex (CPI), reeks alle huishoudens (2015 = 100), gepubliceerd door het Centraal Bureau voor de Statistiek (CBS).
BTW
Alle genoemde bedragen zijn exclusief BTW. Uitgangspunt is dat huurder voor meer dan 90% BTW-belaste prestaties verricht.
Kenmerken
Overdracht
- Huurprijs
- € 950 per maand
- Servicekosten
- Geen servicekosten bekend
- Aangeboden sinds
-
- Status
- Beschikbaar
- Aanvaarding
- Per direct beschikbaar
Bouw
- Hoofdfunctie
- Kantoor
- Soort bouw
- Bestaande bouw
- Bouwjaar
- 1972
Oppervlakten
- Oppervlakte
- 50 m²
Indeling
- Aantal bouwlagen
- 1 bouwlaag
- Voorzieningen
- Inbouwarmaturen, te openen ramen, kabelgoten, systeemplafond, toilet, pantry en kamerindeling
Energie
- Energielabel
- C
Omgeving
- Ligging
- Kantorenpark, meubelboulevard en in woonwijk
- Bereikbaarheid
- Bushalte op 1000 m tot 1500 m, NS Intercitystation op 1500 m tot 2000 m en snelwegafrit op minder dan 500 m
NVM makelaar
Foto's
Plattegrond
Begane Grond