Parklaan 3 3016 BA Rotterdam
€ 850 /mnd

Omschrijving
Bijzonder representatief karakteristieke gebouw met nog beschikbare kantoorruimte gelegen op de 4e verdieping aan de statige Parklaan 3 te (3016 BA) Rotterdam in het Scheepvaartkwartier. Flexibele contracten zijn in overleg bespreekbaar.
Bij binnenkomst in de ontvangsthal toont het gebouw zicht direct als indrukwekkend monument. het markante pand geniet van de status als rijksmonument. De zeer royale en luxe entree is voorzien van veel marmer en hoge houten lambrisering geven het geheel een chique en karakteristieke uitstraling. Huurders mogen in overleg met de verhuurder gebruik maken van de unieke spreekkamer op de begane grond, welke beschikt over een gestrekt uitzicht op de tuin.
De kantoorruimten op de 4e verdieping zijn reeds ingericht en het meubilair kan in overleg met de verhuurder worden overgenomen/gebruikt.
Scheepvaartkwartier
Het Scheepvaartkwartier in Rotterdam is een wijk met een rijke geschiedenis en een beschermd stadsgezicht. Het werd rond 1840 systematisch ontworpen door stadsarchitect W.N. Rose en staat bekend om zijn culturele erfgoed. Met 98 van de meer dan 500 rijksmonumenten in Rotterdam, is het een ware schatkamer van cultureel erfgoed. Het Scheepvaartkwartier, ook bekend als het Nieuwe Werk, speelde een belangrijke rol in de scheepvaarthistorie van Rotterdam en trekt vandaag de dag veel bezoekers aan met zijn imposante herenhuizen en brede, statige lanen.
Een van de meest opvallende kenmerken van de wijk is de Veerhaven, waar historische zeilschepen zachtjes op het water deinen. Dit romantische deel van de stad is erg geliefd bij verliefde stelletjes en bruidsparen. Voor de fijnproevers zijn er exclusieve restaurants zoals Parkheuvel, met twee Michelinsterren, en Zeezout, met één Michelinster. Daarnaast vind je er ook veel advocatenkantoren en twee musea: het Wereldmuseum en het Belasting & Douane Museum.
Het Park, een 19e-eeuws stadspark, is een populaire plek om te relaxen en te picknicken, vooral in de zomermaanden. Hier worden ook diverse festivals en evenementen gehouden. Een prominente attractie in het park is de Euromast, de hoogste uitkijktoren van Nederland, waarvan het restaurant op 100 meter hoogte een panoramisch uitzicht over de stad en de haven biedt.
Het Scheepvaartkwartier is tegenwoordig een van de meest welvarende wijken van Nederland en kenmerkt zich door een mix van historische gebouwen en moderne architectuur. Het gebied biedt een unieke ervaring van de geschiedenis en ontwikkeling van Rotterdam?
Bereikbaarheid
Het kantoorgebouw is gelegen in het Scheepvaartkwartier. Deze historische wijk is zeer centraal gelegen aan de rand van het centrum van Rotterdam.
Het Scheepvaartkwartier geldt van oudsher als een van de meest prominente en attractieve locaties voor de zakelijke dienstverlenging. Met “Het Park” beschikt het Scheepvaartkwartier over één van de mooiste stadsparken van Rotterdam. In de kern van dit historische deel van Rotterdam is de prachtige Veerhaven gelegen. Op
loopafstand bevinden zich diverse bekende restaurants zoals Loos, Petit Louise, Zeezout*, Huson, Harbour Club, Mara en Parkheuvel**.
Zowel met de auto als het met het openbaar vervoer is het Elevatorhuis uitstekend bereikbaar. De ring en rijkswegen rondom Rotterdam zijn goed te bereiken via de Maasboulevard, Maastunnel en de Erasmusbrug.
Metrostration Leuvehaven is op loopafstand gelegen. Onder andere het NS-station Rotterdam Centraal is hiermee binnen handbereik.
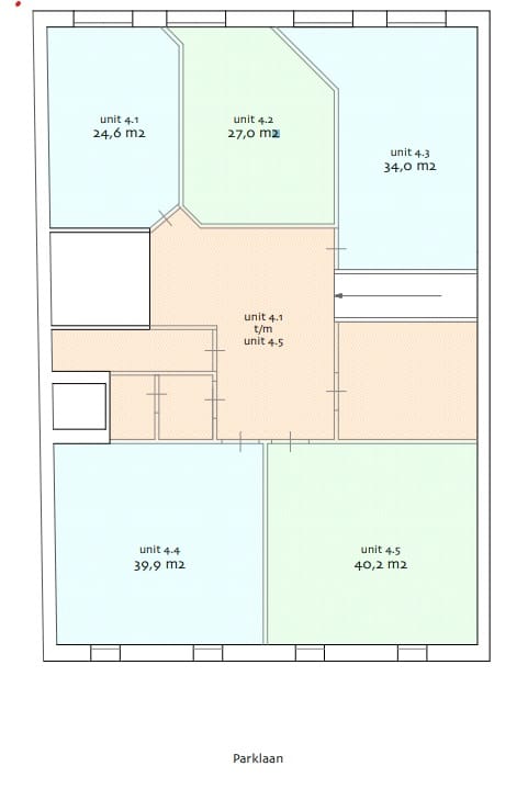
Oppervlakte:
4e verdieping
Units 4.4 (2-4 werkplekken) € 850,-- per unit
* Bovengenoemde bedragen zijn exclusief servicekosten (op basis van € 55,00 per m2/per jaar) per maand en
exclusief BTW.
** Het aantal werkplekken is indicatief, de ruimten worden opgeleverd in huidige staat, (gebruik van meubilair in overleg).
*** Beschikbaarheid in overleg.
Parkeren
In de directe omgeving kan tegen betaling langs de openbare weg worden geparkeerd, anders middels parkeervergunning. Tevens is er de mogelijkheid om te kunnen parkeren in de parkeergarage onder de Erasmusbrug
Opleveringsniveau
Het gebouw wordt opgeleverd in huidige staat, onder meer voorzien van:
• Glad afgewerkte plafondafwerking;
• Aanwezige verlichting;
• Te openen ramen;
• Aanwezige markiezen;
• Kabelgoten ten behoeve van data- en elektrabekabeling voorzien van elektra en WCD’s;
• Aanwezige vloerafwerking (tapijt).
Servicekosten:
Een voorschotbedrag van € 55,-- per m2 (exclusief BTW) wordt in rekening gebracht voor de volgende leveringen en diensten namens Verhuurder:
- Verwarmingskosten;
- Electra;
- Water;
- Schoonmaakkosten;
- Tuinonderhoud;
- Kosten afvalcontainers;
- Kosten alarminstallatie;
- Onderhoud installaties;
- Belastingen en verzekeringen;
- Administratiekosten (5%).
Het onderhoud en eventuele vervanging van de in het pand aanwezige installaties (inclusief verlichting) zijn geheel voor rekening van huurder.
Huurtermijn:
Afwijkende periode(n) zijn bespreekbaar.
Huurbetalingen:
Doormiddel van automatische incasso per kalendermaand vooruit.
Huurprijsaanpassing:
Jaarlijks, voor het eerst één jaar na datum huuringangsdatum, op basis van de wijziging van het maandindexcijfer volgens de consumentenprijs index (CPI) reeks “CPI-Alle Huishoudens” Laag (2015 = 100), gepubliceerd door het Centraal Bureau voor de Statistiek (CBS).
Omzetbelasting:
Verhuurder wenst te opteren voor BTW-belaste huur en verhuur. In geval huurder de BTW niet kan verrekenen zal de huurprijs in overleg met huurder worden verhoogd ter compensatie van de gevolgen van het vervallen van de mogelijkheid om te opteren voor BTW-belaste huur.
Bankgarantie:
Een bankgarantie ter grootte van 3 bruto maandverplichtingen, d.w.z. 3 maanden huur inclusief servicekosten en BTW. Verhuurder kan eventueel nadere eisen stellen m.b.t. de door huurder te verstrekken zekerheidsstelling.
Huurovereenkomst:
De huurovereenkomst wordt opgesteld conform het standaard ROZ-model kantoorruimte en andere bedrijfsruimte in de zin van artikel 7:230a BW (versie januari 2015).
Bij binnenkomst in de ontvangsthal toont het gebouw zicht direct als indrukwekkend monument. het markante pand geniet van de status als rijksmonument. De zeer royale en luxe entree is voorzien van veel marmer en hoge houten lambrisering geven het geheel een chique en karakteristieke uitstraling. Huurders mogen in overleg met de verhuurder gebruik maken van de unieke spreekkamer op de begane grond, welke beschikt over een gestrekt uitzicht op de tuin.
De kantoorruimten op de 4e verdieping zijn reeds ingericht en het meubilair kan in overleg met de verhuurder worden overgenomen/gebruikt.
Scheepvaartkwartier
Het Scheepvaartkwartier in Rotterdam is een wijk met een rijke geschiedenis en een beschermd stadsgezicht. Het werd rond 1840 systematisch ontworpen door stadsarchitect W.N. Rose en staat bekend om zijn culturele erfgoed. Met 98 van de meer dan 500 rijksmonumenten in Rotterdam, is het een ware schatkamer van cultureel erfgoed. Het Scheepvaartkwartier, ook bekend als het Nieuwe Werk, speelde een belangrijke rol in de scheepvaarthistorie van Rotterdam en trekt vandaag de dag veel bezoekers aan met zijn imposante herenhuizen en brede, statige lanen.
Een van de meest opvallende kenmerken van de wijk is de Veerhaven, waar historische zeilschepen zachtjes op het water deinen. Dit romantische deel van de stad is erg geliefd bij verliefde stelletjes en bruidsparen. Voor de fijnproevers zijn er exclusieve restaurants zoals Parkheuvel, met twee Michelinsterren, en Zeezout, met één Michelinster. Daarnaast vind je er ook veel advocatenkantoren en twee musea: het Wereldmuseum en het Belasting & Douane Museum.
Het Park, een 19e-eeuws stadspark, is een populaire plek om te relaxen en te picknicken, vooral in de zomermaanden. Hier worden ook diverse festivals en evenementen gehouden. Een prominente attractie in het park is de Euromast, de hoogste uitkijktoren van Nederland, waarvan het restaurant op 100 meter hoogte een panoramisch uitzicht over de stad en de haven biedt.
Het Scheepvaartkwartier is tegenwoordig een van de meest welvarende wijken van Nederland en kenmerkt zich door een mix van historische gebouwen en moderne architectuur. Het gebied biedt een unieke ervaring van de geschiedenis en ontwikkeling van Rotterdam?
Bereikbaarheid
Het kantoorgebouw is gelegen in het Scheepvaartkwartier. Deze historische wijk is zeer centraal gelegen aan de rand van het centrum van Rotterdam.
Het Scheepvaartkwartier geldt van oudsher als een van de meest prominente en attractieve locaties voor de zakelijke dienstverlenging. Met “Het Park” beschikt het Scheepvaartkwartier over één van de mooiste stadsparken van Rotterdam. In de kern van dit historische deel van Rotterdam is de prachtige Veerhaven gelegen. Op
loopafstand bevinden zich diverse bekende restaurants zoals Loos, Petit Louise, Zeezout*, Huson, Harbour Club, Mara en Parkheuvel**.
Zowel met de auto als het met het openbaar vervoer is het Elevatorhuis uitstekend bereikbaar. De ring en rijkswegen rondom Rotterdam zijn goed te bereiken via de Maasboulevard, Maastunnel en de Erasmusbrug.
Metrostration Leuvehaven is op loopafstand gelegen. Onder andere het NS-station Rotterdam Centraal is hiermee binnen handbereik.
Oppervlakte:
4e verdieping
Units 4.4 (2-4 werkplekken) € 850,-- per unit
* Bovengenoemde bedragen zijn exclusief servicekosten (op basis van € 55,00 per m2/per jaar) per maand en
exclusief BTW.
** Het aantal werkplekken is indicatief, de ruimten worden opgeleverd in huidige staat, (gebruik van meubilair in overleg).
*** Beschikbaarheid in overleg.
Parkeren
In de directe omgeving kan tegen betaling langs de openbare weg worden geparkeerd, anders middels parkeervergunning. Tevens is er de mogelijkheid om te kunnen parkeren in de parkeergarage onder de Erasmusbrug
Opleveringsniveau
Het gebouw wordt opgeleverd in huidige staat, onder meer voorzien van:
• Glad afgewerkte plafondafwerking;
• Aanwezige verlichting;
• Te openen ramen;
• Aanwezige markiezen;
• Kabelgoten ten behoeve van data- en elektrabekabeling voorzien van elektra en WCD’s;
• Aanwezige vloerafwerking (tapijt).
Servicekosten:
Een voorschotbedrag van € 55,-- per m2 (exclusief BTW) wordt in rekening gebracht voor de volgende leveringen en diensten namens Verhuurder:
- Verwarmingskosten;
- Electra;
- Water;
- Schoonmaakkosten;
- Tuinonderhoud;
- Kosten afvalcontainers;
- Kosten alarminstallatie;
- Onderhoud installaties;
- Belastingen en verzekeringen;
- Administratiekosten (5%).
Het onderhoud en eventuele vervanging van de in het pand aanwezige installaties (inclusief verlichting) zijn geheel voor rekening van huurder.
Huurtermijn:
Afwijkende periode(n) zijn bespreekbaar.
Huurbetalingen:
Doormiddel van automatische incasso per kalendermaand vooruit.
Huurprijsaanpassing:
Jaarlijks, voor het eerst één jaar na datum huuringangsdatum, op basis van de wijziging van het maandindexcijfer volgens de consumentenprijs index (CPI) reeks “CPI-Alle Huishoudens” Laag (2015 = 100), gepubliceerd door het Centraal Bureau voor de Statistiek (CBS).
Omzetbelasting:
Verhuurder wenst te opteren voor BTW-belaste huur en verhuur. In geval huurder de BTW niet kan verrekenen zal de huurprijs in overleg met huurder worden verhoogd ter compensatie van de gevolgen van het vervallen van de mogelijkheid om te opteren voor BTW-belaste huur.
Bankgarantie:
Een bankgarantie ter grootte van 3 bruto maandverplichtingen, d.w.z. 3 maanden huur inclusief servicekosten en BTW. Verhuurder kan eventueel nadere eisen stellen m.b.t. de door huurder te verstrekken zekerheidsstelling.
Huurovereenkomst:
De huurovereenkomst wordt opgesteld conform het standaard ROZ-model kantoorruimte en andere bedrijfsruimte in de zin van artikel 7:230a BW (versie januari 2015).
Kenmerken
Overdracht
- Huurprijs
- € 850 per maand
- Servicekosten
- € 55 per vierkante meter per jaar (21% BTW van toepassing)
- Aangeboden sinds
-
- Status
- Beschikbaar
- Aanvaarding
- Per direct beschikbaar
Bouw
- Hoofdfunctie
- Kantoor
- Soort bouw
- Bestaande bouw
- Bouwjaar
- 1940
Oppervlakten
- Oppervlakte
- 40 m²
- Perceel
- 1.496 m²
Indeling
- Aantal bouwlagen
- 1 bouwlaag
- Voorzieningen
- Te openen ramen, kabelgoten en verwarming
Energie
- Energielabel
- Niet verplicht
Omgeving
- Ligging
- Kantorenpark en in woonwijk
- Bereikbaarheid
- Metrohalte op 1500 m tot 2000 m en Tramhalte op 500 m tot 1000 m
Foto's

















