Pluggematen 4-C 8331 TV Steenwijk
€ 230.000 k.k.
Omschrijving
Modern afgewerkte kantoorruimte met verdieping, volledig vernieuwd in 2025 en direct klaar voor gebruik. Het kantoor omvat twee representatieve verdiepingen van elk ca. 47 m² BVO en is hoogwaardig geïsoleerd met o.a. HR++ beglazing. Gebouwd in 2001 maar qua uitstraling en comfort geheel van nu.
Indeling;
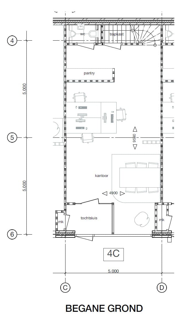
Begane grond: entree, twee kantoorruimtes, pantry en toilet met fontein.
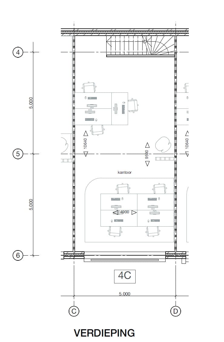
Verdieping: twee ruime kantoorruimtes.
Metrages (BVO):
– Begane grond: circa 47 m² BVO
– Eerste verdieping: circa 47 m² BVO
De kantoorruimte wordt hoogwaardig opgeleverd en is volledig toekomstbestendig. Zo is het pand voorzien van dak-, muur- en vloerisolatie en uitgerust met HR++ beglazing, het dak van het pand wordt compleet vervangen. De verwarming verloopt via elektrische airco-units, waardoor het pand volledig gasloos is. Verder beschikt de kantoorruimte over een dekvloer, systeemplafond en wordt deze behangklaar opgeleverd. Ook zijn een meterkast, trap, pantry en toiletgroep inbegrepen. Het object heeft een eigen nutsaansluiting, wordt geleverd met 6 zonnepanelen en biedt twee parkeerplaatsen aan de voorzijde.
De vermelde kadastrale metrages hebben betrekking op het volledige perceel. Het betreffende deel dient nog kadastraal te worden gesplitst. Na deze splitsing zal de definitieve perceeloppervlakte worden bepaald.
Ligging en bereikbaarheid
Het object is gelegen op bedrijventerrein Groot Verlaat, een goed bereikbaar en functioneel bedrijventerrein. Op het terrein is ruim voldoende parkeergelegenheid aanwezig.
Omgevingsplan
De voor 'Bedrijventerrein' aangewezen gronden zijn bestemd voor:
a. ter plaatse reeds legaal bestaande bedrijven, welke aanwezig zijn op het moment dat het bestemmingsplan in werking treedt;
b. bedrijven en/of bedrijfsactiviteiten die behoren tot milieucategorie 1 tot en met 4.2, zoals die zijn opgenomen in de Staat van bedrijfsactiviteiten (Bijlage 1 bij deze regels) en/of daarmee qua milieueffecten gelijk te stellen bedrijven en/of bedrijfsactiviteiten, met uitzondering van: geluidzoneringsplichtige inrichtingen voorzover niet gesitueerd binnen de aanduiding 'wetgevingzone - wet geluidhinder', en; risicovolle inrichtingen; en met dien verstande dat de volgende milieuzonering in acht wordt genomen:
voor meer informatie kijk op het omgevingsloket.
Indeling;
Begane grond: entree, twee kantoorruimtes, pantry en toilet met fontein.
Verdieping: twee ruime kantoorruimtes.
Metrages (BVO):
– Begane grond: circa 47 m² BVO
– Eerste verdieping: circa 47 m² BVO
De kantoorruimte wordt hoogwaardig opgeleverd en is volledig toekomstbestendig. Zo is het pand voorzien van dak-, muur- en vloerisolatie en uitgerust met HR++ beglazing, het dak van het pand wordt compleet vervangen. De verwarming verloopt via elektrische airco-units, waardoor het pand volledig gasloos is. Verder beschikt de kantoorruimte over een dekvloer, systeemplafond en wordt deze behangklaar opgeleverd. Ook zijn een meterkast, trap, pantry en toiletgroep inbegrepen. Het object heeft een eigen nutsaansluiting, wordt geleverd met 6 zonnepanelen en biedt twee parkeerplaatsen aan de voorzijde.
De vermelde kadastrale metrages hebben betrekking op het volledige perceel. Het betreffende deel dient nog kadastraal te worden gesplitst. Na deze splitsing zal de definitieve perceeloppervlakte worden bepaald.
Ligging en bereikbaarheid
Het object is gelegen op bedrijventerrein Groot Verlaat, een goed bereikbaar en functioneel bedrijventerrein. Op het terrein is ruim voldoende parkeergelegenheid aanwezig.
Omgevingsplan
De voor 'Bedrijventerrein' aangewezen gronden zijn bestemd voor:
a. ter plaatse reeds legaal bestaande bedrijven, welke aanwezig zijn op het moment dat het bestemmingsplan in werking treedt;
b. bedrijven en/of bedrijfsactiviteiten die behoren tot milieucategorie 1 tot en met 4.2, zoals die zijn opgenomen in de Staat van bedrijfsactiviteiten (Bijlage 1 bij deze regels) en/of daarmee qua milieueffecten gelijk te stellen bedrijven en/of bedrijfsactiviteiten, met uitzondering van: geluidzoneringsplichtige inrichtingen voorzover niet gesitueerd binnen de aanduiding 'wetgevingzone - wet geluidhinder', en; risicovolle inrichtingen; en met dien verstande dat de volgende milieuzonering in acht wordt genomen:
voor meer informatie kijk op het omgevingsloket.
Kenmerken
Overdracht
- Vraagprijs
- € 230.000 kosten koper
- Servicekosten
- Geen servicekosten bekend
- Aangeboden sinds
-
- Status
- Beschikbaar
- Aanvaarding
- In overleg
Bouw
- Hoofdfunctie
- Kantoor
- Soort bouw
- Bestaande bouw
- Bouwjaar
- 2011
Oppervlakten
- Oppervlakte
- 94 m² (in units vanaf 47 m²)
- Perceel
- 2.010 m²
Indeling
- Aantal bouwlagen
- 2 bouwlagen
- Voorzieningen
- Airconditioning, mechanische ventilatie, systeemplafond, toilet en verwarming
Energie
- Energielabel
- A 0,80
Omgeving
- Ligging
- Bedrijventerrein
- Bereikbaarheid
- Bushalte op 500 m tot 1000 m, busknooppunt op 500 m tot 1000 m, metrohalte op 5000 m of meer, metroknooppunt op 5000 m of meer, NS Intercitystation op 3000 m tot 4000 m, snelwegafrit op 4000 m tot 5000 m, Tramhalte op 5000 m of meer en tramknooppunt op 5000 m of meer
NVM makelaar
Foto's
Plattegrond
Pluggematen 4 C