Turfschipper 38 2292 JA Wateringen
€ 925 /mnd

Omschrijving
TE HUUR
Het betreft hier een ruime en hoogwaardige turn-key kantoorkamer van circa 57 m².
De etage beschikt over een drietal kantoorkamers waarbij er een gedeeld gebruik is van de keuken en toiletgroep.
Het object is gelegen op het moderne bedrijventerrein Wateringse Veld wat onderdeel uitmaakt van Bedrijventerrein Wateringen.
De kantooretage maakt onderdeel uit van de Turfschipper 38-44, thans in gebruik bij TM Tools.
BEREIKBAARHEID
Bedrijventerrein Wateringse Veld is uitstekend bereikbaar met zowel eigen als openbaar vervoer.
Het kent een snelle ontsluiting, via de doorgaande weg N211/N222, naar de belangrijkste uitvalswegen in de Randstad (A4 Den Haag - Amsterdam/Rotterdam, A12 Den Haag - Utrecht, A13 Den Haag - Rotterdam).
Bovendien bevinden de tramlijnen 16 en 17 zich op loopafstand. Deze zorgen voor een directe verbinding met de Haagse binnenstad en NS-station Den Haag Centraal en Den Haag Hollands Spoor.
PARKEREN
Parkeren op eigen terrein behoort tot de mogelijkheid.
Tevens voldoende parkeergelegenheid langs de openbare weg.
OPLEVERINGSNIVEAU
Het betreft een modern en compleet turn-key opleveringsniveau onder meer bestaande uit:
- ruime sanitaire voorzieningen
- keuken
- luchtwarmtepomp per kamer te bedienen
- uitgebreide elektrische installatie
- patchkast inclusief bekabeling
- brandblusmiddelen (periodiek gecontroleerd)
- systeemplafond met LED-verlichtingsarmaturen
- vloerafwerking
- raamdecoratie
- alarm-/ en camerasysteem
METRAGE
Circa 57 m²
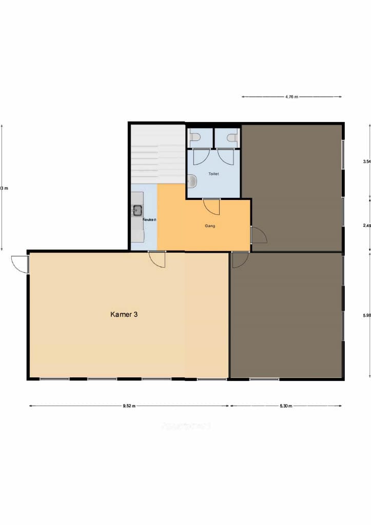
INDELING
Graag verwijzen wij u naar bijgevoegde plattegrondtekeningen
HUURPRIJS
€ 925,- per maand
HUURPRIJS PARKEERPLAATS (OPTIONEEL)
In nader overleg vast te stellen
BTW
Verhuurder wenst te opteren voor een BTW belaste verhuur.
Huurder dient voor tenminste 90% met omzetbelasting belaste prestaties te verrichten. Indien huurder niet aan dit criterium voldoet, zal van rechtswege sprake zijn van een van omzetbelasting vrijgestelde verhuur. In dit geval wordt de overeengekomen kale huurprijs, zonder de omzetbelasting, dusdanig verhoogd dat het voor de verhuurder ontstane financiële nadeel wordt gecompenseerd.
HUURPRIJSAANPASSING
Jaarlijks, voor het eerst 1 jaar na huuringangsdatum, op basis van de wijziging van het prijsindexcijfer volgens de Consumentenprijsindex (CPI), Alle Huishoudens (2015=100), gepubliceerd door het Centraal Bureau voor de Statistiek (CBS)
SERVICEKOSTEN
€ 75,- per maand
Onder meer bestaande uit:
- gebruik water inclusief vastrecht
- onderhoud en periodieke controle van alle bij het gehuurde behorende installaties
- periodieke glasbewassing buitenzijde
- onderhoud buitenterrein
- internet
- mogelijkheid tot schoonmaak, aanvullen toiletpapier, koffie/thee enz.
VOORSCHOT ELEKTRA
€ 75,- per maand
HUURTERMIJN
In nader overleg te bepalen
BETALINGEN
Per maand vooruit
ZEKERHEIDSTELLING
Waarborgsom of bankgarantie ter grootte van drie maanden huur inclusief BTW
AANVAARDING
In nader overleg doch kan per direct
HUUROVEREENKOMST
Huurovereenkomst kantoorruimte en andere bedrijfsruimte in de zin van artikel 7: 230a BW conform het model van de Raad voor Onroerende Zaken (ROZ) zoals op 30 januari 2015 vastgesteld en op 17 februari 2015 gedeponeerd bij de griffie van de rechtbank te Den Haag en aldaar ingeschreven onder nummer 15/20, alsmede de daarbij behorende algemene bepalingen.
NADERE INFORMATIE
Hoogenraad NVM Makelaars
Haagweg 177
2281 AJ RIJSWIJK
070-3993634
Het betreft hier een ruime en hoogwaardige turn-key kantoorkamer van circa 57 m².
De etage beschikt over een drietal kantoorkamers waarbij er een gedeeld gebruik is van de keuken en toiletgroep.
Het object is gelegen op het moderne bedrijventerrein Wateringse Veld wat onderdeel uitmaakt van Bedrijventerrein Wateringen.
De kantooretage maakt onderdeel uit van de Turfschipper 38-44, thans in gebruik bij TM Tools.
BEREIKBAARHEID
Bedrijventerrein Wateringse Veld is uitstekend bereikbaar met zowel eigen als openbaar vervoer.
Het kent een snelle ontsluiting, via de doorgaande weg N211/N222, naar de belangrijkste uitvalswegen in de Randstad (A4 Den Haag - Amsterdam/Rotterdam, A12 Den Haag - Utrecht, A13 Den Haag - Rotterdam).
Bovendien bevinden de tramlijnen 16 en 17 zich op loopafstand. Deze zorgen voor een directe verbinding met de Haagse binnenstad en NS-station Den Haag Centraal en Den Haag Hollands Spoor.
PARKEREN
Parkeren op eigen terrein behoort tot de mogelijkheid.
Tevens voldoende parkeergelegenheid langs de openbare weg.
OPLEVERINGSNIVEAU
Het betreft een modern en compleet turn-key opleveringsniveau onder meer bestaande uit:
- ruime sanitaire voorzieningen
- keuken
- luchtwarmtepomp per kamer te bedienen
- uitgebreide elektrische installatie
- patchkast inclusief bekabeling
- brandblusmiddelen (periodiek gecontroleerd)
- systeemplafond met LED-verlichtingsarmaturen
- vloerafwerking
- raamdecoratie
- alarm-/ en camerasysteem
METRAGE
Circa 57 m²
INDELING
Graag verwijzen wij u naar bijgevoegde plattegrondtekeningen
HUURPRIJS
€ 925,- per maand
HUURPRIJS PARKEERPLAATS (OPTIONEEL)
In nader overleg vast te stellen
BTW
Verhuurder wenst te opteren voor een BTW belaste verhuur.
Huurder dient voor tenminste 90% met omzetbelasting belaste prestaties te verrichten. Indien huurder niet aan dit criterium voldoet, zal van rechtswege sprake zijn van een van omzetbelasting vrijgestelde verhuur. In dit geval wordt de overeengekomen kale huurprijs, zonder de omzetbelasting, dusdanig verhoogd dat het voor de verhuurder ontstane financiële nadeel wordt gecompenseerd.
HUURPRIJSAANPASSING
Jaarlijks, voor het eerst 1 jaar na huuringangsdatum, op basis van de wijziging van het prijsindexcijfer volgens de Consumentenprijsindex (CPI), Alle Huishoudens (2015=100), gepubliceerd door het Centraal Bureau voor de Statistiek (CBS)
SERVICEKOSTEN
€ 75,- per maand
Onder meer bestaande uit:
- gebruik water inclusief vastrecht
- onderhoud en periodieke controle van alle bij het gehuurde behorende installaties
- periodieke glasbewassing buitenzijde
- onderhoud buitenterrein
- internet
- mogelijkheid tot schoonmaak, aanvullen toiletpapier, koffie/thee enz.
VOORSCHOT ELEKTRA
€ 75,- per maand
HUURTERMIJN
In nader overleg te bepalen
BETALINGEN
Per maand vooruit
ZEKERHEIDSTELLING
Waarborgsom of bankgarantie ter grootte van drie maanden huur inclusief BTW
AANVAARDING
In nader overleg doch kan per direct
HUUROVEREENKOMST
Huurovereenkomst kantoorruimte en andere bedrijfsruimte in de zin van artikel 7: 230a BW conform het model van de Raad voor Onroerende Zaken (ROZ) zoals op 30 januari 2015 vastgesteld en op 17 februari 2015 gedeponeerd bij de griffie van de rechtbank te Den Haag en aldaar ingeschreven onder nummer 15/20, alsmede de daarbij behorende algemene bepalingen.
NADERE INFORMATIE
Hoogenraad NVM Makelaars
Haagweg 177
2281 AJ RIJSWIJK
070-3993634
Kenmerken
Overdracht
- Huurprijs
- € 925 per maand
- Servicekosten
- € 75 per maand (21% BTW van toepassing)
- Aangeboden sinds
-
- Status
- Beschikbaar
- Aanvaarding
- Per direct beschikbaar
Bouw
- Hoofdfunctie
- Kantoor
- Soort bouw
- Bestaande bouw
- Bouwjaar
- 1999
Oppervlakten
- Oppervlakte
- 57 m²
Indeling
- Aantal bouwlagen
- 1 bouwlaag
- Voorzieningen
- Airconditioning, inbouwarmaturen, te openen ramen, kabelgoten, systeemplafond, toilet, pantry, verwarming en kamerindeling
Energie
- Energielabel
- Niet beschikbaar
Omgeving
- Ligging
- Bedrijventerrein
- Bereikbaarheid
- Snelwegafrit op minder dan 500 m en Tramhalte op minder dan 500 m
Foto's












