Willemskade 17 8011 AD Zwolle
- Nieuw
€ 998.000 k.k.
Omschrijving
TE KOOP: Prachtig herenhuis/kantoorvilla met mogelijkheid om te ontwikkelen tot kantoor gecombineerd met wonen!
Aan de Willemskade 17 in Zwolle staat dit statige herenhuis, dat zowel als representatief kantoorpand als voor herontwikkeling naar een combinatie van wonen en werken uitermate geschikt is. Met een vloeroppervlakte van circa 230 m², verdeeld over drie verdiepingen en een tussenvloer, biedt het pand volop ruimte en mogelijkheden. De royale achtertuin met bergruimte en achterom maakt het geheel compleet.
Dankzij de fraaie afwerking met behoud van karakter, functionaliteit en flexibiliteit is dit een uitstekende plek voor ondernemers die zichtbaarheid en bereikbaarheid zoeken, of werk met wonen willen combineren.
Daarnaast behoort het (op termijn) ontwikkelen tot wonen of werken op de begane grond en appartementen op de verdieping ook tot de mogelijkheden. De tekeningen en het positieve advies van de gemeente zijn hiervoor aanwezig.
LOCATIE/BEREIKBAARHEID
Dit representatieve kantoorpand aan de Willemskade 17 biedt ondernemers en ontwikkelaars een unieke kans op een toplocatie in Zwolle. Direct tegenover het pand bevindt zich een ruime parkeergarage, waardoor bezoekers en medewerkers altijd makkelijk kunnen parkeren. Op slechts 500 meter loopafstand ligt station Zwolle, met snelle verbindingen naar de rest van Nederland. Daarnaast zijn zowel de historische binnenstad als de A28 binnen enkele minuten bereikbaar, wat de locatie ideaal maakt voor zowel zakelijke als gemengde functies zoals kantoor met woonruimte.
BEZICHTIGINGEN
Er zijn 2 momenten gepland om het pand te bezichtigen:
- 6 november van 15.00 tot 17.00;
- 13 november van 13.00 tot 16.00.
Het is noodzakelijk om u aan te melden voor een kijkmoment.
KADASTRALE INFORMATIE
Gemeente Zwolle
Sectie E
Nummer 2667
Groot 201 m²
METRAGE
Begane grond: Circa 100 m²
Tussenvloer: Circa 12 m²
Eerste verdieping: Circa 87 m²
Tweede verdieping: Circa 43 m²
Totaal: Circa 230 m² b.v.o.
INDELING
Kelder: Opslagruimte bereikbaar via een vaste trap, hoogte circa 2 meter.
Begane grond: Entree, hal met trapopgang, 3 kantoorruimtes, toilet en keuken met toegang tot de achtertuin.
Tussenverdieping: 1 kantoorruimte.
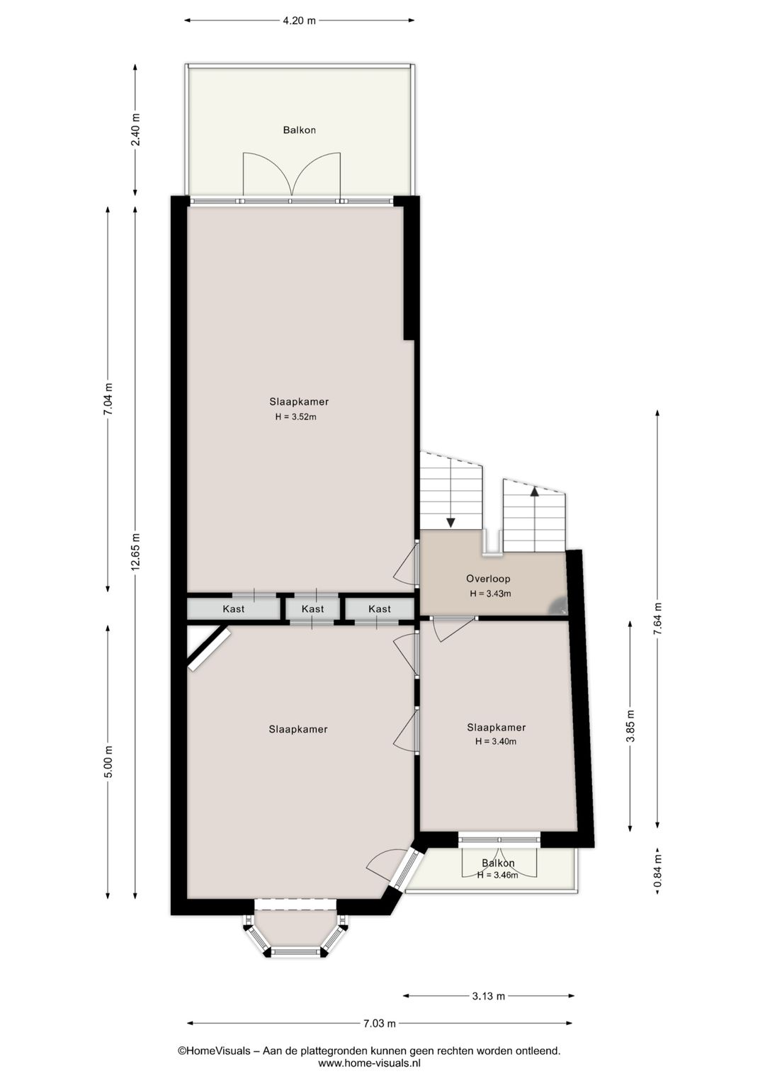
Eerste verdieping: Overloop en 3 kantoorruimtes. Aan de voorzijde een (klein) balkon en aan de achterzijde een dakterras.
Tweede verdieping: Royale overloop, 2 slaapkamers, 1 badkamer.
BESTEMMING
Bij de gemeente Zwolle valt het onderhavige onroerend goed in het vigerende bestemmingsplan
'Kamperpoort'. De bestemming van het perceel is: Gemengd - 2'.
PARKEREN
Aan de overkant van de straat is parkeergarage "Emmawijk" gelegen. Voor de voorwaarden omtrent het afsluiten van een parkeerabonnement verwijzen wij u naar het perkeerloket.
OPLEVERINGSNIVEAU
As is, where is.
Het object is voorzien van:
- Cv installatie met radiatoren;
- Air conditoining (gedeeltelijk)
- Keuken op de begane grond;
- 1 badkamer;
- Isolerende beglazing aan de achterzijde, voorzetramen aan de voorzijde;
- Royale achtertuin.
BIJZONDERHEDEN
- De kantoorruimte op de begane grond is tot 1 februari 2026 verhuurd.
- Het object is geregistreerd op de gemeentelijke monumentenlijst.
ONTWIKKELINGSMOGELIJKHEDEN
De eigenaren hebben een architect ingeschakeld voor het realiseren van twee appartementen op de eerste en tweede verdieping (en tussenverdiepingen). In dit plan blijft de begane grond in gebruik als kantoor.
Dit plan is in de vorm van een concept aanvraag bij de gemeente Zwolle ingediend. De gemeente Zwolle heeft hierover een positief advies gegeven.
VERKOOPPRIJS
€ 998.000, - k.k.
DATAROOM
Voor dit object hebben wij een dataroom opgesteld met alle relevante informatie. Op verzoek geven wij u graag toegang tot de dataroom.
OVERIGE CONDITIES
Voorbehoud goedkeuring koper door eigenaar.
AANVAARDING
In overleg.
Voor nadere informatie en/of bezichtiging kunt u contact opnemen met:
Rodenburg Bedrijfsmakelaars
Hanekamp 2
8023 TH Zwolle
Tel: 038-422 22 22
Aan de Willemskade 17 in Zwolle staat dit statige herenhuis, dat zowel als representatief kantoorpand als voor herontwikkeling naar een combinatie van wonen en werken uitermate geschikt is. Met een vloeroppervlakte van circa 230 m², verdeeld over drie verdiepingen en een tussenvloer, biedt het pand volop ruimte en mogelijkheden. De royale achtertuin met bergruimte en achterom maakt het geheel compleet.
Dankzij de fraaie afwerking met behoud van karakter, functionaliteit en flexibiliteit is dit een uitstekende plek voor ondernemers die zichtbaarheid en bereikbaarheid zoeken, of werk met wonen willen combineren.
Daarnaast behoort het (op termijn) ontwikkelen tot wonen of werken op de begane grond en appartementen op de verdieping ook tot de mogelijkheden. De tekeningen en het positieve advies van de gemeente zijn hiervoor aanwezig.
LOCATIE/BEREIKBAARHEID
Dit representatieve kantoorpand aan de Willemskade 17 biedt ondernemers en ontwikkelaars een unieke kans op een toplocatie in Zwolle. Direct tegenover het pand bevindt zich een ruime parkeergarage, waardoor bezoekers en medewerkers altijd makkelijk kunnen parkeren. Op slechts 500 meter loopafstand ligt station Zwolle, met snelle verbindingen naar de rest van Nederland. Daarnaast zijn zowel de historische binnenstad als de A28 binnen enkele minuten bereikbaar, wat de locatie ideaal maakt voor zowel zakelijke als gemengde functies zoals kantoor met woonruimte.
BEZICHTIGINGEN
Er zijn 2 momenten gepland om het pand te bezichtigen:
- 6 november van 15.00 tot 17.00;
- 13 november van 13.00 tot 16.00.
Het is noodzakelijk om u aan te melden voor een kijkmoment.
KADASTRALE INFORMATIE
Gemeente Zwolle
Sectie E
Nummer 2667
Groot 201 m²
METRAGE
Begane grond: Circa 100 m²
Tussenvloer: Circa 12 m²
Eerste verdieping: Circa 87 m²
Tweede verdieping: Circa 43 m²
Totaal: Circa 230 m² b.v.o.
INDELING
Kelder: Opslagruimte bereikbaar via een vaste trap, hoogte circa 2 meter.
Begane grond: Entree, hal met trapopgang, 3 kantoorruimtes, toilet en keuken met toegang tot de achtertuin.
Tussenverdieping: 1 kantoorruimte.
Eerste verdieping: Overloop en 3 kantoorruimtes. Aan de voorzijde een (klein) balkon en aan de achterzijde een dakterras.
Tweede verdieping: Royale overloop, 2 slaapkamers, 1 badkamer.
BESTEMMING
Bij de gemeente Zwolle valt het onderhavige onroerend goed in het vigerende bestemmingsplan
'Kamperpoort'. De bestemming van het perceel is: Gemengd - 2'.
PARKEREN
Aan de overkant van de straat is parkeergarage "Emmawijk" gelegen. Voor de voorwaarden omtrent het afsluiten van een parkeerabonnement verwijzen wij u naar het perkeerloket.
OPLEVERINGSNIVEAU
As is, where is.
Het object is voorzien van:
- Cv installatie met radiatoren;
- Air conditoining (gedeeltelijk)
- Keuken op de begane grond;
- 1 badkamer;
- Isolerende beglazing aan de achterzijde, voorzetramen aan de voorzijde;
- Royale achtertuin.
BIJZONDERHEDEN
- De kantoorruimte op de begane grond is tot 1 februari 2026 verhuurd.
- Het object is geregistreerd op de gemeentelijke monumentenlijst.
ONTWIKKELINGSMOGELIJKHEDEN
De eigenaren hebben een architect ingeschakeld voor het realiseren van twee appartementen op de eerste en tweede verdieping (en tussenverdiepingen). In dit plan blijft de begane grond in gebruik als kantoor.
Dit plan is in de vorm van een concept aanvraag bij de gemeente Zwolle ingediend. De gemeente Zwolle heeft hierover een positief advies gegeven.
VERKOOPPRIJS
€ 998.000, - k.k.
DATAROOM
Voor dit object hebben wij een dataroom opgesteld met alle relevante informatie. Op verzoek geven wij u graag toegang tot de dataroom.
OVERIGE CONDITIES
Voorbehoud goedkeuring koper door eigenaar.
AANVAARDING
In overleg.
Voor nadere informatie en/of bezichtiging kunt u contact opnemen met:
Rodenburg Bedrijfsmakelaars
Hanekamp 2
8023 TH Zwolle
Tel: 038-422 22 22
Kenmerken
Overdracht
- Vraagprijs
- € 998.000 kosten koper
- Servicekosten
- Geen servicekosten bekend
- Aangeboden sinds
-
- Status
- Beschikbaar
- Aanvaarding
- In overleg
Bouw
- Hoofdfunctie
- Kantoor
- Mogelijke functie(s)
- Belegging
- Soort bouw
- Bestaande bouw
- Bouwjaar
- 1907
Oppervlakten
- Oppervlakte
- 230 m²
- Perceel
- 201 m²
Indeling
- Aantal bouwlagen
- 3 bouwlagen
- Voorzieningen
- Airconditioning, te openen ramen, toilet, pantry en verwarming
Energie
- Energielabel
- Niet beschikbaar
Beleggingsobject
- Verhuurd
- 230 m²
NVM makelaar
Foto's
Plattegrond
Kelder
Begane grond
Eerste verdieping 1
Eerste verdieping 2
Tweede verdieping 1
Tweede verdieping 2
Berging