Westvlietweg 85-D 2495 AC Den Haag
- Nieuw
€ 1.445.000 k.k.

Omschrijving
HALF VRIJSTAANDE VILLA MET KANTOOR/PRAKTIJK MOGELIJKHEID IN HET SOUTERRAIN!
Gelegen op fraaie locatie met aan de voorzijde vrij uitzicht op huize Middenburg met park en de Vliet!
Deze vierlaags woning heeft in het souterrain de beschikking over een bergkamer van ca. 29 m2, een inloopkast, een riante werkkamer van ca. 62 m2 en toilet. Het souterrain is desgewenst buitenom te bereiken.
Op de begane grond een riante woonkamer van ca. 46 m2 met woonkeuken en bijkeuken. Op de verdiepingen 5 ruime slaapkamers en twee badkamers.
Vanwege de indeling in combinatie met de riante afmetingen leent deze woning zich uitstekend voor een combinatie wonen/werken, inwonende ouders, groot gezin, inwonende au pair etc.
Parkeren kan op eigen terrein en is geschikt voor minimaal drie auto’s. Daarnaast een grote garage met doorloop naar de woning.
De beschutte achtertuin heeft met een Zuidoost oriëntatie een optimale bezonning en biedt veel privacy!
Indeling;
Zijentree, ruime hal met modern, vrijhangend toilet en meterkast.
Vanuit de hal trap naar het ondergelegen souterrain.
Souterrain;
Hal met modern, vrijhangend toilet en toegang tot ruime inloopkast, bergkamer van ca. 29 m2. Zeer grote werk / slaapkamer van maar liefst ca. 62 m2 met openslaande deuren naar terras / tuin.
Begane grond;
L - vormige woonkamer van ca. 46 m2 met aansluitend woonkeuken van ca. 18 m2. De keuken is in een L opstelling geplaatst. Vanuit de keuken doorloop naar bijkeuken van ca.6 m2 en vervolgens Deur naar grote garage van ca. 17 m2.
1e verdieping;
Overloop met toilet, twee slaapkamer aan de achterzijde van ca.16 m2 en 11 m2. Slaapkamer aan de voorzijde van ca. 30 m2. Moderne badkamer met ligbad, separate douche en dubbele wastafels.
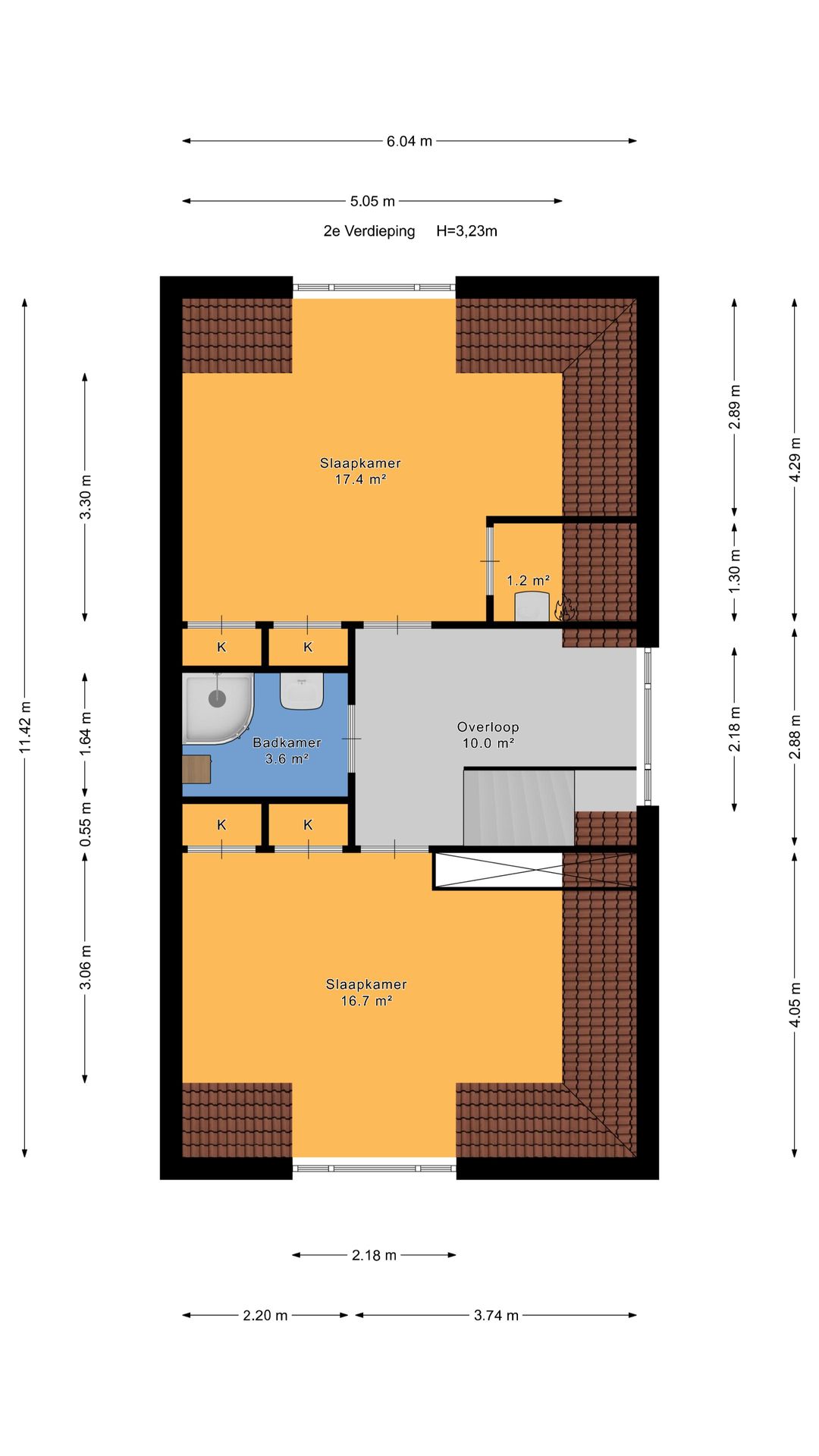
2e verdieping;
Overloop, slaapkamer aan de achterzijde van ca.17 m2 met twee vaste kasten, slaapkamer aan de voorzijde van ca.16 m2 met eveneens twee vaste kasten. Tweede badkamer met douche en wastafel.
Bijzonderheden;
• Bouwjaar 2001
• Perceel van ca. 462 m2 eigen grond
• 343 m2 woonoppervlak!
• Energie label A, optimaal geïsoleerd
• Alarm installatie
• 14 zonnepanelen
• Cv-ketel en hybride warmtepomp (2023) beiden onderhouden in september 2025
• Aanvaarding in overleg
• Parkeren op eigen terrein voor drie auto’s en garage
• Ruime vrije parkeerplaatsen aan de Westvlietweg
• Uitermate geschikt voor combinatie wonen/werken
• Zeer centrale ligging
Meetinstructie conform BBMI norm
De gegeven informatie is met zorgvuldigheid opgesteld, aan de juistheid kunnen echter geen rechten worden ontleend. Alle verstrekte informatie moet beschouwd worden als een uitnodiging tot het doen van een aanbod of om in onderhandeling te treden.
Interesse in dit huis? Bel ons voor het maken van een afspraak of schakel direct uw eigen NVM-aankoopmakelaar in. Uw NVM-aankoopmakelaar komt op voor uw belang en bespaart u veel tijd, geld en zorgen.
Adressen van collega NVM-aankoopmakelaars vindt u op Funda.
Gelegen op fraaie locatie met aan de voorzijde vrij uitzicht op huize Middenburg met park en de Vliet!
Deze vierlaags woning heeft in het souterrain de beschikking over een bergkamer van ca. 29 m2, een inloopkast, een riante werkkamer van ca. 62 m2 en toilet. Het souterrain is desgewenst buitenom te bereiken.
Op de begane grond een riante woonkamer van ca. 46 m2 met woonkeuken en bijkeuken. Op de verdiepingen 5 ruime slaapkamers en twee badkamers.
Vanwege de indeling in combinatie met de riante afmetingen leent deze woning zich uitstekend voor een combinatie wonen/werken, inwonende ouders, groot gezin, inwonende au pair etc.
Parkeren kan op eigen terrein en is geschikt voor minimaal drie auto’s. Daarnaast een grote garage met doorloop naar de woning.
De beschutte achtertuin heeft met een Zuidoost oriëntatie een optimale bezonning en biedt veel privacy!
Indeling;
Zijentree, ruime hal met modern, vrijhangend toilet en meterkast.
Vanuit de hal trap naar het ondergelegen souterrain.
Souterrain;
Hal met modern, vrijhangend toilet en toegang tot ruime inloopkast, bergkamer van ca. 29 m2. Zeer grote werk / slaapkamer van maar liefst ca. 62 m2 met openslaande deuren naar terras / tuin.
Begane grond;
L - vormige woonkamer van ca. 46 m2 met aansluitend woonkeuken van ca. 18 m2. De keuken is in een L opstelling geplaatst. Vanuit de keuken doorloop naar bijkeuken van ca.6 m2 en vervolgens Deur naar grote garage van ca. 17 m2.
1e verdieping;
Overloop met toilet, twee slaapkamer aan de achterzijde van ca.16 m2 en 11 m2. Slaapkamer aan de voorzijde van ca. 30 m2. Moderne badkamer met ligbad, separate douche en dubbele wastafels.
2e verdieping;
Overloop, slaapkamer aan de achterzijde van ca.17 m2 met twee vaste kasten, slaapkamer aan de voorzijde van ca.16 m2 met eveneens twee vaste kasten. Tweede badkamer met douche en wastafel.
Bijzonderheden;
• Bouwjaar 2001
• Perceel van ca. 462 m2 eigen grond
• 343 m2 woonoppervlak!
• Energie label A, optimaal geïsoleerd
• Alarm installatie
• 14 zonnepanelen
• Cv-ketel en hybride warmtepomp (2023) beiden onderhouden in september 2025
• Aanvaarding in overleg
• Parkeren op eigen terrein voor drie auto’s en garage
• Ruime vrije parkeerplaatsen aan de Westvlietweg
• Uitermate geschikt voor combinatie wonen/werken
• Zeer centrale ligging
Meetinstructie conform BBMI norm
De gegeven informatie is met zorgvuldigheid opgesteld, aan de juistheid kunnen echter geen rechten worden ontleend. Alle verstrekte informatie moet beschouwd worden als een uitnodiging tot het doen van een aanbod of om in onderhandeling te treden.
Interesse in dit huis? Bel ons voor het maken van een afspraak of schakel direct uw eigen NVM-aankoopmakelaar in. Uw NVM-aankoopmakelaar komt op voor uw belang en bespaart u veel tijd, geld en zorgen.
Adressen van collega NVM-aankoopmakelaars vindt u op Funda.
Kenmerken
Overdracht
- Vraagprijs
- € 1.445.000 kosten koper
- Aangeboden sinds
-
- Status
- Beschikbaar
- Aanvaarding
- In overleg
Bouw
- Hoofdfunctie
- Praktijkruimte
- Mogelijke functie(s)
- Kantoorruimte
- Soort bouw
- Bestaande bouw
- Bouwjaar
- 2001
Oppervlakten
- Oppervlakte
- 462 m²
- Perceel
- 462 m²
Energie
- Energielabel
- A
Omgeving
- Ligging
- Aan vaarwater
- Bereikbaarheid
- Snelwegafrit op 1000 m tot 1500 m
Parkeergelegenheid
- Parkeerplaatsen
- 3 niet-overdekte parkeerplaatsen
NVM makelaar
Foto's

































































Plattegrond
Souterrain

Begane Grond

1e Verdieping

2e Verdieping

Perceeloverzicht
