Koestraat 25 5081 BB Hilvarenbeek
- Verkocht
€ 30.000 /jr
€ 450.000 k.k.

Omschrijving
In het centrum van Hilvarenbeek, op een steenworp afstand van het Vrijthof gelegen vrijstaande praktijkruimte (BVO 224 m2). Deze voormalige fysiotherapiepraktijk is in 1989 gebouwd en keurig onderhouden. De praktijkruimte is ingericht met veel behandelkamers en twee grotere open ruimtes. Deze indeling is eenvoudig te wijzigen. De locatie in het centrum is ideaal, parkeren kan op eigen terrein, aan de straat en op het naastgelegen openbare parkeerterrein.
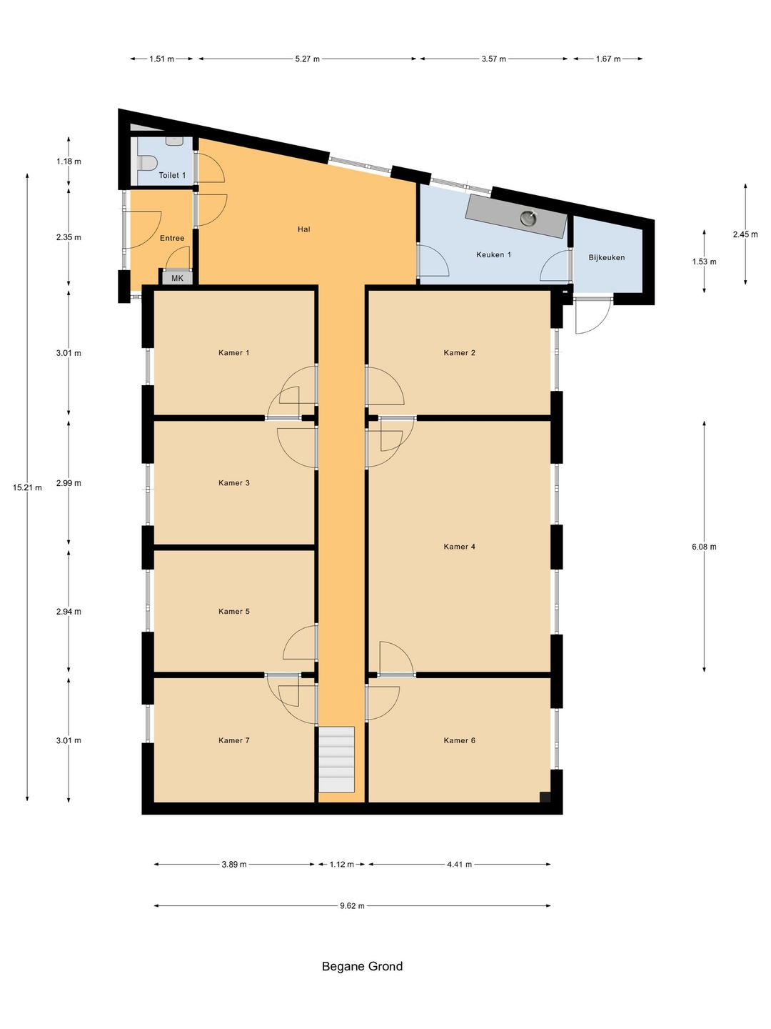
BEGANE GROND:
Entree/ hal met vloerbedekking en meterkast (12 groepen en aardlekschakelaars).
Vanuit de entree, is de ontvangstruimte bereikbaar. In deze ruimte is een balie opgesteld, vanuit de ontvangstruimte is de toiletruimte, de keuken en de gang naar alle behandelkamers te bereiken. De ontvangstruimte is afgewerkt met een PVC vloer en systeemplafond. Tevens beschikt deze ruimte over een airconditioning.
Aan de voorzijde ligt de geheel betegelde toiletruimte met wandcloset en fonteintje.
De keuken is voorzien van een eenvoudig keukenblok met onder- en bovenkastjes en elektrische inbouwboiler. Aansluitend aan de keuken is de bijkeuken gesitueerd.
In de bijkeuken is de heteluchtverwarmings-unit opgesteld (2017), ook is via een achterdeur de achtertuin te bereiken.
De behandelkamers welke zowel aan de voor- als achterzijde liggen, zijn te bereiken middels een lange gang met trapopgang.
Aan de voorzijde zijn vier behandelkamers gesitueerd. Allen zijn ze voorzien van een PVC vloer, systeemplafond en kantelramen. Drie van deze ruimtes zijn tevens voorzien van een airconditioning. Tussen de behandelkamers zijn ook twee deuren geplaatst.
Aan de achterzijde zijn twee behandelkamers gelegen, beiden voorzien van een airconditioning. Tussen deze kamers in is een grote open ruimte (voormalige oefenruimte) gesitueerd. Deze ruimte is zowel vanuit de gang alsmede vanuit de twee behandelkamers te bereiken. Ook deze ruimte is afgewerkt met een PVC vloer en airconditioning. De ruimte is eenvoudig aan te passen naar 2 behandelkamers.
EERSTE VERDIEPING:
Middels een vaste trap is een ruime hal te bereiken. Deze hal met toiletruimte, geeft toegang tot de bergruimte, een tweede keuken en een grote fitnesszaal.
De toiletruimte is geheel betegeld en beschikt over een wandcloset en een fonteintje.
Aan de voorzijde is de tweede keukenruimte gesitueerd, welke is voorzien van een keukenblok met onder- en bovenkasten en elektrische inbouwboiler. Deze ruimte beschikt over een Velux dakraam. Onder de dakschuinte is bergruimte aanwezig.
Aan de achterzijde ligt een bergruimte, hier bevindt zich ook de Remeha cv- ketel.
Aansluitend is de zeer ruime open ruimte te bereiken. Deze ruimte welke beschikt over 6 Velux dakramen, airconditioning en bergruimte onder de dak schuinte. Deze ruimte is in gebruik geweest als fitness ruimte. De indeling kan desgewenst worden aangepast naar meerdere kamers.
De gehele verdieping is voorzien van een linoleumvloer en een systeemplafond met inbouwverlichting.
TWEEDE VERDIEPING:
Middels een vlizotrap is de zeer ruime bergzolder op stahoogte te bereiken.
BUITEN:
Aan de voorzijde is een kleine voortuin met sierbeplanting aanwezig. Aan de zijkant van het gebouw liggen 2 parkeerplaatsen. Vanuit deze parkeerplaatsen is het achterterrein/ plaats te bereiken alsmede de achterom ingang van de praktijk. De achterplaats is geheel voorzien van bestrating.
ALGEMEEN:
- Praktijkruimte met bestemming "Maatschappelijk”.
- Ideale ligging in het centrum van Hilvarenbeek.
- Goed onderhouden en goed geïsoleerd.
- In 2017 is het toilet op de begane grond vernieuwd en vergroot.
- Het platte dak is geïsoleerd en vernieuwd met pvc in 2017.
- Energielabel A.
- Veel indelingsmogelijkheden.
- Verwarming begane grond middels heteluchtverwarming (bj. 2017).
- Verwarming op de verdieping middels Remeha cv ketel (bj. 2003).
- Het object wordt zowel te koop als ook te huur aangeboden.
- Het pand kan mogelijk ook herontwikkeld worden naar woonruimte (appartementen) uiteraard onder voorbehoud goedkeuring Gemeente Hilvarenbeek.
BEGANE GROND:
Entree/ hal met vloerbedekking en meterkast (12 groepen en aardlekschakelaars).
Vanuit de entree, is de ontvangstruimte bereikbaar. In deze ruimte is een balie opgesteld, vanuit de ontvangstruimte is de toiletruimte, de keuken en de gang naar alle behandelkamers te bereiken. De ontvangstruimte is afgewerkt met een PVC vloer en systeemplafond. Tevens beschikt deze ruimte over een airconditioning.
Aan de voorzijde ligt de geheel betegelde toiletruimte met wandcloset en fonteintje.
De keuken is voorzien van een eenvoudig keukenblok met onder- en bovenkastjes en elektrische inbouwboiler. Aansluitend aan de keuken is de bijkeuken gesitueerd.
In de bijkeuken is de heteluchtverwarmings-unit opgesteld (2017), ook is via een achterdeur de achtertuin te bereiken.
De behandelkamers welke zowel aan de voor- als achterzijde liggen, zijn te bereiken middels een lange gang met trapopgang.
Aan de voorzijde zijn vier behandelkamers gesitueerd. Allen zijn ze voorzien van een PVC vloer, systeemplafond en kantelramen. Drie van deze ruimtes zijn tevens voorzien van een airconditioning. Tussen de behandelkamers zijn ook twee deuren geplaatst.
Aan de achterzijde zijn twee behandelkamers gelegen, beiden voorzien van een airconditioning. Tussen deze kamers in is een grote open ruimte (voormalige oefenruimte) gesitueerd. Deze ruimte is zowel vanuit de gang alsmede vanuit de twee behandelkamers te bereiken. Ook deze ruimte is afgewerkt met een PVC vloer en airconditioning. De ruimte is eenvoudig aan te passen naar 2 behandelkamers.
EERSTE VERDIEPING:
Middels een vaste trap is een ruime hal te bereiken. Deze hal met toiletruimte, geeft toegang tot de bergruimte, een tweede keuken en een grote fitnesszaal.
De toiletruimte is geheel betegeld en beschikt over een wandcloset en een fonteintje.
Aan de voorzijde is de tweede keukenruimte gesitueerd, welke is voorzien van een keukenblok met onder- en bovenkasten en elektrische inbouwboiler. Deze ruimte beschikt over een Velux dakraam. Onder de dakschuinte is bergruimte aanwezig.
Aan de achterzijde ligt een bergruimte, hier bevindt zich ook de Remeha cv- ketel.
Aansluitend is de zeer ruime open ruimte te bereiken. Deze ruimte welke beschikt over 6 Velux dakramen, airconditioning en bergruimte onder de dak schuinte. Deze ruimte is in gebruik geweest als fitness ruimte. De indeling kan desgewenst worden aangepast naar meerdere kamers.
De gehele verdieping is voorzien van een linoleumvloer en een systeemplafond met inbouwverlichting.
TWEEDE VERDIEPING:
Middels een vlizotrap is de zeer ruime bergzolder op stahoogte te bereiken.
BUITEN:
Aan de voorzijde is een kleine voortuin met sierbeplanting aanwezig. Aan de zijkant van het gebouw liggen 2 parkeerplaatsen. Vanuit deze parkeerplaatsen is het achterterrein/ plaats te bereiken alsmede de achterom ingang van de praktijk. De achterplaats is geheel voorzien van bestrating.
ALGEMEEN:
- Praktijkruimte met bestemming "Maatschappelijk”.
- Ideale ligging in het centrum van Hilvarenbeek.
- Goed onderhouden en goed geïsoleerd.
- In 2017 is het toilet op de begane grond vernieuwd en vergroot.
- Het platte dak is geïsoleerd en vernieuwd met pvc in 2017.
- Energielabel A.
- Veel indelingsmogelijkheden.
- Verwarming begane grond middels heteluchtverwarming (bj. 2017).
- Verwarming op de verdieping middels Remeha cv ketel (bj. 2003).
- Het object wordt zowel te koop als ook te huur aangeboden.
- Het pand kan mogelijk ook herontwikkeld worden naar woonruimte (appartementen) uiteraard onder voorbehoud goedkeuring Gemeente Hilvarenbeek.
Kenmerken
Overdracht
- Laatste vraagprijs
- € 450.000 kosten koper
- Huurprijs
- € 30.000 per jaar
- Aangeboden sinds
-
- Status
- Verkocht
Bouw
- Hoofdfunctie
- Praktijkruimte
- Soort bouw
- Bestaande bouw
- Bouwjaar
- 1989
Oppervlakten
- Oppervlakte
- 242 m²
- Perceel
- 242 m²
Energie
- Energielabel
- Niet beschikbaar
Omgeving
- Ligging
- In woonwijk
- Bereikbaarheid
- Bushalte op minder dan 500 m
NVM makelaar
Foto's




































