Hoofdstraat 10-12 1777 CB Hippolytushoef
                Verkoop bij inschrijving
            
         
Omschrijving
De Heilige Hippolytuskerk  is  centraal gelegen  in Hippolytushoef  en bestaat uit een  fraai  uitgevoerde kerk met een naastgelegen  pastorie.  
  
Indeling kerk:
 
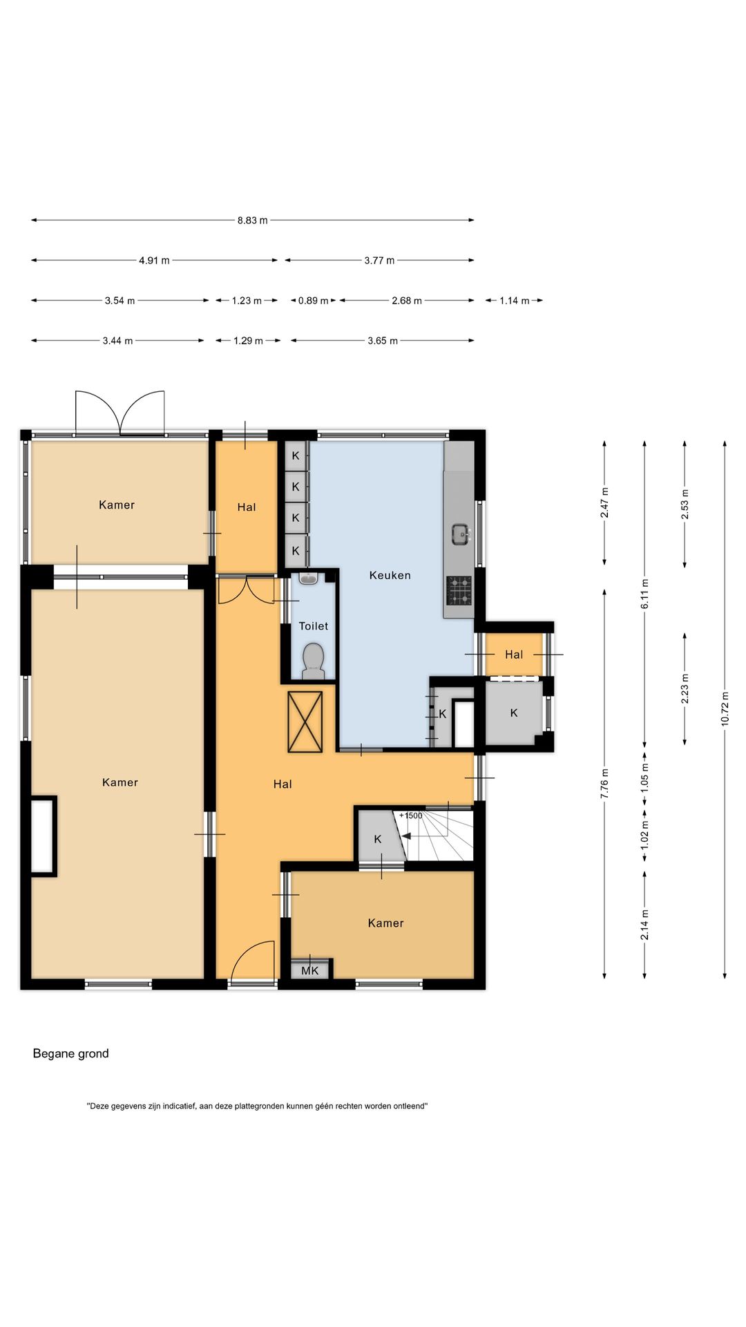
De kerk is 9.00 bij 19.35 en heeft een entree, met daarnaast een kast en trap naar het gedeelte waar het orgel is geplaatst. Aan de andere kant treft u het altaar aan met daarachter een kamer met kasten. Via een deur loopt u door naar de pastorie.
 
Indeling pastorie: Entree/hal, kleine werk spreekkamer, trap naar de kelder, toilet ruimte, hal aan de achterzijde, ruimte keuken, grote kamer met aangrenzend een serre.
 
Het vloeroppervlakte van de begane grond is ca. 95 m2.
 
Indeling bovenwoning:
 
Entree met overloop, keuken, slaapkamer 1, slaapkamer 2 en woonkamer met kasten.
 
De 2e verdieping Bestaat uit een grote zolderruimte met een berging.
 
De bovenwoning is ca 75 m2 en is thans verhuurd voor 805,05 euro en voor het energieverbruik wordt er 92.96 euro gerekend. Het betreft een doorlopende huurovereenkomst.
 
Achter de kerk staat thans nog een vrijstaande garage.
 
Het achtergelegen kerkhof wordt niet verkocht.
 
De perceel grootte is ca 1363 m2 groot na afsplitsing van een gedeelte van het perceel voor toegang tot het kerkhof.
 
Bezichtiging en Contact:
 
De kerk wordt verkocht per inschrijving waarbij u het inschrijfformulier in de dataroom aantreft. U kunt contact met ons opnemen voor toegang tot de dataroom.
 
Contactgegevens: J. van Til van Brantjes bedrijfsmakelaars begeleid de verkoop van deze kerk.
 
Mis deze unieke kans niet en maak van deze historische kerk aan de Hoofdstraat 10-12 in Hippolytushoef uw nieuwe project! Dit is een zeldzame gelegenheid om een stukje geschiedenis te bezitten en te transformeren naar uw eigen visie.
 
Het object wordt verkocht in de huidige staat. Op basis van het uitgangspunt 'as is, where is’ (in gedeeltelijk verhuurde staat);
 
Specificaties:
 
Perceelgrootte: ca. 1363 m2
 
Bouwjaar: 1868
 
Gedeeltelijk verhuurde pastorie
 
Parkeergelegenheid: voor de kerk op eigen terrein
 
Bestemming:
 
De kerk en pastorie hebben een maatschappelijke bestemming alsmede de bestemming Archeologie 2
 
Specificaties
Kadastraal bekend gemeente Wieringen sectie C, nummer 6782, groot ca 1363 m2 bestaande uit een zeer fraai authentieke kerk, een pastorie met een verhuurde bovenwoning alsmede een vrijstaande garage.
 
De bestemming is maatschappelijk alsmede een dubbel waarde archeologie 2.
 
Locatie
 
Hippolytushoef: Een Verborgen Parel op het Eiland Wieringen
 
Ontdek het pittoreske dorp Hippolytushoef, een verborgen parel gelegen op het voormalige eiland Wieringen in de provincie Noord-Holland. Dit charmante dorp biedt een perfecte mix van rustieke schoonheid, rijke geschiedenis en gastvrije gemeenschap, waardoor het een ideale bestemming is voor zowel dagjesmensen als vakantiegangers.
 
Bij aankomst in Hippolytushoef word je verwelkomd door schilderachtige straatjes, omzoomd met karakteristieke oude panden en weelderig groen. Het dorpshart ademt een authentieke sfeer uit, met gezellige cafés en lokale winkels die uitnodigen tot een ontspannen middagje slenteren. De historische kerk, die trots boven het dorp uittorent, getuigt van een rijke geschiedenis die teruggaat tot de Middeleeuwen.
 
Natuurliefhebbers zullen zich hier helemaal thuis voelen. De omringende Wieringer landschappen bieden een prachtig decor voor wandel- en fietstochten. Verken de uitgestrekte polders, geniet van het uitzicht over de Waddenzee en laat je verrassen door de unieke flora en fauna die deze regio te bieden heeft.
 
Hippolytushoef is ook een uitstekende uitvalsbasis voor het verkennen van de bredere regio. Maak een uitstapje naar het nabijgelegen Robbenoordbos of bezoek de Afsluitdijk, een indrukwekkend staaltje Nederlandse waterbouwkunde. En laten we de lokale culinaire hoogstandjes niet vergeten! Proef de verse vis en zeevruchten, rechtstreeks uit de Waddenzee, in een van de sfeervolle eetgelegenheden.
 
Of je nu op zoek bent naar een rustige ontsnapping uit de drukte van alledag, een culturele ontdekkingstocht of een avontuurlijke natuurervaring, Hippolytushoef heeft het allemaal. Kom en ervaar zelf de charme en gastvrijheid van dit bijzondere dorp en laat je betoveren door alles wat het te bieden heeft. Hippolytushoef wacht op je!
 
Via deze link kunt u toegang vragen tot de dataroom bij Vendr.
 
Procedure
De kerk met naastgelegen gedeeltelijk verhuurde pastorie alsmede de achter de pastorie gelegen garage worden per inschrijving verkocht.
 
De uiterste datum voor inschrijving is 12 december 2025 om 12 uur. Een ieder kan met het in de dataroom geplaatste inschrijfformulier een bieding uitbrengen en deze voor 12 december 2025 per post of per email sturen naar:
 
Krans notarissen
 
Van Eedenstraat 20
2012 EM Haarlem
 
email :
 
Na de inschrijving zal door het kerkbestuur vergaderd worden over de gunning van de verkoop waarna er een koopcontract wordt opgesteld waarbij er al een concept in de dataroom aanwezig is. Na het tekenen van de koopovereenkomst dient er een bisschoppelijke machtiging van het bisdom aangevraagd worden. Na het verkrijgen van een bisschoppelijke machtiging is er pas een definitieve overeenkomst.
 
Kijkdagen:
 
Vrijdag 14 november 2025 van 09:00 tot 12:00
 
Donderdag 27 november 2025 van 14:00 tot 17:00
Indeling kerk:
De kerk is 9.00 bij 19.35 en heeft een entree, met daarnaast een kast en trap naar het gedeelte waar het orgel is geplaatst. Aan de andere kant treft u het altaar aan met daarachter een kamer met kasten. Via een deur loopt u door naar de pastorie.
Indeling pastorie: Entree/hal, kleine werk spreekkamer, trap naar de kelder, toilet ruimte, hal aan de achterzijde, ruimte keuken, grote kamer met aangrenzend een serre.
Het vloeroppervlakte van de begane grond is ca. 95 m2.
Indeling bovenwoning:
Entree met overloop, keuken, slaapkamer 1, slaapkamer 2 en woonkamer met kasten.
De 2e verdieping Bestaat uit een grote zolderruimte met een berging.
De bovenwoning is ca 75 m2 en is thans verhuurd voor 805,05 euro en voor het energieverbruik wordt er 92.96 euro gerekend. Het betreft een doorlopende huurovereenkomst.
Achter de kerk staat thans nog een vrijstaande garage.
Het achtergelegen kerkhof wordt niet verkocht.
De perceel grootte is ca 1363 m2 groot na afsplitsing van een gedeelte van het perceel voor toegang tot het kerkhof.
Bezichtiging en Contact:
De kerk wordt verkocht per inschrijving waarbij u het inschrijfformulier in de dataroom aantreft. U kunt contact met ons opnemen voor toegang tot de dataroom.
Contactgegevens: J. van Til van Brantjes bedrijfsmakelaars begeleid de verkoop van deze kerk.
Mis deze unieke kans niet en maak van deze historische kerk aan de Hoofdstraat 10-12 in Hippolytushoef uw nieuwe project! Dit is een zeldzame gelegenheid om een stukje geschiedenis te bezitten en te transformeren naar uw eigen visie.
Het object wordt verkocht in de huidige staat. Op basis van het uitgangspunt 'as is, where is’ (in gedeeltelijk verhuurde staat);
Specificaties:
Perceelgrootte: ca. 1363 m2
Bouwjaar: 1868
Gedeeltelijk verhuurde pastorie
Parkeergelegenheid: voor de kerk op eigen terrein
Bestemming:
De kerk en pastorie hebben een maatschappelijke bestemming alsmede de bestemming Archeologie 2
Specificaties
Kadastraal bekend gemeente Wieringen sectie C, nummer 6782, groot ca 1363 m2 bestaande uit een zeer fraai authentieke kerk, een pastorie met een verhuurde bovenwoning alsmede een vrijstaande garage.
De bestemming is maatschappelijk alsmede een dubbel waarde archeologie 2.
Locatie
Hippolytushoef: Een Verborgen Parel op het Eiland Wieringen
Ontdek het pittoreske dorp Hippolytushoef, een verborgen parel gelegen op het voormalige eiland Wieringen in de provincie Noord-Holland. Dit charmante dorp biedt een perfecte mix van rustieke schoonheid, rijke geschiedenis en gastvrije gemeenschap, waardoor het een ideale bestemming is voor zowel dagjesmensen als vakantiegangers.
Bij aankomst in Hippolytushoef word je verwelkomd door schilderachtige straatjes, omzoomd met karakteristieke oude panden en weelderig groen. Het dorpshart ademt een authentieke sfeer uit, met gezellige cafés en lokale winkels die uitnodigen tot een ontspannen middagje slenteren. De historische kerk, die trots boven het dorp uittorent, getuigt van een rijke geschiedenis die teruggaat tot de Middeleeuwen.
Natuurliefhebbers zullen zich hier helemaal thuis voelen. De omringende Wieringer landschappen bieden een prachtig decor voor wandel- en fietstochten. Verken de uitgestrekte polders, geniet van het uitzicht over de Waddenzee en laat je verrassen door de unieke flora en fauna die deze regio te bieden heeft.
Hippolytushoef is ook een uitstekende uitvalsbasis voor het verkennen van de bredere regio. Maak een uitstapje naar het nabijgelegen Robbenoordbos of bezoek de Afsluitdijk, een indrukwekkend staaltje Nederlandse waterbouwkunde. En laten we de lokale culinaire hoogstandjes niet vergeten! Proef de verse vis en zeevruchten, rechtstreeks uit de Waddenzee, in een van de sfeervolle eetgelegenheden.
Of je nu op zoek bent naar een rustige ontsnapping uit de drukte van alledag, een culturele ontdekkingstocht of een avontuurlijke natuurervaring, Hippolytushoef heeft het allemaal. Kom en ervaar zelf de charme en gastvrijheid van dit bijzondere dorp en laat je betoveren door alles wat het te bieden heeft. Hippolytushoef wacht op je!
Via deze link kunt u toegang vragen tot de dataroom bij Vendr.
Procedure
De kerk met naastgelegen gedeeltelijk verhuurde pastorie alsmede de achter de pastorie gelegen garage worden per inschrijving verkocht.
De uiterste datum voor inschrijving is 12 december 2025 om 12 uur. Een ieder kan met het in de dataroom geplaatste inschrijfformulier een bieding uitbrengen en deze voor 12 december 2025 per post of per email sturen naar:
Krans notarissen
Van Eedenstraat 20
2012 EM Haarlem
email :
Na de inschrijving zal door het kerkbestuur vergaderd worden over de gunning van de verkoop waarna er een koopcontract wordt opgesteld waarbij er al een concept in de dataroom aanwezig is. Na het tekenen van de koopovereenkomst dient er een bisschoppelijke machtiging van het bisdom aangevraagd worden. Na het verkrijgen van een bisschoppelijke machtiging is er pas een definitieve overeenkomst.
Kijkdagen:
Vrijdag 14 november 2025 van 09:00 tot 12:00
Donderdag 27 november 2025 van 14:00 tot 17:00
Kenmerken
Overdracht
- Vraagprijs
- Verkoop bij inschrijving
- Aangeboden sinds
- 
        
- Status
- Beschikbaar
- Aanvaarding
- In overleg
Bouw
- Hoofdfunctie
- Religieuze instelling
- Soort bouw
- Bestaande bouw
- Bouwjaar
- 1867
Oppervlakten
- Oppervlakte
- 200 m²
- Perceel
- 1.363 m²
Energie
- Energielabel
- G
Omgeving
- Ligging
- Stadscentrum/dorpskern, winkelcentrum en in woonwijk
Parkeergelegenheid
- Parkeerplaatsen
- 4 niet-overdekte parkeerplaatsen
Foto's
 
                     
                     
                     
                     
                     
                     
                     
                     
                     
                     
                     
                     
                     
                     
                     
                     
                     
                     
                     
                     
                     
                     
                     
                     
                     
                     
                     
                     
                     
                     
                     
                     
                     
                     
                     
                     
                     
                     
                     
                     
                     
                     
                    