Beethovenstraat 70 1077 JL Amsterdam
- Nieuw
Huurprijs op aanvraag

Omschrijving
HET GEBOUW
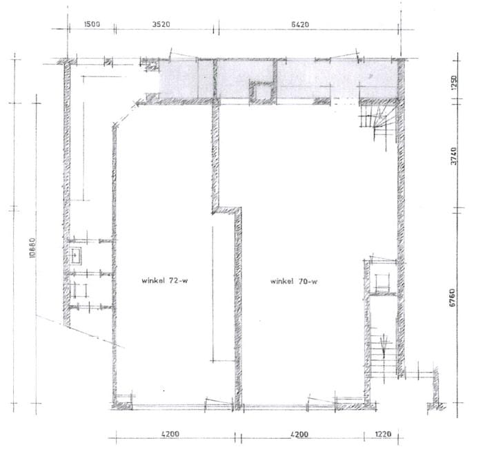
De winkelruimte bevindt zich op een uitstekende locatie aan de Beethovenstraat 70 in Amsterdam Oud-Zuid. Deze representatieve ruimte is gesitueerd op de begane grond met een souterrain. In totaal betreft dit circa 80 m². Dankzij de overzichtelijke indeling en de brede gevel heeft de winkel een aantrekkelijke uitstraling en veel zichtbaarheid richting passanten.
De Beethovenstraat staat bekend als een van de meest chique en levendige winkelstraten van Amsterdam. Het winkelgebied onderscheidt zich door een breed en gevarieerd aanbod: van hoogwaardige mode-en lifestylewinkels tot luxe gebruiksartikelen en dagelijkse voorzieningen. Naast het uitgebreide winkel aanbod dragen de diverse horecagelegenheden in de straat –variërend van stijlvolle koffiezaken tot gezellige lunchplekken –bij aan de levendige sfeer en maken zij het gebied tot een aantrekkelijke bestemming voor zowel buurtbewoners als bezoekers van buiten de stad.
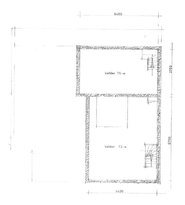
VERHUURBARE OPPERVLAKTE
Het betreft hier circa 80 m² winkelruimte als volgt verdeeld:
Begane grond: 68 m²
Souterrain: 12,7 m²
AANVANGHUURPRIJS
€ 4.500,- per maand te vermeerderen met omzetbelasting en servicekosten.
SERVICEKOSTEN
PM
HUURINGANGSDATUM/OPLEVERING
Per 1 februari 2026
BESTEMMING
De publiek-/privaatrechtelijke bestemming is winkelruimte.
HUURPRIJSINDEXERING
De huurprijs wordt jaarlijks geïndexeerd, voor het eerst één jaar na huuringangsdatum, op basis van het prijsindexcijfer volgens de consumentenprijsindex (CPI) reeks Alle Huishoudens (2015 = 100) gepubliceerd door het Centraal Bureau voor de Statistiek (CBS).
HUURTERMIJN
Minimaal 5 (vijf) jaren met een verlengingsperiode van 5 (vijf) jaren; opzegtermijn 12 (twaalf) maanden.
ZEKERHEIDSSTELLING
Er dient een bankgarantie gesteld te worden ter grootte van een bedrag gelijk aan 3 (drie) maanden huur en servicekosten, te vermeerderen met BTW, afhankelijk van de te verkrijgen kredietinformatie.
VOORWAARDEN &CONDITIES
Er zal gewerkt worden langs de lijnen van een standaard huurcontract, zoals opgesteld door de Raad voor Onroerende Zaken (ROZ), model februari 2015.
BTW
Er zal geopteerd worden voor BTW-belaste verhuur. Huurder dient derhalve voor meer dan 90% BTW-belaste leveringen en diensten blijvend te leveren.
De winkelruimte bevindt zich op een uitstekende locatie aan de Beethovenstraat 70 in Amsterdam Oud-Zuid. Deze representatieve ruimte is gesitueerd op de begane grond met een souterrain. In totaal betreft dit circa 80 m². Dankzij de overzichtelijke indeling en de brede gevel heeft de winkel een aantrekkelijke uitstraling en veel zichtbaarheid richting passanten.
De Beethovenstraat staat bekend als een van de meest chique en levendige winkelstraten van Amsterdam. Het winkelgebied onderscheidt zich door een breed en gevarieerd aanbod: van hoogwaardige mode-en lifestylewinkels tot luxe gebruiksartikelen en dagelijkse voorzieningen. Naast het uitgebreide winkel aanbod dragen de diverse horecagelegenheden in de straat –variërend van stijlvolle koffiezaken tot gezellige lunchplekken –bij aan de levendige sfeer en maken zij het gebied tot een aantrekkelijke bestemming voor zowel buurtbewoners als bezoekers van buiten de stad.
VERHUURBARE OPPERVLAKTE
Het betreft hier circa 80 m² winkelruimte als volgt verdeeld:
Begane grond: 68 m²
Souterrain: 12,7 m²
AANVANGHUURPRIJS
€ 4.500,- per maand te vermeerderen met omzetbelasting en servicekosten.
SERVICEKOSTEN
PM
HUURINGANGSDATUM/OPLEVERING
Per 1 februari 2026
BESTEMMING
De publiek-/privaatrechtelijke bestemming is winkelruimte.
HUURPRIJSINDEXERING
De huurprijs wordt jaarlijks geïndexeerd, voor het eerst één jaar na huuringangsdatum, op basis van het prijsindexcijfer volgens de consumentenprijsindex (CPI) reeks Alle Huishoudens (2015 = 100) gepubliceerd door het Centraal Bureau voor de Statistiek (CBS).
HUURTERMIJN
Minimaal 5 (vijf) jaren met een verlengingsperiode van 5 (vijf) jaren; opzegtermijn 12 (twaalf) maanden.
ZEKERHEIDSSTELLING
Er dient een bankgarantie gesteld te worden ter grootte van een bedrag gelijk aan 3 (drie) maanden huur en servicekosten, te vermeerderen met BTW, afhankelijk van de te verkrijgen kredietinformatie.
VOORWAARDEN &CONDITIES
Er zal gewerkt worden langs de lijnen van een standaard huurcontract, zoals opgesteld door de Raad voor Onroerende Zaken (ROZ), model februari 2015.
BTW
Er zal geopteerd worden voor BTW-belaste verhuur. Huurder dient derhalve voor meer dan 90% BTW-belaste leveringen en diensten blijvend te leveren.
Kenmerken
Overdracht
- Huurprijs
- Huurprijs op aanvraag
- Aangeboden sinds
-
- Status
- Beschikbaar
- Aanvaarding
- Beschikbaar per 1-2-2026
Bouw
- Hoofdfunctie
- Winkel
- Soort bouw
- Bestaande bouw
- Bouwjaar
- 1930
Oppervlakten
- Oppervlakte
- 80 m²
- Verkoopvloeroppervlakte
- 68 m²
- Breedte gevel
- 4 m
Indeling
- Aantal bouwlagen
- 2 bouwlagen
Energie
- Energielabel
- Niet beschikbaar
Omgeving
- Bijdrage winkeliersvereniging
- Nee
- Welstandsklasse
- A1
Foto's






