Herenstraat 20-A 1015 CB Amsterdam
€ 3.950 /mnd
Omschrijving
Algemene omschrijving
De Herenstraat verbindt de Herengracht met de Keizersgracht en vormt samen met de Prinsenstraat een karakteristieke winkellint in de Jordaan. Net als op de grachten vind je hier prachtige monumentale panden met op de begane grond winkeltjes, die net even anders zijn dan anderen.
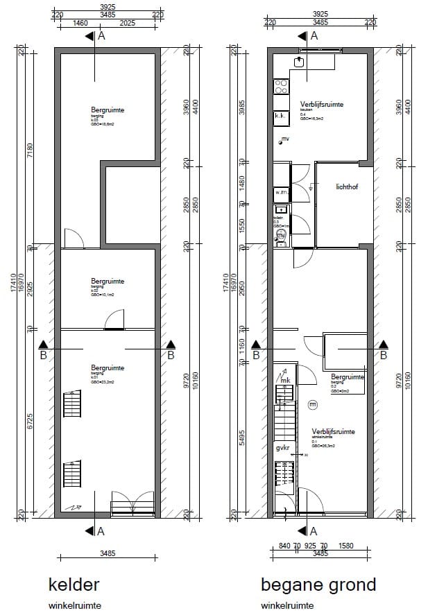
Deze zeer charmante en gerenoveerde winkel, van ca 100m2 in totaal, bestaat uit twee lagen, de verhoogde begane grond en souterrain. Met een hedendaags oog is de winkel destijds verbouwd en voorzien van onder andere gestuukte wanden, nieuw plafond, nieuwe elektra inclusief lichtpunten, nieuwe vloer en vloerbalken waar nodig, nieuwe wc en complete pantry in het souterrain. Het pand is voorzien met eigen meters t.b.v. de nutsvoorzieningen en een goede CV -ketel.
De aanwezigheid van het lichthof op de begane grond geeft de ruimte meer sfeer en daardoor is er veel meer natuurlijk daglicht, wat zeer prettig aanvoelt. Bijkomend voordeel is dat er meteen ook een eigen buitenruimte is.
Het souterrain is droog en kun je via de interne trap bereiken maar ook direct vanaf de straatzijde. Daardoor is deze ruimte in het gebruik ook voor meerdere doeleinden geschikt. De stahoogte is ca 2,10 meter waardoor het ook prima geschikt is voor opslag, lunchruimte en/of vergaderruimte.
Totale oppervlakte
Circa 100m²
Begane grond – ca. 51m²
Souterrain – ca. 49m²
Bestemming
Enkelbestemming Centrum 2: detailhandel, consumentverzorgende dienstverlening en kantoren met baliefunctie.
Huurprijs
€ 3.950,- per maand. Over de huurprijs wordt geen BTW berekend.
Aanvaarding
In overleg, kan spoedig.
Opleveringsniveau
Casco, in geheel gerenoveerde, leeg en ontruimde, staat.
Huurperiode
Vijf jaar met een optietermijn van nog eens vijf jaar. Eventueel zijn andere looptijden bespreekbaar.
Opzegtermijn
Twaalf maanden voor het einde van een huurperiode.
Bereikbaarheid
Goed, zowel per auto, bus, fiets en tram.
Parkeren
Er is voldoende parkeergelegenheid in de buurt aanwezig. Betaald parkeren of middels een parkeervergunning.
Leveringen/diensten
Eigen meters; Huurder dient zelf het contract voor gas, water en elektra af te sluiten.
Huurovereenkomst
Op basis van het standaardmodel van de Raad voor Onroerende Zaken zoals gehanteerd door de Nederlandse vereniging van Makelaars in onroerend goed (NVM).
Huurprijsaanpassing
Jaarlijks, op de huuringangsdatum, conform het verloop van de consumentenprijsindex (CPI), reeks CPI – alle huishoudens gepubliceerd door het Centraal Planbureau voor de Statistiek.
Huurprijsherziening
Vijfjaarlijks vindt huurprijsherziening plaats conform de dan geldende marktwaarde.
Huurbetaling
Per maand vooruit.
Zekerheidstelling
Huurder zal een waarborgsom stellen van tenminste een betalingsverplichting van drie maanden.
Voorbehoud
Deze informatie is geheel vrijblijvend. Aan de inhoud van deze informatie kan geen rechten worden ontleend. Een overeenkomst kan pas tot stand komen na uitdrukkelijke en schriftelijke toestemming van de eigenaar.
Rappange Makelaardij B.V.
Prinsengracht 255-259
1016 GV Amsterdam
tel: 020-6240363
internet:
e-mail:
Deze brochure is met zorg samengesteld. Mochten er in onze mededelingen toch fouten of vergissingen voorkomen, dan kunnen wij hiervoor niet aansprakelijk gesteld worden. Neem altijd persoonlijk contact met ons op, zodat wij u volledige informatie kunnen verschaffen over dit object.?
De Herenstraat verbindt de Herengracht met de Keizersgracht en vormt samen met de Prinsenstraat een karakteristieke winkellint in de Jordaan. Net als op de grachten vind je hier prachtige monumentale panden met op de begane grond winkeltjes, die net even anders zijn dan anderen.
Deze zeer charmante en gerenoveerde winkel, van ca 100m2 in totaal, bestaat uit twee lagen, de verhoogde begane grond en souterrain. Met een hedendaags oog is de winkel destijds verbouwd en voorzien van onder andere gestuukte wanden, nieuw plafond, nieuwe elektra inclusief lichtpunten, nieuwe vloer en vloerbalken waar nodig, nieuwe wc en complete pantry in het souterrain. Het pand is voorzien met eigen meters t.b.v. de nutsvoorzieningen en een goede CV -ketel.
De aanwezigheid van het lichthof op de begane grond geeft de ruimte meer sfeer en daardoor is er veel meer natuurlijk daglicht, wat zeer prettig aanvoelt. Bijkomend voordeel is dat er meteen ook een eigen buitenruimte is.
Het souterrain is droog en kun je via de interne trap bereiken maar ook direct vanaf de straatzijde. Daardoor is deze ruimte in het gebruik ook voor meerdere doeleinden geschikt. De stahoogte is ca 2,10 meter waardoor het ook prima geschikt is voor opslag, lunchruimte en/of vergaderruimte.
Totale oppervlakte
Circa 100m²
Begane grond – ca. 51m²
Souterrain – ca. 49m²
Bestemming
Enkelbestemming Centrum 2: detailhandel, consumentverzorgende dienstverlening en kantoren met baliefunctie.
Huurprijs
€ 3.950,- per maand. Over de huurprijs wordt geen BTW berekend.
Aanvaarding
In overleg, kan spoedig.
Opleveringsniveau
Casco, in geheel gerenoveerde, leeg en ontruimde, staat.
Huurperiode
Vijf jaar met een optietermijn van nog eens vijf jaar. Eventueel zijn andere looptijden bespreekbaar.
Opzegtermijn
Twaalf maanden voor het einde van een huurperiode.
Bereikbaarheid
Goed, zowel per auto, bus, fiets en tram.
Parkeren
Er is voldoende parkeergelegenheid in de buurt aanwezig. Betaald parkeren of middels een parkeervergunning.
Leveringen/diensten
Eigen meters; Huurder dient zelf het contract voor gas, water en elektra af te sluiten.
Huurovereenkomst
Op basis van het standaardmodel van de Raad voor Onroerende Zaken zoals gehanteerd door de Nederlandse vereniging van Makelaars in onroerend goed (NVM).
Huurprijsaanpassing
Jaarlijks, op de huuringangsdatum, conform het verloop van de consumentenprijsindex (CPI), reeks CPI – alle huishoudens gepubliceerd door het Centraal Planbureau voor de Statistiek.
Huurprijsherziening
Vijfjaarlijks vindt huurprijsherziening plaats conform de dan geldende marktwaarde.
Huurbetaling
Per maand vooruit.
Zekerheidstelling
Huurder zal een waarborgsom stellen van tenminste een betalingsverplichting van drie maanden.
Voorbehoud
Deze informatie is geheel vrijblijvend. Aan de inhoud van deze informatie kan geen rechten worden ontleend. Een overeenkomst kan pas tot stand komen na uitdrukkelijke en schriftelijke toestemming van de eigenaar.
Rappange Makelaardij B.V.
Prinsengracht 255-259
1016 GV Amsterdam
tel: 020-6240363
internet:
e-mail:
Deze brochure is met zorg samengesteld. Mochten er in onze mededelingen toch fouten of vergissingen voorkomen, dan kunnen wij hiervoor niet aansprakelijk gesteld worden. Neem altijd persoonlijk contact met ons op, zodat wij u volledige informatie kunnen verschaffen over dit object.?
Kenmerken
Overdracht
- Huurprijs
- € 3.950 per maand
- Aangeboden sinds
-
- Status
- Beschikbaar
- Aanvaarding
- In overleg
Bouw
- Hoofdfunctie
- Winkel met showroom
- Soort bouw
- Bestaande bouw
- Bouwjaar
- Voor 1906
Oppervlakten
- Oppervlakte
- 100 m²
- Verkoopvloeroppervlakte
- 83 m²
- Breedte gevel
- 3,5 m
Indeling
- Aantal bouwlagen
- 2 bouwlagen
Energie
- Energielabel
- Niet beschikbaar
Omgeving
- Ligging
- Stadscentrum/dorpskern
- Bereikbaarheid
- Bushalte op 1000 m tot 1500 m, metrohalte op 1000 m tot 1500 m, NS Intercitystation op 1000 m tot 1500 m, snelwegafrit op 3000 m tot 4000 m en Tramhalte op 500 m tot 1000 m
- Bijdrage winkeliersvereniging
- Nee
- Welstandsklasse
- A1
NVM makelaar
Foto's