Wensinkstraat 16-b 7622 KS Borne
€ 1.250 /mnd
Omschrijving
ALGEMEEN
Commerciële ruimte gelegen aan de rand van het centrum van Borne per direct beschikbaar voor de verhuur. In de directe omgeving is ruim voldoende gratis parkeergelegenheid.
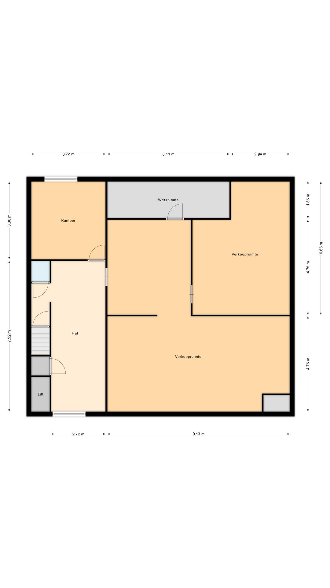
De commerciële ruimte heeft een totale vloeroppervlakte van ca. 246 m² verdeeld over de begane grond en eerste verdieping. De begane grond beschikt over een entree met aangrenzend een courante multifunctionele ruimte. Tevens beschikt de begane grond over opslagruimte welke middels een overheaddeur toegankelijk is. De eerste verdieping beschikt over diverse ruimtes.
Het object kent een basis afwerkingsniveau en is o.a. voorzien van een goederen lift, automatisch bedienbare overheaddeur, pantry, toilet en pantry.
Gelet op de mogelijke ontwikkeling in de toekomst is een korte huurperiode bespreekbaar.
BEREIKBAARHEID
De locatie aan de Wensinkweg kent een goede bereikbaarheid dankzij de directe aansluiting op de belangrijkste verbindingswegen binnen Borne. Daarnaast is er een goede openbaarvervoerverbinding in de nabije omgeving.
VLOEROPPERVLAKTE
De totale verhuurbare vloeroppervlakte van het gebouw bedraagt ca. 246 m² en is als volgt onderverdeeld:
Begane grond: ca. 123 m²
Eerste verdieping: ca. 123 m²
Het vloeroppervlak is gemeten door de verhurend makelaar op basis van een kopie-bouwtekening. De opgegeven metrage is derhalve indicatief. Er kunnen geen rechten aan worden ontleend, noch kan er sprake zijn van enige verrekening achteraf.
PARKEREN
Er is voldoende parkeergelegenheid aanwezig in de directe omgeving.
BESTEMMING
Volgens het bestemmingsplan “Algemene herziening Borne, Hertme, Zenderen“ heeft het onderhavige de bestemming “detailhandel“.
Voor het volledige bestemmingsplan kunt u terecht op: omgevingswet.overheid.nl
WIJZE VAN OPLEVERING
Het object wordt, in de huidige staat als zijnde casco, opgeleverd met o.a. de volgende voorzieningen:
• Meterkast;
• Liftinstallatie;
• Zonwering uitwendig;
• Vloerbekleding;
• Systeemplafonds met verlichting;
• Wandcontactdozen;
• Verwarimg middels CV-ketel en radiatoren;
• Toilet;
• Pantry;
• Overheaddeur;
HUURPRIJS
€ 1.250,- per maand, te vermeerderen met BTW.
HUURTERMIJN
De huurtermijn wordt aangegaan voor bepaalde tijd. Een eventuele verlenging vindt uitsluitend plaats in onderling overleg tussen partijen.
HUURINGANGSDATUM
Per direct beschikbaar.
HUURBETALING
Per maand, vooruit te betalen.
ZEKERHEIDSSTELLING
Bankgarantie of waarborgsom ter grootte van een bedrag gelijk aan drie maanden betalingsverplichting (inclusief eventuele servicekosten en BTW).
HUURPRIJSAANPASSING
Jaarlijks, voor het eerst één jaar na ingangsdatum huurovereenkomst, conform het prijsindexcijfer Alle Huishoudens (2015=100), gepubliceerd door het Centraal Bureau voor de Statistiek.
HUUROVEREENKOMST
Op basis van de standaard huurovereenkomst van verhuurder, die is gebaseerd op het Model ROZ (Raad voor Onroerende Zaken), model 2025.
BTW
Verhuurder wenst te opteren voor BTW-belaste huur en verhuur. Ingeval huurder de BTW niet kan verrekenen zal de huurprijs in overleg met huurder worden verhoogd ter compensatie van de gevolgen van het vervallen van de mogelijkheid om te opteren voor BTW-belaste verhuur.
VOORBEHOUD
Definitieve goedkeuring opdrachtgever.
De vermelde informatie is van algemene aard en is niet meer dan een uitnodiging om in onderhandeling te treden. Aan de inhoud van deze informatie kunnen geen rechten worden ontleend.
Commerciële ruimte gelegen aan de rand van het centrum van Borne per direct beschikbaar voor de verhuur. In de directe omgeving is ruim voldoende gratis parkeergelegenheid.
De commerciële ruimte heeft een totale vloeroppervlakte van ca. 246 m² verdeeld over de begane grond en eerste verdieping. De begane grond beschikt over een entree met aangrenzend een courante multifunctionele ruimte. Tevens beschikt de begane grond over opslagruimte welke middels een overheaddeur toegankelijk is. De eerste verdieping beschikt over diverse ruimtes.
Het object kent een basis afwerkingsniveau en is o.a. voorzien van een goederen lift, automatisch bedienbare overheaddeur, pantry, toilet en pantry.
Gelet op de mogelijke ontwikkeling in de toekomst is een korte huurperiode bespreekbaar.
BEREIKBAARHEID
De locatie aan de Wensinkweg kent een goede bereikbaarheid dankzij de directe aansluiting op de belangrijkste verbindingswegen binnen Borne. Daarnaast is er een goede openbaarvervoerverbinding in de nabije omgeving.
VLOEROPPERVLAKTE
De totale verhuurbare vloeroppervlakte van het gebouw bedraagt ca. 246 m² en is als volgt onderverdeeld:
Begane grond: ca. 123 m²
Eerste verdieping: ca. 123 m²
Het vloeroppervlak is gemeten door de verhurend makelaar op basis van een kopie-bouwtekening. De opgegeven metrage is derhalve indicatief. Er kunnen geen rechten aan worden ontleend, noch kan er sprake zijn van enige verrekening achteraf.
PARKEREN
Er is voldoende parkeergelegenheid aanwezig in de directe omgeving.
BESTEMMING
Volgens het bestemmingsplan “Algemene herziening Borne, Hertme, Zenderen“ heeft het onderhavige de bestemming “detailhandel“.
Voor het volledige bestemmingsplan kunt u terecht op: omgevingswet.overheid.nl
WIJZE VAN OPLEVERING
Het object wordt, in de huidige staat als zijnde casco, opgeleverd met o.a. de volgende voorzieningen:
• Meterkast;
• Liftinstallatie;
• Zonwering uitwendig;
• Vloerbekleding;
• Systeemplafonds met verlichting;
• Wandcontactdozen;
• Verwarimg middels CV-ketel en radiatoren;
• Toilet;
• Pantry;
• Overheaddeur;
HUURPRIJS
€ 1.250,- per maand, te vermeerderen met BTW.
HUURTERMIJN
De huurtermijn wordt aangegaan voor bepaalde tijd. Een eventuele verlenging vindt uitsluitend plaats in onderling overleg tussen partijen.
HUURINGANGSDATUM
Per direct beschikbaar.
HUURBETALING
Per maand, vooruit te betalen.
ZEKERHEIDSSTELLING
Bankgarantie of waarborgsom ter grootte van een bedrag gelijk aan drie maanden betalingsverplichting (inclusief eventuele servicekosten en BTW).
HUURPRIJSAANPASSING
Jaarlijks, voor het eerst één jaar na ingangsdatum huurovereenkomst, conform het prijsindexcijfer Alle Huishoudens (2015=100), gepubliceerd door het Centraal Bureau voor de Statistiek.
HUUROVEREENKOMST
Op basis van de standaard huurovereenkomst van verhuurder, die is gebaseerd op het Model ROZ (Raad voor Onroerende Zaken), model 2025.
BTW
Verhuurder wenst te opteren voor BTW-belaste huur en verhuur. Ingeval huurder de BTW niet kan verrekenen zal de huurprijs in overleg met huurder worden verhoogd ter compensatie van de gevolgen van het vervallen van de mogelijkheid om te opteren voor BTW-belaste verhuur.
VOORBEHOUD
Definitieve goedkeuring opdrachtgever.
De vermelde informatie is van algemene aard en is niet meer dan een uitnodiging om in onderhandeling te treden. Aan de inhoud van deze informatie kunnen geen rechten worden ontleend.
Kenmerken
Overdracht
- Huurprijs
- € 1.250 per maand
- Aangeboden sinds
-
- Status
- Beschikbaar
- Aanvaarding
- Per direct beschikbaar
Bouw
- Hoofdfunctie
- Winkel
- Mogelijke functie(s)
- Kantoorruimte
- Soort bouw
- Bestaande bouw
- Bouwjaar
- 1969
Oppervlakten
- Oppervlakte
- 246 m²
- Verkoopvloeroppervlakte
- 246 m²
- Breedte gevel
- 12 m
Indeling
- Aantal bouwlagen
- 2 bouwlagen
Energie
- Energielabel
- A
Omgeving
- Ligging
- In woonwijk
- Bereikbaarheid
- Bushalte op minder dan 500 m, NS Intercitystation op 1000 m tot 1500 m en snelwegafrit op 1500 m tot 2000 m
- Bijdrage winkeliersvereniging
- Nee
- Welstandsklasse
- C1
Foto's
Plattegrond
Begane Grond
1e Verdieping