Kerkstraat 2-4 1404 HH Bussum
- Verhuurd onder voorbehoud
€ 2.000 /mnd
Omschrijving
Bussum heeft een verzorgingsgebied van circa 60.000 inwoners. De winkels, cafés, restaurants en de markt in het centrum zijn al jarenlang een grote aantrekkingskracht voor Bussum en omgeving. Bussum is zeer goed te bereiken met zowel openbaar vervoer als met de auto.
Object
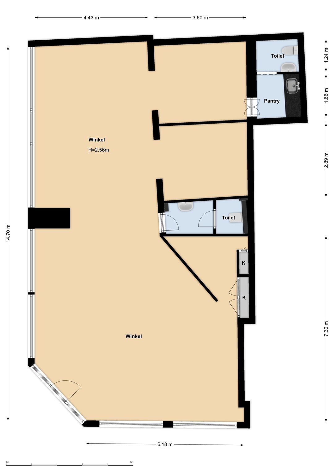
De winkel/kantoorruimte heeft een royale etalage van circa 22 meter, is gelegen aan de Kerkstraat op één van de drukste hoofdroutes
naar het kernwinkelcentrum van Bussum, te midden van diverse lokale speciaalzaken met aan de overkant de Scapino. De winkel is goed
gepositioneerd nabij een zebrapad, de rotonde en heeft nabij de parkeergelegenheden bij de Scapino en de parkeergarage Nieuwe Brink.
Vloeroppervlak
Van het complex is een NEN 2580 meetrapport beschikbaar.
De winkelruimte omvat circa 117 m² VVO.
Opleveringsniveau
Het gehuurde wordt casco verhuurd en heeft de navolgende voorzieningen:
-Toilet (2x);
-Pantry;
-Airco/verwarmingsunit (2x);
-Gestuukte plafond met inbouwspots;
-Laminaat vloerafwerking;
-Winkelpui.
Parkeergelegenheid
Naast de winkelruimte ligt er een parkeerterrein met betaalt parkeren en tegenover (naast Scapino) is er een overdekte parkeergarage.
Aanvangshuurprijs
De aanvangshuurprijs bedraagt € 2.000,- per maand, exclusief BTW.
Huurbetaling
De huurbetalingsverplichting dient per maand vooruit betaald te worden door middel van een automatische incasso.
Servicekosten
Huurder dient de meters betreffende gas, water en elektra op haar naam te doen stellen en het verbruik rechtstreeks te voldoen aan de
desbetreffende openbare nutsbedrijven.
Huurtermijn
5 jaar met 5 optiejaren, waarbij een opzegtermijn wordt gehanteerd van 12 maanden. Andere huurtermijnen zijn bespreekbaar.
Aanvaarding
In overleg.
Zekerheidsstelling
Bij ondertekening van de huurovereenkomst wordt een bankgarantie of waarborgsom verlangd ter grootte van drie maanden huurbetalingsverplichting.
Huurprijsindexering
Jaarlijks, voor het eerst één jaar na de huuringangsdatum, wordt de laatst geldende huurprijs verhoogd op basis van het maandprijsindexcijfer volgens de consumentenprijsindex (CPI) reeks alle huishoudens (2015 = 100), gepubliceerd door het Centraal Bureau
voor de Statistiek (CBS). De huurprijs zal géén daling ondergaan.
Huurovereenkomst
De op te stellen huurovereenkomst is conform de overeenkomst die door de Raad voor Onroerende Zaken in 2025 is vastgesteld en zoals gehanteerd door de Nederlandse Vereniging van Makelaars (NVM) met de bijbehorende algemene bepalingen.
Bestemming
Het vigerende bestemmingsplan van de Gemeente Gooise Meren geeft aan dat de winkelruimte uitermate geschikt is voor het gebruik voor:
•detailhandel;
•dienstverlening;
Huurder dient zelf zijn exploitatie te toetsen aan het vigerende bestemmingsplan.
Gunning
De verhuurder behoudt zich het recht van gunning voor.
Object
De winkel/kantoorruimte heeft een royale etalage van circa 22 meter, is gelegen aan de Kerkstraat op één van de drukste hoofdroutes
naar het kernwinkelcentrum van Bussum, te midden van diverse lokale speciaalzaken met aan de overkant de Scapino. De winkel is goed
gepositioneerd nabij een zebrapad, de rotonde en heeft nabij de parkeergelegenheden bij de Scapino en de parkeergarage Nieuwe Brink.
Vloeroppervlak
Van het complex is een NEN 2580 meetrapport beschikbaar.
De winkelruimte omvat circa 117 m² VVO.
Opleveringsniveau
Het gehuurde wordt casco verhuurd en heeft de navolgende voorzieningen:
-Toilet (2x);
-Pantry;
-Airco/verwarmingsunit (2x);
-Gestuukte plafond met inbouwspots;
-Laminaat vloerafwerking;
-Winkelpui.
Parkeergelegenheid
Naast de winkelruimte ligt er een parkeerterrein met betaalt parkeren en tegenover (naast Scapino) is er een overdekte parkeergarage.
Aanvangshuurprijs
De aanvangshuurprijs bedraagt € 2.000,- per maand, exclusief BTW.
Huurbetaling
De huurbetalingsverplichting dient per maand vooruit betaald te worden door middel van een automatische incasso.
Servicekosten
Huurder dient de meters betreffende gas, water en elektra op haar naam te doen stellen en het verbruik rechtstreeks te voldoen aan de
desbetreffende openbare nutsbedrijven.
Huurtermijn
5 jaar met 5 optiejaren, waarbij een opzegtermijn wordt gehanteerd van 12 maanden. Andere huurtermijnen zijn bespreekbaar.
Aanvaarding
In overleg.
Zekerheidsstelling
Bij ondertekening van de huurovereenkomst wordt een bankgarantie of waarborgsom verlangd ter grootte van drie maanden huurbetalingsverplichting.
Huurprijsindexering
Jaarlijks, voor het eerst één jaar na de huuringangsdatum, wordt de laatst geldende huurprijs verhoogd op basis van het maandprijsindexcijfer volgens de consumentenprijsindex (CPI) reeks alle huishoudens (2015 = 100), gepubliceerd door het Centraal Bureau
voor de Statistiek (CBS). De huurprijs zal géén daling ondergaan.
Huurovereenkomst
De op te stellen huurovereenkomst is conform de overeenkomst die door de Raad voor Onroerende Zaken in 2025 is vastgesteld en zoals gehanteerd door de Nederlandse Vereniging van Makelaars (NVM) met de bijbehorende algemene bepalingen.
Bestemming
Het vigerende bestemmingsplan van de Gemeente Gooise Meren geeft aan dat de winkelruimte uitermate geschikt is voor het gebruik voor:
•detailhandel;
•dienstverlening;
Huurder dient zelf zijn exploitatie te toetsen aan het vigerende bestemmingsplan.
Gunning
De verhuurder behoudt zich het recht van gunning voor.
Kenmerken
Overdracht
- Huurprijs
- € 2.000 per maand
- Aangeboden sinds
-
- Status
- Verhuurd onder voorbehoud
- Aanvaarding
- In overleg
Bouw
- Hoofdfunctie
- Winkel
- Soort bouw
- Bestaande bouw
- Bouwperiode
- 1906-1930
Oppervlakten
- Oppervlakte
- 117 m²
- Verkoopvloeroppervlakte
- 117 m²
- Breedte gevel
- 22 m
- Perceel
- 117 m²
Indeling
- Aantal bouwlagen
- 1 bouwlaag
Energie
- Energielabel
- A+++
Omgeving
- Ligging
- Stadscentrum/dorpskern
- Bijdrage winkeliersvereniging
- Nee
- Welstandsklasse
- B1
NVM makelaar
Foto's