Willem de Zwijgerlaan 50 2582 ER Den Haag
€ 2.495 /mnd
Omschrijving
Algemeen:
het betreft hier een winkelruimte op de begane grond met een ruime achterplaats. Verhuurder heeft een sterke voorkeur voor reguliere detailhandel of een dienstverlenende functie. Horeca is NIET toegestaan.
Locatie:
het object is gelegen in het Statenkwartier aan de Willem de Zwijgerlaan, nabij de hoek met de Frederik Hendriklaan, welke winkelstraat enkele jaren geleden nog het predicaat ‘beste winkelstraat van Nederland’ kreeg. De aangeboden winkelruimte ligt direct tegenover een vestiging van Albert Heijn en Paagman. De Paagman locatie wordt wel gezien als het episch centrum van de Frederik Hendriklaan, in de volksmond beter bekend als ‘De Fred’.
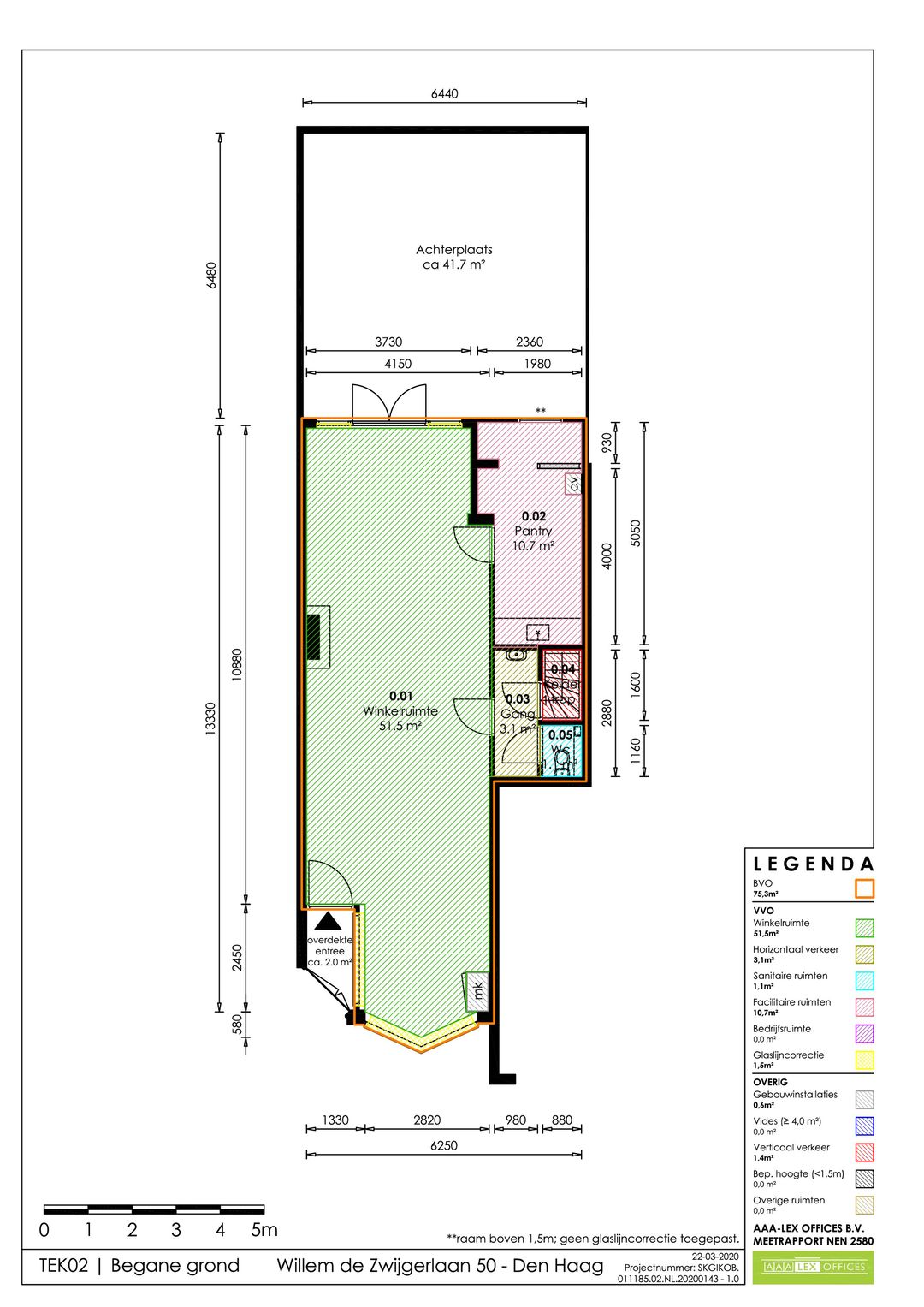
Metrage VVO:
in opdracht van de eigenaar is er een meetstaat NEN 2580 opgemaakt. Het Verhuurbaar Vloer Oppervlak omvat 67,90 m2 VVO winkelruimte c.a. op de begane grond.
Kelder:
de aanwezige kleine kelder (9,90 m2) behoort niet tot het gehuurde, doch huurder is gerechtigd deze kelder gedurende de duur van de huurovereenkomst voor eigen rekening en risico ‘om niet’ te gebruiken.
Metrage achterplaats:
41,70 m2.
Energielabel:
C (geldig tot en met 17 maart 2031).
Bestemming:
het object valt binnen de bepalingen van het bestemmingsplan Statenkwartier. Binnen dit plan staat het object aangeduid als “gemengd – 1” (artikel 6.1), waarbij de navolgende bestemmingen worden genoemd:
a. detailhandel;
b. dienstverlening;
c. horeca “licht” (GEEN horeca door verhuurder toegestaan).
Voor inzage gehele bestemmingsplan:
dit object beschikt niet over parkeergelegenheid op eigen terrein. In de directe omgeving zijn in voldoende mate betaalde parkeermogelijkheden aanwezig.
Opleveringsniveau:
in de huidige staat ‘as is, where is’.
Huurvoorwaarden:
huurprijs:
€ 2.495, -- per maand.
B.T.W.:
huurder en verhuurder zullen niet opteren voor belaste huur/verhuur.
servicekosten:
er is sprake van eigen nutsvoorzieningen. Derhalve dient huurder zelf zorg te dragen voor aansluiting op – en rechtstreekse betaling van alle nutsvoorzieningen.
huurprijsbetaling:
per maand vooruit middels een automatische betalingsopdracht afgegeven door huurder.
huurtermijn:
5 jaar + verlengingsperioden van telkenmale 5 jaar (opzegtermijn 12 maanden voor het einde van elke vaste periode van 5 jaar).
huurprijsaanpassing:
jaarlijks, voor het eerst 12 maanden na huuringangsdatum, zal de huurprijs worden aangepast aan de stijging van het Consumenten Prijs Indexcijfer (CPI), reeks Alle Huishoudens (2015=100), zoals dit wordt gepubliceerd door het CBS.
waarborgsom:
bij ondertekening van de huurovereenkomst stelt huurder in handen van verhuurder een waarborgsom ter grootte van drie maanden huurverplichting. Over een waarborgsom wordt door verhuurder geen rente vergoedt.
N.B. afhankelijk van de gegoedheid huurder kan verhuurder ten aanzien van de zekerheidstelling aanvullende voorwaarden stellen.
huuringangsdatum:
zo spoedig mogelijk na wilsovereenstemming.
huurovereenkomst:
indien partijen tot overeenstemming komen zullen de hoofd huurvoorwaarden worden vervat in een standaard ROZ huurovereenkomst ex artikel 7:290 BW, versie 2012.
voorbehoud verhuurder:
voor het aangaan van een huurovereenkomst maakt verhuurder het nadrukkelijk voorbehoud van het verkrijgen van een verhuurder conveniërend krediet informatierapport van het bedrijf van huurder.
sleuteloverdracht:
indien huurder de huurovereenkomst heeft getekend, de waarborgsom en de eerste huurbetaling heeft voldaan zal de sleutel aan huurder worden overgedragen.
het betreft hier een winkelruimte op de begane grond met een ruime achterplaats. Verhuurder heeft een sterke voorkeur voor reguliere detailhandel of een dienstverlenende functie. Horeca is NIET toegestaan.
Locatie:
het object is gelegen in het Statenkwartier aan de Willem de Zwijgerlaan, nabij de hoek met de Frederik Hendriklaan, welke winkelstraat enkele jaren geleden nog het predicaat ‘beste winkelstraat van Nederland’ kreeg. De aangeboden winkelruimte ligt direct tegenover een vestiging van Albert Heijn en Paagman. De Paagman locatie wordt wel gezien als het episch centrum van de Frederik Hendriklaan, in de volksmond beter bekend als ‘De Fred’.
Metrage VVO:
in opdracht van de eigenaar is er een meetstaat NEN 2580 opgemaakt. Het Verhuurbaar Vloer Oppervlak omvat 67,90 m2 VVO winkelruimte c.a. op de begane grond.
Kelder:
de aanwezige kleine kelder (9,90 m2) behoort niet tot het gehuurde, doch huurder is gerechtigd deze kelder gedurende de duur van de huurovereenkomst voor eigen rekening en risico ‘om niet’ te gebruiken.
Metrage achterplaats:
41,70 m2.
Energielabel:
C (geldig tot en met 17 maart 2031).
Bestemming:
het object valt binnen de bepalingen van het bestemmingsplan Statenkwartier. Binnen dit plan staat het object aangeduid als “gemengd – 1” (artikel 6.1), waarbij de navolgende bestemmingen worden genoemd:
a. detailhandel;
b. dienstverlening;
c. horeca “licht” (GEEN horeca door verhuurder toegestaan).
Voor inzage gehele bestemmingsplan:
dit object beschikt niet over parkeergelegenheid op eigen terrein. In de directe omgeving zijn in voldoende mate betaalde parkeermogelijkheden aanwezig.
Opleveringsniveau:
in de huidige staat ‘as is, where is’.
Huurvoorwaarden:
huurprijs:
€ 2.495, -- per maand.
B.T.W.:
huurder en verhuurder zullen niet opteren voor belaste huur/verhuur.
servicekosten:
er is sprake van eigen nutsvoorzieningen. Derhalve dient huurder zelf zorg te dragen voor aansluiting op – en rechtstreekse betaling van alle nutsvoorzieningen.
huurprijsbetaling:
per maand vooruit middels een automatische betalingsopdracht afgegeven door huurder.
huurtermijn:
5 jaar + verlengingsperioden van telkenmale 5 jaar (opzegtermijn 12 maanden voor het einde van elke vaste periode van 5 jaar).
huurprijsaanpassing:
jaarlijks, voor het eerst 12 maanden na huuringangsdatum, zal de huurprijs worden aangepast aan de stijging van het Consumenten Prijs Indexcijfer (CPI), reeks Alle Huishoudens (2015=100), zoals dit wordt gepubliceerd door het CBS.
waarborgsom:
bij ondertekening van de huurovereenkomst stelt huurder in handen van verhuurder een waarborgsom ter grootte van drie maanden huurverplichting. Over een waarborgsom wordt door verhuurder geen rente vergoedt.
N.B. afhankelijk van de gegoedheid huurder kan verhuurder ten aanzien van de zekerheidstelling aanvullende voorwaarden stellen.
huuringangsdatum:
zo spoedig mogelijk na wilsovereenstemming.
huurovereenkomst:
indien partijen tot overeenstemming komen zullen de hoofd huurvoorwaarden worden vervat in een standaard ROZ huurovereenkomst ex artikel 7:290 BW, versie 2012.
voorbehoud verhuurder:
voor het aangaan van een huurovereenkomst maakt verhuurder het nadrukkelijk voorbehoud van het verkrijgen van een verhuurder conveniërend krediet informatierapport van het bedrijf van huurder.
sleuteloverdracht:
indien huurder de huurovereenkomst heeft getekend, de waarborgsom en de eerste huurbetaling heeft voldaan zal de sleutel aan huurder worden overgedragen.
Kenmerken
Overdracht
- Huurprijs
- € 2.495 per maand
- Aangeboden sinds
-
- Status
- Beschikbaar
- Aanvaarding
- Per direct beschikbaar
Bouw
- Hoofdfunctie
- Winkel met showroom
- Soort bouw
- Bestaande bouw
- Bouwjaar
- 1906
Oppervlakten
- Oppervlakte
- 68 m²
- Verkoopvloeroppervlakte
- 68 m²
- Breedte gevel
- 4,2 m
- Perceel
- 68 m²
Indeling
- Aantal bouwlagen
- 1 bouwlaag
Energie
- Energielabel
- C
Omgeving
- Ligging
- Stadscentrum/dorpskern, winkelcentrum en in woonwijk
- Bijdrage winkeliersvereniging
- Nee
- Welstandsklasse
- B1
Foto's
Plattegrond
Begane Grond
Kelder