Nauwstraat 10 9101 LN Dokkum
- Nieuw
€ 397.500 k.k.

Omschrijving
Uniek wonen én werken in het hart van de historische binnenstad!
In een van de charmantste straten van de historische binnenstad ligt dit karakteristieke en grotendeels verbouwde woon-winkelpand, boordevol mogelijkheden en sfeer. Of je nu op zoek bent naar een inspirerende plek om te wonen en te werken te combineren, of het pand volledig als woonhuis wilt gebruiken, het kan allemaal dankzij het flexibele bestemmingsplan dat volledig wonen toestaat.
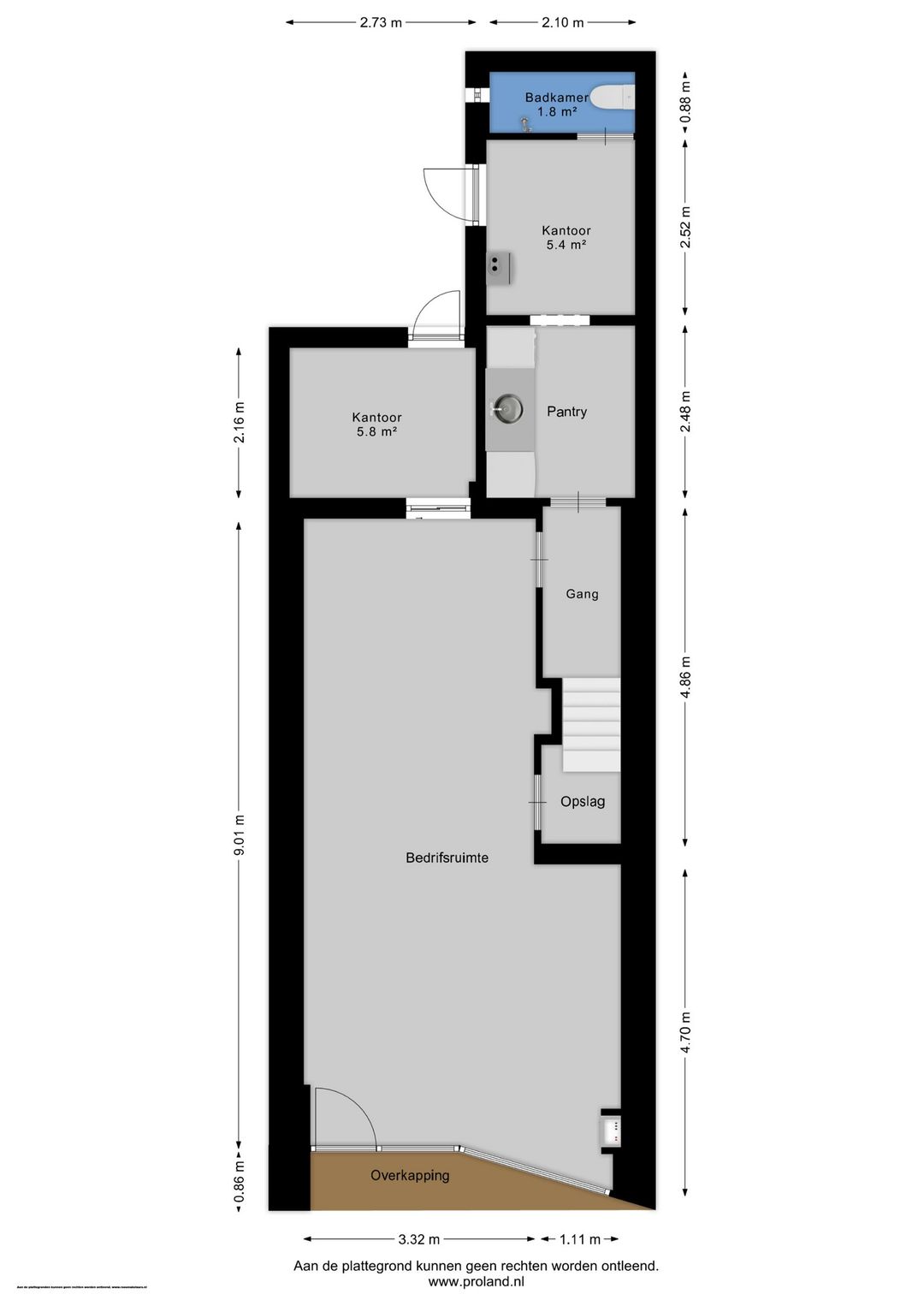
Bij aankomst valt direct de authentieke uitstraling op, passend bij de omgeving die valt onder beschermd stadsgezicht. Het pand beschikt over een eigen entree naar de bovenwoning én een multifunctionele ruimte op de begane grond van circa 30 m². Deze ruimte is perfect in te richten als winkel, kantoor, atelier of praktijkruimte en beschikt over een aangrenzend kantoortje met tuindeur naar de binnenplaats, een toiletruimte, keuken en bijkeuken met toegang tot de patio en de recent vernieuwde cv-installatie (Intergas, 2024).
Via de eigen opgang betreed je de bovenwoning. Op de eerste verdieping kom je binnen op een ruime overloop met trapkast, waarna je wordt verrast door een lichte en sfeervolle woonkamer met laminaatvloer en verhoogd zitgedeelte. De moderne badkamer is voorzien van een douche en toilet. De keuken beschikt over diverse inbouwapparatuur en biedt direct toegang tot het riante en zonnige dakterras van circa 23 m². Een heerlijke plek om in alle rust te genieten midden in de stad. Daarnaast bevindt zich op deze verdieping nog een halletje met doorgang naar een comfortabele slaapkamer.
De tweede verdieping biedt extra ruimte en karakter: een lichte overloop leidt naar twee charmante slaapkamers, waarbij de fraaie balkenconstructie zichtbaar is gebleven en zorgt voor een warme, authentieke sfeer.
Op korte loopafstand vind je een ruim parkeerterrein met een blauwe zone en ook gratis parkeergelegenheid in de buurt. Alle stadse voorzieningen zoals winkels, horeca, openbaar vervoer en culturele hotspots bevinden zich letterlijk om de hoek.
Ben je op zoek naar een pand met karakter, flexibiliteit en een fantastische ligging in de historische binnenstad? Dan is dit woon-winkelpand absoluut een bezichtiging waard!
Als de nieuwe eigenaren ledverlichting toepassen krijgt de winkel energielabel A.
In een van de charmantste straten van de historische binnenstad ligt dit karakteristieke en grotendeels verbouwde woon-winkelpand, boordevol mogelijkheden en sfeer. Of je nu op zoek bent naar een inspirerende plek om te wonen en te werken te combineren, of het pand volledig als woonhuis wilt gebruiken, het kan allemaal dankzij het flexibele bestemmingsplan dat volledig wonen toestaat.
Bij aankomst valt direct de authentieke uitstraling op, passend bij de omgeving die valt onder beschermd stadsgezicht. Het pand beschikt over een eigen entree naar de bovenwoning én een multifunctionele ruimte op de begane grond van circa 30 m². Deze ruimte is perfect in te richten als winkel, kantoor, atelier of praktijkruimte en beschikt over een aangrenzend kantoortje met tuindeur naar de binnenplaats, een toiletruimte, keuken en bijkeuken met toegang tot de patio en de recent vernieuwde cv-installatie (Intergas, 2024).
Via de eigen opgang betreed je de bovenwoning. Op de eerste verdieping kom je binnen op een ruime overloop met trapkast, waarna je wordt verrast door een lichte en sfeervolle woonkamer met laminaatvloer en verhoogd zitgedeelte. De moderne badkamer is voorzien van een douche en toilet. De keuken beschikt over diverse inbouwapparatuur en biedt direct toegang tot het riante en zonnige dakterras van circa 23 m². Een heerlijke plek om in alle rust te genieten midden in de stad. Daarnaast bevindt zich op deze verdieping nog een halletje met doorgang naar een comfortabele slaapkamer.
De tweede verdieping biedt extra ruimte en karakter: een lichte overloop leidt naar twee charmante slaapkamers, waarbij de fraaie balkenconstructie zichtbaar is gebleven en zorgt voor een warme, authentieke sfeer.
Op korte loopafstand vind je een ruim parkeerterrein met een blauwe zone en ook gratis parkeergelegenheid in de buurt. Alle stadse voorzieningen zoals winkels, horeca, openbaar vervoer en culturele hotspots bevinden zich letterlijk om de hoek.
Ben je op zoek naar een pand met karakter, flexibiliteit en een fantastische ligging in de historische binnenstad? Dan is dit woon-winkelpand absoluut een bezichtiging waard!
Als de nieuwe eigenaren ledverlichting toepassen krijgt de winkel energielabel A.
Kenmerken
Overdracht
- Vraagprijs
- € 397.500 kosten koper
- Aangeboden sinds
-
- Status
- Beschikbaar
- Aanvaarding
- In overleg
Bouw
- Hoofdfunctie
- Winkel met showroom
- Soort bouw
- Bestaande bouw
- Bouwjaar
- 1920
Oppervlakten
- Oppervlakte
- 29 m²
- Verkoopvloeroppervlakte
- 29 m²
- Perceel
- 87 m²
Indeling
- Aantal bouwlagen
- 1 bouwlaag
- Woonruimte
- Aanwezig (inpandig, 0 m²)
Energie
- Energielabel
- B
Omgeving
- Ligging
- Stadscentrum/dorpskern
- Bijdrage winkeliersvereniging
- Nee
- Welstandsklasse
- B1
NVM makelaar
Foto's




































Plattegrond
Begane grond

Eerste verdieping

Tweede verdieping
