Willem en Marialaan 62 2805 AS Gouda
- Nieuw
€ 1.500 /mnd

Omschrijving
Object: In het goed gebrancheerde wijkwinkelcentrum “Willem en Marialaan” gelegen winkelruimte.
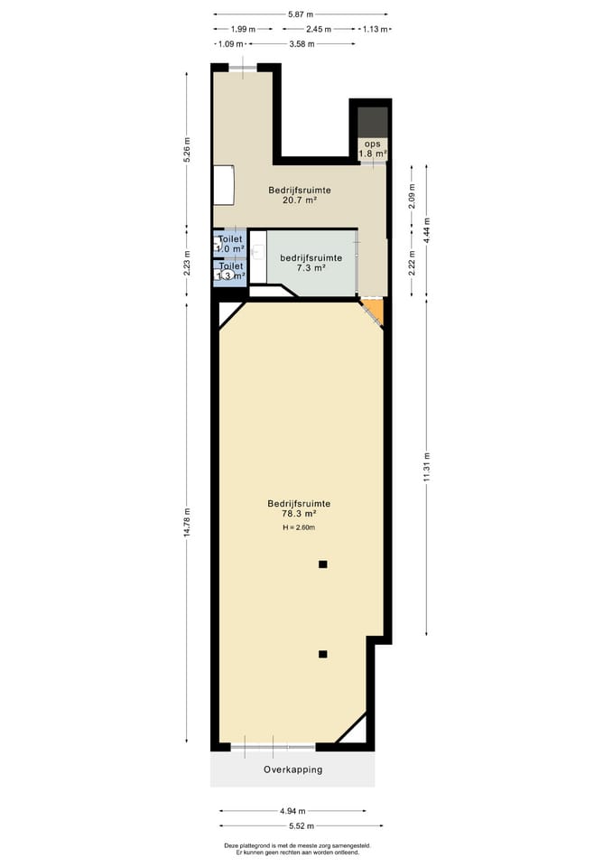
Vloeroppervlakte:
circa 115 m².
Parkeervoorziening: parkeren is mogelijk in de parkeerhavens voor de deur en in de directe omgeving (onbetaald).
Locatie: in de goed verzorgde winkelstraat “Willem en Marialaan” voor de dagelijkse boodschappen. De winkelstraat bestaat uit diverse speciaalzaken, waaronder: Frisvers Groentespecialist, Frisvers Shop (delicatessen), bloemsierkunst Sandor Verkerk, Drankenservice Gouda, banketbakkerij De Vlaam, Streefline Afslankstudio en Hao Hao Chinees-/Indisch restaurant.
Opleveringsniveau: de winkel wordt in casco staat verhuurd. De volgende voorzieningen zijn aanwezig:
toilet;
airco unit;
epoxy gietvloer;
pantry;
systeemplafond met verlichtingsarmaturen;
brandslang;
achterom.
Aanvaarding: in overleg.
Huurprijs: € 1.500,- per maand (Er is geen BTW van toepassing)
Huurprijsaanpassing: jaarlijks zal de huurprijs worden herzien op basis van de wijziging van het maandprijsindexcijfer volgens de consumentenprijsindex (CPI) Alle Huishoudens (2015=100), gepubliceerd door het Centraal Bureau voor de Statistiek (CBS), mits dit geen verlaging tot gevolg heeft.
Huurbetaling: de betaling van de huurprijs geschiedt in termijnen 1 maand bij vooruitbetaling.
Huurtermijn: de huurovereenkomst wordt aangegaan voor nader vast te stellen termijnen.
Zekerheid: huurder dient binnen 2 weken na ondertekening van de huurovereenkomst, maar uiterlijk een dag voor de datum van ingebruikname, aan verhuurder een bankgarantie c.q. waarborgsom te voldoen voor een betalingstermijn van 3 maanden, inclusief servicevoorschot en omzetbelasting.
BTW-status: er is geen BTW van toepassing,
Huurovereenkomst: huurovereenkomst conform het standaard model van de Raad voor Onroerende Zaken (ROZ), zoals gehanteerd door de Nederlandse Vereniging voor Makelaars (NVM).
Voorbehoud: elke transactie behoeft de nadrukkelijke goedkeuring van eigenaar.
Algemeen: al het bovenstaande betreft informatie omtrent de verhuur van WILLEM EN MARIALAAN 62 te GOUDA. De informatie is met zorg samengesteld, maar voor de juistheid ervan kan door Van Herk Bedrijfsmakelaars geen aansprakelijkheid worden aanvaard noch aan de vermelde gegevens enig recht worden ontleend. Nadrukkelijk is vermeld dat deze informatieverstrekking niet als een aanbieding of offerte mag worden beschouwd.
Vloeroppervlakte:
circa 115 m².
Parkeervoorziening: parkeren is mogelijk in de parkeerhavens voor de deur en in de directe omgeving (onbetaald).
Locatie: in de goed verzorgde winkelstraat “Willem en Marialaan” voor de dagelijkse boodschappen. De winkelstraat bestaat uit diverse speciaalzaken, waaronder: Frisvers Groentespecialist, Frisvers Shop (delicatessen), bloemsierkunst Sandor Verkerk, Drankenservice Gouda, banketbakkerij De Vlaam, Streefline Afslankstudio en Hao Hao Chinees-/Indisch restaurant.
Opleveringsniveau: de winkel wordt in casco staat verhuurd. De volgende voorzieningen zijn aanwezig:
toilet;
airco unit;
epoxy gietvloer;
pantry;
systeemplafond met verlichtingsarmaturen;
brandslang;
achterom.
Aanvaarding: in overleg.
Huurprijs: € 1.500,- per maand (Er is geen BTW van toepassing)
Huurprijsaanpassing: jaarlijks zal de huurprijs worden herzien op basis van de wijziging van het maandprijsindexcijfer volgens de consumentenprijsindex (CPI) Alle Huishoudens (2015=100), gepubliceerd door het Centraal Bureau voor de Statistiek (CBS), mits dit geen verlaging tot gevolg heeft.
Huurbetaling: de betaling van de huurprijs geschiedt in termijnen 1 maand bij vooruitbetaling.
Huurtermijn: de huurovereenkomst wordt aangegaan voor nader vast te stellen termijnen.
Zekerheid: huurder dient binnen 2 weken na ondertekening van de huurovereenkomst, maar uiterlijk een dag voor de datum van ingebruikname, aan verhuurder een bankgarantie c.q. waarborgsom te voldoen voor een betalingstermijn van 3 maanden, inclusief servicevoorschot en omzetbelasting.
BTW-status: er is geen BTW van toepassing,
Huurovereenkomst: huurovereenkomst conform het standaard model van de Raad voor Onroerende Zaken (ROZ), zoals gehanteerd door de Nederlandse Vereniging voor Makelaars (NVM).
Voorbehoud: elke transactie behoeft de nadrukkelijke goedkeuring van eigenaar.
Algemeen: al het bovenstaande betreft informatie omtrent de verhuur van WILLEM EN MARIALAAN 62 te GOUDA. De informatie is met zorg samengesteld, maar voor de juistheid ervan kan door Van Herk Bedrijfsmakelaars geen aansprakelijkheid worden aanvaard noch aan de vermelde gegevens enig recht worden ontleend. Nadrukkelijk is vermeld dat deze informatieverstrekking niet als een aanbieding of offerte mag worden beschouwd.
Kenmerken
Overdracht
- Huurprijs
- € 1.500 per maand
- Aangeboden sinds
-
- Status
- Beschikbaar
- Aanvaarding
- In overleg
Bouw
- Hoofdfunctie
- Winkel met showroom
- Soort bouw
- Bestaande bouw
- Bouwjaar
- 1954
Oppervlakten
- Oppervlakte
- 115 m²
- Verkoopvloeroppervlakte
- 115 m²
- Breedte gevel
- 5 m
Indeling
- Aantal bouwlagen
- 1 bouwlaag
Energie
- Energielabel
- Niet beschikbaar
Omgeving
- Ligging
- Winkelcentrum
- Bereikbaarheid
- Bushalte op minder dan 500 m, NS Intercitystation op minder dan 500 m en snelwegafrit op 3000 m tot 4000 m
- Lokale voorzieningen
- Bank op 1000 m tot 1500 m, ontspanning op 1000 m tot 1500 m, restaurant op minder dan 500 m en winkel op minder dan 500 m
- Bijdrage winkeliersvereniging
- Nee
- Welstandsklasse
- A1
Foto's











