Spoorsingel 1-A 6412 AA Heerlen
- Nieuw
€ 795.000 k.k.
Omschrijving
Te koop: Spoorsingel 1a – Unieke kans in hartje Heerlen - Ultieme zichtlocatie
Op een markante locatie aan de Spoorsingel, Naast het Maankwartier direct tegenover het voetgangersgebied van de binnenstad en op een steenworp afstand van station Heerlen, staat dit bijzondere en herkenbare gebouw.
Met zijn golvende glazen voorgevel en opvallende architectuur is Spoorsingel 1a een echte blikvanger aan de nieuwe Cityring van Heerlen met ruim 13.000 passerende auto’s per dag !
Dit multifunctionele gebouw biedt circa 1.155 m² vloeroppervlak, verdeeld over vier bouwlagen, en combineert zichtbaarheid, bereikbaarheid en flexibiliteit – een ideale mix voor ondernemers, investeerders en ontwikkelaars die op zoek zijn naar een representatieve vestiging of herontwikkelingskans in het centrum van de stad.
SOUTERAIN
Circa 210 m² opslagruimte, toegankelijk via het trappenhuis vanuit de ontvangsthal en tevens via het noodtrappenhuis.
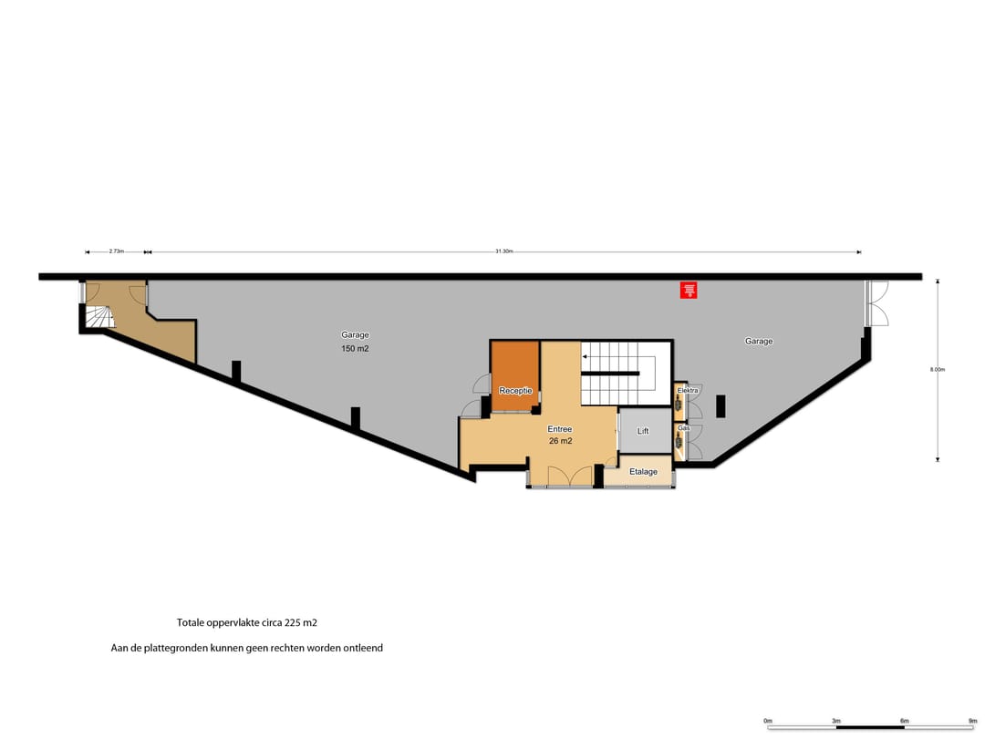
BEGANE GROND
Circa 225 m² commerciële ruimte, bestaande uit een entree met receptiebalie, een separate etalage en een ruime, multifunctioneel in te richten garage/magazijn.
EERSTE VERDIEPING
Circa 360 m² commerciële ruimte, bereikbaar via de trapopgang in de ontvangsthal.
De verdieping omvat een open werkruimte/showroom van circa 280 m² met receptiebalie, alsmede twee kantoorruimtes van respectievelijk 18 m² en 20 m².
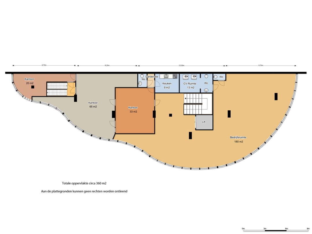
TWEEDE VERDIEPING
Circa 360 m² commerciële ruimte, grotendeels ingericht als open werkruimte/showroom (ca. 180 m²) met daarnaast drie separate kantoren van respectievelijk 65 m², 33 m² en 20 m².
Verder beschikt deze verdieping over drie toiletten, garderobes, een kitchenette en een technische ruimte met de Cv-installatie.
LIGGING EN BEREIKBAARHEID
Uitstekend bereikbaar – midden in het centrum van Heerlen
Het pand is gelegen direct naast het Maankwartier, op een toplocatie met uitstekende bereikbaarheid zowel per auto als openbaar vervoer.
Het station Heerlen bevindt zich op nog geen 200 meter loopafstand, en de voetgangerszone van de binnenstad begint al op circa 100 meter afstand.
PARKEREN
Rondom het gebouw is ruime parkeergelegenheid beschikbaar en bovendien beschikt het pand zelf over 10 overdekte eigen parkeerplaatsen.
BESTEMMINGSPLAN
Het object valt binnen het vigerende bestemmingsplan ‘Cityplan Heerlen’, vastgesteld op 15 december 2021.
Volgens de planvoorschriften heeft het perceel de bestemming ‘Gemengd’, met als functieaanduiding ‘specifieke vorm van kantoor-1’, ‘parkeergarage’ en mogelijkheden voor wonen/werken.
Deze gemengde bestemming maakt een combinatie van kantoor-, commerciële- en woonfuncties mogelijk, mits passend binnen de kaders van het bestemmingsplan.
Voor nadere informatie over de exacte planologische mogelijkheden verwijzen wij naar het Omgevingsloket.
Koper of huurder dient zelf bij de gemeente Heerlen te verifiëren of de voorgenomen bedrijfsactiviteiten en/of woonfuncties binnen het vigerende bestemmingsplan passen.
Momenteel vinden er gesprekken met de gemeente plaats en zijn er ontwerptekeningen voor een herontwikkeling naar wonen met minimaal 13 wooneenheden.
OPLEVERINGSNIVEAU
Het object zal worden verkocht en geleverd ‘as-is, where is’, dat wil zeggen in de staat ten tijde van de levering met alle aan het object verbonden rechten en plichten, alsmede eventuele zichtbare en onzichtbare gebreken en zonder garantie van enig soort, waaronder die met betrekking tot technische, bouwkundige, juridische, fiscale, milieukundige, huur- en commerciële aspecten van het verkochte.
HUURCONDITIES
Huurprijs: € 6.230,- per maand excl. BTW
Huurtermijn: 5 jaar
Aanvaarding: per direct.
Opzegtermijn: 3 maanden
Zekerheidstelling: Waarborgsom: ter grootte van 3 maanden huur inclusief BTW.
Huurindexering: Jaarlijks overeenkomstig het maand prijsindexcijfer volgens het consumentenprijsindexcijfer (CPI) reeks CPI alle huishoudens (2006=100) gepubliceerd door het Centraal Bureau voor de Statistiek (CBS). De huurprijs zal nimmer minder bedragen dan de huurprijs van het voorafgaande jaar. Indexatie voor het eerst 12 maanden na huur ingangsdatum en zo vervolgens jaarlijks.
BTW: Nee, is niet van toepassing.
KOOPCONDITIES
Koopprijs: € 795.000,- K.K.
Aanvaarding: in overleg.
BTW: Nee, is niet van toepassing.
Zekerheidstelling: Waarborgsom of bankgarantie van 10% van de koopsom. De koper dient deze 4 weken ná het vervallen van de ontbindende voorwaarden bij de desbetreffende notaris te deponeren.
Een combinatie van koop en inruil behoort tot de mogelijkheden, mits passend bij de waarde en aard van het aangeboden object.
GOEDEKEURING
Het bovenstaande is onder finaal voorbehoud van de eigenaar.
Disclaimer: Ondanks dat deze publicatie met de grootst mogelijke zorgvuldigheid is samengesteld is de Online Bedrijfsmakelaar BV niet aansprakelijk te stellen voor onjuiste of onvolledige informatie die in deze publicatie vermeld staan. Aan deze gegevens kunnen geen rechten worden ontleend.
====================
Alle beschikbare informatie ontvangen?
Benieuwd naar alle beschikbare informatie over het pand? Vraag dan nu, onder de grote contactbutton, de gratis objectbrochure van de Spoorsingel 1A in Heerlen aan en ontvang de objectbrochure binnen 5 minuten in uw mailbox. Uiteraard kunt u ook direct een geheel vrijblijvende bezichtiging met de beheerder van het pand inplannen.
Op een markante locatie aan de Spoorsingel, Naast het Maankwartier direct tegenover het voetgangersgebied van de binnenstad en op een steenworp afstand van station Heerlen, staat dit bijzondere en herkenbare gebouw.
Met zijn golvende glazen voorgevel en opvallende architectuur is Spoorsingel 1a een echte blikvanger aan de nieuwe Cityring van Heerlen met ruim 13.000 passerende auto’s per dag !
Dit multifunctionele gebouw biedt circa 1.155 m² vloeroppervlak, verdeeld over vier bouwlagen, en combineert zichtbaarheid, bereikbaarheid en flexibiliteit – een ideale mix voor ondernemers, investeerders en ontwikkelaars die op zoek zijn naar een representatieve vestiging of herontwikkelingskans in het centrum van de stad.
SOUTERAIN
Circa 210 m² opslagruimte, toegankelijk via het trappenhuis vanuit de ontvangsthal en tevens via het noodtrappenhuis.
BEGANE GROND
Circa 225 m² commerciële ruimte, bestaande uit een entree met receptiebalie, een separate etalage en een ruime, multifunctioneel in te richten garage/magazijn.
EERSTE VERDIEPING
Circa 360 m² commerciële ruimte, bereikbaar via de trapopgang in de ontvangsthal.
De verdieping omvat een open werkruimte/showroom van circa 280 m² met receptiebalie, alsmede twee kantoorruimtes van respectievelijk 18 m² en 20 m².
TWEEDE VERDIEPING
Circa 360 m² commerciële ruimte, grotendeels ingericht als open werkruimte/showroom (ca. 180 m²) met daarnaast drie separate kantoren van respectievelijk 65 m², 33 m² en 20 m².
Verder beschikt deze verdieping over drie toiletten, garderobes, een kitchenette en een technische ruimte met de Cv-installatie.
LIGGING EN BEREIKBAARHEID
Uitstekend bereikbaar – midden in het centrum van Heerlen
Het pand is gelegen direct naast het Maankwartier, op een toplocatie met uitstekende bereikbaarheid zowel per auto als openbaar vervoer.
Het station Heerlen bevindt zich op nog geen 200 meter loopafstand, en de voetgangerszone van de binnenstad begint al op circa 100 meter afstand.
PARKEREN
Rondom het gebouw is ruime parkeergelegenheid beschikbaar en bovendien beschikt het pand zelf over 10 overdekte eigen parkeerplaatsen.
BESTEMMINGSPLAN
Het object valt binnen het vigerende bestemmingsplan ‘Cityplan Heerlen’, vastgesteld op 15 december 2021.
Volgens de planvoorschriften heeft het perceel de bestemming ‘Gemengd’, met als functieaanduiding ‘specifieke vorm van kantoor-1’, ‘parkeergarage’ en mogelijkheden voor wonen/werken.
Deze gemengde bestemming maakt een combinatie van kantoor-, commerciële- en woonfuncties mogelijk, mits passend binnen de kaders van het bestemmingsplan.
Voor nadere informatie over de exacte planologische mogelijkheden verwijzen wij naar het Omgevingsloket.
Koper of huurder dient zelf bij de gemeente Heerlen te verifiëren of de voorgenomen bedrijfsactiviteiten en/of woonfuncties binnen het vigerende bestemmingsplan passen.
Momenteel vinden er gesprekken met de gemeente plaats en zijn er ontwerptekeningen voor een herontwikkeling naar wonen met minimaal 13 wooneenheden.
OPLEVERINGSNIVEAU
Het object zal worden verkocht en geleverd ‘as-is, where is’, dat wil zeggen in de staat ten tijde van de levering met alle aan het object verbonden rechten en plichten, alsmede eventuele zichtbare en onzichtbare gebreken en zonder garantie van enig soort, waaronder die met betrekking tot technische, bouwkundige, juridische, fiscale, milieukundige, huur- en commerciële aspecten van het verkochte.
HUURCONDITIES
Huurprijs: € 6.230,- per maand excl. BTW
Huurtermijn: 5 jaar
Aanvaarding: per direct.
Opzegtermijn: 3 maanden
Zekerheidstelling: Waarborgsom: ter grootte van 3 maanden huur inclusief BTW.
Huurindexering: Jaarlijks overeenkomstig het maand prijsindexcijfer volgens het consumentenprijsindexcijfer (CPI) reeks CPI alle huishoudens (2006=100) gepubliceerd door het Centraal Bureau voor de Statistiek (CBS). De huurprijs zal nimmer minder bedragen dan de huurprijs van het voorafgaande jaar. Indexatie voor het eerst 12 maanden na huur ingangsdatum en zo vervolgens jaarlijks.
BTW: Nee, is niet van toepassing.
KOOPCONDITIES
Koopprijs: € 795.000,- K.K.
Aanvaarding: in overleg.
BTW: Nee, is niet van toepassing.
Zekerheidstelling: Waarborgsom of bankgarantie van 10% van de koopsom. De koper dient deze 4 weken ná het vervallen van de ontbindende voorwaarden bij de desbetreffende notaris te deponeren.
Een combinatie van koop en inruil behoort tot de mogelijkheden, mits passend bij de waarde en aard van het aangeboden object.
GOEDEKEURING
Het bovenstaande is onder finaal voorbehoud van de eigenaar.
Disclaimer: Ondanks dat deze publicatie met de grootst mogelijke zorgvuldigheid is samengesteld is de Online Bedrijfsmakelaar BV niet aansprakelijk te stellen voor onjuiste of onvolledige informatie die in deze publicatie vermeld staan. Aan deze gegevens kunnen geen rechten worden ontleend.
====================
Alle beschikbare informatie ontvangen?
Benieuwd naar alle beschikbare informatie over het pand? Vraag dan nu, onder de grote contactbutton, de gratis objectbrochure van de Spoorsingel 1A in Heerlen aan en ontvang de objectbrochure binnen 5 minuten in uw mailbox. Uiteraard kunt u ook direct een geheel vrijblijvende bezichtiging met de beheerder van het pand inplannen.
Kenmerken
Overdracht
- Vraagprijs
- € 795.000 kosten koper
- Servicekosten
- Geen servicekosten bekend
- Aangeboden sinds
-
- Status
- Beschikbaar
- Aanvaarding
- In overleg
Bouw
- Hoofdfunctie
- Kantoor
- Mogelijke functie(s)
- Bedrijfsruimte en winkelruimte
- Soort bouw
- Bestaande bouw
- Bouwjaar
- 1988
Oppervlakten
- Oppervlakte
- 1.155 m²
- Verkoopvloeroppervlakte
- 1.155 m²
- Perceel
- 252 m²
Indeling
- Aantal bouwlagen
- 4 bouwlagen
Energie
- Energielabel
- D
Omgeving
- Ligging
- Stadscentrum/dorpskern en in woonwijk
Parkeergelegenheid
- Parkeerplaatsen
- 10 overdekte parkeerplaatsen
Foto's