Heisterberg 66-68 6431 JC Hoensbroek
- Nieuw
€ 295.000 k.k.

Omschrijving
Ruim transformatieobject in de wijk ‘De Dem’ in Hoensbroek te koop aangeboden.
In het verleden was dit dé ontmoetingsplaats in de wijk ook wel bekend als ‘Pool Biljart Club De Gildemeesters’.
TE KOOP | HEISTERBERG 66 - 68 - 68A | HOENSBROEK
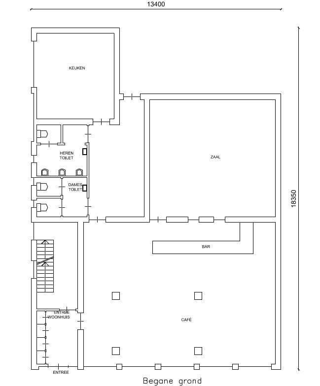
Het betreft een multifunctioneel object welke in totaliteit wordt aangeboden. De begane grond betreft een voormalige horeca-exploitatie (ca.177 m²). Op de verdiepingen zijn twee zelfstandige appartementen gelegen.
De begane grond (huisnummer 66) bestaat uit een uitgestrekt voormalige cafégedeelte met achtergelegen multifunctionele ruimte met tevens een toegang naar de ondergelegen kelder. Daarnaast is er een keukenruimte en twee toiletgroepen.
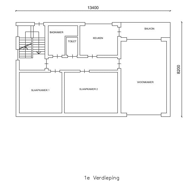
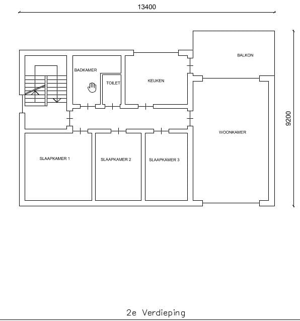
De zelfstandige appartementen (huisnummer 68 + 68A) worden ontsloten via een gemeenschappelijke trappenhal. Beide appartementen hebben een oppervlakte van ca. 75 m² elk en zijn voorzien van twee of drie slaapkamers.
Door de indeling van het object behoort transformatie naar meerdere wooneenheden wellicht ook tot de mogelijkheden.
Door de diepte van het perceel is aan de achterzijde een grote tuin aanwezig. Hier is eventueel de mogelijkheid voor parkeren op eigen terrein te realiseren.
Zowel de begane grond als de appartementen beschikken over hun eigen aansluiting voor elektra en gas. Er is één hoofdmeter t.b.v. het water welke middels tussenmeters naar de verdiepingen loopt.
De algehele staat van het object is gedateerd. Renovatie is noodzakelijk.
BASISKENMERKEN
Adres: Heisterberg 66, 68, 68A - 6431 JC Hoensbroek
Bouwjaar: 1962
Gebruik: Transformatie, detailhandel, horeca, dienstverlening
Perceeloppervlakte: 588 m²
Vraagprijs: € 295.000,- k.k.
Aanvaarding: In overleg, op korte termijn mogelijk
LOCATIE
Heisterberg is een rustige straat met voornamelijk woonhuizen, variërend van jaren ’30-bebouwing tot meer moderne woningen. De straat heeft voldoende parkeergelegenheid en grenst aan andere woonstraten met veel groen. De wijk ‘De Dem’ heeft een gunstige ligging met snelle verbindingen naar de omliggende dorpen en steden, gelegen in Hoensbroek, deel uitmakende van de gemeente Heerlen, telt Heerlen circa 87.500 inwoners.
De straat Heisterberg grenst tevens aan Brunssum, met circa 27.800 inwoners en maakt deel uit van het samenwerkingsverband Parkstad Limburg waar ca. 257.000 mensen wonen.
Bereikbaarheid:
Per auto: Vanaf de A76 is het object binnen 7 minuten te bereiken via de Buitenring. De straat Heisterberg is een zijstraat van de Akerstraat Noord.
Per openbaar vervoer: Heisterberg ligt op een loopafstand van circa 200 meter van Busstation Hoensbroek.
OBJECTINFORMATIE
Het gebouw bestaat uit:
Bouwlaag - Omschrijving – Oppervlakte (v.v.o.)
Kelder - opslagruimte - ca. 15 m²
Begane Grond – commerciële ruimte - ca. 177 m²
Eerste verdieping – appartement - ca. 75 m²
Tweede verdieping – appartement - ca. 75 m²
Totaal ca. 342 m²
Parkeren:
Op eigen perceel zijn mogelijkheden voor het creëren van meerdere parkeerplaatsen. Aan de doorgaande weg zijn voldoende openbare parkeermogelijkheden.
Bestemming:
Als ruimtelijk kader geldt het Omgevingsplan ‘gemeente Heerlen’, met specifiek voor dit object het bestemmingsplan ‘St Josephstr eo’. Op basis van dit plan is het object bestemd als ‘WT 3 – winkels toegestaan’.
Het Omgevingsplan is op eerste aanvraag beschikbaar via ons kantoor.
Opleveringsniveau:
Het object wordt in huidige staat (´as-is, where-is´) opgeleverd. Koper is zelf verantwoordelijk om zijn bedrijfsactiviteiten danwel de transformatiemogelijkheden te onderzoeken.
KOOPGEGEVENS
Vraagprijs: € 295.000,- kosten koper.
Aanvaarding: In overleg, op korte termijn mogelijk.
Kadastrale info: het object is kadastraal bekend:
Gemeente Hoensbroek, sectie D, nummers 1456
Totaal groot: 588 m²
Eigendom soort: Volle eigendom.
Oplevering: In huidige staat, vrij van huur en bezemschoon.
Energielabel huisnummer 66: G
Energielabel huisnummer 68: D
Energielabel huisnummer 68A: F
Verkoop van dit object is te allen tijde onder voorbehoud van schriftelijke goedkeuring door eigenaar.
Alle maten en afmetingen zijn bij benadering weergegeven. Deze aanbieding mag slechts worden gezien als een uitnodiging tot bezichtiging. Een afspraak hiertoe kunt u maken bij ons kantoor.
Hoewel de grootst mogelijke zorgvuldigheid bij de samenstelling van deze informatie is betracht, aanvaarden wij geen aansprakelijkheid voor de juistheid van de vermelde gegevens.
In het verleden was dit dé ontmoetingsplaats in de wijk ook wel bekend als ‘Pool Biljart Club De Gildemeesters’.
TE KOOP | HEISTERBERG 66 - 68 - 68A | HOENSBROEK
Het betreft een multifunctioneel object welke in totaliteit wordt aangeboden. De begane grond betreft een voormalige horeca-exploitatie (ca.177 m²). Op de verdiepingen zijn twee zelfstandige appartementen gelegen.
De begane grond (huisnummer 66) bestaat uit een uitgestrekt voormalige cafégedeelte met achtergelegen multifunctionele ruimte met tevens een toegang naar de ondergelegen kelder. Daarnaast is er een keukenruimte en twee toiletgroepen.
De zelfstandige appartementen (huisnummer 68 + 68A) worden ontsloten via een gemeenschappelijke trappenhal. Beide appartementen hebben een oppervlakte van ca. 75 m² elk en zijn voorzien van twee of drie slaapkamers.
Door de indeling van het object behoort transformatie naar meerdere wooneenheden wellicht ook tot de mogelijkheden.
Door de diepte van het perceel is aan de achterzijde een grote tuin aanwezig. Hier is eventueel de mogelijkheid voor parkeren op eigen terrein te realiseren.
Zowel de begane grond als de appartementen beschikken over hun eigen aansluiting voor elektra en gas. Er is één hoofdmeter t.b.v. het water welke middels tussenmeters naar de verdiepingen loopt.
De algehele staat van het object is gedateerd. Renovatie is noodzakelijk.
BASISKENMERKEN
Adres: Heisterberg 66, 68, 68A - 6431 JC Hoensbroek
Bouwjaar: 1962
Gebruik: Transformatie, detailhandel, horeca, dienstverlening
Perceeloppervlakte: 588 m²
Vraagprijs: € 295.000,- k.k.
Aanvaarding: In overleg, op korte termijn mogelijk
LOCATIE
Heisterberg is een rustige straat met voornamelijk woonhuizen, variërend van jaren ’30-bebouwing tot meer moderne woningen. De straat heeft voldoende parkeergelegenheid en grenst aan andere woonstraten met veel groen. De wijk ‘De Dem’ heeft een gunstige ligging met snelle verbindingen naar de omliggende dorpen en steden, gelegen in Hoensbroek, deel uitmakende van de gemeente Heerlen, telt Heerlen circa 87.500 inwoners.
De straat Heisterberg grenst tevens aan Brunssum, met circa 27.800 inwoners en maakt deel uit van het samenwerkingsverband Parkstad Limburg waar ca. 257.000 mensen wonen.
Bereikbaarheid:
Per auto: Vanaf de A76 is het object binnen 7 minuten te bereiken via de Buitenring. De straat Heisterberg is een zijstraat van de Akerstraat Noord.
Per openbaar vervoer: Heisterberg ligt op een loopafstand van circa 200 meter van Busstation Hoensbroek.
OBJECTINFORMATIE
Het gebouw bestaat uit:
Bouwlaag - Omschrijving – Oppervlakte (v.v.o.)
Kelder - opslagruimte - ca. 15 m²
Begane Grond – commerciële ruimte - ca. 177 m²
Eerste verdieping – appartement - ca. 75 m²
Tweede verdieping – appartement - ca. 75 m²
Totaal ca. 342 m²
Parkeren:
Op eigen perceel zijn mogelijkheden voor het creëren van meerdere parkeerplaatsen. Aan de doorgaande weg zijn voldoende openbare parkeermogelijkheden.
Bestemming:
Als ruimtelijk kader geldt het Omgevingsplan ‘gemeente Heerlen’, met specifiek voor dit object het bestemmingsplan ‘St Josephstr eo’. Op basis van dit plan is het object bestemd als ‘WT 3 – winkels toegestaan’.
Het Omgevingsplan is op eerste aanvraag beschikbaar via ons kantoor.
Opleveringsniveau:
Het object wordt in huidige staat (´as-is, where-is´) opgeleverd. Koper is zelf verantwoordelijk om zijn bedrijfsactiviteiten danwel de transformatiemogelijkheden te onderzoeken.
KOOPGEGEVENS
Vraagprijs: € 295.000,- kosten koper.
Aanvaarding: In overleg, op korte termijn mogelijk.
Kadastrale info: het object is kadastraal bekend:
Gemeente Hoensbroek, sectie D, nummers 1456
Totaal groot: 588 m²
Eigendom soort: Volle eigendom.
Oplevering: In huidige staat, vrij van huur en bezemschoon.
Energielabel huisnummer 66: G
Energielabel huisnummer 68: D
Energielabel huisnummer 68A: F
Verkoop van dit object is te allen tijde onder voorbehoud van schriftelijke goedkeuring door eigenaar.
Alle maten en afmetingen zijn bij benadering weergegeven. Deze aanbieding mag slechts worden gezien als een uitnodiging tot bezichtiging. Een afspraak hiertoe kunt u maken bij ons kantoor.
Hoewel de grootst mogelijke zorgvuldigheid bij de samenstelling van deze informatie is betracht, aanvaarden wij geen aansprakelijkheid voor de juistheid van de vermelde gegevens.
Kenmerken
Overdracht
- Vraagprijs
- € 295.000 kosten koper
- Aangeboden sinds
-
- Status
- Beschikbaar
- Aanvaarding
- In overleg
Bouw
- Hoofdfunctie
- Horeca
- Mogelijke functie(s)
- Belegging en winkelruimte
- Soort bouw
- Bestaande bouw
- Bouwjaar
- 1962
Oppervlakten
- Oppervlakte
- 177 m²
- Verkoopvloeroppervlakte
- 177 m²
- Perceel
- 588 m²
Indeling
- Aantal bouwlagen
- 1 bouwlaag
Energie
- Energielabel
- D
Omgeving
- Ligging
- In woonwijk
- Bereikbaarheid
- Bushalte op minder dan 500 m, NS Intercitystation op 2000 m tot 3000 m en snelwegafrit op 1500 m tot 2000 m
NVM makelaar
Foto's



















