Princestraat 30 2225 GC Katwijk (ZH)
€ 532.500 k.k.
Omschrijving
TE KOOP
Princestraat 30 te Katwijk (2225 GC)
ALGEMEEN
Het betreft hier een representatieve en hoogwaardige winkelruimte van in totaal ca. 135 m² (incl. ca. 35 m² kelderruimte), gelegen in het hart van het kernwinkelgebied van Katwijk aan Zee, nabij de Boulevard met al haar faciliteiten. Katwijk beschikt over ruim 63.000 inwoners en heeft een zeer groot verzorgingsgebied. Het centrum van Katwijk aan Zee omvat meer dan 100 winkels en beschikt over een actieve winkeliersvereniging. Zo is er tijdens de zomermaanden elke dinsdag de jaarlijkse Toeristenmarkt en worden jaarlijks de Visserijdagen georganiseerd. Ook worden er tijdens de feestdagen speciale (thema) koopavonden georganiseerd. Een dagje winkelen in Katwijk aan Zee is goed te combineren met vele bezienswaardigheden zoals het Katwijks Museum en het strand. In de directe omgeving van het object zijn verder onder andere Holland & Barrett, HEMA, Rituals, Norah, Douglas, Scapino, Haasnoot Mode, Vishandel Schuitemaker, Hotel Noordzee, Saton Optiek, alsmede diverse horecafaciliteiten gevestigd. De winkelruimte is momenteel tijdelijk verhuurd tot en met 31 oktober 2026 en kan vanaf 1 november 2026 vrij van huur en gebruik worden opgeleverd. Huidige huurgegevens: op aanvraag. Unieke kans om een winkelruimte in het winkelcentrum van Katwijk te kopen voor eigen gebruik of als beleggingsobject!
Bouwjaar: vijftiger jaren. Enkele jaren geleden is het onroerend goed geheel gemoderniseerd.
BEREIKBAARHEID
Het centrum is per eigen vervoer goed bereikbaar via de Provinciale weg N206 en de Zeeweg. Rijksweg A44 is op slechts 10 minuten rijafstand gelegen.
Bereikbaarheid per openbaar vervoer is als goed te kenmerken. Diverse bushalten bevinden zich in de directe omgeving van het object.
LOCATIE / LIGGING
Winkelcentrum
Woonomgeving
LOCATIE / VOORZIENINGEN
Snelwegafrit
Op 5000 m of meer
Afstand tot NS Station
Op 5000 m of meer
Winkel voorziening
Op minder dan 500 m
OPPERVLAKTE / INDELING
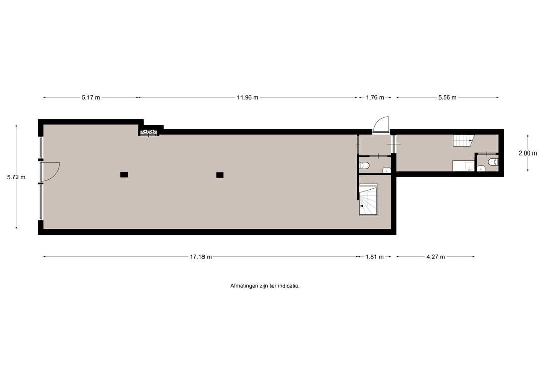
De winkelruimte heeft in totaal een oppervlakte van ca. 135 m² en is als volgt ingedeeld:
Begane grond: ca. 100 m² winkelruimte;
Kelderruimte: ca. 35 m² opslagruimte.
Frontbreedte: 5,5 meter.
PARKEERMOGELIJKHEDEN
Betaald parkeren op openbaar terrein in de directe omgeving. Op loopafstand van het object is de (ondergrondse) parkeergarage aan de Boulevard gelegen met 663 parkeerplaatsen.
OPLEVERINGSNIVEAU
In de huidige staat ‘as is where is’.
KOOPSOM
€ 532.500,00 k.k.
OMZETBELASTING
Het betreft hier een niet met BTW belaste verkoop.
AANVAARDING
In overleg.
COURTAGE
Mocht door bemiddeling van Basis Bedrijfshuisvesting B.V. een transactie tot stand komen, zult u hiervoor geen kosten of courtage verschuldigd zijn.
KADASTRALE GEGEVENS
Gemeente: Katwijk
Sectie: A
Nummer: 14520 A12, 14929 & 14484
BIJZONDERHEDEN
Elke transactie behoeft de nadrukkelijke goedkeuring van eigenaar.
OVERIG
Bezichtigingen uitsluitend op een daartoe afgesproken tijdstip met Basis Bedrijfshuisvesting B.V.
Princestraat 30 te Katwijk (2225 GC)
ALGEMEEN
Het betreft hier een representatieve en hoogwaardige winkelruimte van in totaal ca. 135 m² (incl. ca. 35 m² kelderruimte), gelegen in het hart van het kernwinkelgebied van Katwijk aan Zee, nabij de Boulevard met al haar faciliteiten. Katwijk beschikt over ruim 63.000 inwoners en heeft een zeer groot verzorgingsgebied. Het centrum van Katwijk aan Zee omvat meer dan 100 winkels en beschikt over een actieve winkeliersvereniging. Zo is er tijdens de zomermaanden elke dinsdag de jaarlijkse Toeristenmarkt en worden jaarlijks de Visserijdagen georganiseerd. Ook worden er tijdens de feestdagen speciale (thema) koopavonden georganiseerd. Een dagje winkelen in Katwijk aan Zee is goed te combineren met vele bezienswaardigheden zoals het Katwijks Museum en het strand. In de directe omgeving van het object zijn verder onder andere Holland & Barrett, HEMA, Rituals, Norah, Douglas, Scapino, Haasnoot Mode, Vishandel Schuitemaker, Hotel Noordzee, Saton Optiek, alsmede diverse horecafaciliteiten gevestigd. De winkelruimte is momenteel tijdelijk verhuurd tot en met 31 oktober 2026 en kan vanaf 1 november 2026 vrij van huur en gebruik worden opgeleverd. Huidige huurgegevens: op aanvraag. Unieke kans om een winkelruimte in het winkelcentrum van Katwijk te kopen voor eigen gebruik of als beleggingsobject!
Bouwjaar: vijftiger jaren. Enkele jaren geleden is het onroerend goed geheel gemoderniseerd.
BEREIKBAARHEID
Het centrum is per eigen vervoer goed bereikbaar via de Provinciale weg N206 en de Zeeweg. Rijksweg A44 is op slechts 10 minuten rijafstand gelegen.
Bereikbaarheid per openbaar vervoer is als goed te kenmerken. Diverse bushalten bevinden zich in de directe omgeving van het object.
LOCATIE / LIGGING
Winkelcentrum
Woonomgeving
LOCATIE / VOORZIENINGEN
Snelwegafrit
Op 5000 m of meer
Afstand tot NS Station
Op 5000 m of meer
Winkel voorziening
Op minder dan 500 m
OPPERVLAKTE / INDELING
De winkelruimte heeft in totaal een oppervlakte van ca. 135 m² en is als volgt ingedeeld:
Begane grond: ca. 100 m² winkelruimte;
Kelderruimte: ca. 35 m² opslagruimte.
Frontbreedte: 5,5 meter.
PARKEERMOGELIJKHEDEN
Betaald parkeren op openbaar terrein in de directe omgeving. Op loopafstand van het object is de (ondergrondse) parkeergarage aan de Boulevard gelegen met 663 parkeerplaatsen.
OPLEVERINGSNIVEAU
In de huidige staat ‘as is where is’.
KOOPSOM
€ 532.500,00 k.k.
OMZETBELASTING
Het betreft hier een niet met BTW belaste verkoop.
AANVAARDING
In overleg.
COURTAGE
Mocht door bemiddeling van Basis Bedrijfshuisvesting B.V. een transactie tot stand komen, zult u hiervoor geen kosten of courtage verschuldigd zijn.
KADASTRALE GEGEVENS
Gemeente: Katwijk
Sectie: A
Nummer: 14520 A12, 14929 & 14484
BIJZONDERHEDEN
Elke transactie behoeft de nadrukkelijke goedkeuring van eigenaar.
OVERIG
Bezichtigingen uitsluitend op een daartoe afgesproken tijdstip met Basis Bedrijfshuisvesting B.V.
Kenmerken
Overdracht
- Vraagprijs
- € 532.500 kosten koper
- Aangeboden sinds
-
- Status
- Beschikbaar
- Aanvaarding
- In overleg
Bouw
- Hoofdfunctie
- Winkel met showroom
- Soort bouw
- Bestaande bouw
- Bouwperiode
- 1945-1959
Oppervlakten
- Oppervlakte
- 135 m²
- Verkoopvloeroppervlakte
- 100 m²
- Breedte gevel
- 5,5 m
- Perceel
- 135 m²
Indeling
- Aantal bouwlagen
- 2 bouwlagen
Energie
- Energielabel
- Niet beschikbaar
Omgeving
- Ligging
- Winkelcentrum en in woonwijk
- Bereikbaarheid
- NS Intercitystation op 5000 m of meer en snelwegafrit op 5000 m of meer
- Bijdrage winkeliersvereniging
- Nee
NVM makelaar
Foto's
Plattegrond
Begane grond