Deurningerstraat 11 7571 BA Oldenzaal
- Nieuw
€ 429.000 k.k.

Omschrijving
Wonen in karakteristiek herenhuis in het centrum van Oldenzaal- een unieke kans!
Dankzij de veelzijdige indeling biedt dit pand talloze kansen voor wie wonen en werken slim wil combineren. Of je nu droomt van een eigen winkel met bovenwoning, zoekt naar een interessante belegging, of graag alles onder één dak wilt beheren – dit pand maakt het mogelijk.
Dit unieke woon-/winkelpand biedt de volgende opties:
- Alles in eigen beheer: woon boven en run je eigen winkel beneden.
- Slim combineren: verhuur de winkel en woon zelf boven, of gebruik de winkel zelf en verhuur de bovenwoning (intern bereikbaar via de winkel).
- Volledige verhuurmogelijkheid: verhuur zowel de winkelruimte als de bovenwoning en profiteer van een aantrekkelijke belegging.
Indeling:
Begane grond (Winkelruimte): binnenkomst in de salon, deze wordt nu gebruikt als kapperssalon en nagelsalon. Grenzend aan de salon zit een pantry, met keukenblok, toilet en meterkast. Via de salonruimte kom je in de hal, hieraan grenzend zitten de drie praktijkruimtes en twee bergingen voor extra opslag. Deze praktijkruimtes zijn perfect ingericht om te gebruiken als behandelruimte.
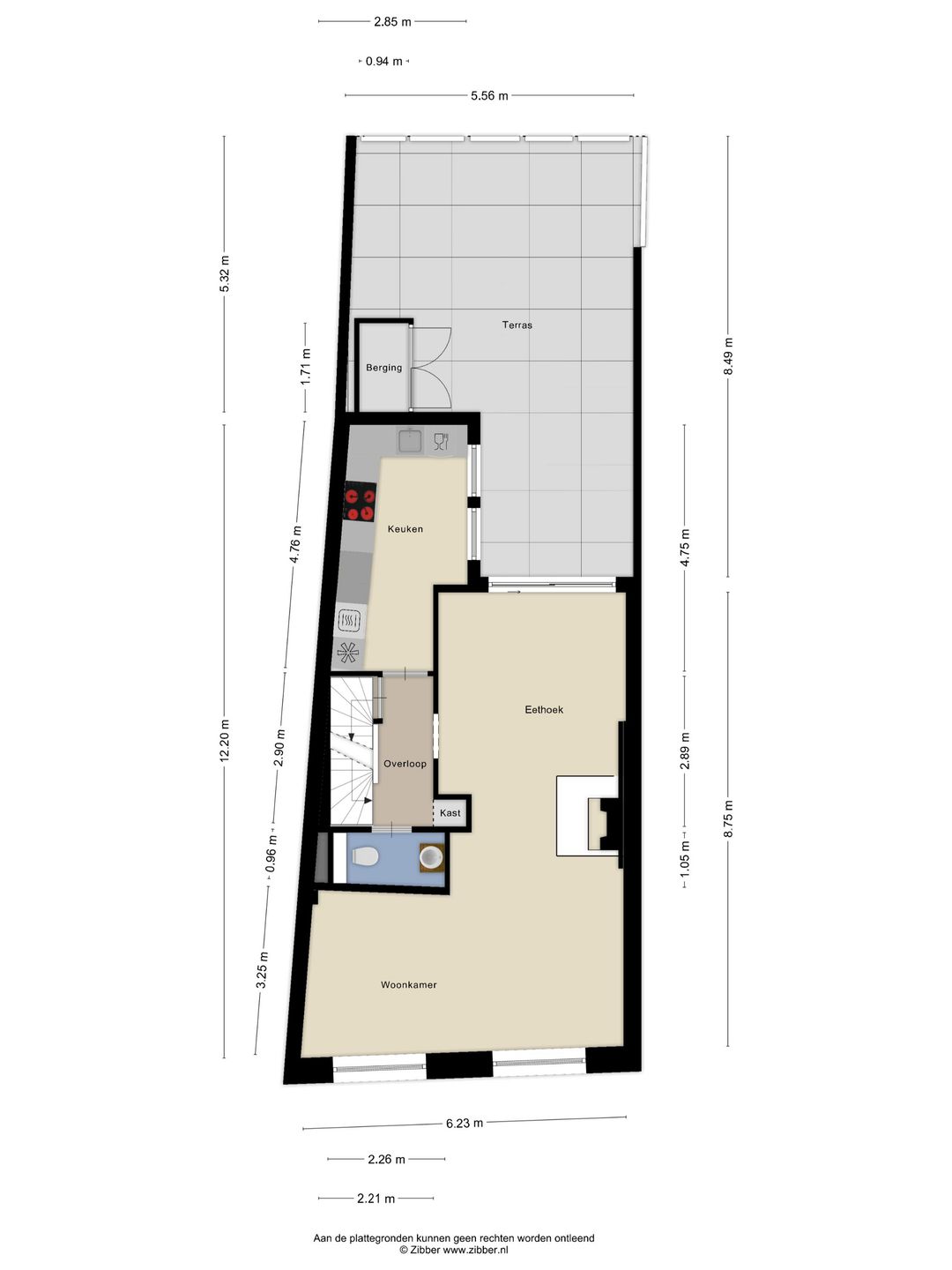
Eerste verdieping: via de salon kom je middels vaste trap op de eerste verdieping. Overloop met toegang tot de vaste kast en toilet met fonteintje. Via de overloop kom je in de L-vormige woonkamer en de eetkamer. De woonkamer is voorzien van een open haard. Vanuit de overloop kom je tevens in de vernieuwde keuken met diverse inbouwapparatuur, zoals: 4-pits inductiekookplaat met afzuigkap, koelkast, vaatwasser en combi-oven. Middels schuifpuien in de eetkamer kom je het ruime zonneterras, heerlijk voor de lange zomeravonden.
Tweede verdieping: middels vaste trap te betreden tweede verdieping. Overloop met toegang tot de drie ruime slaapkamers, badkamer en berging. De badkamer is voorzien van een wastafel met wastafelmeubel en een inloopdouche. De berging is voorzien van de aansluiting voor de wasmachine.
Bijzonderheden:
* Bouwjaar 1935
* Kaveloppervlakte 117 m² * Woonoppervlakte 213 m²
* Uniek wonen in hartje Oldenzaal;
* Woon-/winkelpand met vele mogelijkheden;
* Energielabel voor winkelpand ... / Energielabel voor woning ...;
* Voorzien van een zonneterras op het zuiden;
* 3 slaapkamers;
* Bij koop is een waarborgsom/bankgarantie van 10% van de koopsom vereist!
* Interesse in deze woning? Schakel direct uw aankoopmakelaar in. Uw NVM-aankoopmakelaar komt op voor uw belang en bespaart u tijd, geld en zorgen. Adressen van collega NVM-aankoopmakelaars in Twente vindt u op Funda en op de website van nvmtwente.
Disclaimer
De informatie is door ons met de nodige zorgvuldigheid samengesteld, echter aan de inhoud hiervan kunnen geen rechten worden ontleend. Alle opgegeven maten en oppervlakten zijn indicatief, kunnen afwijken van de werkelijke situatie en zijn uitsluitend bedoeld om een indruk te geven van de indeling. Onzerzijds wordt geen enkele aansprakelijkheid aanvaard voor enige onvolledigheid, onjuistheid of anderszins, dan wel de gevolgen daarvan.
Dankzij de veelzijdige indeling biedt dit pand talloze kansen voor wie wonen en werken slim wil combineren. Of je nu droomt van een eigen winkel met bovenwoning, zoekt naar een interessante belegging, of graag alles onder één dak wilt beheren – dit pand maakt het mogelijk.
Dit unieke woon-/winkelpand biedt de volgende opties:
- Alles in eigen beheer: woon boven en run je eigen winkel beneden.
- Slim combineren: verhuur de winkel en woon zelf boven, of gebruik de winkel zelf en verhuur de bovenwoning (intern bereikbaar via de winkel).
- Volledige verhuurmogelijkheid: verhuur zowel de winkelruimte als de bovenwoning en profiteer van een aantrekkelijke belegging.
Indeling:
Begane grond (Winkelruimte): binnenkomst in de salon, deze wordt nu gebruikt als kapperssalon en nagelsalon. Grenzend aan de salon zit een pantry, met keukenblok, toilet en meterkast. Via de salonruimte kom je in de hal, hieraan grenzend zitten de drie praktijkruimtes en twee bergingen voor extra opslag. Deze praktijkruimtes zijn perfect ingericht om te gebruiken als behandelruimte.
Eerste verdieping: via de salon kom je middels vaste trap op de eerste verdieping. Overloop met toegang tot de vaste kast en toilet met fonteintje. Via de overloop kom je in de L-vormige woonkamer en de eetkamer. De woonkamer is voorzien van een open haard. Vanuit de overloop kom je tevens in de vernieuwde keuken met diverse inbouwapparatuur, zoals: 4-pits inductiekookplaat met afzuigkap, koelkast, vaatwasser en combi-oven. Middels schuifpuien in de eetkamer kom je het ruime zonneterras, heerlijk voor de lange zomeravonden.
Tweede verdieping: middels vaste trap te betreden tweede verdieping. Overloop met toegang tot de drie ruime slaapkamers, badkamer en berging. De badkamer is voorzien van een wastafel met wastafelmeubel en een inloopdouche. De berging is voorzien van de aansluiting voor de wasmachine.
Bijzonderheden:
* Bouwjaar 1935
* Kaveloppervlakte 117 m² * Woonoppervlakte 213 m²
* Uniek wonen in hartje Oldenzaal;
* Woon-/winkelpand met vele mogelijkheden;
* Energielabel voor winkelpand ... / Energielabel voor woning ...;
* Voorzien van een zonneterras op het zuiden;
* 3 slaapkamers;
* Bij koop is een waarborgsom/bankgarantie van 10% van de koopsom vereist!
* Interesse in deze woning? Schakel direct uw aankoopmakelaar in. Uw NVM-aankoopmakelaar komt op voor uw belang en bespaart u tijd, geld en zorgen. Adressen van collega NVM-aankoopmakelaars in Twente vindt u op Funda en op de website van nvmtwente.
Disclaimer
De informatie is door ons met de nodige zorgvuldigheid samengesteld, echter aan de inhoud hiervan kunnen geen rechten worden ontleend. Alle opgegeven maten en oppervlakten zijn indicatief, kunnen afwijken van de werkelijke situatie en zijn uitsluitend bedoeld om een indruk te geven van de indeling. Onzerzijds wordt geen enkele aansprakelijkheid aanvaard voor enige onvolledigheid, onjuistheid of anderszins, dan wel de gevolgen daarvan.
Kenmerken
Overdracht
- Vraagprijs
- € 429.000 kosten koper
- Aangeboden sinds
-
- Status
- Beschikbaar
- Aanvaarding
- In overleg
Bouw
- Hoofdfunctie
- Winkel
- Soort bouw
- Bestaande bouw
- Bouwjaar
- 1935
Oppervlakten
- Oppervlakte
- 214 m²
- Verkoopvloeroppervlakte
- 214 m²
- Breedte gevel
- 6 m
- Perceel
- 117 m²
Indeling
- Aantal bouwlagen
- 3 bouwlagen
Energie
- Energielabel
- A+
Omgeving
- Ligging
- Stadscentrum/dorpskern
- Bijdrage winkeliersvereniging
- Nee
- Welstandsklasse
- B1
NVM makelaar
Foto's































