Lichtegaard 6 3511 KT Utrecht
€ 4.995 /mnd
Omschrijving
De Lichtegaard is gelegen midden in het winkelgebied van Utrecht en vormt de verbinding tussen de Vismarkt en het Wed. Een gevarieerd aanbod van winkels, horeca en dienstverlenende bedrijven zijn rondom de locatie gevestigd. De grootste toeristische attractie van de stad, de Domtoren, ligt tevens direct om de hoek. De Lichtegaard is een prachtig historisch stukje Utrecht.
Bereikbaarheid en bevoorrading
De winkel ligt in het voetgangersgebied en is met de auto beperkt bereikbaar, in de directe omgeving bevindt zich wel een grote parkeergarage. Bevoorraden van de winkel is mogelijk op werkdagen van 6:00 tot 11:30 uur en tussen 19:00 en 21:00 (uitsluitend met schone distributie).
Huurprijs
€ 4.995,- per maand
Servicekosten
Er zijn geen servicekosten de winkel beschikt over eigen aansluitingen voor elektriciteit, gas en water.
BTW
De verhuur is vrij van BTW.
Huurtermijn
In overleg.
Huurbetaling
Per maand vooruit.
Indexering
Jaarlijks, voor het eerst één jaar na huuringangsdatum, op basis van de wijziging van het maandprijsindexcijfer volgens de consumentenprijsindex (CPI), reeks voor alle huishoudens (2015=100), gepubliceerd door het Centraal Bureau voor de Statistiek (CBS).
Zekerheidstelling
Een waarborgsom ter grootte van minimaal drie maanden huur.
Bestemming en gebruik
Detailhandel en publieksgerichte dienstverlening.
De gemeente Utrecht staat positief tegenover een horecabestemming (D1/D2) voor deze locatie.
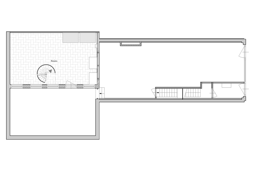
Vloeroppervlak (VVO)
- ca. 77 m² op de begane grond
- ca. 49 m² gelegen in de kelder
Achter de winkel bevindt zich een tuin van ruim 30m²
Front
ca. 4,5 meter (bruto)
Opleveringsniveau
De winkelruimte wordt casco verhuurd en opgeleverd in huidige staat voorzien van o.a.:
- pantry
- toilet
- airconditioning
Informatie
De vermelde informatie is zorgvuldig samengesteld, geheel vrijblijvend, en niet bedoeld als aanbod.
Ten aanzien van de juistheid kan door ons geen aansprakelijkheid worden aanvaard.
Van Rossum Makelaars Bedrijfshuisvesting B.V.
Bereikbaarheid en bevoorrading
De winkel ligt in het voetgangersgebied en is met de auto beperkt bereikbaar, in de directe omgeving bevindt zich wel een grote parkeergarage. Bevoorraden van de winkel is mogelijk op werkdagen van 6:00 tot 11:30 uur en tussen 19:00 en 21:00 (uitsluitend met schone distributie).
Huurprijs
€ 4.995,- per maand
Servicekosten
Er zijn geen servicekosten de winkel beschikt over eigen aansluitingen voor elektriciteit, gas en water.
BTW
De verhuur is vrij van BTW.
Huurtermijn
In overleg.
Huurbetaling
Per maand vooruit.
Indexering
Jaarlijks, voor het eerst één jaar na huuringangsdatum, op basis van de wijziging van het maandprijsindexcijfer volgens de consumentenprijsindex (CPI), reeks voor alle huishoudens (2015=100), gepubliceerd door het Centraal Bureau voor de Statistiek (CBS).
Zekerheidstelling
Een waarborgsom ter grootte van minimaal drie maanden huur.
Bestemming en gebruik
Detailhandel en publieksgerichte dienstverlening.
De gemeente Utrecht staat positief tegenover een horecabestemming (D1/D2) voor deze locatie.
Vloeroppervlak (VVO)
- ca. 77 m² op de begane grond
- ca. 49 m² gelegen in de kelder
Achter de winkel bevindt zich een tuin van ruim 30m²
Front
ca. 4,5 meter (bruto)
Opleveringsniveau
De winkelruimte wordt casco verhuurd en opgeleverd in huidige staat voorzien van o.a.:
- pantry
- toilet
- airconditioning
Informatie
De vermelde informatie is zorgvuldig samengesteld, geheel vrijblijvend, en niet bedoeld als aanbod.
Ten aanzien van de juistheid kan door ons geen aansprakelijkheid worden aanvaard.
Van Rossum Makelaars Bedrijfshuisvesting B.V.
Kenmerken
Overdracht
- Huurprijs
- € 4.995 per maand
- Oorspronkelijke huurprijs
- € 5.835 per maand
- Aangeboden sinds
-
- Status
- Beschikbaar
- Aanvaarding
- In overleg
Bouw
- Hoofdfunctie
- Winkel met showroom
- Soort bouw
- Bestaande bouw
- Bouwjaar
- Voor 1906
Oppervlakten
- Oppervlakte
- 126 m²
- Verkoopvloeroppervlakte
- 77 m²
- Breedte gevel
- 4,5 m
Indeling
- Aantal bouwlagen
- 2 bouwlagen
Energie
- Energielabel
- Niet beschikbaar
Omgeving
- Ligging
- Stadscentrum/dorpskern
- Bijdrage winkeliersvereniging
- Nee
Foto's
Plattegrond
First floor