Oudkerkhof 28 3512 GK Utrecht
€ 33.000 /jr
Omschrijving
Prachtig historisch en recent gerenoveerd winkelpand met veel attentiewaarde midden op de chique winkelstraat Oudkerkhof.
Dit prachtige pand met veel hoogte is gelegen in het midden van het Oudkerkhof. Deze straat in hartje centrum staat bekend om haar mooie hoogwaardige (mode) merken, zoals Bolia, The Society Shop, Eyeconic, `Shoesme en Suit Supply. Ook zijn er bekende horecazaken gevestigd zoals Loetje, De Dikke Dries en San Siro en de hoogwaardige kapsalon Rob Peetoom.
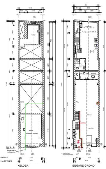
Indeling
De winkel beschikt over een karakteristieke pui met in het midden de ingang naar de winkel en is circa 5 jaar geleden compleet gerenoveerd. De winkel heeft een open karakter en heeft aan de achterkant een ruimte voor een pantry en/of opslag en heeft een toilet. De kelder kan gebruikt worden voor opslag.
Oppervlakte:
ca. 95 m2 BVO, waarvan 65 m2 BVO op de begane grond en 30 m2 in de kelder
Huurkenmerken:
- Huurprijs: 33.000,- per jaar te vermeerderen met BTW
-Bestemming: Centrum 3 detailhandel en publieksgerichte dienstverlening,
-Ingangsdatum: per 1 september 2026
-Bankgarantie: 3 maanden huur te vermeerderen met BTW
-Huurtermijn: 5 + 5 jaren
-Huurbetaling: per maand vooruit
-Oplevering: het object wordt casco verhuurd, echter opgeleverd in huidige staat, leeg en bezemschoon (nader exact overeen te komen).
-Energielabel: A++
Huurovereenkomst
De op te stellen huurovereenkomst is conform de overeenkomst die door de Raad voor Onroerende Zaken in 2012 is vastgesteld, met aanvullende bepalingen verhuurder.
Ligging & bereikbaarheid
De bereikbaarheid is uitstekend. Vanaf Utrecht Centraal Station wandel je in een kwartier door de sfeervolle binnenstad naar het Oudkerkhof. Voor wie met het openbaar vervoer reist, stoppen diverse buslijnen op korte loopafstand bij het Domplein en de Neude. Ook automobilisten kunnen eenvoudig parkeren in nabijgelegen parkeergarages zoals ParkBee Jansdam of Springweg. Zo is jouw winkel niet alleen een bestemming, maar ook gemakkelijk bereikbaar voor iedereen. Met deze centrale ligging profiteer je van een constante stroom van passanten: toeristen die de Domtoren bezoeken, bewoners die hun favoriete boetiek opzoeken, en dagjesmensen die genieten van de stad. Het Oudkerkhof is een straat waar kwaliteit en beleving samenkomen – en jouw winkel kan daar straks deel van uitmaken.
Omgeving
Het Oudkerkhof ligt midden in het historische centrum, tussen de Stadhuisbrug en de Domstraat. De straat staat bekend als de “P.C. Hooftstraat van Utrecht” – een plek waar kwaliteit en stijl samenkomen. Hier vind je gerenommeerde merken zoals Suit Supply, Vanilia, Hästens en The Society Shop, naast exclusieve boetieks en sfeervolle horecazaken zoals Loetje en San Siro. De straat wordt omringd door monumentale panden en ademt historie. Het motto van de straat zegt alles: “Oudkerkhof, jong en springlevend”. Dit is een plek waar winkelen een beleving is.
Disclaimer
De informatie in deze uitgave is met grote zorg samengesteld, desondanks kunnen er geen rechten worden ontleend. De beelden en sfeerplattegronden dienen slechts ter inspiratie om een indruk te geven van de mogelijkheden. Niets uit deze uitgave mag zonder toestemming van JB Retail worden overgenomen Copyright (2025)
Dit prachtige pand met veel hoogte is gelegen in het midden van het Oudkerkhof. Deze straat in hartje centrum staat bekend om haar mooie hoogwaardige (mode) merken, zoals Bolia, The Society Shop, Eyeconic, `Shoesme en Suit Supply. Ook zijn er bekende horecazaken gevestigd zoals Loetje, De Dikke Dries en San Siro en de hoogwaardige kapsalon Rob Peetoom.
Indeling
De winkel beschikt over een karakteristieke pui met in het midden de ingang naar de winkel en is circa 5 jaar geleden compleet gerenoveerd. De winkel heeft een open karakter en heeft aan de achterkant een ruimte voor een pantry en/of opslag en heeft een toilet. De kelder kan gebruikt worden voor opslag.
Oppervlakte:
ca. 95 m2 BVO, waarvan 65 m2 BVO op de begane grond en 30 m2 in de kelder
Huurkenmerken:
- Huurprijs: 33.000,- per jaar te vermeerderen met BTW
-Bestemming: Centrum 3 detailhandel en publieksgerichte dienstverlening,
-Ingangsdatum: per 1 september 2026
-Bankgarantie: 3 maanden huur te vermeerderen met BTW
-Huurtermijn: 5 + 5 jaren
-Huurbetaling: per maand vooruit
-Oplevering: het object wordt casco verhuurd, echter opgeleverd in huidige staat, leeg en bezemschoon (nader exact overeen te komen).
-Energielabel: A++
Huurovereenkomst
De op te stellen huurovereenkomst is conform de overeenkomst die door de Raad voor Onroerende Zaken in 2012 is vastgesteld, met aanvullende bepalingen verhuurder.
Ligging & bereikbaarheid
De bereikbaarheid is uitstekend. Vanaf Utrecht Centraal Station wandel je in een kwartier door de sfeervolle binnenstad naar het Oudkerkhof. Voor wie met het openbaar vervoer reist, stoppen diverse buslijnen op korte loopafstand bij het Domplein en de Neude. Ook automobilisten kunnen eenvoudig parkeren in nabijgelegen parkeergarages zoals ParkBee Jansdam of Springweg. Zo is jouw winkel niet alleen een bestemming, maar ook gemakkelijk bereikbaar voor iedereen. Met deze centrale ligging profiteer je van een constante stroom van passanten: toeristen die de Domtoren bezoeken, bewoners die hun favoriete boetiek opzoeken, en dagjesmensen die genieten van de stad. Het Oudkerkhof is een straat waar kwaliteit en beleving samenkomen – en jouw winkel kan daar straks deel van uitmaken.
Omgeving
Het Oudkerkhof ligt midden in het historische centrum, tussen de Stadhuisbrug en de Domstraat. De straat staat bekend als de “P.C. Hooftstraat van Utrecht” – een plek waar kwaliteit en stijl samenkomen. Hier vind je gerenommeerde merken zoals Suit Supply, Vanilia, Hästens en The Society Shop, naast exclusieve boetieks en sfeervolle horecazaken zoals Loetje en San Siro. De straat wordt omringd door monumentale panden en ademt historie. Het motto van de straat zegt alles: “Oudkerkhof, jong en springlevend”. Dit is een plek waar winkelen een beleving is.
Disclaimer
De informatie in deze uitgave is met grote zorg samengesteld, desondanks kunnen er geen rechten worden ontleend. De beelden en sfeerplattegronden dienen slechts ter inspiratie om een indruk te geven van de mogelijkheden. Niets uit deze uitgave mag zonder toestemming van JB Retail worden overgenomen Copyright (2025)
Kenmerken
Overdracht
- Huurprijs
- € 33.000 per jaar
- Aangeboden sinds
-
- Status
- Beschikbaar
- Aanvaarding
- Beschikbaar per 1-9-2026
Bouw
- Hoofdfunctie
- Winkel met showroom
- Soort bouw
- Bestaande bouw
- Bouwjaar
- 1450
Oppervlakten
- Oppervlakte
- 95 m²
- Verkoopvloeroppervlakte
- 65 m²
- Breedte gevel
- 5 m
- Perceel
- 76 m²
Indeling
- Aantal bouwlagen
- 2 bouwlagen
Energie
- Energielabel
- A++
Omgeving
- Ligging
- Stadscentrum/dorpskern en winkelcentrum
- Bereikbaarheid
- Bushalte op minder dan 500 m, busknooppunt op minder dan 500 m, NS Intercitystation op 1000 m tot 1500 m en snelwegafrit op 1500 m tot 2000 m
- Lokale voorzieningen
- Bank op minder dan 500 m, ontspanning op minder dan 500 m, restaurant op minder dan 500 m en winkel op minder dan 500 m
- Bijdrage winkeliersvereniging
- Nee
- Welstandsklasse
- A2
Foto's
Plattegrond
First floor