Hoofdstraat 155 6881 TG Velp (GE)
€ 1.200 /mnd
Omschrijving
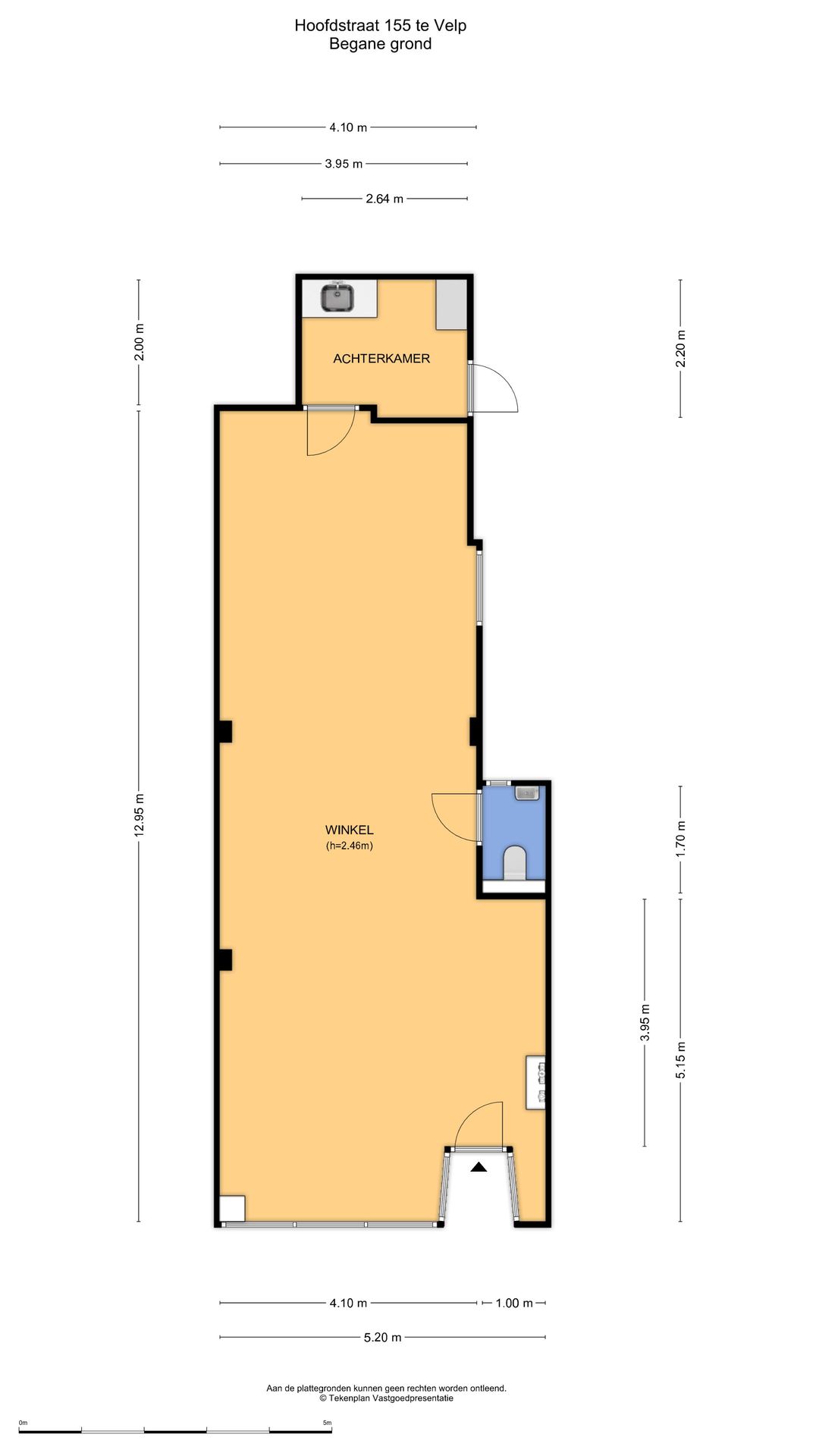
Aan de Hoofdstraat 155 in Velp bieden wij een aantrekkelijke winkelruimte van circa 64 m² aan, gelegen op een uitstekende zichtlocatie in het kernwinkelgebied. Dankzij de centrale ligging, de goede bereikbaarheid en de compacte maar efficiënte oppervlakte leent dit object zich bij uitstek voor onder andere detailhandel of dienstverlening.
Ligging
De Hoofdstraat kenmerkt zich door een mix van landelijke filiaalbedrijven en zelfstandige ondernemers. In de winkelstraat zijn onder andere een Albert Heijn, Douglas, Kruidvat en diverse horecagelegenheden gevestigd.
Bereikbaarheid
Het object is goed bereikbaar met eigen- en openbaar vervoer. Velp wordt ontsloten via de N785 naar Rheden, de Arnhemsestraatweg en Larensteinselaan naar Arnhem en de President Kennedylaan naar het Velperbroerkcircuit (A12, A348 en N325).
Vloeroppervlakte
De ruimte heeft een totale oppervlakte van circa 64 m² gelegen op de begane grond.
Frontbreedte
Het pand heeft een frontbreedte van circa 4 meter.
Opleveringsniveau
Het object zal worden opgeleverd in de huidige staat, vrij van huur en gebruik en ontdaan van inventaris van vertrekkend huurder. Onder andere voorzien van:
- Laminaatvloer;
- Systeemplafonds voorzien van ingebouwde verlichtingsarmaturen;
- Pantryvoorziening;
- Toiletvoorziening;
- Verwarming middels CV installatie.
Parkeren
Gratis parkeren in de nabijheid van het pand.
Huurprijs
€ 1.200,- per maand, te vermeerderen met BTW.
Servicekosten
Niet van toepassing. De huurder sluit zelf rechtstreeks contracten af met de desbetreffende nutsleveranciers.
Bestemming
Conform het bestemmingsplan ''Velp-Centrum 2023'' vastgesteld op 10-12-2024 heeft het pand de bestemming ''Centrum-1'', hieronder vallen onder andere:
- Detailhandel en dienstverlening op de begane grond;
- Horeca-activiteiten van categorie 1a;
- Maatschappelijke voorzieningen;
- Fitnesscentrum.
Voor een nadere toelichting op het bestemmingsplan verwijzen wij u graag naar de website van het Omgevingsloket.
Heeft dit pand uw interesse gewekt? Dan nodigen wij u van harte uit het pand eens van binnen te komen bekijken!
BMV Bedrijfsmakelaars
Sweerts de Landasstraat 27
6814 DA Arnhem
026 - 355 21 00
Ligging
De Hoofdstraat kenmerkt zich door een mix van landelijke filiaalbedrijven en zelfstandige ondernemers. In de winkelstraat zijn onder andere een Albert Heijn, Douglas, Kruidvat en diverse horecagelegenheden gevestigd.
Bereikbaarheid
Het object is goed bereikbaar met eigen- en openbaar vervoer. Velp wordt ontsloten via de N785 naar Rheden, de Arnhemsestraatweg en Larensteinselaan naar Arnhem en de President Kennedylaan naar het Velperbroerkcircuit (A12, A348 en N325).
Vloeroppervlakte
De ruimte heeft een totale oppervlakte van circa 64 m² gelegen op de begane grond.
Frontbreedte
Het pand heeft een frontbreedte van circa 4 meter.
Opleveringsniveau
Het object zal worden opgeleverd in de huidige staat, vrij van huur en gebruik en ontdaan van inventaris van vertrekkend huurder. Onder andere voorzien van:
- Laminaatvloer;
- Systeemplafonds voorzien van ingebouwde verlichtingsarmaturen;
- Pantryvoorziening;
- Toiletvoorziening;
- Verwarming middels CV installatie.
Parkeren
Gratis parkeren in de nabijheid van het pand.
Huurprijs
€ 1.200,- per maand, te vermeerderen met BTW.
Servicekosten
Niet van toepassing. De huurder sluit zelf rechtstreeks contracten af met de desbetreffende nutsleveranciers.
Bestemming
Conform het bestemmingsplan ''Velp-Centrum 2023'' vastgesteld op 10-12-2024 heeft het pand de bestemming ''Centrum-1'', hieronder vallen onder andere:
- Detailhandel en dienstverlening op de begane grond;
- Horeca-activiteiten van categorie 1a;
- Maatschappelijke voorzieningen;
- Fitnesscentrum.
Voor een nadere toelichting op het bestemmingsplan verwijzen wij u graag naar de website van het Omgevingsloket.
Heeft dit pand uw interesse gewekt? Dan nodigen wij u van harte uit het pand eens van binnen te komen bekijken!
BMV Bedrijfsmakelaars
Sweerts de Landasstraat 27
6814 DA Arnhem
026 - 355 21 00
Kenmerken
Overdracht
- Huurprijs
- € 1.200 per maand
- Aangeboden sinds
-
- Status
- Beschikbaar
- Aanvaarding
- In overleg
Bouw
- Hoofdfunctie
- Winkel
- Mogelijke functie(s)
- Horeca en sportinstelling
- Soort bouw
- Bestaande bouw
- Bouwjaar
- 1910
Oppervlakten
- Oppervlakte
- 64 m²
- Verkoopvloeroppervlakte
- 64 m²
- Breedte gevel
- 4 m
Indeling
- Aantal bouwlagen
- 1 bouwlaag
Energie
- Energielabel
- Niet beschikbaar
Omgeving
- Ligging
- Stadscentrum/dorpskern en stationslocatie
- Bereikbaarheid
- Bushalte op minder dan 500 m, NS Intercitystation op 500 m tot 1000 m en snelwegafrit op 1500 m tot 2000 m
- Bijdrage winkeliersvereniging
- Nee
- Welstandsklasse
- A2
Foto's
Plattegrond
Begane grond