Valeriusstraat 21 2517 HM Den Haag
- Verhuurd
                € 1.950 /mnd
            
         
Omschrijving
Adres: Valeriusstraat 21,  2517  HM te  Den Haag  (Duinoord) 
 
TE HUUR: MULTIFUNCTIONELE WINKELRUIMTE VAN TOTAAL CA. 120M² IN DE GEZELLIGE WIJK DUINOORD
  
LET OP: De getoonde foto's betreffen een impressie van de voorgaande situatie, de feitelijke situatie kan afwijken, op dit moment vinden nog verbouwingswerkzaamheden plaats.
 
Algemeen:
Aan drukke doorgaande winkelstraat, op steenworp afstand van de Frederik Hendriklaan, in het geliefde Duinoord gelegen multifunctionele winkelruimte van totaal ca. 120m² welke tot voor kort in gebruik was als schoonheidssalon en als zodanig is ingedeeld. Deze multifunctionele winkel-/bedrijfsruimte is door de brede bestemming uitstekend geschikt om aan te wenden voor andere doeleinden waaronder, winkel-, praktijk- of kantoorruimte. Aan de achterzijde beschikt de winkel over een besloten achtertuin van ca. 33m².
 
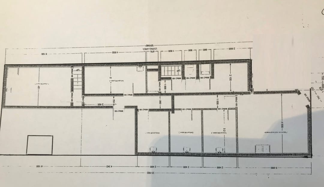
Indeling:
Zie bijlage plattegrond.
 
Vloeroppervlak:
Begane grond: ca. 100m²
1e verdieping achterhuis: ca. 20m²
Totaal ca. 120m²
 
Bestemming:
Op basis van het bestemmingsplan "Duinoord" beschikt het object over de bestemming "Gemengd -2".
De voor 'Gemengd - 2' aangewezen gronden zijn o.a. bestemd voor:
- detailhandel;
- dienstverlening;
- kantoor;
- maatschappelijk waaronder worden verstaan gezondheidszorg, praktijkruimten, kinderopvang, openbare dienstverlening, verenigingsleven
en welzijnsinstellingen;
- bedrijven in de categorieën A en B van de bij dit bestemmingsplan behorende 'Staat van inrichtingen bedrijven functiemenging' als
opgenomen in Bijlage 2 van de regels, met uitzondering van inrichtingen als bedoeld in artikel 41, derde lid, van de Wet geluidhinder,
en inrichtingen als bedoeld in artikel 4, vijfde lid, van het Besluit externe veiligheid inrichtingen.
 
Parkeergelegenheid
Aan de openbare weg zijn voldoende parkeermogelijkheden (betaald) aanwezig.
 
Openbaar vervoer
Uitstekende bereikbaarheid met auto en openbaar vervoer. In de directe nabijheid bevinden zich diverse haltes van bus (21, 24 en 76) en tramdiensten (11 en 16).
 
Opleveringsniveau
Het object wordt in de huidige staat, doch op basis van een "casco staat" verhuurd.
De winkelis is voorzien van o.a.:
- toilet;
- pantry;
- uitgebreide elektra;
- centrale verwarmingsinstallatie met radiatoren.
 
Datum oplevering
In overleg,
 
Huurprijs:
€ 1.950,-- per maand excl. Btw
 
BTW:
Verhuurder zal opteren voor een met Btw belaste verhuur, huurder verleent hiertoe zijn medewerking en verklaart voor tenminste 90% belaste prestaties te leveren.
 
Huurprijsbetaling
Per maand vooruit te voldoen.
 
Huurtermijn
In overleg
 
Huurprijsaanpassing
Jaarlijks, voor het eerst 1 jaar na huuringangsdatum, op basis van de wijziging van het prijsindexcijfer volgens de Consumentenprijsindex (CPI), Alle Huishoudens (2015=100), gepubliceerd door het Centraal Bureau voor de Statistiek (CBS).
 
Servicekosten:
Niet van toepassing. Huurder dient zelf zorg te dragen voor de aansluiting op en betaling van gas, water en elektra.
 
Zekerheidstelling
Bankgarantie ter grootte van een betalingsverplichting van drie maanden huur, inclusief Btw.
 
Aanvaarding
In overleg.
 
Huurovereenkomst
De huurovereenkomst zal worden opgesteld conform de door de Raad voor Onroerende Zaken (ROZ) in 2012 vastgestelde ROZ model Huurovereenkomst Winkelruimte.
 
Courtage
Mocht door bemiddeling van Martijn de Lange Bedrijfsmakelaars bij dit object een transactie tot stand worden gebracht, dan zult u ons hiervoor geen kosten of courtage verschuldigd zijn.
TE HUUR: MULTIFUNCTIONELE WINKELRUIMTE VAN TOTAAL CA. 120M² IN DE GEZELLIGE WIJK DUINOORD
LET OP: De getoonde foto's betreffen een impressie van de voorgaande situatie, de feitelijke situatie kan afwijken, op dit moment vinden nog verbouwingswerkzaamheden plaats.
Algemeen:
Aan drukke doorgaande winkelstraat, op steenworp afstand van de Frederik Hendriklaan, in het geliefde Duinoord gelegen multifunctionele winkelruimte van totaal ca. 120m² welke tot voor kort in gebruik was als schoonheidssalon en als zodanig is ingedeeld. Deze multifunctionele winkel-/bedrijfsruimte is door de brede bestemming uitstekend geschikt om aan te wenden voor andere doeleinden waaronder, winkel-, praktijk- of kantoorruimte. Aan de achterzijde beschikt de winkel over een besloten achtertuin van ca. 33m².
Indeling:
Zie bijlage plattegrond.
Vloeroppervlak:
Begane grond: ca. 100m²
1e verdieping achterhuis: ca. 20m²
Totaal ca. 120m²
Bestemming:
Op basis van het bestemmingsplan "Duinoord" beschikt het object over de bestemming "Gemengd -2".
De voor 'Gemengd - 2' aangewezen gronden zijn o.a. bestemd voor:
- detailhandel;
- dienstverlening;
- kantoor;
- maatschappelijk waaronder worden verstaan gezondheidszorg, praktijkruimten, kinderopvang, openbare dienstverlening, verenigingsleven
en welzijnsinstellingen;
- bedrijven in de categorieën A en B van de bij dit bestemmingsplan behorende 'Staat van inrichtingen bedrijven functiemenging' als
opgenomen in Bijlage 2 van de regels, met uitzondering van inrichtingen als bedoeld in artikel 41, derde lid, van de Wet geluidhinder,
en inrichtingen als bedoeld in artikel 4, vijfde lid, van het Besluit externe veiligheid inrichtingen.
Parkeergelegenheid
Aan de openbare weg zijn voldoende parkeermogelijkheden (betaald) aanwezig.
Openbaar vervoer
Uitstekende bereikbaarheid met auto en openbaar vervoer. In de directe nabijheid bevinden zich diverse haltes van bus (21, 24 en 76) en tramdiensten (11 en 16).
Opleveringsniveau
Het object wordt in de huidige staat, doch op basis van een "casco staat" verhuurd.
De winkelis is voorzien van o.a.:
- toilet;
- pantry;
- uitgebreide elektra;
- centrale verwarmingsinstallatie met radiatoren.
Datum oplevering
In overleg,
Huurprijs:
€ 1.950,-- per maand excl. Btw
BTW:
Verhuurder zal opteren voor een met Btw belaste verhuur, huurder verleent hiertoe zijn medewerking en verklaart voor tenminste 90% belaste prestaties te leveren.
Huurprijsbetaling
Per maand vooruit te voldoen.
Huurtermijn
In overleg
Huurprijsaanpassing
Jaarlijks, voor het eerst 1 jaar na huuringangsdatum, op basis van de wijziging van het prijsindexcijfer volgens de Consumentenprijsindex (CPI), Alle Huishoudens (2015=100), gepubliceerd door het Centraal Bureau voor de Statistiek (CBS).
Servicekosten:
Niet van toepassing. Huurder dient zelf zorg te dragen voor de aansluiting op en betaling van gas, water en elektra.
Zekerheidstelling
Bankgarantie ter grootte van een betalingsverplichting van drie maanden huur, inclusief Btw.
Aanvaarding
In overleg.
Huurovereenkomst
De huurovereenkomst zal worden opgesteld conform de door de Raad voor Onroerende Zaken (ROZ) in 2012 vastgestelde ROZ model Huurovereenkomst Winkelruimte.
Courtage
Mocht door bemiddeling van Martijn de Lange Bedrijfsmakelaars bij dit object een transactie tot stand worden gebracht, dan zult u ons hiervoor geen kosten of courtage verschuldigd zijn.
Kenmerken
Overdracht
- Laatste huurprijs
- € 1.950 per maand
- Aangeboden sinds
- 
        
- Status
- Verhuurd
Bouw
- Hoofdfunctie
- Winkel met showroom
- Soort bouw
- Bestaande bouw
- Bouwjaar
- 1904
Oppervlakten
- Oppervlakte
- 120 m²
- Verkoopvloeroppervlakte
- 100 m²
- Breedte gevel
- 5 m
Indeling
- Aantal bouwlagen
- 2 bouwlagen
Energie
- Energielabel
- Niet beschikbaar
Omgeving
- Ligging
- Winkelcentrum en in woonwijk
- Bereikbaarheid
- Bushalte op minder dan 500 m, snelwegafrit op 3000 m tot 4000 m en Tramhalte op minder dan 500 m
- Lokale voorzieningen
- Restaurant op minder dan 500 m en winkel op minder dan 500 m
- Bijdrage winkeliersvereniging
- Nee
- Welstandsklasse
- B1
Foto's
 
                     
                     
                     
                     
                     
                     
                     
                     
                     
                     
                     
                     
                     
                     
                     
                     
                     
                    