Mariënhoef 5 3851 ST Ermelo
- Verkocht
€ 1.050.000 k.k.
Omschrijving
TE KOOP
Marienhoef 5 te Ermelo
OBJECT
Het bedrijfspand bestaat uit een showroomruimte verdeeld over drie bouwlagen en is nu in gebruik t.b.v. woninginrichting maar van oorsprong gebouwd als bedrijfshal met kantoorverdiepingen. Door de aanwezigheid van de oorspronkelijke elementen, zoals de overheaddeuren, is de indeling flexibel te noemen.
LIGGING EN BEREIKBAARHEID
Gelegen op bedrijventerrein "Veldzicht" in Ermelo. Het bedrijfspand sluit direct aan op de nieuwe weg die vanuit het bedrijventerrein "Veldzicht" de Fokko Kortlanglaan passeert en aansluit op de Groene Zoomweg (rotonde direct ten westen van de N303/Harderwijkerweg) met de op- en afritten van de rijksweg A28 (Zwolle-Amersfoort) op een paar minuten afstand. Tevens is het openbaar vervoer (busverbinding) op loopafstand te bereiken.
PARKEREN
Er is voldoende parkeergelegenheid op eigen terrein (ca. 15 stuks).
BOUWJAAR
ca. 2007.
BESTEMMING
Marienhoef 5 valt onder het bestemmingsplan "Bedrijventerrein Veldzicht 2012 " en heeft de bestemming bedrijventerrein met de functieaanduidingen "bedrijf tot en met categorie 3.2" o.a bestemd voor:
handels- en groothandelsbedrijven, ambachtelijke en nijverheidsbedrijven, dienstverlenende bedrijven en perifere detailhandel met dien verstande, dat het gaat om bedrijfsactiviteiten vanaf categorie 1 tot en met de met de aanduiding 'bedrijf tot en met categorie' aangegeven milieucategorie en voor zover deel uitmakend van de bijbehorende Staat van Bedrijfsactiviteiten en daarmee gelijk te stellen bedrijfsactiviteiten.
VLOEROPPERVLAKTE
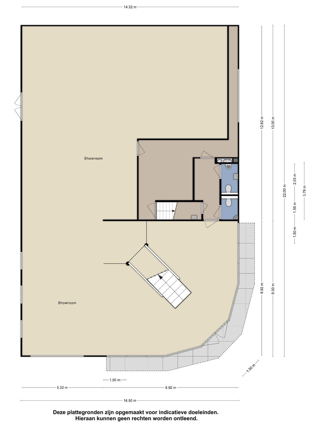
Showroom bestaande uit drie bouwlagen in totaal; 897 m²:
- ca. 299 m² begane grond inclusief toiletgroepen;
- ca. 299 m² 1e verdieping;
- ca. 299 m² 2e verdieping.
INDELING
Begane grond:
Entree, showroom/ winkelruimte, toiletgroepen, trap naar de 1e verdieping
1e Verdieping:
Open showroomruimte, deur naar opslagruimte en intern trappenhuis.
2e verdieping:
Open showroomruimte, deur naar opslagruimte en intern trappenhuis.
VOORZIENINGEN
- meterkast met aansluitingen op de nutsvoorzieningen tot de meter;
- toiletgroepen;
- pantry;
- CV-installatie, vloerverwarming;
- Ca. 100 zonnepanelen;
- systeemplafond met led verlichting;
- airconditioning;
- plavuizenvloer;
- mechanische ventilatie;
- alarminstallatie.
ENERGIELABEL
A++, geldig t/m 23 mei 2035
KADASTRALE GEGEVENS
Gemeente Ermelo
Sectie K
Nummer 1799
Groot 958 m².
VRAAGPRIJS
€ 1.050.000,-- k.k.
PROJECTWEBSITE
OPLEVERING
In huidige staat "as is where is ".
AANVAARDING
In overleg.
CONTRACT
Model koopovereenkomst voor Bedrijfs-onroerend goed (model 2023).
BANKGARANTIE/WAARBORGSOM
10% van de koopsom, te storten bij ondertekening van de koopovereenkomst, vervalt op de dag van notarieel transport.
OVERDRACHTSBELASTING
Over de koopsom is overdrachtsbelasting door koper verschuldigd.
OMZETBELASTING
Over de koopsom is geen omzetbelasting verschuldigd.
WET TER VOORKOMING VAN WITWASSEN EN FINANCIEREN VAN TERRORISME
Als makelaar en taxateur zijn wij verplicht om aan de richtlijnen van de Wet ter voorkoming van witwassen en financieren terrorisme (Wwft) te voldoen. Naar aanleiding van bovenstaande wetgeving dienen wij van verkopers en kopers een cliëntonderzoek uit te voeren, waarvoor door koper een kopie geldig legitimatiebewijs van de tekenbevoegde (zonder foto en BSN) dient te worden aangeleverd.
PRIVACY
Brandt Bedrijfsmakelaars respecteert uw recht op privacy en garandeert dat uw persoons- en bedrijfsgegevens op een vertrouwelijke en verantwoordelijke wijze zullen worden behandeld, overeenkomstig de richtlijnen uit de Algemene Verordening Gegevensbescherming (AVG).
DISCLAIMER
Nadrukkelijk is vermeld dat deze informatieverstrekking niet als een aanbieding of offerte mag worden beschouwd. Aan deze gegevens kunnen geen rechten worden ontleend.
Marienhoef 5 te Ermelo
OBJECT
Het bedrijfspand bestaat uit een showroomruimte verdeeld over drie bouwlagen en is nu in gebruik t.b.v. woninginrichting maar van oorsprong gebouwd als bedrijfshal met kantoorverdiepingen. Door de aanwezigheid van de oorspronkelijke elementen, zoals de overheaddeuren, is de indeling flexibel te noemen.
LIGGING EN BEREIKBAARHEID
Gelegen op bedrijventerrein "Veldzicht" in Ermelo. Het bedrijfspand sluit direct aan op de nieuwe weg die vanuit het bedrijventerrein "Veldzicht" de Fokko Kortlanglaan passeert en aansluit op de Groene Zoomweg (rotonde direct ten westen van de N303/Harderwijkerweg) met de op- en afritten van de rijksweg A28 (Zwolle-Amersfoort) op een paar minuten afstand. Tevens is het openbaar vervoer (busverbinding) op loopafstand te bereiken.
PARKEREN
Er is voldoende parkeergelegenheid op eigen terrein (ca. 15 stuks).
BOUWJAAR
ca. 2007.
BESTEMMING
Marienhoef 5 valt onder het bestemmingsplan "Bedrijventerrein Veldzicht 2012 " en heeft de bestemming bedrijventerrein met de functieaanduidingen "bedrijf tot en met categorie 3.2" o.a bestemd voor:
handels- en groothandelsbedrijven, ambachtelijke en nijverheidsbedrijven, dienstverlenende bedrijven en perifere detailhandel met dien verstande, dat het gaat om bedrijfsactiviteiten vanaf categorie 1 tot en met de met de aanduiding 'bedrijf tot en met categorie' aangegeven milieucategorie en voor zover deel uitmakend van de bijbehorende Staat van Bedrijfsactiviteiten en daarmee gelijk te stellen bedrijfsactiviteiten.
VLOEROPPERVLAKTE
Showroom bestaande uit drie bouwlagen in totaal; 897 m²:
- ca. 299 m² begane grond inclusief toiletgroepen;
- ca. 299 m² 1e verdieping;
- ca. 299 m² 2e verdieping.
INDELING
Begane grond:
Entree, showroom/ winkelruimte, toiletgroepen, trap naar de 1e verdieping
1e Verdieping:
Open showroomruimte, deur naar opslagruimte en intern trappenhuis.
2e verdieping:
Open showroomruimte, deur naar opslagruimte en intern trappenhuis.
VOORZIENINGEN
- meterkast met aansluitingen op de nutsvoorzieningen tot de meter;
- toiletgroepen;
- pantry;
- CV-installatie, vloerverwarming;
- Ca. 100 zonnepanelen;
- systeemplafond met led verlichting;
- airconditioning;
- plavuizenvloer;
- mechanische ventilatie;
- alarminstallatie.
ENERGIELABEL
A++, geldig t/m 23 mei 2035
KADASTRALE GEGEVENS
Gemeente Ermelo
Sectie K
Nummer 1799
Groot 958 m².
VRAAGPRIJS
€ 1.050.000,-- k.k.
PROJECTWEBSITE
OPLEVERING
In huidige staat "as is where is ".
AANVAARDING
In overleg.
CONTRACT
Model koopovereenkomst voor Bedrijfs-onroerend goed (model 2023).
BANKGARANTIE/WAARBORGSOM
10% van de koopsom, te storten bij ondertekening van de koopovereenkomst, vervalt op de dag van notarieel transport.
OVERDRACHTSBELASTING
Over de koopsom is overdrachtsbelasting door koper verschuldigd.
OMZETBELASTING
Over de koopsom is geen omzetbelasting verschuldigd.
WET TER VOORKOMING VAN WITWASSEN EN FINANCIEREN VAN TERRORISME
Als makelaar en taxateur zijn wij verplicht om aan de richtlijnen van de Wet ter voorkoming van witwassen en financieren terrorisme (Wwft) te voldoen. Naar aanleiding van bovenstaande wetgeving dienen wij van verkopers en kopers een cliëntonderzoek uit te voeren, waarvoor door koper een kopie geldig legitimatiebewijs van de tekenbevoegde (zonder foto en BSN) dient te worden aangeleverd.
PRIVACY
Brandt Bedrijfsmakelaars respecteert uw recht op privacy en garandeert dat uw persoons- en bedrijfsgegevens op een vertrouwelijke en verantwoordelijke wijze zullen worden behandeld, overeenkomstig de richtlijnen uit de Algemene Verordening Gegevensbescherming (AVG).
DISCLAIMER
Nadrukkelijk is vermeld dat deze informatieverstrekking niet als een aanbieding of offerte mag worden beschouwd. Aan deze gegevens kunnen geen rechten worden ontleend.
Kenmerken
Overdracht
- Laatste vraagprijs
- € 1.050.000 kosten koper
- Aangeboden sinds
-
- Status
- Verkocht
Bouw
- Hoofdfunctie
- Winkel met showroom
- Soort bouw
- Bestaande bouw
- Bouwjaar
- 2007
Oppervlakten
- Oppervlakte
- 897 m²
- Verkoopvloeroppervlakte
- 897 m²
- Breedte gevel
- 15 m
- Perceel
- 958 m²
Indeling
- Aantal bouwlagen
- 3 bouwlagen
Energie
- Energielabel
- A++
Omgeving
- Ligging
- Bedrijventerrein
- Bereikbaarheid
- NS Intercitystation op 4000 m tot 5000 m en snelwegafrit op 2000 m tot 3000 m
- Bijdrage winkeliersvereniging
- Nee
- Welstandsklasse
- A2
NVM makelaar
Foto's