Krugerlaan 67 3701 JP Zeist
€ 595.000 k.k.
Omschrijving
Aan de rustige Krugerlaan, daar waar deze overgaat in de de gezellige Steynlaan, ligt deze verrassend ruime casco woning uit 1907 met een aansluiting van drie keer 250 Ampere. Het object ligt in de buurt Carré, dichtbij het centrum en heeft een netto gebruiksoppervlakte van maar liefst bijna 240m2!. Door de gemengde bestemming is het mogelijk om het gehele object als woning te gebruiken maar eveneens voor bijvoorbeeld maatschappelijke, retail- en/of horeca-doeleinden! Kortom een heerlijk ruim pand met vele gebruiksmogelijkheden zoals wonen en/of werken dan wel een combinatie hiervan. De ruim 12 meter diepe achtertuin ligt op het zonnige zuidwesten en heeft een grote veranda en achterom. Aan de voorzijde is er nog kleine buitenruimte aan de zijzijde van het pand en is er aan de voorzijde eveneens een groot breed trottoir.
De Krugerlaan is een rustige laan, gelegen tegen het centrum van Zeist met een grote verscheidenheid aan winkels en gezellige restaurants. En dit allemaal binnen loopafstand! Daarnaast zijn er vlakbij fraaie Zeister wandelbossen op een paar minuten fietsen, NS station op een klein kwartiertje fietsen.
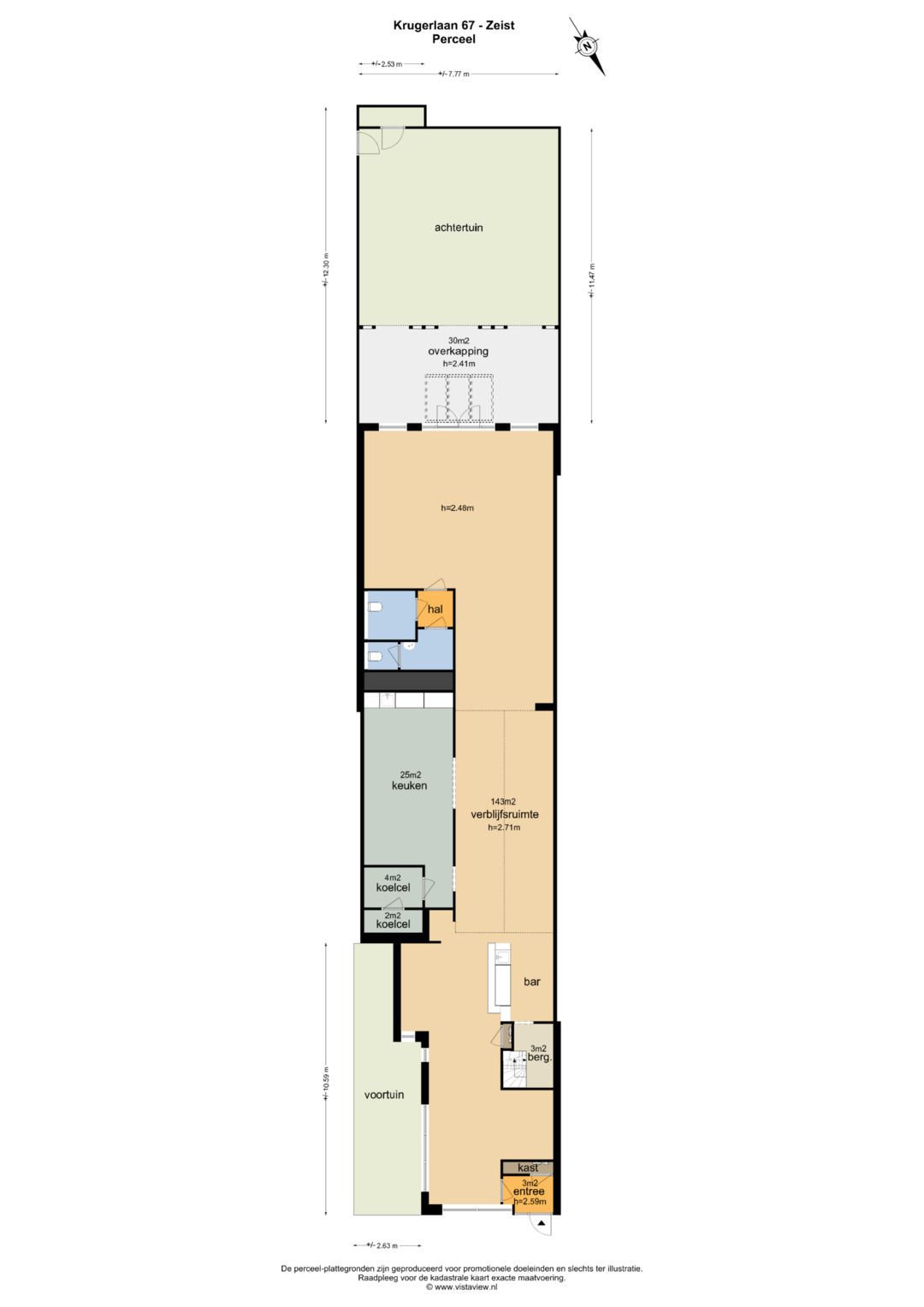
Globale indeling:
Entree, grote openruimte, toiletruimte, voormalige barruimte en een ruime keukenruimte. Het pand is aan de achterzijde fors uitgebouwd en heeft aan de achterzijde openslaande deuren naar de zonnige op het zuidwesten gelegen tuin/terras met achterom. Via een vaste trap is de open verdieping te bereiken met 2 kamers aan de voorzijde en een ruime bergzolder. De begane grond en verdieping kunnen die op vele manieren (her-) ingedeeld worden.
Bijzonderheden
- Het object dient binnen verder afgebouwd te worden naar eigen wensen, inzicht en ideeën en biedt vele gebruiksmogelijkheden
- Object beschikt over een aansluiting van drie keer 100 ampere
- Thans is het object binnen nagenoeg casco staat
- Het heeft een gemengde bestemming waardoor detailhandel, maatschappelijk, dienstverlening, horeca (cat 1-3) maar ook geheel als woonhuis kan worden gebruikt
- In de koopovereenkomst zal een ouderdoms- en niet eigen bewoningsclausule worden opgenomen
- Er kan geparkeerd worden door middel van parkeervergunningen en of betaald parkeren
- Om de hoek zijn er twee verschillende basisscholen aanwezig
- Er zal worden geleverd in de huidige staat,"as is where is", aan de koper
De Krugerlaan is een rustige laan, gelegen tegen het centrum van Zeist met een grote verscheidenheid aan winkels en gezellige restaurants. En dit allemaal binnen loopafstand! Daarnaast zijn er vlakbij fraaie Zeister wandelbossen op een paar minuten fietsen, NS station op een klein kwartiertje fietsen.
Globale indeling:
Entree, grote openruimte, toiletruimte, voormalige barruimte en een ruime keukenruimte. Het pand is aan de achterzijde fors uitgebouwd en heeft aan de achterzijde openslaande deuren naar de zonnige op het zuidwesten gelegen tuin/terras met achterom. Via een vaste trap is de open verdieping te bereiken met 2 kamers aan de voorzijde en een ruime bergzolder. De begane grond en verdieping kunnen die op vele manieren (her-) ingedeeld worden.
Bijzonderheden
- Het object dient binnen verder afgebouwd te worden naar eigen wensen, inzicht en ideeën en biedt vele gebruiksmogelijkheden
- Object beschikt over een aansluiting van drie keer 100 ampere
- Thans is het object binnen nagenoeg casco staat
- Het heeft een gemengde bestemming waardoor detailhandel, maatschappelijk, dienstverlening, horeca (cat 1-3) maar ook geheel als woonhuis kan worden gebruikt
- In de koopovereenkomst zal een ouderdoms- en niet eigen bewoningsclausule worden opgenomen
- Er kan geparkeerd worden door middel van parkeervergunningen en of betaald parkeren
- Om de hoek zijn er twee verschillende basisscholen aanwezig
- Er zal worden geleverd in de huidige staat,"as is where is", aan de koper
Kenmerken
Overdracht
- Vraagprijs
- € 595.000 kosten koper
- Aangeboden sinds
-
- Status
- Beschikbaar
- Aanvaarding
- In overleg
Bouw
- Hoofdfunctie
- Bedrijfshal
- Mogelijke functie(s)
- Winkelruimte
- Soort bouw
- Bestaande bouw
- Bouwjaar
- 1907
Oppervlakten
- Oppervlakte
- 239 m²
- Verkoopvloeroppervlakte
- 239 m²
- Perceel
- 338 m²
Indeling
- Aantal bouwlagen
- 2 bouwlagen
Energie
- Energielabel
- E
Omgeving
- Ligging
- Stadscentrum/dorpskern
- Bereikbaarheid
- Bushalte op minder dan 500 m, NS Intercitystation op 1500 m tot 2000 m en snelwegafrit op 1000 m tot 1500 m
Foto's