Sint Laurensstraat 7-A 1811 KM Alkmaar
€ 2.650 /mnd

Omschrijving
TE HUUR!
Gelegen op een unieke locatie in het historische centrum van Alkmaar in het kantoorgebouw “Princenhof” bieden wij ca. 148 m² VVO kantoorruimte aan gelegen op de begane grond. Dit karakteristieke kantoorgebouw is ontworpen door Alexander Kropholler samen met het “Hooge Huys”, beide bekende objecten in de binnenstad van Alkmaar.
Door de hoge plafonds en de raampartijen rondom is het zeer aangenaam werken in deze kantoorruimte. Als u naar buiten stapt, dan stapt u meteen de gezelligheid van Alkmaar in. Direct voor het object zijn de gezellige terrassen van Alkmaar gelegen en binnen 50 meter bereikt u de hoofdwinkelstraat van Alkmaar, de Langestraat.
Kortom, een uitgelezen kans om uw bedrijf hier te vestigen.
Huurprijs
€ 2.650,- per maand, excl. BTW.
Servicekosten
Een vast bedrag ter grootte van € 300,- excl. BTW per maand ten behoeve van de VVE bijdrage.
Tevens wordt Huurder zelf contribuant van de Nutsleveranciers.
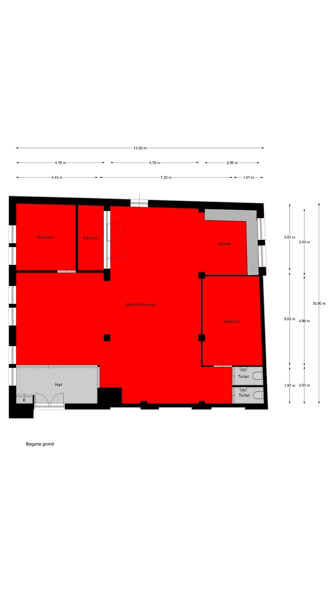
Inhoudsbeschrijving
Middels de statige entree bereikt u de kantoorruimte direct aan de linkerzijde van het object. U komt binnen in het voorportaal waar eventueel een wachtruimte gecreëerd kan worden. Vervolgens komt u in de kantoortuin met in totaal drie spreekkamers, een zeer riante keuken met inbouwapparatuur en een dames en heren toilet. Tevens beschikt de kantoorruimte over een eigen berging en is het mogelijk om fietsen te stallen in de overdekte fietsenstalling in de kelder.
Opleveringsniveau
In de huidige staat, leeg en ontruimd.
Installaties
- Vloerverwarming;
- Intercom;
- Voldoende stroom- en datapunten;
- Dames en herentoilet met fonteintjes;
- Riante keuken v.v. vaatwasser, twee koelkasten, oven, gastoestel en afzuigkap.
Parkeren
Voldoende parkeermogelijkheden rondom het object op straat of in één van de parkeergarages (De Vest of Grote Kerk).
Bereikbaarheid
Het object bevindt zich in de binnenstad van Alkmaar en is uitstekend bereikbaar met zowel de auto, fiets of openbaar vervoer.
Kadastrale gegevens
Gemeente: Alkmaar.
Sectie: A.
Nummer: 5412 A4.
Bouwjaar
1931, conform de BAG Viewer van het Kadaster.
Energielabel
Van het aangeboden object is geen energielabel beschikbaar. Het object is een Rijksmonument en daarom niet labelplichtig.
Bestemming
Bij de gemeente Alkmaar valt het perceel binnen het bestemmingsplan “Binnenstad Centrum”. Dit houdt in dat het perceel bestemd is voor “Kantoor, maatschappelijk, dienstverlening etc.”. Bij twijfel over het toestaan van uw bedrijfsvoering adviseren wij u zelf contact op te nemen met de Gemeente Alkmaar of via het Omgevingsloket.
Model overeenkomst
Naar meest recente model van de Raad voor Onroerende Zaken (ROZ),
Een bankgarantie of waarborgsom ter grootte van drie maanden huurverplichting (inclusief de verschuldigde BTW en servicekosten en de daarover verschuldigde BTW*).
*De BTW is uitsluitend bedoeld om de hoogte van de zekerheidsstelling te bepalen en kan niet in de BTW administratie worden opgenomen.
Huurtermijn
Uitgangspunt is 5 + 5 jaar, afwijkende termijn in overleg.
Aanvaarding
Beschikbaar per 1 januari 2026.
BTW
De huurprijs is gebaseerd op het feit dat de huurder het gehuurde blijvend gebruikt of blijvend laat gebruiken voor doeleinden waarvoor een volledig of minimaal een in de Wet op de Omzetbelasting 1968 genoemd percentage recht op aftrek van de omzetbelasting op de voet van artikel 15 van de Wet op de Omzetbelasting 1968.
Indexering
Jaarlijks, voor het eerst een jaar na huuringangsdatum, conform de reeks consumentenprijsindexcijfers (CPI Alle Huishoudens), zoals gepubliceerd door het Centraal Bureau voor de Statistiek op basis van het meest recente prijsindexcijfer (thans 2015=100).
Huurprijsbetaling
In maandtermijnen bij vooruitbetaling te voldoen.
Voorbehoud
Goedkeuring en gunning eigenaar.
Alle informatie is geheel vrijblijvend en houdt enkel in een uitnodiging tot het doen van een bieding. Alle gegevens zijn met zorg samengesteld en uit ons inziens betrouwbare bron afkomstig. Ten aanzien van de juistheid ervan kunnen wij echter geen aansprakelijkheid aanvaarden.
Gelegen op een unieke locatie in het historische centrum van Alkmaar in het kantoorgebouw “Princenhof” bieden wij ca. 148 m² VVO kantoorruimte aan gelegen op de begane grond. Dit karakteristieke kantoorgebouw is ontworpen door Alexander Kropholler samen met het “Hooge Huys”, beide bekende objecten in de binnenstad van Alkmaar.
Door de hoge plafonds en de raampartijen rondom is het zeer aangenaam werken in deze kantoorruimte. Als u naar buiten stapt, dan stapt u meteen de gezelligheid van Alkmaar in. Direct voor het object zijn de gezellige terrassen van Alkmaar gelegen en binnen 50 meter bereikt u de hoofdwinkelstraat van Alkmaar, de Langestraat.
Kortom, een uitgelezen kans om uw bedrijf hier te vestigen.
Huurprijs
€ 2.650,- per maand, excl. BTW.
Servicekosten
Een vast bedrag ter grootte van € 300,- excl. BTW per maand ten behoeve van de VVE bijdrage.
Tevens wordt Huurder zelf contribuant van de Nutsleveranciers.
Inhoudsbeschrijving
Middels de statige entree bereikt u de kantoorruimte direct aan de linkerzijde van het object. U komt binnen in het voorportaal waar eventueel een wachtruimte gecreëerd kan worden. Vervolgens komt u in de kantoortuin met in totaal drie spreekkamers, een zeer riante keuken met inbouwapparatuur en een dames en heren toilet. Tevens beschikt de kantoorruimte over een eigen berging en is het mogelijk om fietsen te stallen in de overdekte fietsenstalling in de kelder.
Opleveringsniveau
In de huidige staat, leeg en ontruimd.
Installaties
- Vloerverwarming;
- Intercom;
- Voldoende stroom- en datapunten;
- Dames en herentoilet met fonteintjes;
- Riante keuken v.v. vaatwasser, twee koelkasten, oven, gastoestel en afzuigkap.
Parkeren
Voldoende parkeermogelijkheden rondom het object op straat of in één van de parkeergarages (De Vest of Grote Kerk).
Bereikbaarheid
Het object bevindt zich in de binnenstad van Alkmaar en is uitstekend bereikbaar met zowel de auto, fiets of openbaar vervoer.
Kadastrale gegevens
Gemeente: Alkmaar.
Sectie: A.
Nummer: 5412 A4.
Bouwjaar
1931, conform de BAG Viewer van het Kadaster.
Energielabel
Van het aangeboden object is geen energielabel beschikbaar. Het object is een Rijksmonument en daarom niet labelplichtig.
Bestemming
Bij de gemeente Alkmaar valt het perceel binnen het bestemmingsplan “Binnenstad Centrum”. Dit houdt in dat het perceel bestemd is voor “Kantoor, maatschappelijk, dienstverlening etc.”. Bij twijfel over het toestaan van uw bedrijfsvoering adviseren wij u zelf contact op te nemen met de Gemeente Alkmaar of via het Omgevingsloket.
Model overeenkomst
Naar meest recente model van de Raad voor Onroerende Zaken (ROZ),
Een bankgarantie of waarborgsom ter grootte van drie maanden huurverplichting (inclusief de verschuldigde BTW en servicekosten en de daarover verschuldigde BTW*).
*De BTW is uitsluitend bedoeld om de hoogte van de zekerheidsstelling te bepalen en kan niet in de BTW administratie worden opgenomen.
Huurtermijn
Uitgangspunt is 5 + 5 jaar, afwijkende termijn in overleg.
Aanvaarding
Beschikbaar per 1 januari 2026.
BTW
De huurprijs is gebaseerd op het feit dat de huurder het gehuurde blijvend gebruikt of blijvend laat gebruiken voor doeleinden waarvoor een volledig of minimaal een in de Wet op de Omzetbelasting 1968 genoemd percentage recht op aftrek van de omzetbelasting op de voet van artikel 15 van de Wet op de Omzetbelasting 1968.
Indexering
Jaarlijks, voor het eerst een jaar na huuringangsdatum, conform de reeks consumentenprijsindexcijfers (CPI Alle Huishoudens), zoals gepubliceerd door het Centraal Bureau voor de Statistiek op basis van het meest recente prijsindexcijfer (thans 2015=100).
Huurprijsbetaling
In maandtermijnen bij vooruitbetaling te voldoen.
Voorbehoud
Goedkeuring en gunning eigenaar.
Alle informatie is geheel vrijblijvend en houdt enkel in een uitnodiging tot het doen van een bieding. Alle gegevens zijn met zorg samengesteld en uit ons inziens betrouwbare bron afkomstig. Ten aanzien van de juistheid ervan kunnen wij echter geen aansprakelijkheid aanvaarden.
Kenmerken
Overdracht
- Huurprijs
- € 2.650 per maand
- Servicekosten
- € 300 per maand (21% BTW van toepassing)
- Aangeboden sinds
-
- Status
- Beschikbaar
- Aanvaarding
- Beschikbaar per 1-1-2026
Bouw
- Hoofdfunctie
- Kantoor
- Mogelijke functie(s)
- Zorginstelling en praktijkruimte
- Soort bouw
- Bestaande bouw
- Bouwjaar
- 1931
Oppervlakten
- Oppervlakte
- 148 m²
Energie
- Energielabel
- Niet beschikbaar
Omgeving
- Ligging
- Stadscentrum/dorpskern
Foto's

























Plattegrond
Begane grond
