Noorderwerf 4 2804 LR Gouda
€ 1.750 /mnd
Omschrijving
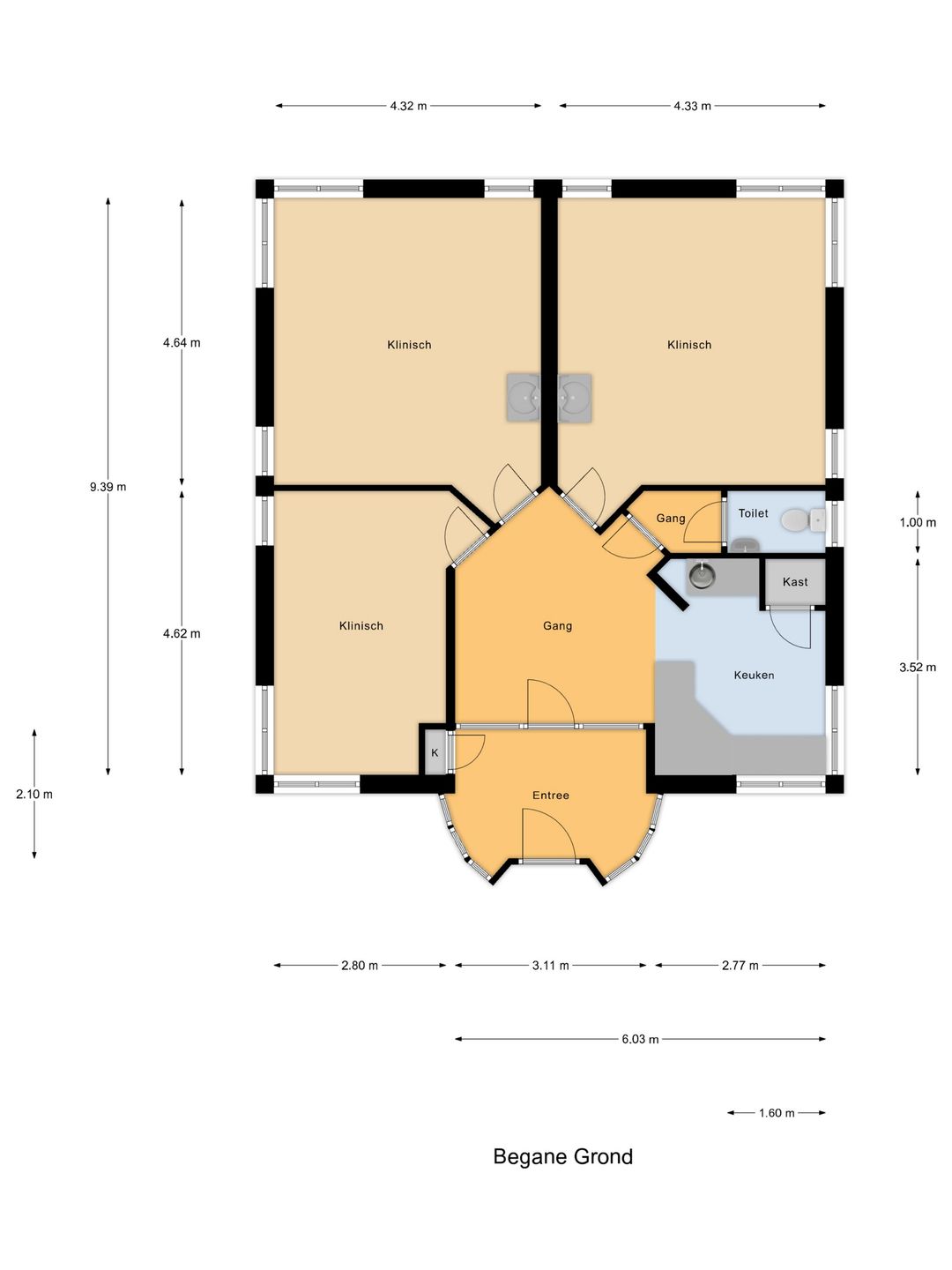
Aan de Noorderwerf te Gouda is een vrijstaande en gelijkvloerse praktijkruimte beschikbaar. Het totale oppervlak bedraagt circa 85 m² en de huidige indeling biedt plaats aan 3 behandelkamers. Het pand is uitgevoerd in lichtgrijze metselsteen en beschikt over een markante entree. De ruimten zijn praktisch ingedeeld en voorzien van veel daglicht, onder meer door grote hoekramen. Bij het object behoort een voorterrein met 4 eigen parkeerplaatsen.
Locatie/ Bereikbaarheid:
Uitstekende bereikbaarheid, zowel met de auto als met het openbaar vervoer. De Noorderwerf is gunstig gesitueerd ten opzichte van de grote steden Den Haag, Utrecht en Rotterdam. Het object is met eigen vervoer goed bereikbaar via de uitvalswegen met snelle aansluiting op de rijkswegen A12 en A20. Openbaar vervoer is aanwezig via busverbindingen in de directe omgeving met aansluiting richting station Gouda.
Oppervlakte:
Circa 85 m², geheel gelegen op de begane grond.
Parkeren:
4 parkeerplaatsen op eigen terrein.
Gebruiksmogelijkheden:
Praktijkruimte - Maatschappelijk.
Opleveringsniveau:
In de huidige staat, 'as is, where is', doch is reeds voorzien van:
- representatieve entree;
- pantry;
- radiatoren;
- betegelde vloerafwerking;
- airconditioning;
- verlichtingsarmaturen;
- betegelde toiletruimte met fontein;
- wastafels in de behandelkamers.
Energielabel:
Het pand beschikt over een energielabel C.
Oplevering:
In overleg, per direct.
Huurprijs:
€ 1.750,- per maand, te vermeerderen met de wettelijk verschuldigde omzetbelasting en servicekosten.
Huurprijsherziening:
Jaarlijks, voor het eerst één jaar na ingangsdatum van de huurovereenkomst, op basis van de wijziging van het maandindexcijfer volgens de consumentenprijsindex (CPI) reeks “alle huishoudens” (2000=100), gepubliceerd door het Centraal Bureau voor de Statistiek (CBS).
Zekerheidsstelling:
Een bankgarantie of waarborgsom ter grootte van een betalingsverplichting van 3 maanden huur te vermeerderen met de wettelijke omzetbelasting en servicekosten.
Huurcontract:
Huurovereenkomst conform het standaardmodel van de Raad voor Onroerende Zaken (ROZ), zoals gehanteerd door de Nederlandse Vereniging voor Makelaars (NVM).
BTW:
Huurder garandeert aan verhuurder dat hij het huurobject per datum van ingang van de huurovereenkomst voor tenminste het bij de wet vastgestelde minimumpercentage blijvend zal gebruiken voor doeleinden die recht geven op aftrek van BTW.
Huurder zal op eerste verzoek van verhuurder per ommegaande een onherroepelijke volmacht aan verhuurder en zijn eventuele rechtsopvolger(s) verlenen om mede namens hem een optieverzoek tot belaste verhuur in te dienen. Indien huurder echter niet (meer) voldoet aan de wettelijke criteria voor belaste verhuur of een optieverzoek tot belaste verhuur niet (meer) door de inspecteur der belastingen wordt gehonoreerd, dan zal huurder het gehele daardoor financieel te lijden nadeel voor verhuurder aan verhuurder vergoeden, overeenkomstig de ter zake op te nemen bijzondere bepalingen van de huurovereenkomst.
Huurtermijn:
5 jaar met aansluitend een optietermijn van telkens 5 jaar.
Huurbetaling:
Per kwartaal vooruit.
Bijzonderheden:
Elke transactie behoeft de nadrukkelijke goedkeuring van eigenaar.
Disclaimer:
Er kunnen op geen enkele wijze rechten worden ontleend aan, noch aanspraak gemaakt worden op de inhoud van deze website. De verstrekte informatie is van algemene aard en uitsluitend bedoeld ter indicatie. Hoewel deze informatie met de grootst mogelijke zorgvuldigheid is samengesteld, aanvaarden wij geen aansprakelijkheid voor mogelijke onjuistheden of onvolledigheden. Alle informatie op deze website is onder voorbehoud en kan zonder nadere aankondiging worden gewijzigd. Wij raden geïnteresseerden aan om bij concrete interesse de juistheid van de informatie zelf te verifiëren en adviseren om juridisch advies in te winnen alvorens over te gaan tot een huurovereenkomst.
Locatie/ Bereikbaarheid:
Uitstekende bereikbaarheid, zowel met de auto als met het openbaar vervoer. De Noorderwerf is gunstig gesitueerd ten opzichte van de grote steden Den Haag, Utrecht en Rotterdam. Het object is met eigen vervoer goed bereikbaar via de uitvalswegen met snelle aansluiting op de rijkswegen A12 en A20. Openbaar vervoer is aanwezig via busverbindingen in de directe omgeving met aansluiting richting station Gouda.
Oppervlakte:
Circa 85 m², geheel gelegen op de begane grond.
Parkeren:
4 parkeerplaatsen op eigen terrein.
Gebruiksmogelijkheden:
Praktijkruimte - Maatschappelijk.
Opleveringsniveau:
In de huidige staat, 'as is, where is', doch is reeds voorzien van:
- representatieve entree;
- pantry;
- radiatoren;
- betegelde vloerafwerking;
- airconditioning;
- verlichtingsarmaturen;
- betegelde toiletruimte met fontein;
- wastafels in de behandelkamers.
Energielabel:
Het pand beschikt over een energielabel C.
Oplevering:
In overleg, per direct.
Huurprijs:
€ 1.750,- per maand, te vermeerderen met de wettelijk verschuldigde omzetbelasting en servicekosten.
Huurprijsherziening:
Jaarlijks, voor het eerst één jaar na ingangsdatum van de huurovereenkomst, op basis van de wijziging van het maandindexcijfer volgens de consumentenprijsindex (CPI) reeks “alle huishoudens” (2000=100), gepubliceerd door het Centraal Bureau voor de Statistiek (CBS).
Zekerheidsstelling:
Een bankgarantie of waarborgsom ter grootte van een betalingsverplichting van 3 maanden huur te vermeerderen met de wettelijke omzetbelasting en servicekosten.
Huurcontract:
Huurovereenkomst conform het standaardmodel van de Raad voor Onroerende Zaken (ROZ), zoals gehanteerd door de Nederlandse Vereniging voor Makelaars (NVM).
BTW:
Huurder garandeert aan verhuurder dat hij het huurobject per datum van ingang van de huurovereenkomst voor tenminste het bij de wet vastgestelde minimumpercentage blijvend zal gebruiken voor doeleinden die recht geven op aftrek van BTW.
Huurder zal op eerste verzoek van verhuurder per ommegaande een onherroepelijke volmacht aan verhuurder en zijn eventuele rechtsopvolger(s) verlenen om mede namens hem een optieverzoek tot belaste verhuur in te dienen. Indien huurder echter niet (meer) voldoet aan de wettelijke criteria voor belaste verhuur of een optieverzoek tot belaste verhuur niet (meer) door de inspecteur der belastingen wordt gehonoreerd, dan zal huurder het gehele daardoor financieel te lijden nadeel voor verhuurder aan verhuurder vergoeden, overeenkomstig de ter zake op te nemen bijzondere bepalingen van de huurovereenkomst.
Huurtermijn:
5 jaar met aansluitend een optietermijn van telkens 5 jaar.
Huurbetaling:
Per kwartaal vooruit.
Bijzonderheden:
Elke transactie behoeft de nadrukkelijke goedkeuring van eigenaar.
Disclaimer:
Er kunnen op geen enkele wijze rechten worden ontleend aan, noch aanspraak gemaakt worden op de inhoud van deze website. De verstrekte informatie is van algemene aard en uitsluitend bedoeld ter indicatie. Hoewel deze informatie met de grootst mogelijke zorgvuldigheid is samengesteld, aanvaarden wij geen aansprakelijkheid voor mogelijke onjuistheden of onvolledigheden. Alle informatie op deze website is onder voorbehoud en kan zonder nadere aankondiging worden gewijzigd. Wij raden geïnteresseerden aan om bij concrete interesse de juistheid van de informatie zelf te verifiëren en adviseren om juridisch advies in te winnen alvorens over te gaan tot een huurovereenkomst.
Kenmerken
Overdracht
- Huurprijs
- € 1.750 per maand
- Aangeboden sinds
-
- Status
- Beschikbaar
- Aanvaarding
- Per direct beschikbaar
Bouw
- Hoofdfunctie
- Zorginstelling
- Mogelijke functie(s)
- Praktijkruimte
- Soort bouw
- Bestaande bouw
- Bouwjaar
- 1990
Oppervlakten
- Oppervlakte
- 85 m²
- Perceel
- 240 m²
Energie
- Energielabel
- C
Omgeving
- Ligging
- In woonwijk
- Bereikbaarheid
- Bushalte op minder dan 500 m, NS Intercitystation op minder dan 500 m en snelwegafrit op 2000 m tot 3000 m
Parkeergelegenheid
- Parkeerplaatsen
- 4 niet-overdekte parkeerplaatsen
Foto's