Radiostraat 23 5021 LK Tilburg
€ 49.500 /jr
Omschrijving
Algemeen
Radiostraat 23 is gelegen in de wijk Broekhoven, een karakteristieke en levendige woonwijk aan de zuidzijde van het Tilburgse centrum, op het VOLT-terrein. Het VOLT-terrein biedt ruimte aan diverse ondernemers, creatieve bedrijven en kleinschalige initiatieven, waardoor een levendige sfeer is ontstaan.
Voor de dagelijkse boodschappen bevinden supermarkten, speciaalzaken en horecagelegenheden zich op korte afstand, onder andere aan de Broekhovenseweg en rondom het Koningsplein. De bereikbaarheid is uitstekend. Het centrum van Tilburg en het Centraal Station zijn binnen enkele minuten per fiets bereikbaar. Daarnaast zijn er goede busverbindingen in de directe omgeving. Via de nabijgelegen Ringbaan Zuid is er een snelle aansluiting op de uitvalswegen richting Eindhoven, Breda en ’s-Hertogenbosch.
Bouwjaar
Gebouwd in 2020.
Vloeroppervlakte:
Kantoorruimte begane grond : ca. 418 m²
Bestemming:
Het object valt binnen het bestemmingsplan “Transvaalplein e.o. 2008”, vastgesteld op 15 mei 2009, waarin het de bestemming “maatschappelijk” heeft gekregen met de aanduiding “gemengd-1, maatschappelijk en horeca 2”. Eigenaar heeft schriftelijke goedkeuring van de gemeente om het geheel als kantoorruimte te mogen gebruiken. Voor een afschrift van dit bestemmingsplan kunt u contact met ons kantoor opnemen.
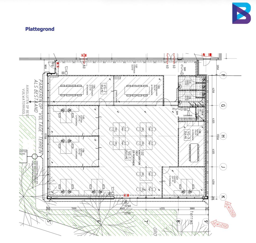
Indeling
Eigen entree, centrale hal met toegang tot open kantoortuin, diverse kantoorkamers en een keukenruimte. Ook is er een buitenruimte aanwezig.
Voorzieningen
• Alarminstallatie;
• Dubbele toiletgroep;
• Eigen nutsvoorzieningen (gas, water en elektra);
• CAI en glasvezelaansluiting;
• Verwarmd middels vloerverwarming aangesloten op een cv-installatie;
• WTW-ventilatie;
• Airconditioning per kantoor regelbaar;
• Keuken voorzien van een koel-vriescombinatie en vaatwasser;
• Vloerbedekking en deels PVC vloeren;
• Systeemplafond met ledverlichting;
• Zonwering aan de binnenzijde;
• Kabelgoten voorzien van stroom en datapunten.
Parkeren
Voldoende gratis parkeergelegenheid op eigen terrein aanwezig.
Oplevering
Per direct beschikbaar, in overleg.
Verhuurvoorwaarden
Wij bieden het object aan op basis van onder meer de volgende voorwaarden:
• huurtermijn van vijf (5) jaren met telkenmale verlengingsperioden van vijf (5) jaren, anders in overleg;
• wederzijdse opzegtermijn van twaalf (12) maanden voorafgaand aan expiratiedatum;
• jaarlijkse indexering op basis van het CPI indexcijfer alle huishoudens (2015=100), voor het eerst één jaar na huuringangsdatum;
• betaling per maand vooruit;
• uitgangspunt is een met BTW belaste verhuur;
• servicekosten niet van toepassing;
• doorlopende bankgarantie of waarborgsom ter grootte van drie (3) maanden huur vermeerderd met voorschot servicekosten en de verschuldigde BTW;
• model huurovereenkomst kantoorruimte en andere bedrijfsruimte in de zin van artikel 7:230a BW met bijbehorende algemene bepalingen, zoals vastgesteld door de Raad voor Onroerende Zaken (ROZ) op 6 maart 2025.
Radiostraat 23 is gelegen in de wijk Broekhoven, een karakteristieke en levendige woonwijk aan de zuidzijde van het Tilburgse centrum, op het VOLT-terrein. Het VOLT-terrein biedt ruimte aan diverse ondernemers, creatieve bedrijven en kleinschalige initiatieven, waardoor een levendige sfeer is ontstaan.
Voor de dagelijkse boodschappen bevinden supermarkten, speciaalzaken en horecagelegenheden zich op korte afstand, onder andere aan de Broekhovenseweg en rondom het Koningsplein. De bereikbaarheid is uitstekend. Het centrum van Tilburg en het Centraal Station zijn binnen enkele minuten per fiets bereikbaar. Daarnaast zijn er goede busverbindingen in de directe omgeving. Via de nabijgelegen Ringbaan Zuid is er een snelle aansluiting op de uitvalswegen richting Eindhoven, Breda en ’s-Hertogenbosch.
Bouwjaar
Gebouwd in 2020.
Vloeroppervlakte:
Kantoorruimte begane grond : ca. 418 m²
Bestemming:
Het object valt binnen het bestemmingsplan “Transvaalplein e.o. 2008”, vastgesteld op 15 mei 2009, waarin het de bestemming “maatschappelijk” heeft gekregen met de aanduiding “gemengd-1, maatschappelijk en horeca 2”. Eigenaar heeft schriftelijke goedkeuring van de gemeente om het geheel als kantoorruimte te mogen gebruiken. Voor een afschrift van dit bestemmingsplan kunt u contact met ons kantoor opnemen.
Indeling
Eigen entree, centrale hal met toegang tot open kantoortuin, diverse kantoorkamers en een keukenruimte. Ook is er een buitenruimte aanwezig.
Voorzieningen
• Alarminstallatie;
• Dubbele toiletgroep;
• Eigen nutsvoorzieningen (gas, water en elektra);
• CAI en glasvezelaansluiting;
• Verwarmd middels vloerverwarming aangesloten op een cv-installatie;
• WTW-ventilatie;
• Airconditioning per kantoor regelbaar;
• Keuken voorzien van een koel-vriescombinatie en vaatwasser;
• Vloerbedekking en deels PVC vloeren;
• Systeemplafond met ledverlichting;
• Zonwering aan de binnenzijde;
• Kabelgoten voorzien van stroom en datapunten.
Parkeren
Voldoende gratis parkeergelegenheid op eigen terrein aanwezig.
Oplevering
Per direct beschikbaar, in overleg.
Verhuurvoorwaarden
Wij bieden het object aan op basis van onder meer de volgende voorwaarden:
• huurtermijn van vijf (5) jaren met telkenmale verlengingsperioden van vijf (5) jaren, anders in overleg;
• wederzijdse opzegtermijn van twaalf (12) maanden voorafgaand aan expiratiedatum;
• jaarlijkse indexering op basis van het CPI indexcijfer alle huishoudens (2015=100), voor het eerst één jaar na huuringangsdatum;
• betaling per maand vooruit;
• uitgangspunt is een met BTW belaste verhuur;
• servicekosten niet van toepassing;
• doorlopende bankgarantie of waarborgsom ter grootte van drie (3) maanden huur vermeerderd met voorschot servicekosten en de verschuldigde BTW;
• model huurovereenkomst kantoorruimte en andere bedrijfsruimte in de zin van artikel 7:230a BW met bijbehorende algemene bepalingen, zoals vastgesteld door de Raad voor Onroerende Zaken (ROZ) op 6 maart 2025.
Kenmerken
Overdracht
- Huurprijs
- € 49.500 per jaar
- Servicekosten
- Geen servicekosten bekend
- Aangeboden sinds
-
- Status
- Beschikbaar
- Aanvaarding
- In overleg
Bouw
- Hoofdfunctie
- Kantoor
- Mogelijke functie(s)
- Zorginstelling
- Soort bouw
- Bestaande bouw
- Bouwjaar
- 2020
Oppervlakten
- Oppervlakte
- 418 m²
Energie
- Energielabel
- A++
Omgeving
- Ligging
- In woonwijk
Foto's