Kastanjelaan 6 6883 HX Velp (GE)
€ 3.500.000 k.k.
Omschrijving
Het betreft een vrijstaand woonzorgcomplex met een oppervlakte van circa 1.777 m² verhuurbaar vloeroppervlak verdeeld over 3 bouwlagen. Het pand ligt op een zeer ruim kavel van 1.795 m² en beschikt over ruim 10 parkeerplaatsen.
Het pand is gebouwd omstreeks 2003. Het omheinde buitenterrein is voorzien van veel groen en een fietsenberging. De locatie grenst aan een woonwijk en is op loopafstand van het treinstation van Velp gelegen.
Ligging
Het object is gelegen in een rustige en groene woonwijk in Velp, een dorp dat valt onder de gemeente Rheden. De locatie bevindt zich op korte afstand van het centrum van Velp, waar een divers aanbod aan winkels, horecagelegenheden en voorzieningen beschikbaar is. De directe omgeving kenmerkt zich door
een mix van karakteristieke bebouwing, ruime opzet en groen.
Bereikbaarheid
De bereikbaarheid van het object is uitstekend, zowel per auto als met het openbaar vervoer. De nabijgelegen uitvalswegen A12 en A348 zorgen voor een snelle verbinding met Arnhem, Nijmegen, Utrecht en andere steden in de regio. Station Velp ligt op loopafstand en biedt frequente treinverbindingen richting
onder andere Arnhem, Zutphen en Winterswijk. Daarnaast zijn er meerdere busverbindingen in de directe omgeving.
Vloeroppervlakte
Het object heeft een totale oppervlakte van circa 1.777 m² v.v.o., als volgt verdeeld:
Begane grond - Ca. 572 m²
Eerste verdieping - Ca. 602 m²
Tweede verdieping - Ca. 603 m²
Totaal - Ca. 1.777 m²
Conform NEN 2580 meetcertificaat d.d. 20 juni 2025 (tekenplan).
Oplevering
Het pand wordt leeg en ontruimd opgeleverd.
Opleveringsniveau/indeling
Begane grond: ruime entree, lift, 13 slaapkamers, 2 woonkamers voorzien van open keuken/bijkeuken, 4 badkamers, invalidetoilet, toiletten, 2 wasruimten, berging en overige ruimten.
Eerste verdieping: 13 slaapkamers, 2 woonkamers voorzien van open keuken/bijkeuken, 4 badkamers, invalidetoilet, toiletten en 2 wasruimten.
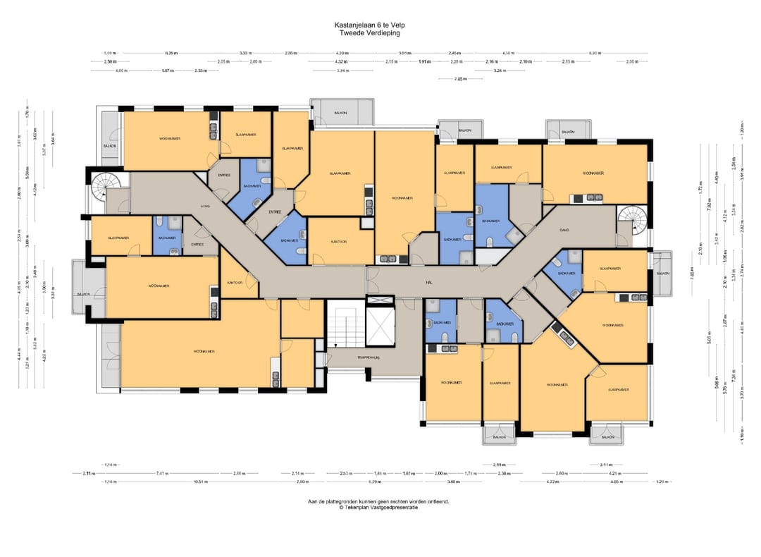
Tweede verdieping: 8 zelfstandige 2 kamerappartementen met een eigen balkon, badkamer en woonkamer met open keuken. Gezamenlijke woonkamer en 2 kantoren.
Derde verdieping: technische ruimte
Het pand is voorzien van:
- Ruime entree;
- Intercominstallatie;
- Liftvoorziening;
- Houtenkozijnen voorzien van dubbelglas;
- Systeemplafonds met armaturen;
- CV-Gas voorzien van radiatoren (3 cascade Remeha Quinta Pro)
- Mechanische ventilatie;
- Enkele airco's/splitunits;
- Zonneboiler met 6 panelen;
- Brandmeldinstallatie;
- Gedeeltelijk voorzien van elektrische rolluiken/elektrische screens;
- Krachtstroom.
Parkeren
Het pand is voorzien van 10 ruime parkeerplaatsen op eigen terrein. Voor het overige is er in de directe omgeving voldoende ruimte voor gratis parkeren op openbaar terrein.
Koopsom
€ 3.500.000 k.k.
Bestemming
Conform het bestemmingsplan Velp 2016, Woongebieden-Zuid Vastgesteld d.d. 11-12-2019 heeft het pand als bestemming “maatschappelijk-2” en is het pand bestemd voor o.a.:
- Begeleid wonen;
- Instellingswonen;
- Zorgwoningen (met aanvullende voorwaarden).
Voor een nadere toelichting op het bestemmingsplan verwijzen wij u graag naar de website van het Omgevingsloket.
Energielabel
Het object beschikt over energielabel A.
Heeft dit pand uw interesse gewekt? Dan nodigen wij u van harte uit het pand eens van binnen te komen bekijken!
BMV Bedrijfsmakelaars
Sweerts de Landasstraat 27
6814 DA Arnhem
026 - 355 21 00
Het pand is gebouwd omstreeks 2003. Het omheinde buitenterrein is voorzien van veel groen en een fietsenberging. De locatie grenst aan een woonwijk en is op loopafstand van het treinstation van Velp gelegen.
Ligging
Het object is gelegen in een rustige en groene woonwijk in Velp, een dorp dat valt onder de gemeente Rheden. De locatie bevindt zich op korte afstand van het centrum van Velp, waar een divers aanbod aan winkels, horecagelegenheden en voorzieningen beschikbaar is. De directe omgeving kenmerkt zich door
een mix van karakteristieke bebouwing, ruime opzet en groen.
Bereikbaarheid
De bereikbaarheid van het object is uitstekend, zowel per auto als met het openbaar vervoer. De nabijgelegen uitvalswegen A12 en A348 zorgen voor een snelle verbinding met Arnhem, Nijmegen, Utrecht en andere steden in de regio. Station Velp ligt op loopafstand en biedt frequente treinverbindingen richting
onder andere Arnhem, Zutphen en Winterswijk. Daarnaast zijn er meerdere busverbindingen in de directe omgeving.
Vloeroppervlakte
Het object heeft een totale oppervlakte van circa 1.777 m² v.v.o., als volgt verdeeld:
Begane grond - Ca. 572 m²
Eerste verdieping - Ca. 602 m²
Tweede verdieping - Ca. 603 m²
Totaal - Ca. 1.777 m²
Conform NEN 2580 meetcertificaat d.d. 20 juni 2025 (tekenplan).
Oplevering
Het pand wordt leeg en ontruimd opgeleverd.
Opleveringsniveau/indeling
Begane grond: ruime entree, lift, 13 slaapkamers, 2 woonkamers voorzien van open keuken/bijkeuken, 4 badkamers, invalidetoilet, toiletten, 2 wasruimten, berging en overige ruimten.
Eerste verdieping: 13 slaapkamers, 2 woonkamers voorzien van open keuken/bijkeuken, 4 badkamers, invalidetoilet, toiletten en 2 wasruimten.
Tweede verdieping: 8 zelfstandige 2 kamerappartementen met een eigen balkon, badkamer en woonkamer met open keuken. Gezamenlijke woonkamer en 2 kantoren.
Derde verdieping: technische ruimte
Het pand is voorzien van:
- Ruime entree;
- Intercominstallatie;
- Liftvoorziening;
- Houtenkozijnen voorzien van dubbelglas;
- Systeemplafonds met armaturen;
- CV-Gas voorzien van radiatoren (3 cascade Remeha Quinta Pro)
- Mechanische ventilatie;
- Enkele airco's/splitunits;
- Zonneboiler met 6 panelen;
- Brandmeldinstallatie;
- Gedeeltelijk voorzien van elektrische rolluiken/elektrische screens;
- Krachtstroom.
Parkeren
Het pand is voorzien van 10 ruime parkeerplaatsen op eigen terrein. Voor het overige is er in de directe omgeving voldoende ruimte voor gratis parkeren op openbaar terrein.
Koopsom
€ 3.500.000 k.k.
Bestemming
Conform het bestemmingsplan Velp 2016, Woongebieden-Zuid Vastgesteld d.d. 11-12-2019 heeft het pand als bestemming “maatschappelijk-2” en is het pand bestemd voor o.a.:
- Begeleid wonen;
- Instellingswonen;
- Zorgwoningen (met aanvullende voorwaarden).
Voor een nadere toelichting op het bestemmingsplan verwijzen wij u graag naar de website van het Omgevingsloket.
Energielabel
Het object beschikt over energielabel A.
Heeft dit pand uw interesse gewekt? Dan nodigen wij u van harte uit het pand eens van binnen te komen bekijken!
BMV Bedrijfsmakelaars
Sweerts de Landasstraat 27
6814 DA Arnhem
026 - 355 21 00
Kenmerken
Overdracht
- Vraagprijs
- € 3.500.000 kosten koper
- Aangeboden sinds
-
- Status
- Beschikbaar
- Aanvaarding
- In overleg
Bouw
- Hoofdfunctie
- Zorginstelling
- Soort bouw
- Bestaande bouw
- Bouwjaar
- 2003
Oppervlakten
- Oppervlakte
- 1.777 m²
- Perceel
- 1.795 m²
Energie
- Energielabel
- A
Omgeving
- Ligging
- In woonwijk
- Bereikbaarheid
- Bushalte op minder dan 500 m, NS Intercitystation op minder dan 500 m en snelwegafrit op 2000 m tot 3000 m
Parkeergelegenheid
- Parkeerplaatsen
- 10 niet-overdekte parkeerplaatsen
Foto's
Plattegrond
Begane Grond
Eerste Verdieping
Tweede Verdieping
Derde Verdieping