Omschrijving
Te Koop
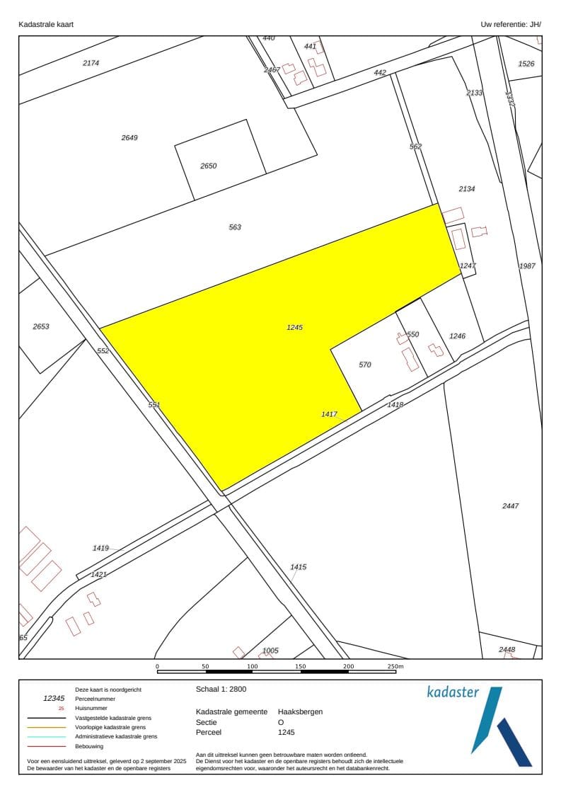
Percelen landbouwgrond te Haaksbergen
Perceel 1
Gelegen aan de Eppenzolder/Wisselinkbrinkweg te Haaksbergen.
Kadastraal bekend als Haaksbergen, sectie O, gedeeltelijk nr. 1245, groot ongeveer 46295 m².
Perceel 2
Gelegen nabij de Hassinkbrinkweg te Haaksbergen.
Kadastraal bekend als Haaksbergen, sectie O, nr. 2029 en 2709, samen groot 30357 m²
Percelen zijn belast met zakelijke rechten.
Deze percelen worden aangeboden in samenwerking met Ten Hag Makelaars.
Contactpersoon inzake de verkoop van deze percelen is de heer R. ten Hag.
Telefonisch bereikbaar op 06-53835777.
Percelen landbouwgrond te Haaksbergen
Perceel 1
Gelegen aan de Eppenzolder/Wisselinkbrinkweg te Haaksbergen.
Kadastraal bekend als Haaksbergen, sectie O, gedeeltelijk nr. 1245, groot ongeveer 46295 m².
Perceel 2
Gelegen nabij de Hassinkbrinkweg te Haaksbergen.
Kadastraal bekend als Haaksbergen, sectie O, nr. 2029 en 2709, samen groot 30357 m²
Percelen zijn belast met zakelijke rechten.
Deze percelen worden aangeboden in samenwerking met Ten Hag Makelaars.
Contactpersoon inzake de verkoop van deze percelen is de heer R. ten Hag.
Telefonisch bereikbaar op 06-53835777.
Kaart
Kaart laden...
Kadastrale grens
Bebouwing
Reistijd
Krijg inzicht in de bereikbaarheid van dit object vanuit bijvoorbeeld een openbaar vervoer station of vanuit een adres.