Omschrijving
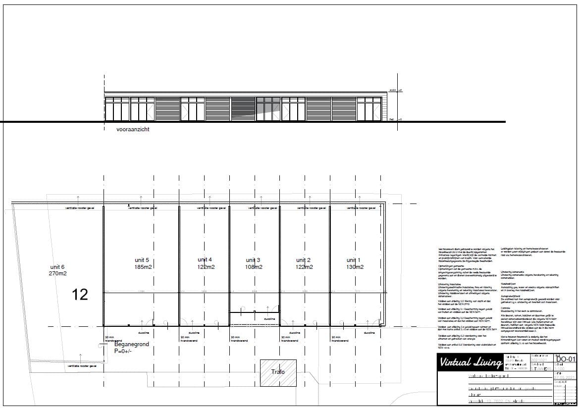
Aan de George Breitnerstraat 12 op het bedrijvenpark “Ossenkoppelerhoek” is het bedrijfsverzamelgebouw ‘De Ossenkoppel’ ontwikkeld. Het gebouw bestaat uit 5 bedrijfsunits. Unit 12 C is beschikbaar en heeft een oppervlakte van ca. 108 m² en beschikt over een overheaddeur, een glas pui met loopdeur en een toilet, een betonnen vloer en een meterkast.
Locatie en bereikbaarheid
Het object is gelegen op bedrijvenpark “Ossenkoppelerhoek” nabij winkelcentrum Vincent van Goghplein. Er is een snelle verbinding met de A35. De omliggende bebouwing bestaat voornamelijk uit bedrijfspanden variërend in aard en omvang. De objecten zijn zeer goed bereikbaar. De op- en afritten van de A35 zijn met 5 minuten te bereiken via de Schuilenburgsingel. In de nabijheid is een bushalte gelegen.
Parkeervoorzieningen
Gratis parkeren in de directe omgeving. Daarbij is het buitenterrein zo ingedeeld dat je op eigen terrein kan rangeren met de auto (met aanhanger).
Bestemmingsplan
Het object maakt deel uit van het bestemmingsplan "Ossenkoppelerhoek" met enkel bestemming bedrijf cat. 1 en 2 en sportcentrum.
Indeling
Het bedrijfsverzamelgebouw is gerealiseerd in een gesloten vorm, waarbij de units zijlings aan elkaar zijn gebouwd. De units hebben een hoogte van circa 3,80 meter, voorzien van een eigen entree, overheaddeur, een glas pui met loopdeur, toilet, een betonnen vloer en een meterkast.
Oppervlakten en prijzen
12 C - 108 m²
Koopprijs
€ 165.000,- k.k.
VVE bijdrage
De maandelijkse VVE bijdrage bedraagt € 169,50
Energiekosten
De bedrijfshallen beschikken over eigen tussenmeters in de centrale meterkast, deze wordt door VVE beheerder op jaarlijkse basis met het voorschot bedrag na gecalculeerd.
Zekerheidsstelling
10% waarborgsom wordt opgenomen in koopovereenkomst.
Aanvaarding
In overleg
Deze presentatie is informatief en geheel vrijblijvend. Aan eventuele onjuistheden kunnen geen rechten worden ontleend.
Locatie en bereikbaarheid
Het object is gelegen op bedrijvenpark “Ossenkoppelerhoek” nabij winkelcentrum Vincent van Goghplein. Er is een snelle verbinding met de A35. De omliggende bebouwing bestaat voornamelijk uit bedrijfspanden variërend in aard en omvang. De objecten zijn zeer goed bereikbaar. De op- en afritten van de A35 zijn met 5 minuten te bereiken via de Schuilenburgsingel. In de nabijheid is een bushalte gelegen.
Parkeervoorzieningen
Gratis parkeren in de directe omgeving. Daarbij is het buitenterrein zo ingedeeld dat je op eigen terrein kan rangeren met de auto (met aanhanger).
Bestemmingsplan
Het object maakt deel uit van het bestemmingsplan "Ossenkoppelerhoek" met enkel bestemming bedrijf cat. 1 en 2 en sportcentrum.
Indeling
Het bedrijfsverzamelgebouw is gerealiseerd in een gesloten vorm, waarbij de units zijlings aan elkaar zijn gebouwd. De units hebben een hoogte van circa 3,80 meter, voorzien van een eigen entree, overheaddeur, een glas pui met loopdeur, toilet, een betonnen vloer en een meterkast.
Oppervlakten en prijzen
12 C - 108 m²
Koopprijs
€ 165.000,- k.k.
VVE bijdrage
De maandelijkse VVE bijdrage bedraagt € 169,50
Energiekosten
De bedrijfshallen beschikken over eigen tussenmeters in de centrale meterkast, deze wordt door VVE beheerder op jaarlijkse basis met het voorschot bedrag na gecalculeerd.
Zekerheidsstelling
10% waarborgsom wordt opgenomen in koopovereenkomst.
Aanvaarding
In overleg
Deze presentatie is informatief en geheel vrijblijvend. Aan eventuele onjuistheden kunnen geen rechten worden ontleend.
Kaart
Kaart laden...
Kadastrale grens
Bebouwing
Reistijd
Krijg inzicht in de bereikbaarheid van dit object vanuit bijvoorbeeld een openbaar vervoer station of vanuit een adres.